欧洲之星英国专线枢纽站,阿姆斯特丹 / ZJA Architects & Engineers + 叠术建筑
欧洲之星(Eurostar)英国专线枢纽站近日在阿姆斯特丹中央火车站正式启用,标志着“伦敦至阿姆斯特丹”国际铁路专线的重大升级。这个位于阿姆斯特丹市中心的专线枢纽站将现代设计与历史建筑完美融合,以宽敞的空间、可持续的理念、优质的出行体验和无障碍设施,为旅客提供更便捷的跨境服务。
The opening of the new Eurostar UK Terminal at Amsterdam Central Station marks an important step in the development of international rail traffic between London and Amsterdam. This new terminal offers a spacious, sustainable, high-quality, and accessible border crossing in the heart of Amsterdam.
▼项目概览,Overall view


这个由ZJA Architects & Engineers与Superimpose 叠术建筑联袂设计的专线枢纽站,在NS Stations、Eurostar和ProRail的共同推动下,以巧妙的设计嵌入了阿姆斯特丹中央火车站这座国家级历史建筑。作为“面向未来的交通枢纽”,它不仅开启了跨境铁路的新纪元,也实现了历史底蕴、科技创新与功能美学的完美融合。
▼轴测效果图,axo



Architects from ZJA Architects & Engineers and Superimpose Architecture, commissioned by NS Stations, Eurostar and ProRail, have carefully integrated the new terminal into Amsterdam Central Station, a national monument. This ‘terminal of the future’ defines a new era for cross-border rail traffic, and brings together various time periods, technologies, aesthetics, and efficiency.
▼车站广场,Station square

嵌入历史建筑中的全新枢纽 Brand New Terminal in a National Monument
欧洲之星(Eurostar)作为连接欧洲大陆的交通纽带,始终致力于构建共享的欧洲文化体验,因此,文化认同始终是Eurostar品牌的重要组成部分,其车站亦是重要的文化地标。全新的专线枢纽站落址于阿姆斯特丹中央火车站核心区域,项目与车站整体改造工程无缝衔接。通过将新空间巧妙融入历史建筑之中,向这座具有重要意义的地标致以敬意。
▼历史构筑遗存轴测示意图,illustration axo monument

As a transport service that connects the continent, Eurostar plays a role in creating a shared European experience, with its stations serving as cultural landmarks. Cultural identity is therefore a key part of the brand’s character. Eurostar’s new UK Terminal is located in a national monument, that is Amsterdam Central Station, which is currently undergoing major renovation and redevelopment. The design seamlessly integrates into this large-scale station transformation and honors the monument by weaving it into the spatial experience of the building.
▼入口处,Entrance

▼电梯入口,Elevator entrance

▼电梯,Elevator

▼入口大厅,Entrance hall

▼咨询台,Information desk

▼细腻的材质贯穿整个空间,Refined materials run throughout the entire space


跨越边界 Crossing Borders
全新的英国专线枢纽站面积是原15站台旧枢纽站的近四倍,作为申根区外边界,配备完整的护照与行李检查流程。专线枢纽站设于原阿姆斯特尔通道(Amstel Passage)之内,是阿姆斯特丹中央车站五条南北向通道之一。清晰的动线原则构成了设计的主线,并始终贯穿于布局和整个空间:旅客从市区一侧的主入口进入,依次完成荷兰与英国的安检、海关与边境检查后,方可进入候车区。
▼交通流线轴测示意图,illustration axo circulation

The new UK Terminal is up to four times the size of the old terminal on platform 15 in terms of floor area and functions as a Schengen external border with the necessary passport and baggage checks. The terminal is housed in the former Amstelpassage, one of the five north-south tunnels at Amsterdam Central Station. A clear circulation strategy forms the foundation of the design and is consistently applied throughout the entire space. Travelers enter the terminal via the main entrance that faces the city, subsequently passing through baggage check and both the Dutch and British passport controls, with adjacent border force facilities, before arriving in the waiting area.
▼候车区,Waiting area


候车区是整体室内设计的终章,设计灵感源自“天与地”的共生关系——既回应了铁路旅行的精神意象,也借鉴了荷、英两国黄金时代的风景绘画。其最引人注目的设计是带有动态灯光的“悬浮天幕”——利用云朵投影来响应一天中的不同时间和乘车流程,营造出静谧又富有动感的氛围。
The waiting room forms the final part of the interior concept, in which the relationship between earth and sky is central, a theme that ties in with train travel and is inspired by both Dutch and British landscape paintings from the Golden Age. One of the most striking elements is the floating ceiling with dynamic lighting, with projections of dynamic moving clouds which corresponds to the boarding process. This creates an atmosphere that is both calming and activating.
▼人们在候车区等候,People wait in the waiting area


▼候车区中的阶梯空间,Stepped space within the waiting area

▼候车区座椅近景,Seats details


通过包括“悬浮天幕”在内的先进技术与创新设计,该空间不仅满足了现代旅客的功能需求,更成为阿姆斯特丹与伦敦之间一座兼具可持续性与象征意义的桥梁。与此同时,克伊珀斯楼(Cuypersgebouw)也迎来全新通行体验。自四月起,乘客可通过克伊珀斯楼(Cuypersgebouw)内新增的电梯与楼梯通往站台,沿途经过一面保存完好的砖砌历史纪念墙,与拱形天花一道构成鲜明的建筑特征。这一历史立面不仅成为空间中的视觉焦点,也为旅客提供明确的动线指引。此外,灯光设计巧妙地突出了材质的纹理与细节,为车站的空间体验注入了新的活力。
So with advanced technologies and innovative solutions, including the dynamic ‘cloud ceiling’, the design meets the functional requirements of the modern traveler and forms a sustainable and iconic link between Amsterdam and London. The most recent addition to the terminal is the integration of vertical circulation via the historic Cuypers building. Since April 2025, passengers ascend to the platform via escalators and staircases that glide along a beautiful historic brick wall. This wall, together with the vaulted ceiling above, not only forms a remarkable architectural element, but also contributes to orientation and wayfinding. Carefully designed lighting accentuates the textures and details of this intricate brickwork and breathes new life into the experience of the station.
▼安检区,Security checkpoint


▼售票口,Ticket counter

▼售票口,Ticket counter

可持续、灵活、面向未来 Sustainable, Flexible and Future-Proof
项目设计优先选择“再利用”而非“新建”,通过保留既有结构、复用如喷淋系统等原有设施,大幅减少了建筑材料浪费,并有效保留原建筑所封存的碳排放值。材料选择亦充分体现环保理念:采用生物基隔热材料、负碳足迹水磨石、回收毡材与再生铝材,提升空间耐久性,降低环境负担。此外,分阶段施工采用的临时构件采用模块化系统,便于后期拆解与重复使用,为车站未来的更新与扩展保留了灵活性。
When developing the new terminal, a conscious decision was made to repurpose rather than build anew. By retaining existing structures and reusing technical installations – such as the sprinkler system – material waste has been limited and stored CO₂ has been retained. Sustainability is also central to the choice of materials: biobased insulation, terrazzo with a negative CO₂ footprint and recycled felt and aluminium contribute to a long lifespan and low environmental impact. The temporary components of the phasing are modular and suitable for reuse, which makes the project flexible for future developments in and around the station.
▼空间材质,Material


▼材质细部,material details

确保运营不中断Operational Continuity
项目实施期间,与车站内多个同时进行的改造工程存在高度交集,因此整体规划面临不小挑战。考虑到阿姆斯特丹中央车站既需要面对未来发展而建设,又需要持续保持运营状态,项目团队制定了精密的分阶段施工方案,保障车站日常运行的顺畅与安全。
The design and realization of the terminal presented significant challenges. The UK-Terminal interfaces with several parallel ongoing construction projects which aim to future-proof the central station. A cleverly devised phasing strategy allows for operational continuity of the terminal amidst these challenges.
▼卫生间,Toilet


为文化融合注入新意义A Meaningful Contribution to Cultural Integration
全新专线枢纽站的落成,不仅是一个建筑里程碑,更在现实中拉近了英国与荷兰之间的距离。项目强化了两国之间的铁路通达性,为更紧密的欧洲一体化贡献力量。在当前可持续出行、跨国协作及铁路复兴日益受到重视的背景下,该项目展现了基础设施在服务气候目标与文化整合方面的双重价值。
The opening of the new UK Terminal marks more than just an architectural milestone: it meaningfully shortens the distance between the UK and the Netherlands, and contributes to stronger rail connections and closer European integration. At a time when sustainable mobility, European cooperation and the revaluation of rail transport are becoming increasingly important, this project shows how infrastructure can contribute to climate goals and cultural integration.
▼项目位置示意图,site plan

▼平面图,floor plan

▼剖面图,section

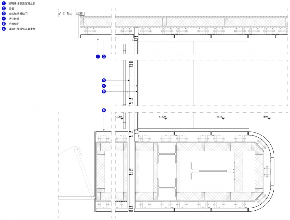
▼滑动门剖面详图,sliding door section

▼墙体立面与剖面详图,wall section and elevation

▼墙体水平节点详图,horizontal wall detail

▼天花剖面详图,ceiling section

▼门体剖面详图,door section

Project Name / Eurostar UK Terminal
Location / Amsterdam Central Station
Client / Eurostar Group
Commissioned by / NS Stations, ProRail
Architects / ZJA Architects & Engineers* and Superimpose Architecture**
Installation Advisor / Sweco
Lighting / Beersnielsen
Constructor / Arcadis
Advisor Building Physics & Acoustics / Cauberg Huygen
Fire Safety Advisor / Arcadis
Project Management / Aronsohn
Wayfinding / Haskoning
Main contractor / K_Dekker
Installer / Spie
Technical Elaboration / INBO
Subcontractors / Kwakman, A&D
Suppliers / Duracryl, Barri&More , Bolon, Hunter Douglas, Abet Laminati, Gabriel, iGuzinni, JUNG, mbX, Tormax
Furniture Suppliers / Sellex, Lapalma, +Halle, InteriorWorks, SV design brands
Area / 2,300 m²
Completion / 2025
Photographs / Marc Goodwin, ZJA Architects & Engineers
* ZJA Architect Eurostar UK Terminal
** Superimpose Architect of the interior of the Eurostar UK Terminal passenger area














