石见,常州/室内设计

拥有一个露天花园入口的酒店沉浸式体验感的办公空间
Hotel immersive office space with an open-air garden entrance

有沉浸式的办公室内环境,有如沐春风的花园露台,有潇洒绽放的娱乐区,亦有茗茶品酒的水吧台,还有灵动个性的休闲区。
There is an immersive office environment, a spring breeze garden terrace, a natural and unrestrained entertainment area, a water bar for tea and wine tasting, and a flexible and personalized leisure area.

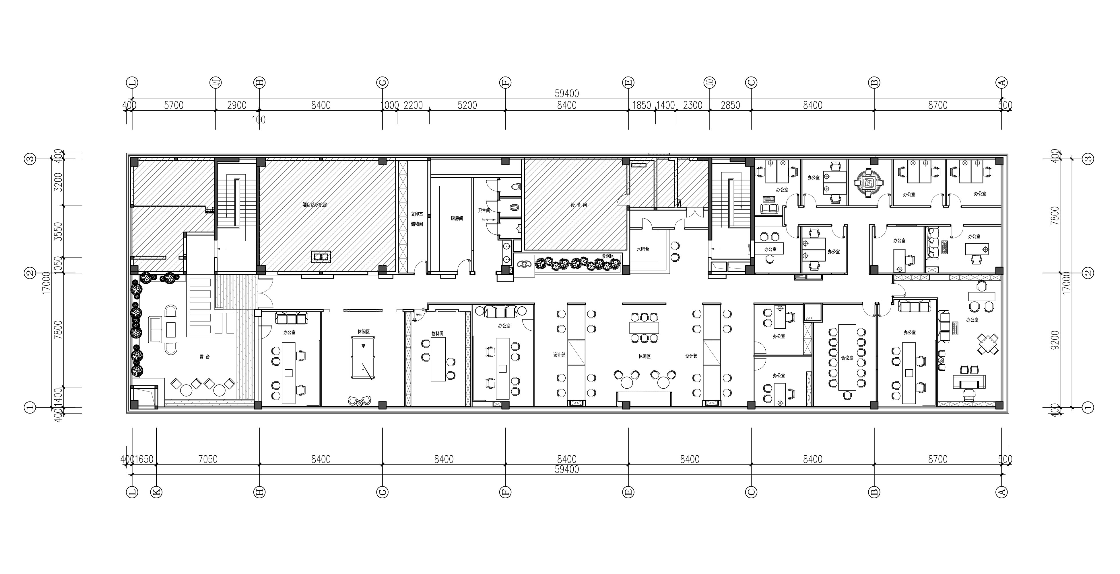
出电梯,先进入一个仪式感十足的楼梯间,然后进入露天阳台的花园,再进入公司的大门,通过长长的仪式感的廊道进入每个空间。
Out of the elevator, first enter a ceremonial staircase, then enter the garden of the open balcony, and then enter the company's gate, and enter each space through the long ceremonial corridor.

公司现拥有优秀的设计团队,秉承“高度追求艺术性美学与实用性功能完美融合”的理念,在卓越的设计管理前提下,结合项目特性和客户需求,实现优雅、简约、不拘一格的创意设计,提供超越客户期望的专业服务,践行着用设计为客户创造价值的使命,让每个设计作品尽善尽美。公司先后与多家优秀企业建立了战略合作伙伴关系,并得到客户的高度认可。
The company now has an excellent design team, adhering to the concept of "highly pursuing the perfect integration of artistic aesthetics and practical functions", under the premise of excellent design management, combined with project characteristics and customer needs, to achieve elegant, simple, non stick to one style creative design, provide professional services that exceed customer expectations, practice the mission of creating value for customers with design, and make every design work perfect. The company has established strategic partnership with many excellent enterprises, and has been highly recognized by customers.




























项目名称:石见
文章分类:室内设计-办公会议
设计公司:上海砚集设计有限公司
项目地址:常州市
项目规模:1000㎡
项目年份:2021年
Project Name: Shi Jian
Article classification: Interior Design - Office Meetings
Design Company: Shanghai Yanji Design Co., Ltd
Project address: Changzhou City
Project scale: 1000 square meters
Project Year: 2021














