杭州天阳蔚蓝幕墙,杭州/建筑
该项目为大区综合幕墙工程
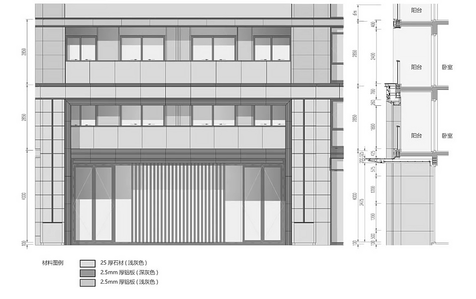
酒店式外立面采用了“高级灰”铝板干挂幕墙和大面玻璃元素
1-3层为石材外墙,石材材料为芝麻灰
3层以上为铝板与铝型材搭配,层次鲜明线条硬朗
铝板分亮银和黑银两种
The project is a comprehensive curtain wall project in the region
The hotel facade adopts "high-grade gray" aluminum plate dry hanging curtain wall and large surface glass elements
The 1-3 floors are stone exterior walls, and the stone material is sesame gray
Above 3 floors are aluminum plates and aluminum profiles, with distinct layers and strong lines
Aluminum plate is divided into bright silver and black silver




社区品格
Community character
COMMUNITY(社区)一词,来源于拉丁语。意指有物质基础且可以被观察到的一切生活具象。其中,人、地域、生活文化共同成为构筑社区缺一不可的要素。然而,随着时间的推移,“社区”的概念逐渐退变为一个个被围墙深锁的集合住区。生活与文化也成为了一个社区中的不必要项。
The word "community" comes from Latin. It refers to all life manifestations that have a material basis and can be observed. Among them, people, region and life culture have become indispensable elements in building communities. However, with the passage of time, the concept of "community" has gradually degenerated into collective settlements locked by walls. Life and culture have also become unnecessary items in a community.
▼“社区”概念,"Community" concept

在天阳杭州蔚蓝项目的设计中,设计师尝试通过塑造具有高复合性的城市图景还原出最纯粹的社区氛围:设计的重点被重新放在以人与空间为基石的生活构建上,通过丰富的生活场景与活动,让家、公园、活动场、商业街区相互交织,让活力与交流穿透围墙,蔓延于住区与城市的片段中,打造一个7*24高活力、图景复合的社区节点。
In the design of the Tianyang Hangzhou azure project, the designer tried to restore the purest community atmosphere by creating a highly complex urban landscape: the focus of the design was re placed on the construction of life based on people and space. Through rich life scenes and activities, homes, parks, activity fields, and business blocks were intertwined, so that vitality and communication penetrated the wall and spread in the fragments of residential areas and cities, Create a 7 * 24 community node with high vitality and complex landscape.
▼复合社区图,Composite community map

01
可能与桎梏
Possibility and shackle
蔚蓝地块处于杭州城西青山湖科技城内,距离轨交站点400m、青山湖公园2.7km、杭州西站16km。场地四周办公、学校、医院等配功能合抱、更有南苕溪蜿蜒而至。景观、产业、配套共同编织出具有潜力的产城一体式片区, 也为项目所营造的生活模式带来诸多可能性。
Azure plot is located in Qingshanhu science and Technology City in the west of Hangzhou City, 400m away from the rail transit station, 2.7km away from Qingshanhu Park, and 16km away from Hangzhou West Railway Station. The site is surrounded by offices, schools, hospitals and other supporting functions, and nantiaoxi meanders to it. Landscape, industry and supporting facilities jointly weave a potential industry city integrated area, which also brings many possibilities for the living mode created by the project.
▼大区位关系,Large regional relationship

▼小区位分析,Small area analysis

与周边复合多样的区域底色相对的,则是周边地块对日照的严格限制:为了避免对北侧医院、西侧学校、南侧未建住宅以及东侧安置房造成遮挡,本地块设计边界条件基本锁定,成为设计师实现空间叙事与表现理念的无形桎梏。于受限的条件中“戴着镣铐起舞”,在受制约的可能性里“螺蛳壳里做道场”,设计师针对天阳蔚蓝的解题思路是找寻逻辑严谨的理性推论与美好空间理念之间的平衡。
In contrast to the surrounding complex and diverse regional background, it is the strict restrictions on sunshine in the surrounding plots: in order to avoid blocking the North Hospital, the west school, the uncompleted residence in the South and the resettlement house in the East, the design boundary conditions of the local block are basically locked, which has become an intangible shackle for designers to realize the concept of spatial narration and expression. Under the restricted conditions, "dancing in shackles", and in the restricted possibility, "making a Taoist temple in the shell of a snail", the designer's problem-solving idea for the blue sky is to find a balance between logical and rigorous rational reasoning and the idea of a beautiful space.
▼日照极限下的逻辑推导过程,Logical derivation process under sunshine limit

基于理性视角分析地块客观条件与日照、消防、建设量后,设计师推演出住宅塔楼布局最优解:五栋板式建筑围合地块与城市道路相交的南、北、东侧界面,四个点式塔楼则布置在西侧腹地内。最终呈现出相对非主流的南高北低的整体形体关系,既解决了周边日照的限制,也在不同尺度的城市道路界面上塑造高宽比合宜的区域天际线。
After analyzing the objective conditions of the plot, sunshine, fire protection and construction volume from a rational perspective, the designer deduced the optimal solution for the layout of residential towers: five panel buildings enclose the south, North and East interfaces of the plot intersecting with the urban road, and four dot towers are arranged in the hinterland of the west side. Finally, it presents a relatively non mainstream overall shape relationship of high in the South and low in the north, which not only solves the limitation of surrounding sunshine, but also creates a regional skyline with appropriate height width ratio on the interface of urban roads of different scales.
▼设计生成,Design generation

▼实景鸟瞰,Live aerial view

02
界面与温度
Interface and temperature
客观条件下的理性思考能在去芜存菁后直面本质,而设计的价值则在于,升华并赋予纯粹、赤裸的本质以生动的血肉,让建设项目除了冷静的计算,依然保有温度。
Rational thinking under objective conditions can face the essence directly after eliminating the turnip, and the value of design is to sublimate and give the pure and naked essence vivid flesh and blood, so that the construction project can still maintain the temperature in addition to calm calculation.
在天阳蔚蓝的设计中,设计师就尝试突破对“小区”本身的关注,以“社区”视角着手,从更高的层面打造出活力高度渗透的复合都市图景——为青山湖科技城里的人们提供一种多彩、丰富的生活可能性。场地的束缚使得商业、配套和幼儿园都被锁定在了地块的东侧,挤压成了线型的带状布置空间,而恰巧马路的东侧正是安置房小区的商业位置,这让道路两侧呼应形成商业街区成为了可能,建筑师通过组织商业配套、人行出入口及幼儿园来形成完整的现代感极强的城市界面,在已知条件下把不利因素消化、分解并织补成趣味性的空间、表皮和肌理,塑造大社区中的高活力停留场所。这让之前过于理性的规划推导过程产生了有意思的化学变化,建筑师擅长的空间诉说方式在一个点内得以充分地表达。
In the design of the blue sky, designers try to break through the attention to the "community" itself, and from the perspective of "community", create a composite urban landscape with high vitality and penetration from a higher level - providing a colorful and rich living possibility for people in Qingshan Lake Science and technology city. Due to the constraints of the site, businesses, supporting facilities and kindergartens are locked on the east side of the plot, squeezing into a linear ribbon layout space. It happens that the east side of the road is the commercial location of the resettlement housing community, which makes it possible to form a commercial block on both sides of the road. Architects form a complete modern urban interface by organizing business supporting facilities, pedestrian entrances and exits and kindergartens, Under known conditions, the unfavorable factors are digested, decomposed and woven into interesting space, skin and texture to create a high-energy residence in a large community. This makes the previous overly rational planning derivation process produce interesting chemical changes, and the spatial expression method that architects are good at can be fully expressed in one point.
▼东侧活力界面设计生成,Design and generation of dynamic interface on the east side

▼街角整体形象,Overall image of street corner

▼社区人行主入口与商业界面,Main entrance and business interface of community pedestrian bank

幼儿园对于城市活力,往往是消极的存在,在蔚蓝这个项目里,设计师试图用更加积极的方式来延续整个商业街区的活力,用玻璃围墙的方式结合出入口给人以亲近感,比起传统的围墙界面,一定程度上让幼儿园内部的活动场景外延,而色彩丰富且高地错落的铝板盒子,也让幼儿园变得更加有趣味,行径在街区里的人们感受到不一样的烟火气。
Kindergartens tend to have a negative effect on the vitality of the city. In the blue project, designers try to continue the vitality of the whole business district in a more positive way, using glass walls combined with entrances and exits to give people a sense of closeness. Compared with the traditional wall interface, to a certain extent, the activity scene inside the kindergarten is extended, and the colorful and highly scattered aluminum boxes also make the kindergarten more interesting, People who walk in the street feel different fireworks.

▼东南侧幼儿园城市界面,Southeast kindergarten city interface

这样的城市界面从东侧一直延续到了地块的南侧,商业氛围随着功能的变化消失逐步减弱,但社区感的植入引导了车行主入口的落位,最终呈现的状态也符合了项目区域标杆的定位。
Such an urban interface extends from the east to the south of the plot, and the business atmosphere gradually weakens with the change of function, but the implantation of a sense of community guides the placement of the main entrance of the car company, and the final state also conforms to the positioning of the regional benchmark of the project.
▼南侧城市界面,South City interface

▼车行出入口城市界面,City interface at vehicle entrance and exit

街区的设计不仅织补了大社区内的生活行为丰富度,更提升了地块在区域中的能级:天阳蔚蓝从一个单一的 “小区”,成为一个大社区的活力核心,而社区的氛围也得以延续到围墙之外。
The design of the block not only weaves the richness of life behavior in the large community, but also improves the energy level of the plot in the region: the sky is blue from a single "community" to the vitality core of a large community, and the atmosphere of the community can also continue beyond the fence.
▼西南角城市界面,Southwest corner city interface

03
活力渗透
Vitality penetration
不仅作为大社区的核心活化围墙外的城市界面,天阳蔚蓝同样通过空间手法实现社区活力的内向渗透。而活力的提升则源于自发性活动与社交性活动的增长。
As the core of the large community, Tianyang azure not only activates the urban interface outside the fence, but also realizes the inward penetration of community vitality through spatial means. The increase in vitality stems from the growth of spontaneous and social activities.
包围式的总图布局消解了大而无当的中心大花园,转换为多个组团绿地。通过南北向贯穿地块的归家礼序中轴与中央景观将它们彼此串接,大尺度的景观也被转化为适宜漫步休憩的小场景。
The enclosed general layout eliminates the large and inappropriate central garden and converts it into multiple clusters of green space. Through the north-south direction through the home ceremony sequence, the central axis and the central landscape connect them with each other, and the large-scale landscape is also transformed into a small scene suitable for walking and rest.
▼空间分析图,Spatial analysis diagram



▼内部组团透视,Internal group perspective

04
灵动雅正
Smart and elegant
在建筑美学塑造中,地处杭州的天阳蔚蓝,在关注其自身豪宅品质塑造的同时,也深受这座城市古朴灵动气韵的影响。
In the shaping of architectural aesthetics, the sunny sky in Hangzhou is blue. While paying attention to the shaping of the quality of its own luxury houses, it is also deeply affected by the simplicity and flexibility of the city.
设计师对传统建筑中的元素进行提炼与再塑造,诠释现代背景下的杭州审美:统一的竖向通高框架视觉元素从消弭了点式与板式两类建筑单体间的体量差异,使小区中的各栋建筑更具整体感;减除过于冗杂的装饰元素仅保留层间横向线脚含蓄地丰富视觉细节;望板、柱廊等传统空间构成件加以抽象化,在顶部与底部优化建筑整体,从而营造挺拔、典雅的视觉氛围。
The designer refines and reshapes the elements in the traditional buildings and interprets the aesthetics of Hangzhou under the modern background: the unified vertical high-rise frame visual elements eliminate the volume differences between the two types of single buildings, making the buildings in the community more holistic; Remove too miscellaneous decorative elements, and only retain the horizontal moldings between layers to implicitly enrich the visual details; Traditional space components such as watchboards and colonnades are abstracted to optimize the overall building at the top and bottom, so as to create a straight and elegant visual atmosphere.
▼板楼单体透视,Perspective of Banlou monomer

▼板楼入口透视,Perspective of Banlou entrance

▼点楼单体透视,Point building monomer Perspective

▼点楼入口透视,Perspective of point building entrance

深灰色铝板与米白色石材在区域大片的山与湖之间营造冷色调的水墨感,清冷、精致、突出的同时亦成为承载居民生活最好的画布,人在山外观抑或人在画中游,主客难辨。
Dark gray aluminum plate and off white stone create a cold ink feeling between mountains and lakes in the region. It is cool, exquisite and prominent. At the same time, it has also become the best canvas to carry residents' lives. It is difficult to distinguish whether people are in the appearance of mountains or in the middle of paintings.
▼主楼典型细部,Typical details of main building

▼主楼标准段典型墙身,Typical wall body of standard section of main building

▼主楼入口细部,Main building entrance details

▼主楼入口典型墙身,Typical wall body at main building entrance

天阳杭州蔚蓝住区的设计,是将小社区置入更高的维度,创造一个友好复合高活力的外部环境,也是尝试在已知条件下,理性地剖析并扭转不利因素、因地制宜地组织景观与空间。跳脱于传统设计的关注范围,将生活行为作为最重要的设计对象,从而激发社区活力,为区域带去更有人情温度的趣味性。
The design of Tianyang Hangzhou azure residential area is to put the small community into a higher dimension and create a friendly, complex and dynamic external environment. It is also an attempt to rationally analyze and reverse adverse factors and organize landscape and space according to local conditions under known conditions. Jumping out of the focus of traditional design, taking life behavior as the most important design object, so as to stimulate the vitality of the community and bring more human interest to the area.
▼叙事轴测图,Narrative axonometric drawing


名 称:杭州天阳蔚蓝
业 主:天阳地产
地 址:杭州市临安区青山湖科技城
用地面积:33324㎡
建筑面积:86642.4㎡
建筑方案:AAI国际建筑师事务所
景观设计:T+M STUDIO 澜道佑澜
室内设计:杭州涵永环境艺术设计有限公司
照明设计:成都佐一照明工程设计有限公司
联合设计:深圳华森建筑与工程设计顾问有限公司
幕墙设计:浙江宝业幕墙装饰有限公司
仿石铝板供应商:丰丽、美泰尔
施工单位:杭州天和建设集团有限公司
运营单位(物业):天阳物业
业主设计师:高立、何溪峰、冯近
设计团队:Bill Fang、James Xie、Eric Yu、Shaw Shao、Limiao Ding、Yuxi Xing、Wei Wang、Elvis Bao、Vincent Chen、Kaidong Wu
建筑摄影:曾江河
Name: Hangzhou Tianyang azure
Owner: Tianyang real estate
Address: Qingshanhu science and Technology City, Lin'an District, Hangzhou
Land area: 33324 ㎡
Building area: 86642.4 ㎡
Architectural scheme: AAI International Architects
Landscape design: t+m studio LAN Dao you LAN
Interior design: Hangzhou Hanyong Environmental Art Design Co., Ltd
Lighting design: Chengdu Zoyi lighting engineering design Co., Ltd
Joint design: Shenzhen Huasen architectural and Engineering Design Consulting Co., Ltd
Curtain wall design: Zhejiang Baoye curtain wall decoration Co., Ltd
Supplier of imitation aluminum plate: Fengli, Mattel
Construction unit: Hangzhou Tianhe Construction Group Co., Ltd
Operating unit (property): Tianyang property
Owners and designers: Gao Li, hexifeng, Feng Jin
Design team: Bill Fang, James Xie, Eric Yu, Shaw Shao, Liao Ding, Yuxi Xing, Wei Wang, Elvis Bao, Vincent Chen, Kaidong Wu
Architectural Photography: Zeng Jianghe














