夹层公寓改造,英国 / Office Ten Architecture
每一个项目都是超越预期的机会。本次阁楼改造及整体重构工程将一间原本昏暗狭小的一居室公寓,转变为一处明亮、层次丰富的家庭住所。
Every project is an opportunity to go further than what is initially thought possible. This loft conversion and top-to-bottom reconfiguration transformed a dark, cramped one-bedroom apartment into a bright, multi-level family home.
▼项目概览,overall of the project

通过更换为节能屋顶,设计得以新增夹层空间,赋予居所戏剧性的空间变化。夹层之下,大面积天窗引入自然光,与深色材质形成鲜明对比,增强了空间的明暗对比与层次感。
By replacing the old roof with an energy-efficient one, we created space for a mezzanine level. This introduces a dramatic spatial variety, which is further enhanced by the contrast between dark materials and the natural light flooding through the oversized skylights.
▼入口玄关,entrance area

▼加层书房,study on the mezzanine


▼夹层,the mezzanine

▼细部,details

材料选择上,裸露的木材、混凝土板和粗糙抹灰,共同构建出一个丰富的肌理组合,强调光影在空间中的流动。三层分明的空间布局,使住宅从私密昏暗的底层,过渡到明亮开阔的顶层,顺应时间变化与四季流转,带来不断演化的生活体验。
The choice of materials, exposed timber, concrete panels and raw plaster, creates a palette of textures that emphasise the play of light and shadow across the home. With three distinct floors, the home now moves seamlessly from an intimate, moody lower level to a bright and expansive top floor, evolving with the time of day and the passing of the seasons.
▼餐厅,dining area

▼厨房,kitchen

▼室内一隅,corner of interior

设计灵感来自剑桥的Kettle’s Yard,通过划分多个小尺度空间营造出多样的空间感。由于建筑面积有限,每个房间仅分配所需的最小面积,但空间之间通过借用、重叠和视觉连通,使整套公寓远比其实际面积更为开阔灵活。
Inspired by Kettle’s Yard in Camebridge, spatial variety is created by a number of smaller rooms. Due to the small footprint, each room is given the minimum amount of space required. By allowing the spaces to borrow, overlap and be visually connected, the end result creates an apartment that feels much bigger than its size.
▼卧室入口,entrance of the bedroom

▼楼梯,staircase

▼卧室,bedroom


▼浴室,bathroom

▼细部,details

▼一层平面图,ground floor plan

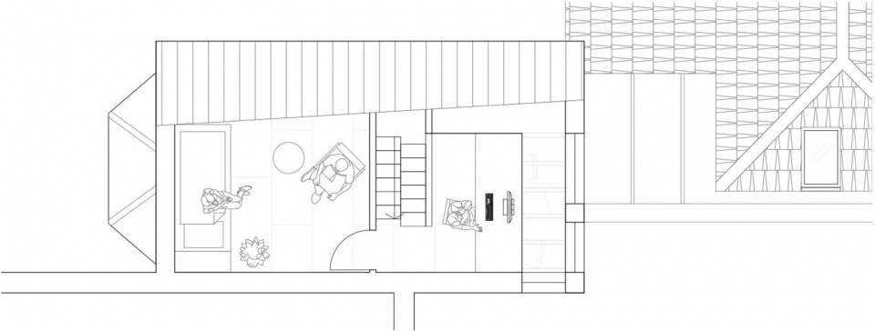
▼二层平面图,first floor plan

▼加层平面图,mezzanine plan

▼屋顶平面图,roof plan











