上海枫泾古镇朵云书院 / 尌林建筑设计事务所
枫泾古镇是一个处于吴越交汇之处的江南水乡古民居建筑群,在古镇核心区的中大街,有一处始建上世纪30年代,迄今已有近百年历史的近现代传统民居建筑——王槐庭老宅。王氏宅为砖木结构的三进合院式建筑,坐北朝南,紧邻中心老街的主道。朵云书院就位于此处,其室内空间改造依托原有递进式庭院格局,营造出深邃静谧的空间序列,书院的设计理念旨在为游人居人打造一处“闲窗听雨、独树看云”的“纸窗竹屋”,一个过去与今时人文记忆的保存处。
Fengjing Town is an ancient residential complex in the Jiangnan watertown region, located at the convergence of Wu and Yue cultures. On the Central Street in the town’s core area stands the Wang Huaiting Residence, a traditional modern-era building constructed in the 1930s, now nearly a century old. The residence is a three-courtyard brick-and-timber structure facing south, adjacent to the main thoroughfare of the old street. Duoyun Books sits right in the spot, with its interior renovation leveraging the original cascading courtyard layout to create a serene and layered space. The philosophy is to craft a “paper window and bamboo hut” where visitors can “listen to rain by the window and watch clouds under a solitary tree,” preserving the cultural memory of past and present.
▼场地鸟瞰,Aerial View of the Site

▼书院毗邻中心老街,The Bookstore Adjacent to the Central Street

▼书院主入口,Main Entrance of the Bookstore

▼景观庭院和辅房空间,Landscape Courtyard and Ancillary Spaces

▼二进垂花门,Ornamental Gate of the Second Courtyard

待修缮的百年民居 Century-Old Residence Awaiting Restoration
老宅在上世纪七八十年代曾经是枫泾文化站,后来慢慢空置了,未修缮前已处于濒危状态,其承重木结构体系存在老化、局部构件糟朽变形等问题;墙体亦出现开裂、倾斜、风化剥蚀等现象,整体结构稳定性面临严峻挑战。值得庆幸的是,内庭还保留着一棵郁郁葱葱的白玉兰树,成为场地内重要的历史空间记忆活态见证与独特的景观生态要素。
The old residence once served as the Fengjing Cultural Station in the 1970s and 1980s before gradually falling into disuse. Prior to restoration, it was in a precarious state: the load-bearing timber framework suffered from aging, partial decay, and deformation, while the walls exhibited cracks, tilting, and weathering, posing severe challenges to structural stability. Fortunately, a lush magnolia tree in the inner courtyard remained, serving as a living testament to the site’s historical memory and a unique ecological feature.
▼未修缮前现场,Site Before Renovation

▼原始场地鸟瞰,Original Site Aerial View

建筑主体为三进院落式布局形成了离散型空间单元。设计需在严格遵循最小干预原则的前提下——即完整保留传统木构架体系、原始墙体肌理及既有空间尺度——植入一个复合型文化商业空间,完成一个高密度藏书量、高峰值客流量、和多重内容空间运营需求的现代书店设计,如何合理去满足商业公共空间硬性规范以及整体空间连续性,是改造设计过程中的最需要关注的问题。
The main structure adopts a three-courtyard layout that creates discrete spatial units. The design must strictly adhere to the principle of minimal intervention – preserving the traditional timber framework, original wall textures, and existing spatial dimensions – while integrating a hybrid cultural-commercial space to realize a modern bookstore with high-density book storage, peak visitor capacity, and multifunctional operational requirements. The primary design challenge lies in properly addressing both the mandatory regulations for commercial public space and maintaining overall spatial continuity throughout the renovation process.
▼场地改造前后对比平面,Site Comparison Before and After Renovation (Plan)

▼轴侧拆解图,Exploded Axonometric Diagram

《小窗幽记》文学空间转译
Meditative Notes in Solitude
Ming-Dynasty Aphorisms on Cultivating Inner Tranquility
设计概念从枫泾明代文学家陈继儒所著《小窗幽记》为灵感切入点,通过对文学的抽离分析,希望人们可以在古镇老宅中的“径”“屏”“阶”“花”“石”“竹”“树”等等中获取丰富空间体验,实现可观、可游、可憩的漫步感受。在历史院落中实现文学驱动的场景营造,使访客在漫步式认知(Ambulatory Cognition) 中完成对江南文人美学的当代重构。
The design draws inspiration from Meditative Notes in Solitude, a Ming-dynasty literary work by Chen Jiru of Fengjing. Taking inspiration from the book, this project aims to immerse visitors in spatial experiences evoked by “paths,” “screens,” “steps,” “flowers,” “rocks,” “bamboo,” and “trees” within the ancient residence, creating a strollable environment for viewing, wandering, and resting. By weaving literature into the historical courtyard, the design facilitates an ambulatory cognition that reconstructs Jiangnan literati aesthetics for contemporary visitors.
▼文学空间转译,Literary Space Translation

场地主入口的两侧都是热闹的店铺,门外是游人如织、烟火气息,门内是静谧的书店,设计需要给予进入其中的人们一份暗示,一个连接喧闹与安静空间的心理过渡。跨过大门,走过斑驳的老石板桥阶,抬头便可望见停立在院中的白玉兰,低头是平静的水面倒影着天空。书店内部,考虑到建筑本身有三进院落的纵深,我们希望人们停留在中轴的时候,视觉可以延伸,门廊院之间没有阻隔,目光所及“园中有院,境中有景”,实现嵌套式景观序列,践行《园冶》” 隔而不绝,透而不断 “的空间哲学。
▼一进庭院改造前后对比,First Courtyard Before and After Renovation

▼一进室内改造前后对比,First Courtyard Interior Before and After Renovation

Flanking the main entrance are vibrant storefronts, where crowds and the hum of daily life fill the air outside, while tranquility reigns within the bookstore. The design must subtly guide visitors through this psychological transition—a bridge between clamor and calm. Crossing the threshold, stepping onto the weathered stone steps of the old bridge, one glances up to see the magnolia tree standing sentinel in the courtyard, while below, still water mirrors the sky. Inside, the building’s three-courtyard depth is orchestrated to draw the eye along the central axis, where sightlines flow unimpeded through gates, corridors, and courtyards. The nested landscape sequence embodies the Ming-dynasty treatise The Craft of Gardens: “partitioned yet unbroken, transparent yet continuous.” Here, “gardens cradle courtyards, and scenes unfold within vistas,” creating a layered spatial poetry.
▼一进入口老石板桥阶与白玉兰,Entrance Stone Steps and Magnolia Tree

▼一进室内空间,First Courtyard Interior Space

▼文创展台与天窗的关系,Relationship Between Creative Display Platform and Skylight

▼中轴的视觉延伸| 园中院,境中景,Visual Extension Along the Central Axis | Courtyard Within Garden, Scenery Within View

空间中,书架是构成空间结构内容的主体,梁柱与木构的书架相互穿插,家具构件与建筑结构亦是浑然一体。从传统木构榫卯结构转译出的语言重组出来的模块书架,与书架中间用宣纸肌理构成琥珀板的“屏”,形成虚实结合的叙事。 门厅中轴两侧放置着七个书台,从传统文人书案中转译出来,根据书籍的尺寸,同样以木构与定制的宣纸琥珀板为构成语言。
▼家具构件概念提取,Furniture Component Concept Extraction

▼家具构件拆分分析图,Furniture Component Exploded Diagram

The bookshelves form the primary structural framework of the space, where beams, columns and wooden shelves interpenetrate, with furniture components blending seamlessly into the architectural structure. The modular bookshelf system, derived from a reinterpretation of traditional mortise-and-tenon construction, incorporates “screens” made of rice paper-textured amber panels between shelves, creating a narrative that balances solid and void. On either side of the central axis in the entrance hall are placed seven reading desks, turned from traditional scholar’s writing tables. These desks employ the same design language of wooden construction and custom rice paper amber panels, proportioned according to book dimensions.
▼书架与琥珀板“屏”的衔接关系,Connection Between Bookshelves and Amber-Paper “Screen”

▼二进屏与文创展台、书架的关系,Relationship Between Second Courtyard Screen, Creative Display Platform and Bookshelves

▼从三进庭院看二进室内,View from Third Courtyard to Second Courtyard Interior

二进庭院的咖啡吧台和二进门厅的服务吧台,是由青绿色渐变金属和乌木色海棠木实木构成,书架中的格子内零星嵌入青绿色的金属框,并在每一格的灯带下的金属收条得以呼应。“结庐松竹之间”、“徙倚青林之下”,吧台背后古画的留白与书架序列空间表达形成呼应,大面积的留白是与后面影影憧憧的楼梯达成对话,这是一份属于江南水乡的只此青绿。二进的二层是供读者坐下休憩的区域,与三进室内空间通过一条连廊相接。
▼二进室内改造前后对比,Second Courtyard Interior Before and After Renovation

▼二进二层改造前后对比,Second Floor Before and After Renovation

The coffee bar in the second courtyard and the service counter in its entrance hall feature a composition of gradient turquoise metal and ebony-colored crabapple wood, with turquoise metal frames sporadically embedded in the bookshelf compartments and echoed by metal trims beneath each shelf’s lighting. The blank spaces of antique paintings behind the bar resonate with the bookshelf arrangement, while expansive negative space interacts with the shadowy staircase beyond, capturing Jiangnan’s distinctive turquoise aesthetic. The second floor of this courtyard serves as a reading lounge connected to the third courtyard’s interior via a corridor.
▼二进门厅服务吧台,Service Counter at Second Courtyard Entrance

▼亮灯后的二进室内空间,Second Courtyard Interior Space Illuminated

▼二进庭院咖啡吧台,Coffee Bar in Second Courtyard

▼二层休憩区,Second Floor Rest Area

▼二层休憩区局部空间,Detailed View of Second Floor Resting Area

▼二层局部空间光影,Light and Shadow in Second Floor Space

▼二进二层与三进连接,天光洒落,Connection Between Second and Third Courtyard with Natural Light

三进是精品典藏书籍的空间,中间的展示台与服务吧台是一脉相承的构成手法。走到二层,是一个复现当时上世纪60年代老一辈画家在此创作和生活的场景。我们用老式的书桌和上世纪七八十年代的旧物,复现了艺术家们当时的创作场景,同时也可以方便古镇的居民或是访客在此阅读自习空间使用。
The third courtyard houses a collection of rare and special edition books, with its central display counter and service bar following the same design language. Ascending to the second floor reveals a recreation of the 1960s studio where senior artists once worked and lived. Vintage desks and artifacts from the 1970s-80s faithfully recreate the artists’ original creative environment, while simultaneously serving as a functional reading and study space for both local residents and visitors to the ancient town.
▼三进一层,Third Courtyard Ground Floor

▼三进二层局部空间,Detailed View of Third Courtyard Second Floor

从二进庭院的小门可进入一片大的景观庭院,南侧抬升区域界定出咖啡休闲、展览空间等多重复合功能使用的半室外连廊空间,局部覆盖大尺度的可活动天幕系统,实现冬夏季节对室外温度的有效隔离,提升环境舒适性。在前场的景观植被区域,栽种了一棵大树,与一进的白玉兰相为呼应,也是这一片庭院的精神所在。此核心空间可灵活承载多种活动:如支帐篷露营、夏夜露天音乐会或怀旧电影放映等等,旨在营造一处激发社区活力和多重可能性发生的弹性场域。
▼景观庭院连廊区域改造前后对比,Landscape Courtyard Corridor Area Before and After Renovation

▼景观庭院改造前后对比,Landscape Courtyard Before and After Renovation

▼中庭活动可能性,Courtyard Event Possibilities

A small gate from the second courtyard leads to an expansive landscaped garden. The elevated southern area forms a semi-outdoor corridor space serving multiple functions including café lounging and exhibitions, partially covered by a large-scale retractable canopy system that effectively regulates seasonal temperatures for enhanced comfort. At the forefront of the landscaped area stands a grand tree, echoing the magnolia in the first courtyard and serving as the spiritual anchor of this garden. This central space flexibly accommodates diverse activities – from tent camping and summer open-air concerts to nostalgic film screenings – creating an adaptable venue designed to foster community vibrancy and endless possibilities.
▼傍晚庭院连廊场景,Evening Corridor Scene in Courtyard

▼连廊与天幕,Corridor and Canopy

▼庭院空间和休息区域的场景关系,Relationship Between Courtyard Space and Resting Area

建造过程 construction process
因为文物建筑需要提前修缮完成的缘故,书架在设计上则考虑模块预制化施工,工厂预制好构件,运输到现场搭建组装。柜体预制化需要前期与各专业对接反复沟通敲定模块的合理尺寸和安装方式以达成现场搭建的成功。
Due to the prerequisite restoration of this heritage building, the bookshelves were designed for modular prefabrication – with components factory-produced then transported for on-site assembly. This prefabricated casework system required extensive pre-construction coordination across disciplines to finalize optimal module dimensions and installation protocols, ensuring successful field implementation.
▼书架安装过程,Bookshelf Installation Process

▼施工过程沟通记录,Construction Communication Records

云至枫泾,在朵云书店里每一处驻足,都是与《小窗幽记》中生活场景的每一次相逢。在老宅门廊院空间中漫步、休憩、阅读中,给予人们一份独属枫泾江南水乡的诗意归属。
Clouds drift to Fengjing, where every pause within Duoyun Books becomes an encounter with scenes from Meditative Notes in Solitude. Wandering through the ancestral home’s courtyards, resting beneath its eaves, or reading in its corridors – each moment bestows that singular poetic belonging unique to Fengjing’s Jiangnan water-town essence.
▼总平面图,Master Plan

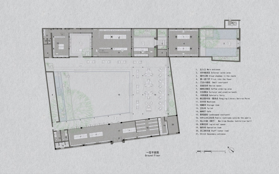
▼一层平面图,Ground Floor Plan

▼二层平面图,Second Floor Plan

▼屋顶改造平面图,Roof Renovation Plan

▼剖面图,Section

▼中庭活动可能性,Courtyard Event Possibilities

项目信息:
Project Information:
Project Name: Shanghai Fengjing Town Duoyun Books
Location: No. 193, Zhongda Street, Jinshan District, Shanghai
Client: Shanghai Fengjing Ancient Town Tourism Development
Operator: Shanghai Century Duoyun Cultural Development
Construction Contractor: Shanghai Langqiu Landscape Engineering
Design Firm: Shulin Architecture
Website: http://www.hzshulin.com/office.htm
Lead Architect: Chen Lin
Project Designers: Wang Jiaxin, Jiang Xinye, Tian Min, Zou Zipeng, Zhu Lan (Intern)
Soft Decoration Collaboration: White Steed Valley
Woodwork Contractor: Jiashan Juyou Wood Products Co., Ltd.
Project Type: Ancient Town Renovation
Design Period: April 2023 – August 2023
Construction Period: September 2023 – December 2023
Floor Area: 480㎡
Landscape Area: 850㎡
Structural System: Brick-Timber Structure
Construction Materials: Blue brick, reclaimed fir wood, butterfly tiles, Jinshan stone, paper pulp mortar, reclaimed stone slabs, crabapple wood, amber panels, metal plates, terrazzo, ceramic tiles, etc.
Architectural Photography: Yan Architecture – Zhao Sai, teiichi studio – Ding Yi
Video Production: teiichi studio – Ding Yi














