瓦隆戈住宅,葡萄牙 / Atelier Local
这是一座小房子,虽然看起来比实际更大,但对其居民的日常生活来说,任何必需的东西都不缺。从这个角度来看,它是一座所有房屋应有的样子。
This is a small house that feels larger than it is, yet lacks nothing essential for the domestic lives of its inhabitants. From this perspective, it is a house as all houses ought to be.
▼项目概览,Overall view

▼外观,Exterior view


通过一种类型学的探索,我们最终得到了一个设计,重新构建了房子,就像“原本的样子”——虽然是颠倒过来的。卧室位于楼下,安静地坐落在街道和一个宁静的院落之间,每个卧室都有各自的隐私度。入口大厅则以其独特的几何形状,提供了意外的可达性和一份难得的宽容感,这在这样规模的住宅中是少见的。主要的生活空间占据了整个上层,位于现有的斜屋顶下。这里,房子打开了最美的视野,增强了横向通风,并且通过石膏板制成的弦形吊顶使得天花板高度更为宽敞——这些吊顶是在现场偶然形成的,由工人们的双手塑造。
Through a typological journey, we arrived at a design that reconstructs the house much ‘as found’ — though turned upside down. The bedrooms lie below, nestled between the street and a quiet courtyard, each with its own degree of privacy. The entrance hall, with its eccentric geometry, offers a surprising accessibility and a rare generosity for a dwelling of this dimension. The main living space occupies the entire upper floor, underneath the existing pitched roof. Here, the house opens up to its best views, potentiates cross-ventilation, and a more generous ceiling height celebrated by plasterboard catenaries shaped on site — shaped on site by chance and by the workers’ hands.
▼户外环境,Surrounding context

▼入口通道,Entranced path

▼承重柱,Load-bearing columns

▼入口处,Entrance


在后方,沿着隔墙平行的楼梯是原始结构中唯一保留下来的部分。除此之外,只有石墙和木框架——地板和屋顶——仍然存在,并且状况相对良好。楼梯很脆弱,但其奇特的位置成为了设计的线索。由于其不稳固,它被替换了。其他的元素则保留并通过新设计得到了重新评估。现有的木材被重新粉刷,使得能够进行微妙的替换保养,并确保空间的连续性。
▼轴测图,axe

At the rear, a staircase running parallel to the party wall was all that remained from the original structure. Aside from it, only the stone walls and a timber frame — floor and roof — existed, both in relatively good condition. The staircase was fragile, yet its odd placement served as a cue. Because it was precarious, it was replaced. The other elements were kept and revalued through the new design. The existing timbers were painted, allowing for maintenance with subtle replacements and ensuring a continuous reading across the space.
▼回望入口,Looking back at the entrance

▼厨房,Kitchen

▼橱柜,Cupboard



几乎没有什么新东西被添加。下层,几面轻巧的隔墙勾画出了新的房间,每个房间大小相似。楼上,一个紧凑的基础设施核心隐藏了住宅的技术设备。现有的屋顶桁架现在支撑在一根新的坚固木梁上,这样便开辟了一个高窗,俯瞰着花园。一个轻盈的木质露台确保了空间之间的无缝连接。
Very little was added. On the lower level, a few light partition walls outline the new rooms, each of similar size. Above, a compact infrastructural core conceals the home’s technical utilities. The existing roof truss now rests on a new, robust timber beam, enabling the opening of a high-set window overlooking the garden. A light wooden terrace ensures a seamless connection between spaces.
▼屋顶结构,Roof structure


▼新的坚固木梁,The new robust timber beam


▼楼梯间,Stairs


施工图纸简洁明了。空间布局得到了保留,但与建筑工人的密切合作让一些即兴的创作时刻得以呈现,这些时刻是原设计中无法预见的。外部,露出了一面软木外立面,三根八角形的混凝土柱子是用回收模板浇筑的,还有一个混凝土水箱,以及一面镜面墙,映射着精心设计的花园,花园内有后现代风格的景观。
The execution drawings were minimal. The spatial arrangement was preserved, but the slow and close collaboration with the builders allowed for a series of improvised moments that would have never been foreseeable in the original design. Outside, one finds an exposed cork façade, three octagonal concrete columns poured using salvaged formwork, a concrete water tank, and a mirrored wall reflecting the beautiful garden designed with pomo landscapes.
▼楼梯细部,Stairs details


▼空间材质,Material details


就像这个项目本身一样,这座房子是务实和真诚的。它是一种原始的城市小屋,原本是作为度假屋设计,但却打算全年居住。
Like the project itself, the house is pragmatic and honest. A kind of primitive urban hut, conceived as a holiday home yet meant to be lived in all year round.
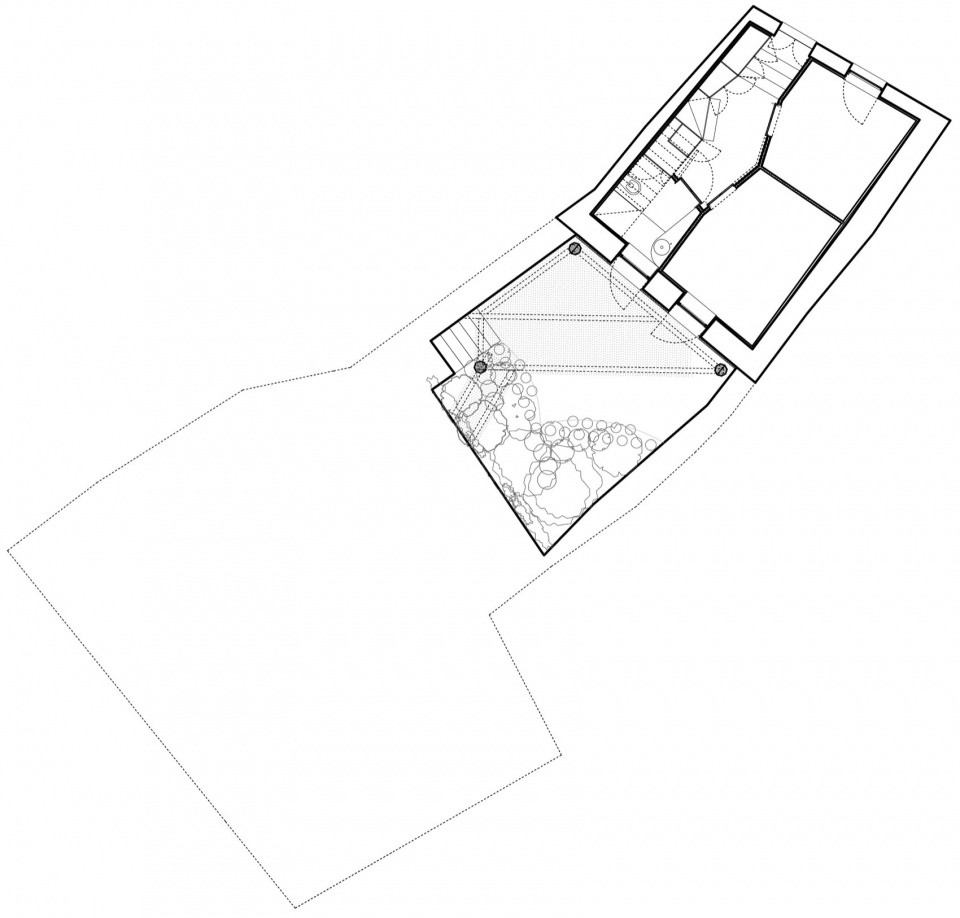
▼首层平面图,ground floor plan

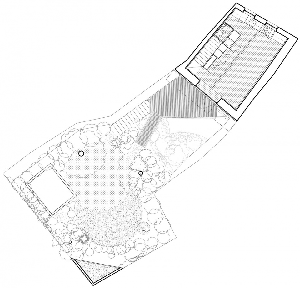
▼二层平面图,first floor plan

▼剖面图,section

CASA EM VALONGO / HOUSE IN VALONGO
project: 2023
construction: 2023 – 2025
location: Valongo, Porto, Portugal
architecture: atelier local
collaborators: João Paupério, Maria João Rebelo, Francisco Craveiro
landscape: pomo
gross floor area: 70 m2
images: ©Francisco Ascensão














