TEL AD办公空间改造,以色列 / BDM Architects + YET Architecture
TEL AD办公空间设计通过在原有结构内嵌入建筑体量,重新构想了办公空间的类型学。该项目位于一栋自然采光有限的翻新建筑内,设计引入了一个中央人工采光的庭院,重新定义了流线,同时通过材料的对比清晰地划分空间与功能。
The Tel Ad project reimagines the office typology by embedding architectural volumes within whithin the greater space. Situated in a renovated structure with limited natural light, the design introduces a central artificially lit patio , redefines circulation, and uses material contrasts to articulate space and function.
项目平面的核心是一个种植庭院——一个由人造光照亮的中庭空间,既是空间的轴心,也是氛围的锚点。由于建筑进深较大,自然光无法充分渗透,设计采用全光谱农业照明灯具,以确保全年绿植繁茂生长。环绕中庭的环形流线使人在空间中始终与绿色保持视觉连接,增强了办公动线的直观性与流动感。庭院不仅作为空间的组织核心,同时也对使用者的身心健康和工作效率起到积极影响。研究表明,相比传统封闭的办公室,绿色植物与动态光照可有效降低压力、提升专注度、带来视觉放松。项目采用了统一的水磨石地面、不锈钢细节与天然木饰面,贯穿整体设计语言。
At the core of the plan is a planted void—an artificial lit patio that becomes both a spatial and atmospheric anchor. Since the building’s depth prevents consistent access to daylight, the patio is illuminated with full-spectrum agronomical lighting, ensuring the growth of lush natural vegetation throughout the year. The circulation was redefined as a loop around this green core, offering constant visual connection to greenery and enabling an intuitive, fluid movement between workspaces. Beyond its spatial role, the patio plays a key part in supporting well-being and productivity: exposure to natural elements such as vegetation and dynamic lighting has been shown to reduce stress levels, improve focus, and provide visual relief compared to conventional windowless office environments. A consistent rhythm of terrazzo flooring, stainless steel accents, and natural wood finishes ties the entire project together.
▼项目概览,overall of the project

入口大厅Entrance Lobby
访客自二层进入,迎面便是一个与中庭形成双重关系的入口大厅。木质格栅吊顶悬浮于其上,球形灯具以棋盘格阵列排列,呼应了庭院中植被的规则布置。入口区域及相邻的会议室共同围合出中庭,强化了其作为核心空间的地位。中庭在此既起到流线引导的作用,又成为一面半透明的“屏风”,既为会议室提供了隐私,又允许访客隐约感知另一侧空间。正交体量、开放吊顶与框景植被之间的相互作用,构建出冷静、有序的第一印象。
The main arrival point on the second floor is defined by a double-sided spatial relationship with the patio. A wooden ceiling grid floats above the entrance lobby, with spherical lighting elements placed symmetrically in a checkerboard layout that mirrors the logic of the interior garden. This space, along with the adjacent meeting room, envelops the patio from both sides, reinforcing its centrality. The green core not only anchors the circulation but also serves as a semi-transparent screen—providing privacy for the meeting room while subtly suggesting views toward the entrance. The interplay between orthogonal volumes, open ceiling structures, and framed vegetation establishes a calm yet structured first impression.
▼入口大厅,entrance lobby

▼等候区,waiting area

▼由大厅看办公区,viewing the office area from the lobby


办公立方体Office Cubes
办公室被设想为一系列独立的“立方体”,每个高 3 米,悬浮于 5 米高的整体空间中,顶部留有明显空隙。该缝隙产生了一种体量漂浮于大空间中的视觉效果。这些“立方体”外部包覆拉丝不锈钢,反射并捕捉环境光;内部则完全包裹以温润的漂白天然木饰面,营造出静谧且富有触感的工作氛围。这种独立体量强化了项目中“围合与开放、轻盈与厚重、公与私”的二元张力。
The offices themselves are conceived as autonomous “cubes,” each 3 meters high and detached from the 5-meter ceiling. This deliberate gap creates a striking volumetric condition: the feeling that each office floats within a larger architectural envelope. The cubes are clad in brushed stainless steel, which catches and reflects ambient light. In contrast, their interiors are entirely wrapped in warm bleached natural wood, providing a quiet and tactile atmosphere for focused work. These detached volumes reinforce the project’s duality between enclosure and openness, lightness, and weight, Public and private.
▼走廊,hallway


▼办公室被设想为一系列独立的“立方体”,offices are conceived as autonomous cubes

▼办公区,offices

▼走廊,hallway

▼细部,details




▼茶水间,tea/coffee area



▼多功能壁龛,multifunction niches


▼会议室,meeting room


▼办公室,office area

▼办公室,office area

▼细部,details





厨房与阳台Kitchen and Balcony
厨房作为空间布局中的另一个关键节点,被精心构建。原本封闭的阳台被重新打开,使自然光可进入厨房与邻近的数据中心楼梯间,为本应昏暗的区域带来通透感。厨房内部所有立面均包覆不锈钢,配以红色天花与绿色水磨石地面,构成强烈的色彩对比。厨房岛台上方悬挂着一件由 YET Fab 打造的 3D 打印定制灯具,其形态来源于有机几何,为工业感强烈的空间增添一抹雕塑性与实验气质。
The kitchen is another key node in the spatial logic of Tel Ad. A previously sealed balcony was reopened, allowing daylight to enter from the exterior and into both the kitchen and an adjacent data center staircase. This intervention introduces light into otherwise closed-off areas, reinforcing the project’s commitment to daylight access. The kitchen itself is composed entirely of stainless-steel cladding on all vertical surfaces, paired with a red ceiling and green terrazzo flooring—creating a bold, chromatic composition. A custom 3D-printed lighting fixture, fabricated by YET Fab, hangs above the kitchen island. Its form is derived from organic geometry and adds a sculptural, experimental layer to the otherwise industrial space.
▼厨房,kitchen

▼3D 打印定制灯具,3D-printed lighting fixture


▼红色天花板与绿色灯具,red ceiling with green light features


▼细部,details



能量墙与材料系统Power Wall and Material System
项目中央核心体块外部围绕着一圈“能量墙”,在视觉上将各个办公立方体串联统一。这面墙由为本项目专门开发的定制混凝土砖构成,为空间赋予节奏、层次与触觉厚度。结合水磨石地面、可旋转的混凝土幕墙砖、不锈钢包覆与丰富的室内木作,整个材料系统呈现出一种平衡且协同的美学逻辑,每一种材质都承担结构、界面或感官体验上的明确角色。
A continuous “power wall” envelopes the building’s core, visually uniting the office spaces along its length. This wall is clad in custom-developed concrete tiles produced specifically for the project, adding texture, rhythm, and material depth. Together with terrazzo floors, rotating concrete facade blocks, stainless steel cladding, and extensive interior woodwork, the material palette operates as a carefully balanced system—each element defining a role in structure, surface, or sensation.
▼项目中央核心体块外部围绕着一圈“能量墙”,the continuous “power wall” envelopes the building’s core



▼墙面由定制混凝土砖构成,the wall is made of custom-made concrete bricks


TEL AD项目以“氛围组合”的方式来构建办公场所:工业与自然、开放与围合、明亮与厚重,彼此交织。通过空间分离、精确细部与鲜明的材料识别性,该设计将一座受限的老建筑转化为一个层次丰富、动态变化的办公环境。
Tel Ad proposes an office as a composition of atmospheres—industrial and organic, open and enclosed, luminous and grounded. Through spatial separation, precise detailing, and a strong material identity, the project transforms a constrained structure into a layered, dynamic workplace.
▼墙面细部,details of the wall



▼细部,details


首层空间:大厅与立面Ground Floor: Lobby and Facade
建筑的一层作为空间与概念的“门槛”,入口大厅引导访客步入主材质语汇体系:水磨石地面、定制灯具与精致细节,共同构筑仪式感。建筑立面由可旋转的混凝土模块构成,采用参数化逻辑排列,能随时间变化调整光影,在外观上呈现出雕塑感和动态性。这些模块为项目特别设计与定制,空与实的节奏在立面上形成一种“运动中的静态”。底部内嵌花槽,使刚硬的网格语言被自然绿意柔化,内外呼应中庭的植被意象,与城市语境无缝衔接。
The ground floor of Tel Ad serves as both spatial and conceptual threshold. A new entrance lobby introduces visitors to the core material palette through terrazzo flooring, custom lighting, and refined detailing. The building’s facade features a dynamic array of rotating concrete blocks, arranged parametrically to modulate light and shadow throughout the day. These sculptural units were custom-designed and fabricated for the project, forming a rhythm of solid and void that gives the facade a kinetic, ever-shifting quality. Built-in planters at the base soften the grid’s geometry and echo the interior patio’s vegetation, seamlessly tying the building to its urban context.
▼首层入口大厅,ground floor entrance hall


▼卫生间,toilets

这种“二元性”贯穿整个项目:外立面是一层坚硬外壳,由混凝土、不锈钢与水磨石构成;而内部空间则完全不同,安静、温暖,充满木质包裹感。外在的理性秩序与内部的柔和亲密,在金属与木之间展开张力对话,也正是本项目所追求的——在精准与温度之间建立有意义的张力与共存关系。
This duality continues throughout the project: the exterior reads as a hard shell—defined by concrete, stainless steel, and terrazzo—while the interior spaces reveal an entirely different atmosphere. Behind the reflective and structured outer surfaces, the contents of the office volumes are warm, quiet, and lined entirely in wood. This contrast between metal and wood, exterior and interior, establishes a deliberate tension between precision and softness, enclosure and intimacy.
▼外立面,facade





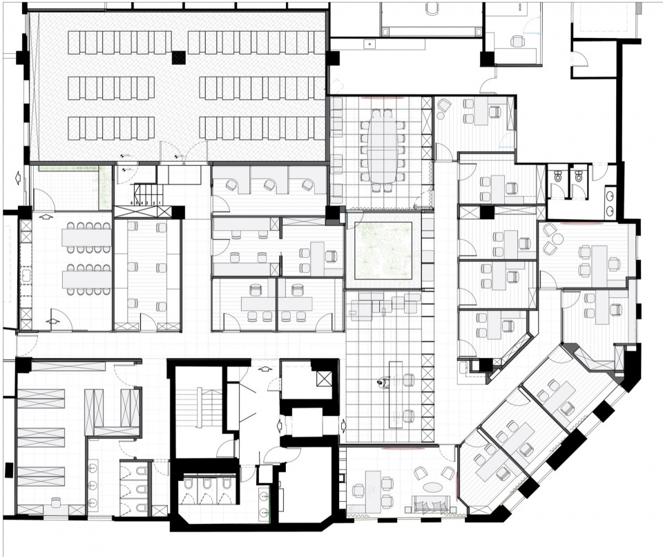
▼平面图,plan

TEL AD
Design / Architecture: BDM Architects + YET Architecture
Architects: Eran Binderman, Anastasiya Kotler, Ilya Kotler
Client: Tel Ad Ltd
Project manager: Daniel Stav, Shai Alaluf
Contractor: Fixman-ltd
Lighting Design: Dori Kimhi
Landscape Design: Ganan al Hagag
Furniture: Waxman
Glass: Innovate
Concrete tiles: Tidhar Design Elimelech Ltd.
Completion year: 2025
Area: 845 m2
Location: Kfar Saba
Photographer: Oded Smadar
Videographer: Ruslan Yudovski














