坡上住宅,波兰 / 77 Studio
这座住宅的故事和其设计理念与波兰最长、最美的河流——维斯瓦河——密不可分。在河岸边,有一个特定的位置,可以欣赏到远处河流的全景、沿岸的植被以及远处城市的轮廓。
The story of this house and its concept is inseparably connected with the Vistula – the longest and most beautiful river in Poland. On its bank, there was one specific place offering a unique view of the distant panorama of the river, the riverside vegetation, and the silhouette of the city in the background.
▼项目鸟瞰,Aerial view of the project


未来的屋主曾多次前往这个地点。在一处泥土高地上,他拥有自己最喜欢的观景点,俯瞰维斯瓦河。他的梦想是在这个确切的位置建一座住宅,能够每天欣赏这壮丽的景色。于是,他将设计任务委托给总部位于华沙的77 Studio建筑事务所。
The future owner of the house visited it often. On an earthen ledge, he had his favorite viewpoint over the Vistula. His dream was to build a house in this exact spot, one that would allow him to enjoy the spectacular landscape every day. He entrusted the design task to the Warsaw-based 77 Studio architecture studio.
▼项目鸟瞰,Aerial view of the project

▼项目鸟瞰,Aerial view of the project

最有趣的景观视角是相对于河流呈一定角度展开的,这促使设计师将建筑进行了旋转。因此,建筑并未与地块边界平行布置。这一朝向使得从屋内望出去的视野得以完整捕捉坡地的轮廓、植被与基底,并与宽阔的维斯瓦河景融为一体。
The most interesting landscape frames opened slightly obliquely in relation to the river, which led the designers to rotate the building accordingly. As a result, the house is not positioned parallel to the plot boundaries. This orientation made it possible to capture the view from inside the house of the full profile of the slope with its vegetation and base, completed by the wide ribbon of the Vistula.
▼建筑与周围景观,Building and surrounding landscape



▼建筑嵌入坡地之中,embedding the building in the slope

这一决策得到了周边环境的支持:邻近一座体量庞大、传统风格的住宅,使得在同一高地上建造一座凸出地形、与其竞争、破坏整体秩序的新建筑并不合适。
The decision was supported by the surroundings: a large, traditional neighboring house discouraged creating a new form protruding above the terrain, competing with it and introducing disorder on the same promontory.
▼建筑嵌入坡地之中,embedding the building in the slope


▼保留坡地的自然状态,restore the natural status of the slope


在这片上升的草地中,设计师“切割出一条生锈的钢铁沟壑”,形成通往一个小型庭院的车道和入口。住宅的入口位于此隐秘的空间中,低于地面水平,进入前看不到壮丽景色,而正因如此,穿越门槛后所见的维斯瓦彼岸与坡地风景反而更加震撼。
In the rising meadow, the designers “cut a rusty, steel ravine” forming the entrance and driveway to a small patio where the entrance to the house is located. A quiet place was created, situated below ground level, which does not announce the exceptional view revealed after crossing the threshold. Thanks to this, the carefully studied frame of the slope and the areas on the other side of the Vistula becomes even more powerful.
▼切割出一条生锈的钢铁沟壑,“cut a rusty, steel ravine”

▼住宅入口,entrance

住宅的设计尽量减少对坡地自然形态的干预。从河岸望去,仅有一条纤细的檐线切割坡地,轻轻勾勒出景观的水平线。建筑进一步嵌入坡体之中,与地形的自然形态融为一体。这种方式让建筑隐于绿意之中,不会遮挡他人观赏维斯瓦全景的视野。为了进一步降低其在自然中的存在感,建筑整体覆以绿色屋顶。
The house was designed to interfere as little as possible with the natural shape of the slope. From the riverside, the escarpment is cut only by a thin cornice line, gently accentuating the horizontal line of the landscape. Further, into the slope, the building penetrates the earth structure and fits into the natural morphology of the site. This solution allows the architecture to hide in the greenery and not obstruct the view of the Vistula panorama for others. To further reduce the perception of the building in the landscape, the entire structure is covered with a green roof.
▼通往小型庭院的入口,the entrance to a small patio

为确保良好的采光,并将绿意引入室内,设计在坡地中设置了若干小型庭院。为了强化伪装效果,院中种植的植物皆为河流周边自然生长的本地物种。出于同样原因,住宅没有设置围栏,仅以野生灌木围合,构成自然的边界屏障。
To ensure good daylight and introduce greenery into the interior, small patios were designed in the slope. The intended camouflage effect was reinforced by using plant species naturally found near the river. For the same reason, the house has no fencing. This function is fulfilled only by wild shrubs forming a natural barrier around the property.
▼小型庭院,the small patio

建筑的立面与车道边界采用耐候钢板包覆。为维持建筑整体形式的统一,自动车库门隐藏于立面板材之后。
The building’s façades and the edges of the driveway are clad with corten steel panels. To maintain a unified building form, the automatic garage doors were hidden behind façade panels.
▼采用耐候钢板包覆,clad with corten steel panels

▼采用耐候钢板包覆,clad with corten steel panels


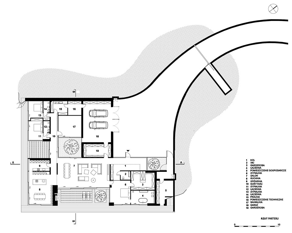
这是一座单层住宅,建筑面积近450平方米,布局非常清晰明了。大部分起居空间都被布置在景观最优的位置。在东南侧,是一间宽敞的起居室,直通大露台,并可眺望令人屏息的河景全景。一扇12米宽的自动滑动门使得人们在不离开客厅的情况下便可亲近自然。主卧及其卫浴设于附近。在西南侧,还有两间卧室。餐厅与厨房位于建筑南侧的角落,光照充足,极为宜人。这样的布局配合全景玻璃窗,让居民在穿行于住宅各处时始终能将维斯瓦尽收眼底。
The single-story house, with an area of almost 450 square meters, has a very clear functional layout. Most of the living spaces were positioned to provide the best exposure to the landscape. On the southeast side, there is a large living room with direct access to a spacious terrace and a breathtaking view of the river panorama. A 12-meter-wide automatic sliding door allows for contact with nature without leaving the living room. A bedroom with a bathroom is located nearby. On the southwest side, there are two more bedrooms. The dining room with kitchen was placed on the southern side, in a perfectly sunlit corner of the house. This layout with panoramic glazing allows residents to move through the house without losing sight of the Vistula even for a moment.
▼可眺望令人屏息的河景全景,a breathtaking view of the river panorama

为降低对环境的影响,建筑采用了可再生能源系统、智能化建筑管理系统,并通过遮阳装置、挑檐等被动设计策略,减少对空调系统的依赖。
The building’s environmental impact is reduced through the use of renewable energy solutions, building automation, and passive measures such as sun breakers and cornices that help limit air conditioning usage.
▼夜景,night view



▼场地平面,site plan

▼平面图,plan

▼剖面图,section















