洛书幼儿园及河图中学,上海 / GOM高目建筑
跟马列维奇一样,高目一直最爱正方形,从最早的公司网站设计开始,正方形和九宫格就成为很多设计的起点。无论德富路中学还是河图洛书亭,再到阡集创社区的小方楼,设计都是在潜移默化的正方形情结中开始的。
Like Malevich, GOM has always had a special affection for the square. From the earliest website designs to projects such as Defu Junior High School, the Hetu Luoshu Pavilion, and the Small Square Building in Change Community, all design originates from an innate obsession with squares.
▼马列维奇,Malevich

在奉贤区多次投标教育建筑多次无果的多年以后,终于在某一天我得到了奉城镇的设计邀请,一个24班初中加一个15班幼儿园,不投标是委托设计。倍儿感意外的我除了感恩,也只有感慨了。高目被委托设计的惯常做法是做两个方案,一个激进些,一个平稳些,这样跟甲方之间也有缓冲区。高目多年的经历也使自己定位清晰,不做那种强势输出个人意愿的建筑团队,但坚守底线。
After years of unsuccessful attempts in bidding for educational projects in Fengxian District, I was unexpectedly invited one day to design a 24-class middle school and a 15-class kindergarten in Fengcheng Town. With no bidding involved, it was a direct commission. Beyond gratitude, all I could feel was a sense of quiet relief. GOM’s usual approach to design is to prepare two schemes—one more radical, one more restrained. It also serves as a cushion in client communication. Over the years, I have become clear about my position: I am not the kind of architect who insists on imposing personal will, but I do hold to certain principles. Interestingly, during the first presentation, the principals of both schools favored the radical scheme, but once it reached the education bureau, the calmer version was chosen.
▼幼儿园轴测对比,Kindergarten axonometric contrast

▼方案阶段二选一,Choose one of the two options in the scheme stage

有趣的是,方案开始首轮汇报的时候,校长和园长都挺喜欢激进的方案(上图右),而到了教育局长那里,则被改选了平稳方案(上图左)。选中方案的外形均和正方形有关,因为没有行列式的前置思维,所以在搞定所有布局关系和规范并高效组织交通的情况下,形成正方形完形是大概率事件。在规划用地图中教育建筑的基地形状也大多是长方形,所以去掉必要的活动场地和操场后,剩下的基地与正方形也比较容易契合——当然,一个建筑师想给自己的偏好找理由也是不难的。
▼总平面图,Site plan

The final scheme still relates closely to the square. Without any preconceived formal agenda, the square naturally emerged once all layouts, codes, and circulation were resolved efficiently. Since most school plots on planning maps are rectangular, once playgrounds and open spaces are set aside, the remaining footprint often fits well into a square. Of course, an architect can always find reasons to justify a preference.
▼项目鸟瞰,aerial view of the project



幼儿园的空间组合是将一个标准“洛书”布局进行旋转与倒角处理,本文就暂时将其命名为洛书幼儿园;初中的围合布局也能牵强的与“河图”的围合结构联系起来,本文就暂时将其命名为河图中学(设计师自取而非官方)。
▼幼儿园轴测图,axonometric for the kindergarten

The kindergarten was organized through a rotated and chamfered version of the classic “Luoshu” grid, so I named it the Luoshu Kindergarten. The middle school’s enclosing layout loosely recalls the structure of the “Hetu,” so I called it the Hetu Middle School—my own titles, not official ones.
▼项目鸟瞰,aerial view of the project

洛书幼儿园如此设计是为了弥补以前在重庆被糟蹋掉的一个方案的遗憾,这个在以前的一篇文章中写过(九宫幼儿园)。不同的是,在重庆的日照规范中,正东和正西是可以满足国家规范的,但在上海则需要扭转30度才能满足上海日照规定,这也给设计创造了特点。正如我以前说过,设计的起点决定形式的边界。
▼轴测图,axonometric

The Luoshu Kindergarten was also a way to compensate for a lost design in Chongqing (the Nine-Square Kindergarten). Unlike Chongqing, where east–west orientation met daylighting codes, in Shanghai regulations required a 30° rotation, which gave the project a unique feature. As I’ve often said, the starting point of a design defines its formal boundaries.
▼项目鸟瞰,aerial view of the project

河图中学的方案初衷是想营造一个大院子,所有的功能围绕着大院子展开。在课间非运动状态下,大院子可以成为学生的活动和互视的场所,毕竟吗,初中了,男生通过打闹吸引女生关注,女生假装高冷却在偷瞟帅哥的地方还是不能太小。但是,院子里的景观不是我想要的方案,但建筑师得迁就绝大部分人的平均审美,同样的事情也当然发生在了室内设计。
The Hetu Middle School began with the idea of a large courtyard around which all functions would be arranged. Outside of physical education, this courtyard could serve as a stage for student life—where boys draw attention by roughhousing and girls feign indifference while sneaking glances. Yet, the courtyard landscape and much of the interiors were adjusted toward broader tastes, as architects must often concede to collective aesthetics.
▼项目鸟瞰,aerial view of the project

两座建筑位于奉城老镇的北侧,浦南运河边,向东南可以遥望著名的比丘尼道场万佛阁。
这次建筑的外墙采用了最近比较喜欢的质感涂料,和好用的金属穿孔板。依旧是白色,开始的时候在幼儿园的内墙试过彩色内透的效果,但是一位审美还不错的园长说,白色就挺好。这次有个心结的突破,就是跟墙裙和解了,不似德富路中学的那般固执。但,洛书幼儿园的墙裙按照设计意图用了小砖拼贴,而河图中学则依照甲方意愿用了大砖,导致与很多地方的交接及分缝都不顺畅。我们也渐渐学会了如何放过自己,如果甲方和总包强势要用的材料不太灵,我们一般只反对一次,若他们继续坚持,我们则妥协。
Both schools sit on the north side of Fengcheng Old Town, along the Punan Canal, with views toward the renowned Wanfo Pavilion. For the facades, I used textured coatings and perforated metal panels—materials I have grown fond of—still primarily white. Early attempts with color in the kindergarten’s interiors were set aside after the principal wisely remarked that white was best. This project also marked a reconciliation with wall bases: at the kindergarten, small bricks were used as intended, while at the middle school the client insisted on large bricks, creating some awkward junctions. We’ve since learned to let go—if the client and contractor insist, we object once, then compromise.
▼中庭环形走廊,Atrium circular corridor


▼环形走廊,circular corridor


与德富路中学的那个时代(2010)相比,当下校舍的标准提高了很多,单在校舍面积上就几乎大了50%。而且所有房间都要装空调,我们看到德富路中学后来加装的空调外机是有些难过的,在扼腕之余,果断的超标设计了本次项目的外机位,同时容纳空调外机、消火栓、落水管——设计一个容错率较高的方案和醉拳一样的弹性控制是一个生存法则。
Compared with Defu Junior High School (2010), today’s standards have risen significantly: school buildings are nearly 50% larger, and every room requires air conditioning. Seeing the clumsy later additions of AC units at Defu was frustrating, so here we deliberately oversized the equipment space, integrating AC units, hydrants, and downpipes into a single, flexible design. Survival, in design as in martial arts, lies in controlled adaptability.
▼德富路中学,Defu Junior High School

这次的洛书幼儿园和河图中学的位置恰好在一个跨河道引桥(还未施工)的北侧,虽然按照常规考量它俩的对外交通条件极差,但这给学生接送永远交通拥堵的世纪难题提供了一个解题办法。就是桥下掉头车道可以容纳大量车辆,且与主线交通没有任何关系。这倒是给规划部门提供了一个以后规划划地的思路。
The site lies just north of a future bridge. While its current traffic conditions seem poor, this in fact provides a solution to the age-old congestion of school drop-offs: the under-bridge turnaround can hold many cars without affecting main roads. Perhaps this suggests a useful approach for future planning.
▼项目场地鸟瞰,Aerial view of the site environment


由于对外交通的条件太差,洛书幼儿园与河图中学各退红线一些距离形成一个共用支路,并共享幼儿园活动场地下方的地下车库。河洛之间,和睦相处,求同而存异。
Due to site constraints, both schools set back slightly from the street, sharing a common service road and an underground garage beneath the kindergarten’s playground. Between Luo and He, the two coexist in harmony, seeking unity while preserving difference.
▼洛书幼儿园与河图中学之间形成一个共用支路,both schools sharing a common service road

两座建筑的入口都不气派,而且是故意不气派,这个能说服大家是审美与心态的进步。
Neither entrance is grand, and deliberately so—a sign of aesthetic and psychological maturity.
▼建筑入口,building entrance

▼建筑入口,building entrance

施工过程中,河图中学北侧有一个钉子户,里面住着一个90几岁的老太太,她家的围墙已经处在学校操场范围之内。听经常去现场的同事说,每次相关部门去找她的时候,都被老太太轮着拐杖赶走。最后据说是给了不少钱,答应不拆房,只拆她家部分围墙让学校围墙避开跑道能拉直就行。祝老人家健康长寿。
During construction, a “nail house” stood on the north side of the middle school: a ninety-year-old woman whose wall encroached into the playground. Each time officials approached, she reportedly chased them off with her cane. In the end, she was well compensated, and only her wall—not her house—was removed, allowing the school’s track to run straight. May she live long and well.
▼洛书幼儿园,Luoshu Kindergarten



▼洛书幼儿园鸟瞰,Aerial view of the Luoshu Kindergarten


▼洛书幼儿园弧形立面,Circular facade of the Luoshu Kindergarten


▼洛书幼儿园屋顶空间,Roof space of the Luoshu Kindergarten


▼河图中学,Hetu Middle School


▼金属穿孔板和质感涂料构成的立面,Facade composed with metal perforated panel and texture paint

▼户外体育场,Outdoor gym

▼金属穿孔板和质感涂料构成的立面,Facade composed with metal perforated panel and texture paint



▼体育馆外观,Building exterior of the Gym


▼屋顶空间,Rooftop space

▼楼梯空间,Staircase space

▼楼梯空间,Staircase space


文章虽然写得洋洋洒洒,但我还没有去过这个项目的工地——降低生气的可能性也是一种养生之道。
Though this article may sound expansive, I have not yet visited the site myself—sometimes avoiding anger is also a way of preserving one’s health.
▼项目鸟瞰,Aerial view of the project

▼幼儿园一层平面图,Ground floor plan

▼幼儿园二层平面图,First floor plan

▼幼儿园三层平面图,Second floor plan

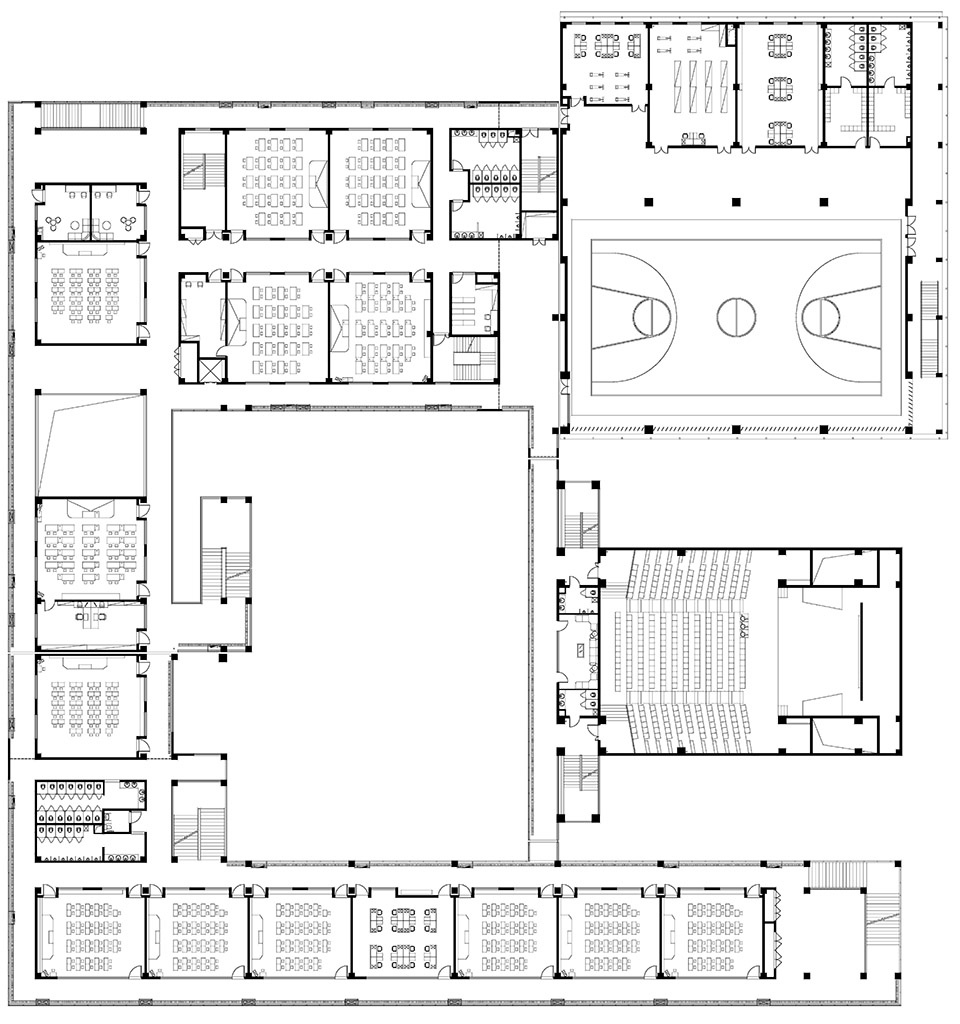
▼中学一层平面图,Ground floor plan

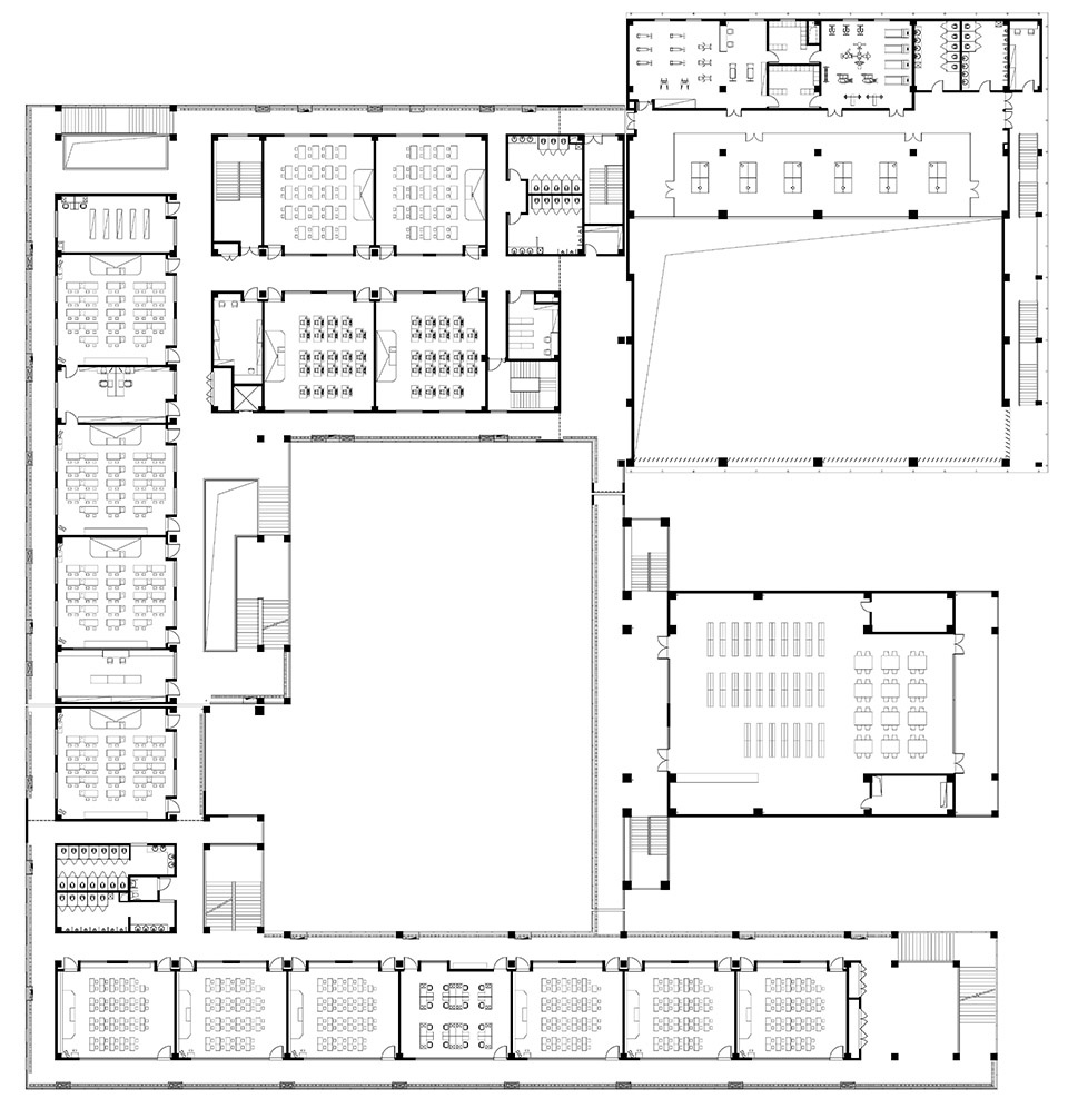
▼中学二层平面图,Second floor plan

▼中学三层平面图,Third floor plan

▼中学四层平面图,F ou floor plan

Project name: Jin Xin Kindergarten of Fengxian District, Shanghai
Project typology: 15-Class Kindergarten
Project location: Fengpu East Road, Fengxian District, Shanghai
Design period: December 2021 – December 2024
Completion year: August 2025
Client: Education Bureau of Fengxian District, Shanghai
Architect’ Firm: Atelier GOM
Lead Architect: Zhang Jiajing
Design Team: Xu Wenbin, Yi Bowen, You Lizhong, Shu Yang
Collaborators: S.H.K. Urban Construction Planning & Design Co.
Project Manager: Jin Xiao
Architecture: Jin Xiao
Structure: Han Xiujuan
Plumbing: Zhou Rongrong
MEP: Song Xiaoning
Site Area: 8,456 m²
Gross Built Area: 9,725 m²
— Above-ground: 6,988 m²
— Underground: 2,737 m²
Project name: Shuguang Junior High School of Fengxian District, Shanghai
Project typology: 24-Class Junior High School
Project location: Fengpu East Road, Fengxian District, Shanghai
Design period: December 2021 – May 2024
Completion year: August 2025
Client: Education Bureau of Fengxian District, Shanghai
Architect’ Firm: Atelier GOM
Lead Architect: Zhang Jiajing
Design Team: Xu Wenbin, Zhao Ruilan, Zhang Qicheng, Xu Cong, Wu Zijing, Pan Yingjia
Collaborators: S.H.K. Urban Construction Planning & Design Co.
Project Manager: Jin Xiao
Architecture: Jin Xiao
Structure: Han Xiujuan
Plumbing: Zhou Rongrong
MEP: Song Xiaoning
Site Area: 22,615 m²
Gross Built Area: 18,182.45 m²














