SWR广播大楼,德国 / Steimle Architekten
开放、透明与责任——这是当今媒体世界的期望,同时也反映在南西广播公司(Südwestrundfunk,新媒体中心)新媒体中心的设计与布局中。
Openness, transparency and responsibility – expectations of our media world that are also reflected in the design and formulation of the new media centre for Südwestrundfunk.
▼外观概览,Exterior view


位于曼海姆北城区尼卡河(Neckar)河口桥头的新SWR演播室建筑,以“开放与透明”的姿态呈现。在新的Schafweide街区开发中,这座自信的独栋建筑以醒目的高度成为序幕,同时在城市空间中调和其与周边邻居的关系。与此同时,SWR建筑凭借其显著的位置,在街区内的过往交通中也具有重要的视觉存在感。
At the bridgehead of the Neckar crossing in Mannheim’s Nordstadt district, the new SWR studio building presents itself as an “open and transparent” building. Within the new Schafweide neighbourhood development, the self-confident solitaire forms the prelude in the form of a striking high point and mediates between its various neighbours in the urban space. At the same time, the SWR building also makes a significant appearance within the neighbourhood for passing traffic with its prominent location.
▼隔岸远观,Viewing from across the river

▼建筑近景,Close view

▼建筑立面,Facade


▼立面近景,Facade close view

街区前的城市广场不仅履行了城市规划功能——连接开放空间并将街区向以老树为特色的尼卡河河岸开放——更应被理解为一个互动平台,提供“制作广播”的观察空间。结合广场一侧的咖啡厅与户外露台,日常演播室生活与公共空间的界限变得模糊。四周采用玻璃幕墙,并以垂直铝制柱状饰条分割的立面,使人们能够无阻碍地观察广播站的昼夜活动,同时也将媒体工作者与其周边环境紧密相连。
The town square in front of the quarter not only fulfils its urban planning function of connecting open spaces and opening up the quarter to the banks of the Neckar, which is characterised by its old trees. Rather, it is to be understood as an interactive platform that offers a space for insights into “making radio”. In combination with the casino and the outdoor terrace facing the square, the boundaries between everyday studio life and public space become blurred. The façade, which is glazed all around and structured by vertical aluminium pilaster strips, provides an unobstructed view of the broadcast station’s day and night activities and, conversely, connects the media players with their immediate surroundings.
▼铝制柱状饰条分割的立面,Vertical aluminium pilaster strips

▼广播工作室,Broadcast studio



▼办公空间,Office space



整栋建筑共六层,约60名员工负责为听众提供全面报道与最新信息。建筑体量通过两层高的凸出与凹入部分塑造出雕塑感。在广场层,这些体量形成了主入口和咖啡厅的有顶前庭。由于建筑体量的偏移,第四层设有面向西北方向的城市阳台。根据建筑体量,可将功能划分为三大区域,对应三层体块:前两层为公共空间——大堂、咖啡厅、会议中心;中间两层为媒体建筑的核心——办公桌与演播室,占据整个平面;上方两层则为行政办公。办公区与工位在“开放空间”与单元办公室间灵活组织,以适应不同的布局需求。多处空中空间与开放式楼梯连接各楼层,并结合开放交流区,保证多媒体工作流程的顺畅。
On a total of six floors, around 60 employees feel responsible for providing comprehensive reporting and up-to-date information for their listeners. The building volume is formed by projections and recesses extending over two storeys, which give the building its sculptural effect. At square level, this creates a sheltered, roofed forecourt for the main entrance and casino. The fourth level is given an elevated city balcony facing both west and north due to the building offset. In line with the building cubature, the uses can be divided into three areas analogous to the three storey packages. The first two floors are reserved for communal uses – foyer, casino, conference centre. The centrepiece of the media building, with the desk and studios, is located on the two middle floors, which occupy the entire floor plan area. The administrative uses are located on the two floors above. The pool area and office workstations vary between “open spaces” and cellular offices based on the oportunity of flexible organisation of the areas. Various air spaces and open staircases connect the floors with each other and, together with the open communication areas, ensure a multimedia workflow.
▼办公空间中的螺旋楼梯,Spiral staircase

▼窗边休闲空间,Window leisure space

▼窗边休闲空间,Window leisure space

▼楼梯,Stairs

无论从外观还是内部,SWR项目都散发出活力媒体建筑的特质,而这座独立建筑通过其城市设计在新街区中牢牢地扎根。
Both from the outside and from the inside, the SWR project radiates the character of a lively media building and the solitary structure anchors itself in the new urban quarter through its urban design.
▼项目区位,site plan

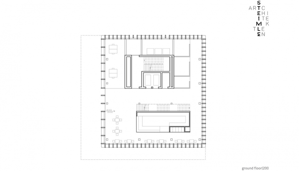
▼首层平面图,ground floor plan

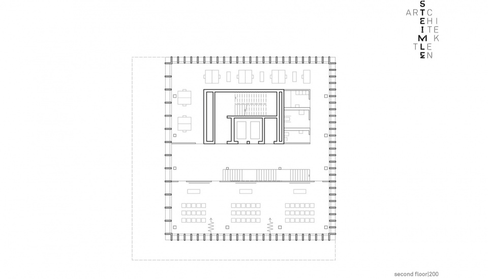
▼2层平面图,second floor plan

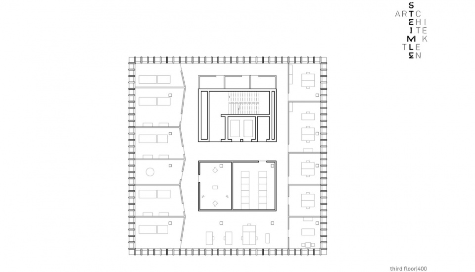
▼3层平面图,third floor plan

▼4层平面图,fourth floor plan

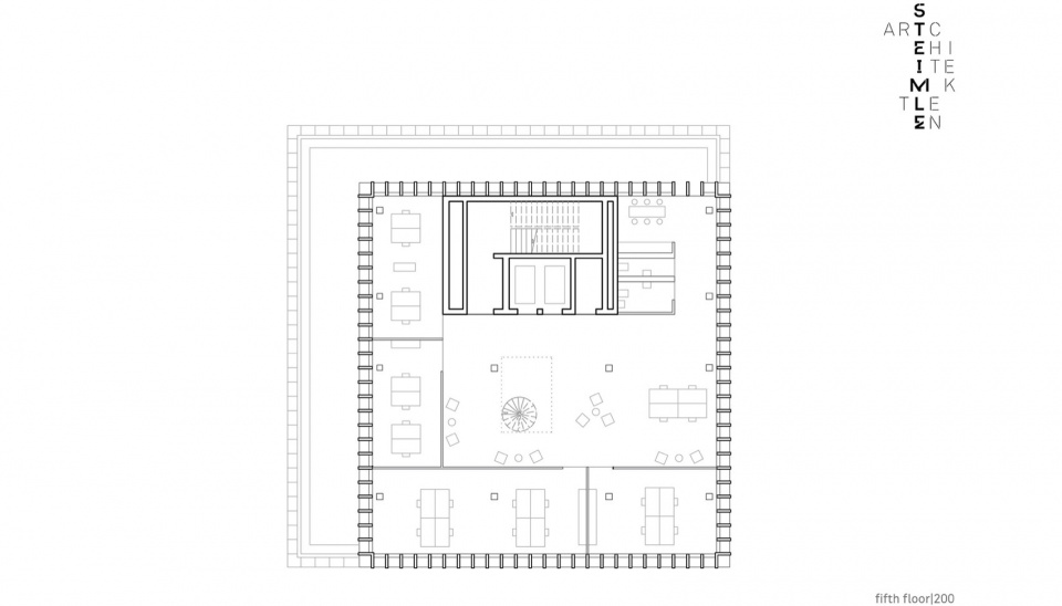
▼5层平面图,fifth floor plan

▼6层平面图,sixth floor plan

▼剖面图,section

PROJECT: SWR Broadcasting-Studio Mannheim-Ludwigshafen
ARCHITECT / STUDIO: STEIMLE ARCHITEKTEN BDA Dipl.-Ing. Arch. Thomas Steimle
ADRESS: Marktplatz 6+10
70173 Stuttgart
PHONE: +49 711 2804 100 10
WEBSITE: www.steimle-architekten.com
CLIENT: Südwestrundfunk Stuttgart
USER / OPERATING COMPANY: Südwestrundfunk Studio Mannheim-Ludwigshafen
PHOTOGRAPHER: Brigida González
ADRESS: Liststraße 28/1 70180 Stuttgart
PHONE: +49 711 64560720
WEBSITE: www.brigidagonzales.de
GFA/ AREA: 4.710 m2
GBV/ VOLUME: 20.650 m3
CONSTRUCTION: massiv, reinforced concrete
FACADE: aluminium-panel-construction aluminium transom/mullion construction
LOCATION: Hermann-Heimerich-Ufer 2
68167 Mannheim, Gemany
COMPLETION: 04/2024














