Split house住宅,西班牙 / Feina Studio
纪念性Monumentality
The Split House坐落于帕尔马一片低密度而紧凑的街区,周边以带庭院的排屋为主。该地区于20世纪初兴建,用以容纳本地产业工人的住房需求。随着成千上万的工人自乡村向城市迁移,排屋成为普遍的住房解决方案。然而,街区中也点缀着一些属于工头与业主的中产别墅,其纪念性的尺度与华丽的立面常由本地工匠精心打造,营造出如城市宫殿般的氛围,呈现出超越日常的居住体验。
The Split house is located in a low and dense neighbourhood of the city of Palma, with predominant row houses with patios. The area was built to accommodate the workforce of the local industries of the early 20th century. Workforce are documented in the region of thousands, defining an industrial zone within the city fabric. Accommodating such a large workforce required a large housing solution, as the migration from the countryside to the city was already beginning. Simple row houses were the common solution, but the area is also dotted with a typology of bourgeois villas for foremen and business owners. With their monumental proportions and ornate façades, they often involved local artisans to recreate the sense of urban palaces, where elevated living stepped out of the ordinary.
▼住宅外观概览,Overview of the house exterior

The Split House旨在通过其立面语言与城市尺度,融入并回应这份纪念性的建筑肌理。
The Split house aims to contribute to this network of monumental buildings, through the language of the façade and urban proportions.
▼临街立面,street-facing facade

▼临街立面细部,street-facing facade detail


场地适应性
场地适应性
Adaptation
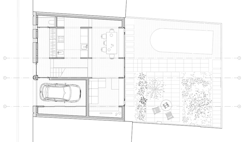
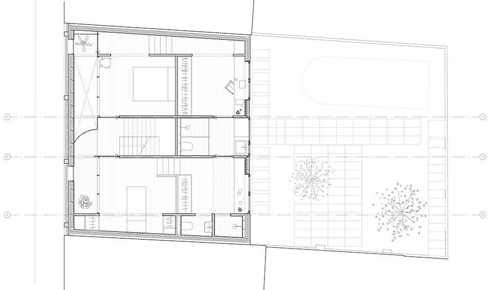
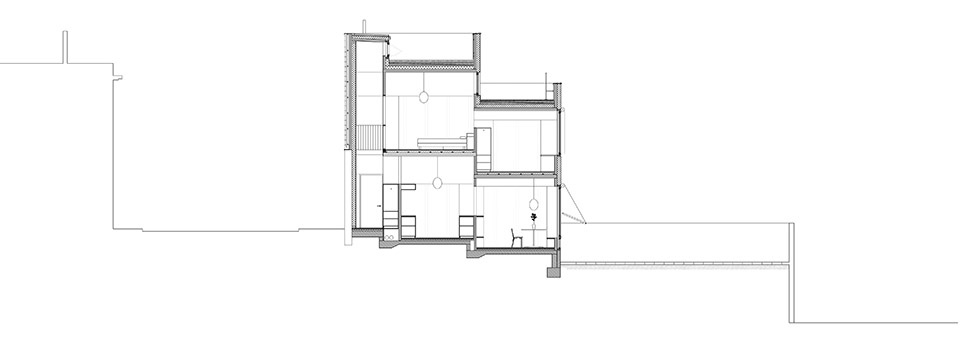
基地整体朝向大海连续下坡,从街道到后立面形成约1.4米的高差。The Split House通过逐层下沉的平台式首层应对这一地形,形成一条步步延展的“下行漫步道”,串联街道与庭院。这一剖面策略在上层空间得到镜像呼应,形成两组不同标高,从而将住宅“分裂”为两个层次,同时创造新的立面,将南侧光线引入室内。
▼剖透轴测图,section axonometric

The topography of the entire area slopes continuously towards the sea, having to deal with level changes within the plot. There is a drop of 1.4 m from the street to the rear façade. The Split House progressively adapts to this level condition by stepping the ground floor, with a series of platforms of different levels, like a descending promenade, connecting the main street with the courtyard. This section is mirrored on the upper floor, composing two different levels that “split” the house, creating new facades where the light from the south is brought inside.
▼庭院立面,courtyard facade


▼庭院细部,courtyard detail


系统构造
Systems
我们将建造视为一系列相互关联、具备不同工业化程度的系统。采用 CLT(交叉层压木)意味着深入研究并理解这一工业木构体系的内在规律。
▼结构轴测图,structure system

We understand construction as a series of interconnected systems with different degrees of industrialization. Working with CLT, for us, is a deep dive into industrial wood systems with their own rules and characteristics that we must fully understand.
▼交叉层压木天花板,ceiling composed with CLT

▼交叉层压木天花板,ceiling composed with CLT

由于规范限制建筑进深,墙体厚度被压缩以最大化室内空间。CLT 允许形成纤薄的单层墙体,并在室内保留木材肌理。外立面采用天然软木板包覆东侧,而临街立面则以木材呈现。
While building regulations only allow for a shallow building depth, wall thickness is minimized to maximize interior build area. CLT allows us to develop thin, single-layer walls, where the wood would be exposed on the inside. The facades are clad with natural cork panels, on the east façade, while timber is used to the street.
▼厨房空间,kitchen space

▼厨房空间,kitchen space

▼厨房局部,kitchen detail


资源与可持续性
Resources
项目在资源利用上着重优化,优先采用木材与软木等生物基材料,以降低建造及运营能耗。施工中共使用了58立方米木材,相当于储存52吨二氧化碳。建筑在气密性围护结构的执行上尤为关注,以尽可能减少运营能耗。
Efforts have been made with resources, maximizing the use of bio-based materials such as wood and natural cork to create constructive solutions that minimize the consumption of incorporated and operational energy. For the construction of the Split house, 58m3 of wood were used, achieving a storage of 52Tn of CO2. Special attention has been paid to the execution of the air-tight envelope in order to reduce operational energy to a minimum.
▼楼梯间,staircase space


▼中庭空间,atrium space


空间与色彩
Space-color
室内空间以“香草冰淇淋”色调为基底,覆盖在裸露木材之上,以凸显其肌理;同时在部分区域引入饱和色彩,作为点缀性的装饰细节,强调角落与特定空间氛围。整体色彩选择带有客户的个人偏好与设计师的主观表达。
Most of the spaces are defined by an atmospheric “vainilla ice-cream” colour paint which covers the exposed timber while enhancing its texture. Other parts are complemented by the use of saturated color to emphasize certain corners and areas of the rooms. Colours are used as an extravagant filigree and are the result of a subjective preference chosen together with the client.
▼二层卧室,bedroom on the upper floor

▼色彩作为点缀性的装饰细节,colours are used as an extravagant filigree



▼一层平面,ground floor plan

▼二层平面,first floor plan

▼剖面,section


Type: Single family house.
Location: Palma. Mallorca, Spain.
Architect: Feina Studio. Aina Salvà + Alberto Sánchez.
Structural engineer: Otherstructures.
Building engineer: Antonio Mora.
Builder: Ecomallorca passivhaus.
Kitchen: Tallat de lluna.
Windows: Fusteria Galmés.
MATERIALS:
Teracotta: Huguet
Cork façade: Amorin
Timber structure: CLT by KLH.
Timber main façade: Lunawood
Exterior paint: Keim
Interior brands:
Tiles: Huguet
Sofa, beds outdoor furniture: Hay
Chairs: Artek
Interior lamps: Santa & Cole
Electric switches: Hager Berker
Ironmongery: FSB
Exterior blinds: Bandalux














