归栖梦所:江山度假木屋,衢州 / Nota建筑设计工作室
对于许多离乡求学、投身都市的人而言,人生的转折点往往唤起一种渴望:渴望更从容的生活节奏,和对心属之地的回归向往。我们的设计委任者,一位来自浙江江山的中年男士概莫能外。在杭州生活工作二十余载后,他寻找的不只是一处周末疗愈居所,而是一方可终老的精神原乡——归栖即新生。
For many who have left their hometowns in pursuit of education and urban careers, life’s turning points often stir a quieter yearning—for a slower rhythm, and a return to a place of belonging. Our client, a middle-aged man from Jiangshan in Zhejiang Province, was no exception. After more than two decades living and working in Hangzhou, he began to search not simply for a weekend escape, but for a lifelong retreat: a dwelling where habitation becomes a form of renewal.
▼项目鸟瞰,Aerial view of the project

这栋临溪而坐、建于1975年的夯土农舍,虽经年荒置近乎倾颓,却自蕴一份宁静而耐人寻味的气息。初次造访时,我们在溪水边的石头上,倾听了纷纷的“乡愁”——儿时的故事、每每归来的念想、“采菊东篱”的美好……面对空置祖屋的无奈。所谓祖屋,是农耕田舍的普遍型制——人居和牲圈合为一体——中文“家”字的构成渊源。祖屋承载了共同的记忆,是乡亲的精神寄托。能否把现代住居品质带来祖屋?如何吸引年轻的后辈回来?新的生活方式会是怎样?是否有可持续的方式归园田居?设计工作始于对从这些问题的探讨。
▼建筑改造前后对比,Before & After

▼结构体系,Structural System

Perched beside a stream and built in 1975, this rammed-earth farmhouse—long abandoned and nearly in ruins—still holds a quiet, intriguing charm. On our first visit, we sat on stones by the water, listening to the “Nostalgia” talk: childhood tales, longings on each return, the idyllic beauty of “picking chrysanthemums by the eastern hedge”… and the helplessness felt towards the empty ancestral home. This archetype of rural dwelling, where human quarters and livestock shelters share a single roof, is a form that echoes the very etymology of the Chinese character for “home” (家). It holds within it the family’s collective memory and spiritual anchor. Could the refinement of modern living find its way into such walls? Could it beckon the younger generation back? What kind of new lifestyle it might be? And could there be a sustainable way to the pastoral dream? These questions became the starting point of our design.
▼改造及扩建后,After Renovation&Extension

原建筑中牲圈和厕所的三分之一体量被移除,取而代之的是一座胶合木(Glulam)木屋——上海设计、芬兰预制、江山建造——作为主人的私人起居。一条廊道贯穿整栋建筑,冥想似的串联新旧空间:远端保留的老屋主体被修缮为客房与家族聚会的堂屋。毗邻木屋的较小木结构是主体木屋的延伸,兼具厨房与餐厅,四周果树菜畦环抱,定制的厨房布局宜于中西结合的多样化烹饪需求。两座木结构体量通过抬升的碳化木平台连为一体,深邃的紫调涂装源自主人已故母亲钟爱的颜色——记忆被轻轻的融于新居。手工打造的胶合板定制家具、柔和的木蜡油松木墙面与特别设计定制的软装搭配共同营造出轻松温暖的居家氛围;在书房与餐廊等空间,跃动的色彩与明快的布艺与窗外的绿意一起,带来愉悦的生活逸趣。
One-third of the original building, the livestock and toilet volume, was removed and replaced with a Glulam Log House—designed in Shanghai, prefabricated in Finland, and built in Jiangshan—intended as the owner’s private living space. A corridor threads through the architecture like a contemplative path, connecting old and new: on the far side, the old house was restored to accommodate guest rooms and family gathering spaces. A smaller timber extension—housing the kitchen and dining room—rests adjacent, surrounded by fruit trees and vegetable plots, and designed to accommodate flexible culinary rituals. The two timber volumes, unified by a raised thermal wood terrace, are painted in a deep purple—a hue favoured by the owner’s late mother, gently anchoring memory to place. The combination of handmade plywood furniture, soft tones of painted pinewood walls, and custom-made room furnishings make for a relaxing and warm home. Colourful accents and cheerful upholstery in the study and dining lounge, along with the lush green view, bring joys to everyday life.
▼木屋立面,Facade of the Timber House

▼胶合木木屋-起居空间,Glulam Log House-The Living Space

▼胶合木木屋- 楼梯与书架墙,
Glulam Log House-Stairway with Bookshelf Wall

▼胶合木木屋- 起居空间,Glulam Log House-The Living Space

▼餐厨空间,Kitchen & Dining space


▼堂屋-客房 II 及中廊,
The Old House-Guest Room II with the Central Corridor

▼堂屋-中廊卫生间,The Old House-Bathroom at the Central Corridor

▼堂屋-通往木屋的中廊,
The Old House-the Central Corridor to Timber House

▼胶合木木屋-主卧看向中庭,Glulam Log House-Master Bedroom View to the Atrium

堂屋,木屋,餐厨,三座建筑体量均融入了传统中国院落住宅的基因,在各自的场景以不同的语言再现。主卧室的对开移门通向光线漫溢的中庭,将视线引向田野与溪流。经过重新演绎的「美人靠」轻倚其间,框取晚日与高林。早餐时分,远山轮廓与竹林群落化作一幅活态画卷——是对苏州园林「借景」手法的当代致敬。
Echoes of traditional Chinese courtyard houses are embedded across all three volumes, each articulated in distinct scenarios. From the master bedroom, sliding doors open to a light-washed atrium, leading the gaze toward the fields and stream. A softly crafted and reimagined Beauty-Lean Balustrade frames the view, welcoming the late sun and the woods. At breakfast, distant mountain ridges and stands of bamboo become a living scroll—a homage to the Suzhou Gardens’ borrowed views.
▼胶合木木屋-主卧看向中庭,Glulam Log House-Master Bedroom View to the Atrium

▼胶合木木屋-主卧,Glulam Log House-Master Bedroom

▼餐厨-长窗框景,Kitchen & Dining-View of the Long Window

堂屋的中轴线上新增了一处天窗,为中庭注入自然光。昔日置架农具的空间序列经重新规划呼应原有的韵律,同时夯土墙得以保留、修复,并以当地工艺重新粉饰。堂屋正墙中央,一段原始的粗粝夯土墙被保留并被框为圆形“古画”,唤起故所新生的意象。堂屋入口外立面亦按原貌重建,室内立面采用了气密封闭的现代门框做法。门框和门都使用了热改性碳化木,并以复古木插销作为闭合方式。房间内的双向移窗同样采用胶合木制作,以本土传统移窗样式为基础,成为调控自然光的诗意媒介。
A new skylight now punctuates the central axis of the old structure, bathing the atrium in natural light. The spatial configuration has been carefully reorganized to resonate with its ancestral cadence for farming tools, while preserving the rammed earth walls—meticulously restored and finished with vernacular techniques. At the focal center of the hall, a segment of original rough earth wall has been artfully framed within a circular vignette, evoking the new life of the past. The entrance portal maintains its traditional exterior expression, while incorporating contemporary door frames on the interior face. Both doors and frames are crafted from thermal wood, accented with vintage-style wooden crossbar latches for closure. The glulam sliding windows, inspired by indigenous window traditions, serve as poetic mediators of daylight for the rooms.
▼堂屋-客厅,The Old House-Hall

▼堂屋-天光下的客厅沙发区,
The Old House-The Hall Lounge under Skylight

▼堂屋-保留的夯土墙被框作画,业主的旧地毯被回收用于沙发区,
The Old House-Earth Wall Framed at the Hall,
Lounge with Reused Carpet from the Client

▼堂屋-入口立面,The Old House-Entrance Facade

▼堂屋-入口内侧,The Old House-Entrance from interior

▼堂屋-胶合木结构与移窗,
The Old House-Glulam Structure with Sliding Windows

▼胶合木木屋-主卧,Glulam Log House-Master Bedroom

▼胶合木木屋-主卧看向卫浴,Glulam Log House-Master Bedroom View to the Bathroom

▼胶合木木屋-客厅水吧台,Glulam Log House-Pantry of The Living Space

▼胶合木木屋-书房休憩 ,Glulam Log House- Study Room Lounge

▼堂屋-楼梯,The Old House-Stairway

江山度假木屋并非对往昔的简单复刻,而是一处当代生活与中国传统价值的融合之所。它是对古老智慧的致敬,亦是对中国当代乡居中的在地性、亲生命与可持续生活方式共焕新生的探索。
Jiangshan Timber Retreat is not a reconstruction of the past, but a home where contemporary life could coexist with traditional Chinese values. It is a tribute to ancient wisdom, and an exploration of what vernacular, biophilic, and sustainable living might mean for the Chinese countryside today.
▼堂屋-客房 II 及中廊,The Old House- Guest Room II with the Central Corridor

▼田野视角,View form the Fields

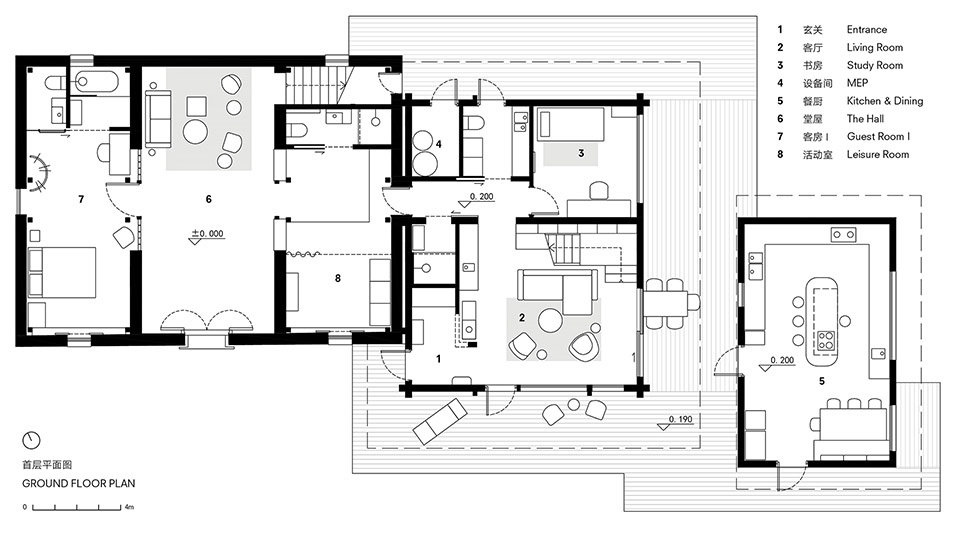
▼首层平面图,Ground floor plan

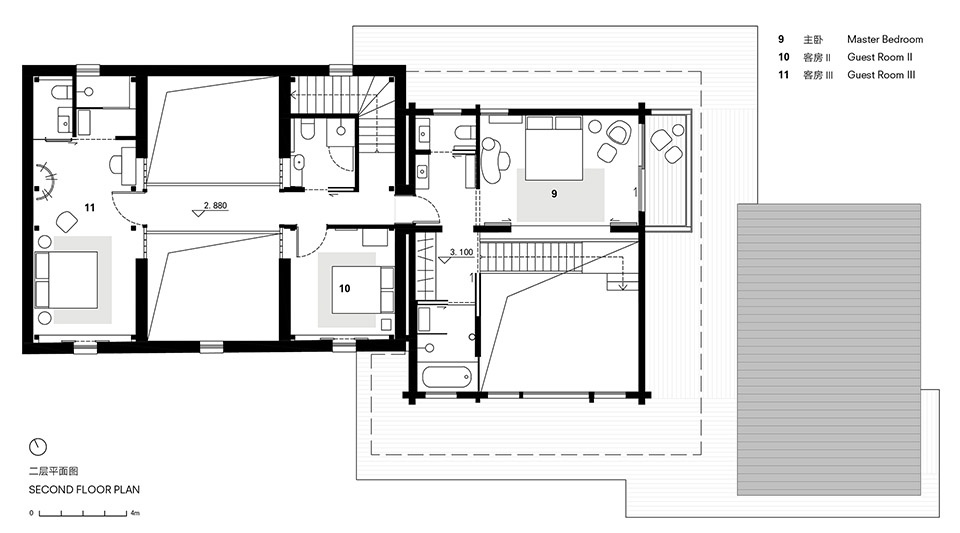
▼二层平面图,Second floor plan

Project name:Jiangshan Timber Retreat
Project type:Architecture/Interior/Landscape
Design:Nota Architects
Website: http://www.notaarchitects.com
Contact e-mail: media@notaarchitects.com
Lead architect: Shiyun Qian
Design Team: Xiang Gao, Jiachen Zhou, Yanran Duan, Yiwen Yuan (intern), Jingkun Cao(intern), William Sivali Liongso(intern), Olivia Li(intern)
Structural Consultant: iStructure
Lighting Consultant: Yingzhe Lighting Consultancy
Photographers: Shan Liang, Shiyun Qian
Project Address: Xinqun Village, Shimen Town, Jiangshan, Quzhou, Zhejiang, China
Completion Time: June 2025
GFA: 354㎡
Site Area: 1400㎡
Main Contractor: Shanghai Kexiang Decoration and Renovation Co., Ltd.
Timber House Contractor: Honkarakenne Oyj, Jiguang Wood Design Studio
Old House Structure: Suzhou Greenbond Architectural TechnologyCo., Ltd.
Fit-out Furniture: Shanghai Yangyu Construction Decoration Co., Ltd.
Timber House Materials: Honka Non-settling Crosswise Laminated Pine Log, AkzoNobel Exterior Wood Paint, Lasita Glass Doors and Windows, Lappiporras Solid Pine Stairs, Kahrs Three-Layer Engineered Wood Flooring, Sveza Birch Plywood, Woca Wood Oil, Ceramiche Caesar Tiles, Gedeng WPC Flooring, Silent GlissCurtain Tracks
Terrace Decking: Lunawood Thermowood Decking and Thermowood Columns
Old House Materials: Seves Czech Textured Glass Blocks, Grabo Three-Layer Engineered Wood Flooring, Nine Degree Ceramic Tiles, Teknos Timantti Waterproof Paint, Formica Surell, Häfele Hardware
Furniture: &Tradition, Artek, Bolia, Frandsen, Ferm Living, HAY, Herman Miller, Ikea, Montana, Muuto, Normann Copenhagen, Santa & Cole, Sika, Verpan, Vitra
Curtain & Upholstery Fabrics: Gabriel, Johanna Gullichsen, Parallel, Leliya Curtains














