长沙智谷·数字空间站 / 地方工作室 + 湖南大学设计研究院有限公司
该设计通过结构上的大胆创新与文化共鸣的有机结合,重新构想了技术架构。以“浮石”这一隐喻为核心,它挑战了工业建筑类型学,通过悬挑创造出公共空间,象征着数字时代摆脱物理限制的独立性。一种混合结构——混凝土核心筒和钢桁架——解放了地面平面,营造出一个下沉式的“第三空间”,在这里,光、水和人类活动之间自发地进行着互动。内部,折叠的几何形状和裸露的构造材料将原始材料(混凝土)与瞬息万变的反射(张拉网格板)并置,将技术材料性与诗意抽象性之间进行调和。该项目超越了功能决定论,将空间视为社交互动的可变舞台,将工业资产(工厂、物流枢纽等)与日常生活相融合。
The design reimagines technological architecture through a critical synthesis of structural audacity and cultural resonance. Centered on the “Floating Stone” metaphor, it challenges industrial typologies by creating public space through cantilevers, symbolizing the digital age’s detachment from physical constraints. A hybrid structure—concrete cores and steel trusses—liberates the ground plane, creating a sunken “third space” that hosts spontaneous public interplay between light, water, and human activity. Internally, folded geometry and exposed tectonics juxtapose raw material (concrete) with fleeting reflections (tensioned mesh), mediating between technological materiality and poetic abstraction. This project transcends functional determinism and regards space as a variable stage for social interaction, integrating industrial assets (factories, logistics hubs and so on) with daily life.
▼项目概览,Overall view


该项目位于世界计算·长沙智能谷产业园内,这是湘江科学城走廊中的一个关键节点,是推动华中地区数字经济发展的核心所在。其紧邻各大科技园区、研究中心以及交通要道(包括长张高速公路、许广高速以及地铁网络),置身于一个充满活力的创新生态系统之中,与人工智能、大数据和 5G 等计算产业协同共生。该场地平坦的地形和现有的基础设施反映了该地区快速的工业化进程,而没有历史或生态方面的限制因素使得结构实验成为可能。该设计响应了园区以人为本的创新使命,通过在悬挑的弧形屋顶下方打造一个公共“城市客厅”,将高密度生产区域与缺乏活力的公共空间之间进行连接,营造出一种共享的氛围。
The project is strategically located within the World Computing·Changsha Intelligent Valley industrial park, a key node in the Xiangjiang Science City corridor, which anchors the evolution of Central China’s digital economy. Its proximity to major tech campuses, research hubs, and transport arteries (including the Changzhang Expressway and Xuguang Expressway and metro networks) embeds it within a dynamic ecosystem of innovation, synergizing computational industries like AI, big data, and 5G. The site’s flat topography and existing infrastructure reflect the area’s rapid industrialization, while the absence of historical or ecological constraints allowed structural experimentation. The design responds to the park’s mission of human-centric innovation by creating a communal “urban living room” beneath the cantilevered Arc-shaped roof—mediating between high-density production zones and lacking of vibrant public spaces.
▼全景鸟瞰,Ariel view

限制条件 Constraints
该场地四周环绕着高密度的科技园区,缺乏适合年轻科技专业人士使用的公共社交空间。以往城市规划缺乏此方面的考虑,高密度的产业布局给创造体验上的多样性带来了挑战。长沙智谷产业园属于工业地产开发项目,而数字空间站作为非盈利性质项目,需要考虑节地与避免过多占用容积率,造成可盈利面积的浪费。
The site is surrounded by high-density technology parks, lacking public social spaces suitable for young tech professionals. Previous urban planning failed to take this aspect into consideration, and the high-density industrial layout posed challenges in creating diversity in experience. The Changsha Intelligent Valley Industrial Park is an industrial real estate development project, while the Digital Space Station is a non-profit project. It needs to consider land conservation and avoiding excessive occupation of floor area ratio, which would result in waste of profitable area.
▼周边环境,Sourrounding context

困境与机遇 Challenges and Opportunities
在仔细研判相关建筑法规后,体量架空以“偷”容积率成为解决途径。架空层不计容积率,这样在占地面积不变的情况下,达到了节地、节省容积率的效果。
After carefully studying relevant building regulations, After carefully studying relevant building regulations, the solution became floating the volume to “steal” extra space. It without enclosure do not count towards the floor area ratio, thus achieving the effect of land conservation and saving floor area ratio without changing the total area.
▼立面鸟瞰,Ariel view of facade

▼东南侧鸟瞰,Southeast bird’s eye view

位于长沙智谷的数字空间站通过其“浮石”概念重新构想了建筑结构体系。该设计采用了两个巨大的钢筋混凝土核心筒和X形柱,实现了平均15米和最大18米的悬挑,将一个整体的混凝土弧形屋顶悬置于下沉广场上方。这个“第三空间”——既非完全室内也非完全室外——成为了文化活动的市民活动中心。随着时间的流逝,阳光穿过椭圆天井,在墙壁和地面上投射出日晷的形状。雨水顺着天井的墙壁流下,就像中国古代庭院中的样子。折叠式的内部空间整合了由楼梯和裸露的钢桁架连接的宽敞展览区域,而简约的材料(清水混凝土和银灰色张拉网格板强调了结构的真实性。景观融合了实用和诗意的元素:毗邻剧院式台阶的反射池延伸了广场的流动性,模糊了建筑、技术和自然之间的界限。
▼项目模型,model


The project reimagines architectural tectonics through its “Floating Stone” concept. The design employs two massive steel-reinforced concrete cores and X-shaped columns to achieve 15m average and 18m maximum cantilevers, suspending a monolithic concrete arc-shaped roof above a sunken plaza. This “third space” – neither fully indoor nor outdoor – casts as a civic hub for cultural activities. Sunlight passes through the elliptical skywell and casts the shape of a sundial on the walls and the ground as time passes by. Rainwater runs down the walls of the skywell, just like in ancient Chinese courtyards. The folded interior integrates expansive exhibition areas linked by staircases and exposed steel trusses, while minimalist materials (fair-faced concrete and silver-gray tensioned mesh panels) emphasize structural honesty. Landscaping merges functional and poetic elements: a reflective pool adjacent to a theatre-style steps extends the plaza’s fluidity, blurring boundaries between architecture, technology, and nature.
▼附近小路看向建筑,Looking towards the building from a nearby road

▼建筑立面,Facade


该项目体现了技术、文化与后工业时代城市活力之间的协同效应。其15至18米长的悬挑式“浮石”,由双核和x形柱支撑,通过大胆的工程设计重新定义了工业建筑。宽敞的大空间灵活地容纳诸如1024程序员节这样的科技展览,同时也能适应会议或诸如社区主导的音乐会之类的基层活动。
This project exemplifies the synergy between technology, culture, and post-industrial urban vitality. Its 15–18m cantilevered “Floating Stone,” supported by dual cores and X-shaped columns, redefines industrial architecture through bold engineering. The expansive, large spaces flexibly host tech exhibitions like the 1024 Programmer Festival, while adapting to conferences or grassroots events such as community-led concerts.
▼立面近景,Facade close view


从文化角度来看,椭圆形的天井重新诠释了传统庭院的象征意义,与生硬的钢混结构的粗野主义美学形成了鲜明对比。下沉式广场偶尔举办的音乐会促进了参与感,而类似日晷的中庭、浅水池和连廊营造出一个以年轻人为中心的社交中心。从经济角度来看,它吸引了科技企业和人才,强化了长沙作为创新中心的角色。通过平衡工业资产、技术演进和社区包容性,该建筑体现了城市的韧性。
Culturally, the elliptical skywell reinterprets traditional courtyard symbolism, contrasting with a raw steel-concrete brutalist aesthetic. The sunken plaza’s occasional concerts foster engagement, while the sundial-like atrium, shallow pools, and bridging corridors create a youth-centric social hub. Economically, it attracts tech enterprises and talent, reinforcing Changsha’s role as an innovation hub. By balancing industrial assets, technological evolution, and community inclusivity, the architecture embodies urban resilience.
▼立面材质细部,Facade material


长沙数字空间站以其创新的“浮石”概念脱颖而出,将大胆的结构与文化象征相结合。其悬挑设计,跨度达 18 米,由巨大的混凝土核心筒和钢桁架支撑,打破了传统工业建筑的格局,创造出一个悬浮于下沉广场之上的浮动体量,即“第三空间”。这个空间是一个充满活力的公共枢纽,模糊了室内与室外环境之间的界限,并促进了科技、自然与文化的互动。
The Digital Space Station in Changsha stands out through its innovative “Floating Stone” concept, which blends structural audacity with cultural symbolism. The cantilevered design, with an 18-meter overhang supported by massive concrete cores and steel trusses, defies traditional industrial architecture by creating a floating mass that hovers above a sunken plaza, the “third space.” This space serves as a dynamic public hub, blurring boundaries between indoor and outdoor environments and fostering interaction between technology, nature, and culture.
▼室外看向X形柱,Looking outside towards the X-shaped column

▼室内大厅,Hall


椭圆形天井的设计,让人联想到中国传统庭院,以及使用反光水池和雨水设施,为周边的工业景观提供了一种诗意的回应。此外,灵活的内部空间和对社区参与的重视,比如举办音乐会或科技展览,使这座建筑成为文化和技术交流的催化剂。
The integration of an elliptical skywell, reminiscent of traditional Chinese courtyards, and the use of reflective pools and rainwater features, offer a poetic response to the surrounding industrial landscape. Additionally, the flexible interior spaces and emphasis on community engagement, such as hosting concerts or tech exhibitions, position the building as a catalyst for both cultural and technological exchange.
▼X形柱与阶梯空间,X-shaped columns and staircase space



可持续性参与与绩效 Sustainability Engagement and Performance
该设计通过采用低影响开发(LID)技术,改善雨水质量和管理径流来降低城市排水负担,从而积极减少城市基础设施的压力。其可再生能源系统和节能技术为区域气候行动树立了标杆。智能能源管理平台展示了其可扩展性,并通过透明的绩效监测鼓励了利益相关者的参与。
The design actively reduces urban infrastructure strain by implementing Low-Impact Development (LID) techniques, improving stormwater quality and managing runoff to lower municipal drainage burdens. Its renewable energy systems and energy-efficient technologies serve as a regional benchmark for climate action. The smart energy management platform demonstrates scalability, encouraging stakeholder engagement through transparent performance monitoring.
▼阶梯空间看向室外,Staircase space looking outside



▼阶梯空间看向不同的层高,The staircase space looks towards different floor heights

环境质量与福祉 Environmental Quality and Well-being
生态管理通过低影响开发(LID)得以优先重视,这有助于保护当地的流域并增强生物多样性。通过先进的暖通空调系统(HVAC)来确保室内环境健康:空气源热泵(COP 3.36)能提供稳定的热舒适度,同时将噪音污染降至最低。分散式空调机组实现了 4.50 W·h/(W·h) 的季节性能源效率比(SEER),超过了常规标准。本地采购的材料彰显了地区文化特色,而响应使用情况的照明则优化了用户舒适度和昼夜节律的协调。
Ecological stewardship is prioritized via LID, which protects local watersheds and enhances biodiversity. Indoor environmental health is ensured through advanced HVAC systems: air-source heat pumps (COP 3.36) provide stable thermal comfort while minimizing noise pollution. Dispersed air conditioning units achieve a cooling seasonal energy efficiency ratio (SEER) of 4.50 W·h/(W·h), exceeding conventional standards. Locally sourced materials celebrate regional cultural identity, while occupancy-responsive lighting optimizes user comfort and circadian rhythm alignment.
▼下沉广场入口处,Entrance to the sunken plaza



▼下沉广场入口阶梯,Entrance stairs to the sunken plaza


资源节约(或:资源保护)Resource Conservation
该项目率先采用净零能耗策略,照明能耗减少了 35%(通过运动感应和光敏控制实现),整体能耗节省了 28%,得益于高效系统(包括变速电梯和 II 类变压器),实现了节能效果。空气源热泵将低品位的环境热量转化为可用能源,显著减少了对化石燃料的依赖。通过微喷灌灌溉(减少用水量 40%)和雨水再利用整合实现了水资源管理。通过优先选用低碳、本地采购的建筑组件,确保了生命周期内材料的可持续性,大幅削减了实体排放。
The project pioneers net-zero energy strategies with a 35% reduction in lighting energy (via motion- and light-sensitive controls) and 28% overall energy savings from high-efficiency systems, including variable-speed elevators and Class II transformers. Air-source heat pumps convert low-grade ambient heat into usable energy, significantly reducing fossil fuel dependency. Water stewardship is achieved through micro-sprinkler irrigation (cutting usage by 40%) and stormwater reuse integration. Lifecycle material sustainability is ensured by prioritizing low-carbon, locally procured building components, slashing embodied emissions.
▼下沉广场,The sunken plaza



社会包容性Social Inclusiveness
这座建筑下方悬浮结构下的“第三空间”——一个半户外的露天广场——充当了一个无障碍的公共空间。这个有遮蔽、开放的区域容纳了各种各样的社交活动,从文化表演到非正式聚会,都优先考虑到了普遍的可达性。下沉式的广场设有渐变坡道和分层座位,确保了所有年龄段和不同行动能力的人都能无障碍进入。通过模糊公共领域和私人领域的界限,它使城市空间更加民主化,尤其对那些常常被传统工业区所排斥的边缘群体来说,这是一项极大的福利。
The building’s suspended “third space”—a semi-outdoor plaza beneath the floating structure—serves as a barrier-free public realm. This shaded, open area accommodates diverse social activities, from cultural performances to informal gatherings, prioritizing universal access. The sunken plaza features gradual ramps and tiered seating, ensuring accessibility for all ages and mobility levels. By blurring boundaries between public and private domains, it democratizes urban space, particularly benefiting marginalized groups often excluded from conventional industrial complexes.
▼下沉广场近景,The sunken plaza close view



建筑之外的积极影响 Positive Impacts Beyond Architecture
从结构上讲,该项目通过垂直分层的方式最大限度地减少了占地面积,为未来的绿地和城市生态系统保留了土地。其钢混混合结构系统优化了材料效率,减少了浪费和碳密集型做法。裸露的结构逻辑向参观者展示了可持续工程理念,同时促进了工业透明度。从经济角度来看,该设计通过指定当地制造的材料,如预制钢结构部件和当地混凝土,支持了当地产业,创造了就业机会并减少了运输排放。该建筑的文化共鸣——唤起诸如“四水归堂”(水汇集庭院)这样的传统庭院符号——将技术进步与遗产相融合,促进了公民自豪感。
Structurally, the project minimizes its footprint through vertical layering, preserving land for future green spaces and urban ecosystems. Its steel-concrete hybrid system optimizes material efficiency, reducing waste and carbon-intensive practices. The exposed structural logic educates visitors on sustainable engineering while promoting industrial transparency. Economically, the design supports local industries by specifying locally fabricated materials, such as prefabricated steel components and regional concrete, creating jobs and reducing transport emissions. The building’s cultural resonance—evoking traditional courtyard symbols like “Si Shui Gui Tang” (water-collecting courtyards)—bridges technological progress with heritage, fostering civic pride.
▼巨石“浮在”水上,The boulder “floats” on the water



对当地需求的敏感度 Sensitivity to Local Needs
该设计强调具有适应性的灵活性:宽敞无柱的内部空间便于根据不断变化的技术或社区需求进行重新规划,避免功能过时。气候响应型特征,例如穿孔铝制立面,能够调节太阳辐射量,同时将光线扩散至室内空间,提升舒适度,且能耗不高。通过在建筑下方设置下沉式的公共广场,该项目丰富了城市特色,同时又未对现有的工业设施造成干扰。尽管其实验性的结构导致初期成本较高,但其长期的能源效率和文化价值使其投资具有合理性,可作为公平且前瞻性的工业建筑模式的典范。
The design emphasizes adaptive flexibility: vast, column-free interiors allow reprogramming for evolving technological or community needs, avoiding functional obsolescence. Climate-responsive features, such as the perforated aluminum facade, moderate solar gain while diffusing light into interior spaces, enhancing comfort without excessive energy use. By placing a sunken civic square beneath the building, the project enriches urban identity without displacing existing industrial facility. While its experimental structure incurs higher upfront costs, its long-term energy efficiency and cultural value justify the investment as a model for equitable, forward-looking industrial architecture.
▼无障碍通道,Accessible access

▼俯瞰无障碍通道,Ariel view of accessible access

客户需求 Client-Side Needs
宽敞的无柱式室内空间——得益于双混凝土核心筒和 X 形钢柱——提供了灵活、无遮挡的空间,以容纳跨行业的展览(生物医学、建筑机械、信息技术)。它还能适应不同的展示规模,从互动技术演示到大型机械展品,同时临时座椅和可重新配置的平台支持会议和特定行业的论坛。透明的外立面和相互连接的垂直体量使空间具有可读性,有助于企业品牌推广和投资者参与。
The expansive, column-free interiors — enabled by twin concrete cores and X-shaped steel columns — provide flexible, unobstructed spaces to accommodate cross-industry exhibitions (biomedical, construction machinery, IT). It also adapt to varying display scales, from interactive tech demos to large machinery exhibits, while temporary seating and reconfigurable platforms support conferences and sector-specific forums. Transparent façades and interconnected vertical volumes allow spatial legibility, aiding corporate branding and investor engagement.
▼建筑内部结构,Structure

公众需求 General Public Needs
漂浮体量下方下沉的“第三空间”充当着公共广场的角色:斜坡式的入口通道和类似圆形剧场的台阶确保了所有行动能力水平的访客都能方便进入,其遮蔽式、半开放的设计鼓励了自发的互动。可编程区域举办音乐会、圆桌对话或科技快闪活动,将工业领域与社区领域连接起来。弧形的混凝土遮阳篷和有利于声学效果的几何形状提升了休闲聚会和精心策划活动的舒适度。通过将这个免费使用的枢纽融入工业园区之中,该设计使通常仅供私人使用的空间得以普及化,促进了社会凝聚力以及公众对新兴技术的参与度。
The sunken “third space” beneath the floating volume acts as a civic agora: ramped access and amphitheater-like steps ensure inclusivity for visitors of all mobility levels, while its sheltered, semi-open design encourages spontaneous interactions. Programmable zones host concerts, round-table dialogues, or tech pop-ups, bridging industrial and community realms. Curved concrete canopies and acoustic-friendly geometries enhance comfort for both casual gatherings and curated events. By integrating this free-access hub within an industrial park, the design democratizes spaces typically reserved for privatized use, fostering social cohesion and public engagement with emerging technologies.
▼总平面图,masterplan

▼架空层平面图,elevated floor plan

▼架空层上空平面图,plane above the mezzanine floor

▼地面层平面图,ground floor plan

▼7.900标高平面图,floor plan

▼13.950标高平面图,floor plan

▼立面图,elevation




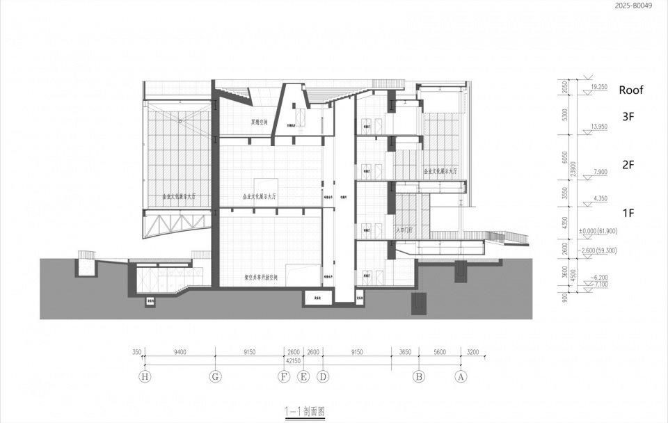
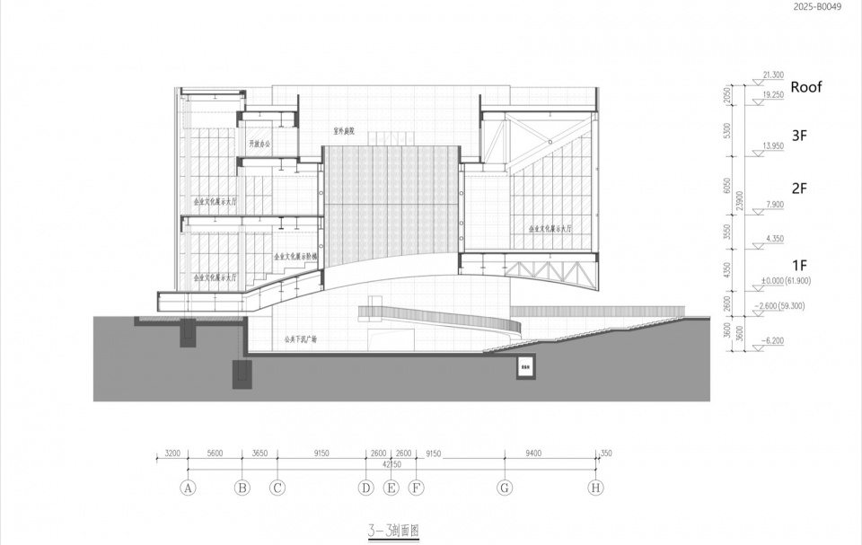
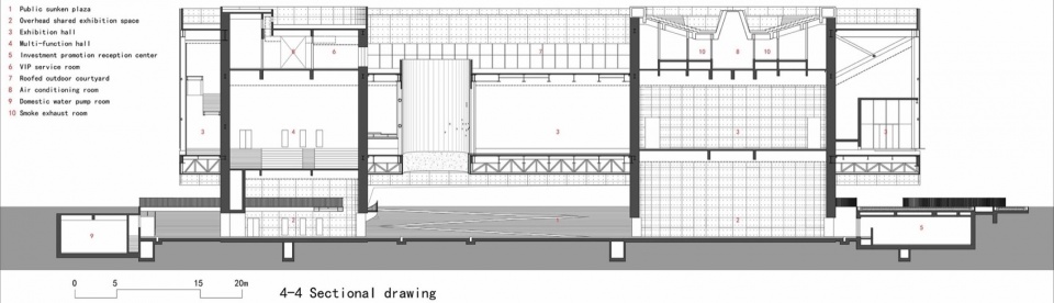
▼剖面图,section




▼钢结构体系示意图,schematic diagam of steel structure system

▼钢柱与混凝土组合结构,steel column and concrete composite structure















