高平钟书阁书店,山西晋城 / 伊塔诺建筑设计
序言Prologue
一座于历史生长的千年古城,一场与时间对酌的建筑诗行。当书脊隆起时,高平·钟书阁以“中国古建博物馆”为核心设计理念,用现代建筑语言烙印文明始祖的历史余温,1500平方米的空间是对高平1500余处文物古迹的虔诚呼应,亦是人类对这座城市精神的叩问与应答。
An ancient city, millennia-old, grown from the very soil of history. A lyrical architecture, composed in a toast with time itself. As the spines of books rise and swell,Gaoping Zhongshuge embraces the core concept of a “Museum of Chinese Ancient Architecture.”It employs a modern architectural language to imprint the lingering warmth of our primordial civilization.This 1,500-square-meter space is a reverent echo to Gaoping’s 1,500-plus cultural relics and historic sites, a profound dialogue with, and answer to, the very spirit of this city.
▼室内概览,overview of the interior space

概念区Conceptual Zone
设计师精准剖开高平古建的精魄,凭借极简的几何形态、抽象化的传统符号与多维度的空间叙事,将“高而平”的大地意象,凝结成永恒的篇章。
The designer has meticulously dissected the essence of Gaoping’s ancient architecture, employing minimalist geometries, abstracted traditional motifs, and a multidimensional spatial narrative to crystallize the earthly imagery of “lofty and level land” into an eternal chapter.
▼极简的几何形态,employing minimalist geometries


▼抽象化的传统符号,abstracted traditional motifs


借助坡屋顶的弧形轮廓、瓦片的层叠韵律,形成拱形门洞的递进式布局,既是视觉引导的物理分隔,也是精神层级的探索隧道。
The sweeping curves of sloping roofs and the rhythmic layering of tiles form a progression of arched portals—serving not only as physical visual guides but also as tunnels for spiritual exploration.
▼形成拱形门洞的递进式布局,form a progression of arched portals

▼形成拱形门洞的递进式布局,form a progression of arched portals


▼借助坡屋顶的弧形轮廓,the sweeping curves of sloping roofs


褪去繁复的雕饰,抽象化的梁柱与斗拱凭借极简曲线勾勒力学之美,铸就承载万千典籍的骨骼,当指尖轻抚过肌理,这触感 连接着尧舜时代的晨曦,也链接着新时代的星光。 此刻光穿过书架缝隙在空间透射出斑驳陆离的影子,咖啡香气漫过鼻息,将凝固的时间转化为流动的“思”韵。
Stripped of ornate carvings, abstracted beams, pillars, and dougong brackets trace the beauty of structural mechanics through clean curves, forging a skeleton that cradles countless ancient texts. As fingertips brush against these textures, they connect to the first dawn of the Yao and Shun eras, and to the starlight of a new age. Here, light filters through bookshelf crevices, casting dappled shadows that dance across space. The aroma of coffee lingers, transforming solidified time into a fluid poetry of contemplation.
▼凭借极简曲线勾勒力学之美,trace the beauty of structural mechanics


立体的屋檐,高耸的书架,悬挂于屋顶的几何灰色瓦片阵列,共同交织成“屋舍叠院”般的聚落感,既多维立体又遥相呼应,设计师采取“去装饰化”的提炼,实则是将宋元木构的匠心转化为现代空间语法,体现“在历史中栖居”的生活姿态。
Articulated eaves, towering shelves, and suspended arrays of grey tile-inspired elements intertwine to evoke the sense of an interlocking architectural cluster—multi-dimensional and spatially interactive, where forms echo one another across space. By refining away excess ornament, the designer translates the craftsmanship of Song and Yuan timber frames into a modern spatial syntax, embodying a way of life that “dwells within history.”
▼共同交织成“屋舍叠院”般的聚落感,evoke the sense of an interlocking architectural cluster


▼将宋元木构的匠心转化为现代空间语法,translates the craftsmanship of Song and Yuan timber frames into a modern spatial syntax



一步踏出便是千年,一页翻过即是永恒,现实书架与镜面倒影形成无限递归的莫比乌斯环,而读者正悄然隐匿于灯影书墙,沉浸在精神原乡中。
A single step traverses millennia; a turned page captures eternity. Physical shelves and their mirrored reflections merge into an infinite Möbius loop of recursion, while readers linger among lantern-lit walls of books, immersed in the homeland of the spirit.
▼现实书架与镜面倒影形成无限递归的莫比乌斯环,Physical shelves and their mirrored reflections merge into an infinite Möbius loop of recursion


正如同海德格尔所言——“栖居的本质在诗意的度量”行走于此屋舍的层层叠影,又何尝不是时空的交错,在这一霎那化作永恒的交融,建筑就此成为度量文明的标尺。
As Heidegger observed, “Poetry is what truly lets us dwell.” To walk through these layered shadows of architecture is to experience a convergence of time and space—a momentary fusion into timelessness. Here, architecture becomes the measure of civilization.
▼屋舍的层层叠影,layered shadows of architecture


儿童区Children’s Zone
如果你走进这里就会发现——神话不再是遥远的故事,而是触手可及的立体画卷。
Step inside, and mythology is no longer a distant tale—it becomes a tangible, classical Chinese scroll painting unfolding in three dimensions.
▼触手可及的立体画卷,tangible three-dimensional painting

钟书阁儿童区将“混沌初开”的宇宙观进行物理化的呈现。女娲补天遗落的五彩石浆,挥洒出彩云般轻盈的书台,精卫填海掀起的碧波荡漾,成为涡旋托起绘本的方舟。整个空间设计以大地色系为基底,搭配朱红、靛蓝、藤黄等传统矿物颜料色彩,让神话故事转化成可感知的教育场域。
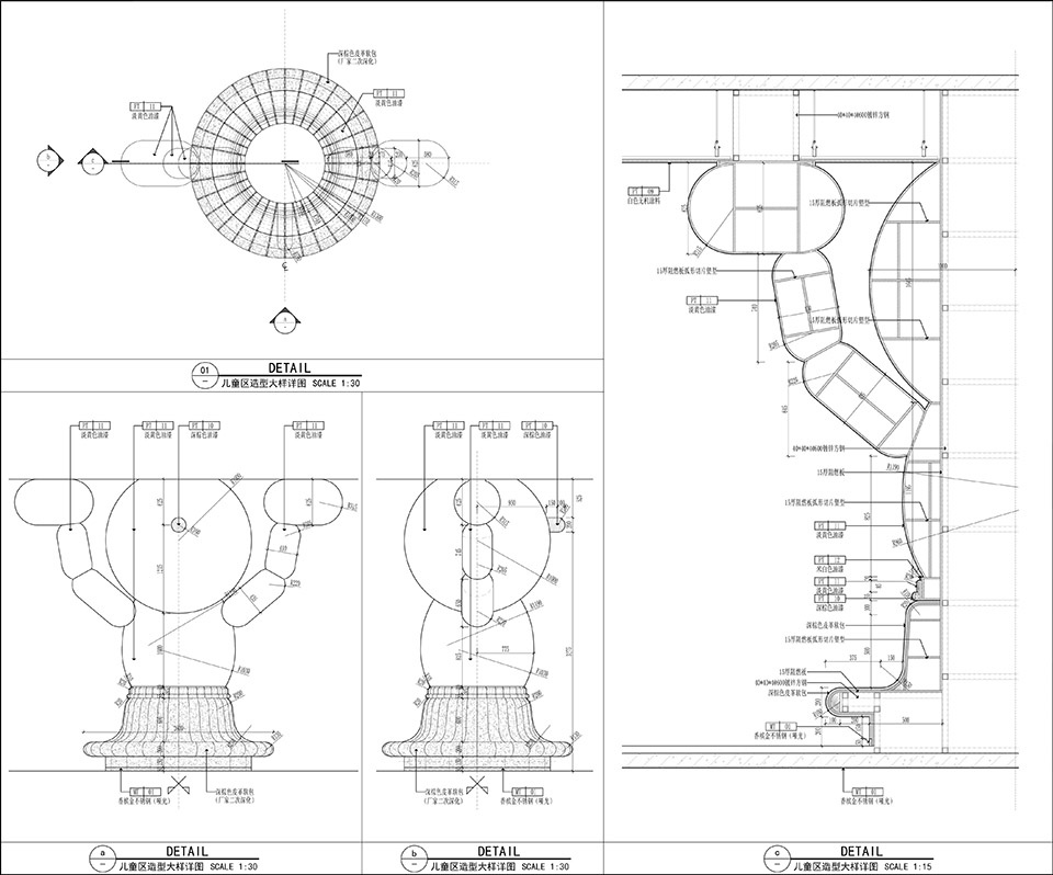
▼儿童区立面图,children’s area elevation

Zhongshuge’s children’s area materializes the cosmic concept of “primordial chaos” into physical form. Stone slurry in rainbow hues, reminiscent of Nuwa’s repaired heavens, spills into cloud-like reading platforms. Turquoise waves stirred by Jingwei’s determination to fill the sea swirl into vortexes that cradle storybook arks. The entire spatial design takes an earth-toned palette as its foundation, enriched with vermilion, indigo, and gamboge—traditional mineral pigments—transforming myth into an immersive educational landscape.
▼让神话故事转化成可感知的教育场域,transforming myth into an immersive educational landscape

孩子们小小的身影,穿梭其中也成为了童话的一部分。
Here, little figures weaving through the scene become part of the fairytale itself.
▼让神话故事转化成可感知的教育场域,transforming myth into an immersive educational landscape

艺术中心Art Center
当“天圆地方”的东方宇宙观,在现代语境下被重新演绎,人们看到传统与先锋在此激荡、融合、新生,一座“可生长的文化容器”恰恰完美体现了“高平式生活”不可或缺的精神注脚。“方”是严谨的框架、移动的展墙、嵌入式的舞台,构成了秩序与承载的基石,“圆”是流动的思想、即兴的表演、碰撞出的灵感,象征着创新与无限的探索。
The ancient Eastern cosmology of “round heaven, square earth” is reimagined in a contemporary context, where tradition and innovation collide, merge, and regenerate. This “culturally generative container” embodies the essential spirit of “Gaoping-style living.” The “square” represents rigorous frameworks, mobile exhibition walls, and embedded stages—foundations of order and support. The “circle” embodies fluid thought, improvisational performances, and sparks of inspiration—symbolizing innovation and infinite exploration.
▼艺术中心,art center

恰如扎哈·哈迪德所说:“空间一共有360个角度,为何只固守其一呢”,随意的拼接、堆叠、旋转都是对传统序列的重组与再造,一座承载展览、沙龙、论坛等多元活动的动态空间自此诞生。建筑是以空间形式体现时代精神,它不是孤立的文化孤岛,而是深度融入城市肌理、与古建群落遥相呼应、共同呼吸的有机生命体,其脱离表象后裸露的思想与精神从未熄灭。每一本 都是未完的篇章,每一瞬都是历史的回响。
As Zaha Hadid proclaimed: “There are 360 degrees. Why cling to just one?” Free reassembly, stacking, and rotation reinvent conventional sequences, giving rise to a dynamic space capable of hosting exhibitions, salons, forums, and other diverse events thus comes to life. Architecture expresses the spirit of the age through space. It is no isolated cultural island, but an organic entity deeply woven into the urban fabric—breathing in dialogue with ancient structures. Its exposed ideology and spirit, stripped of superficiality, never fade. Every book is an unfinished chapter; every moment, an echo of history.
▼艺术中心,art center


▼艺术中心,art center

高平·钟书阁Gaoping Zhongshuge
静候所有以脚步丈量文明的同行者,诵读叩问沉默,当暮色浸透弧形书墙——翻开这本立体的《高平之书》,人们捧起的何止文字?而是整座古城递给未来的史诗。
Awaits all who measure civilization with their footsteps—those who read, inquire with reverence, and contemplate in silence.As dusk permeates the curved bookshelves,to open this three-dimensional “Book of Gaoping”—is this merely to hold words?No. It is to receive the epic an ancient city entrusts to the future.
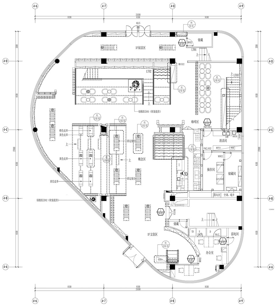
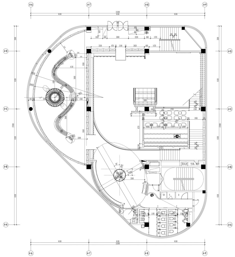
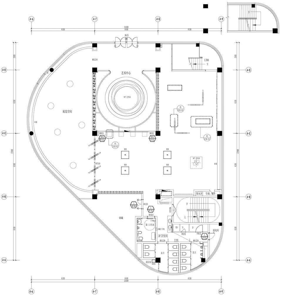
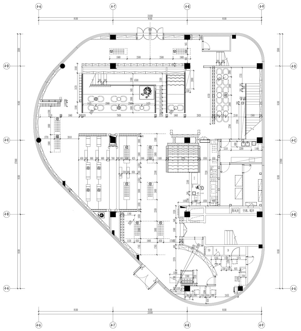
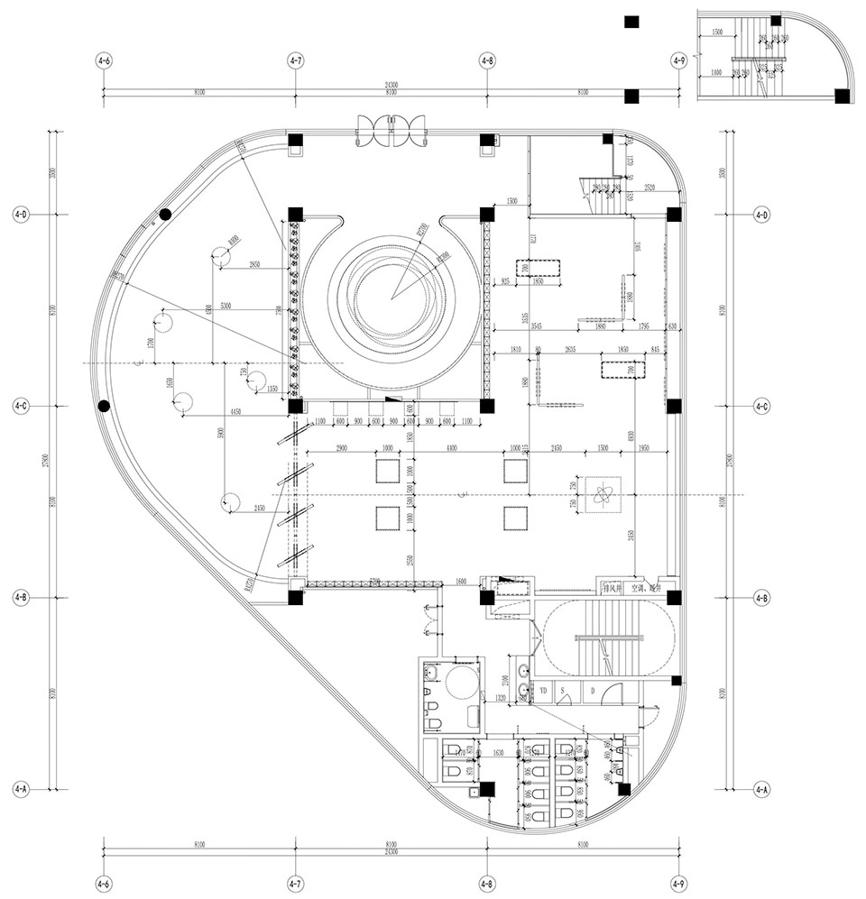
▼平面图,plan








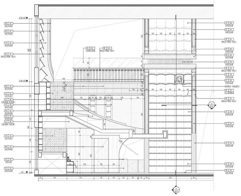
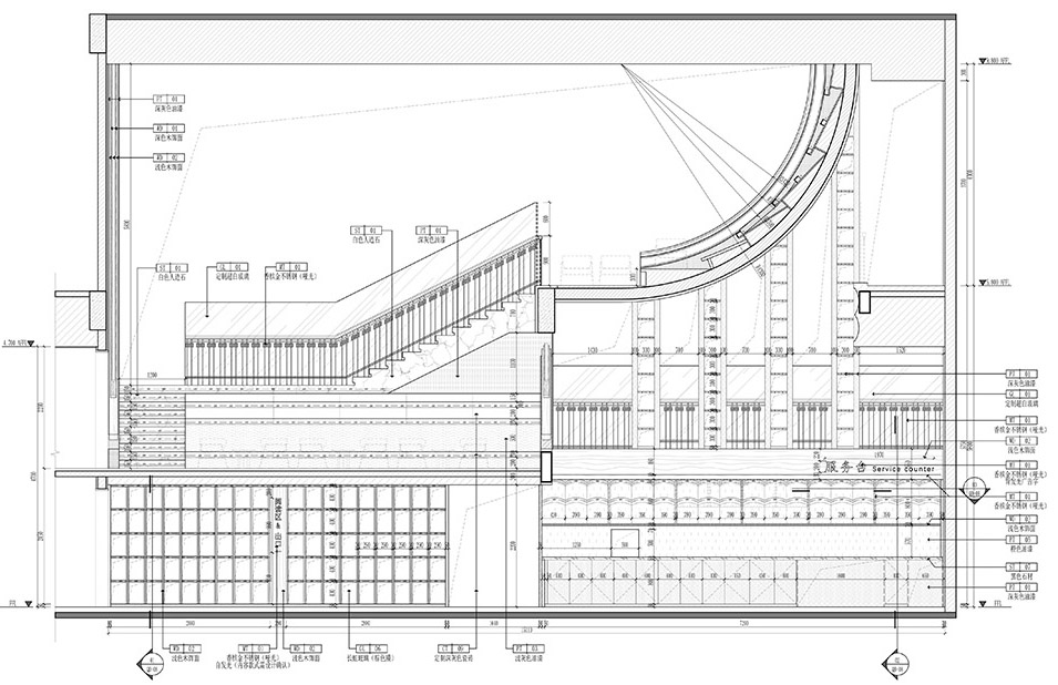
▼立面图,elevation



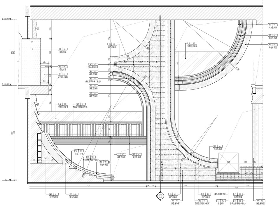
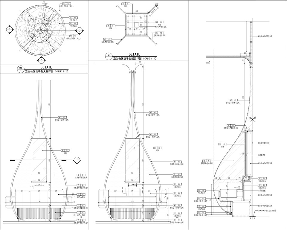
▼细部,detail


Project name: Gaoping Zhongshu
Project type: Bookstore
Project design:ETER Architecture Design
Completion Year:Aug.2025
Leader designer & Team:Design Director: Jun Zhu
Designers: Zhengfang Zhang, Huiyan Yang , Xi Tian
Project location: No. 4 Commercial Building, Taihang National Trend Outlet Mall, Gaoping City
Gross built area:1500㎡
Photo credit: Biao Mu














