市民中心,意大利 / Archiplan Studio
这座建筑位于Carpi d’Adige小镇已建成的城市肌理边缘。
The building is located on the edge of the consolidated urban fabric of the town of Carpi d’Adige.
▼建筑外观,exterior of the building


这栋两层建筑沿纵向轴线重新定义了通往教堂的道路轴线,而在短边上则形成了面向小镇的入口立面。
The two-storey building, along the longitudinal axis redefines the road axis that comes to the church, while on the shorter side it is configured as the entrance front to the town.
▼重新定义了通往教堂的道路轴线,
along the longitudinal axis redefines the road axis that comes to the church

▼面向小镇的入口立面,the entrance front to the town



低层建筑位于道路的对侧,通过退进的布置界定了公共空间,并因小花园的存在而得到进一步强化。
The lower building stands on the opposite side from the road and with its retreat defines the public space, which is further clarified by the presence of the small garden.
▼建筑的后退重新定义了公共空间,its retreat defines the public space

▼重新界定了公共空间,redefines the public space

建筑立面在延续经典城市界面语汇的同时,呈现出一种逐步“减化”的过程,构成由厚重到轻盈的渐变表达。
The facades rework the classic themes of urban fronts, and undergo a progressive process of rarefaction in their development.
▼室内空间,interior space

▼楼梯空间,staircase space


▼二层空间,upper level space



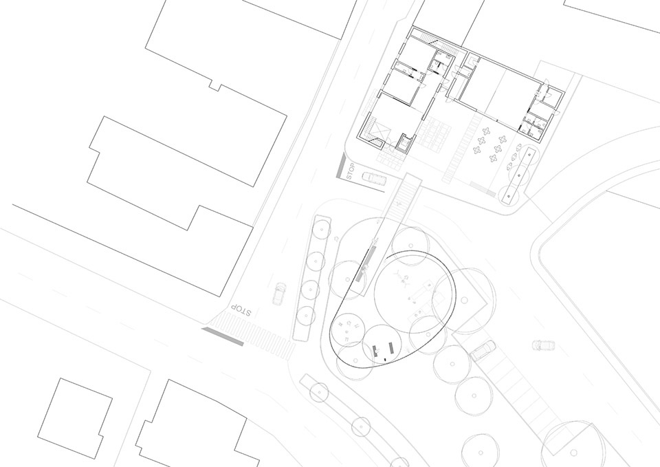
▼场地平面,site plan

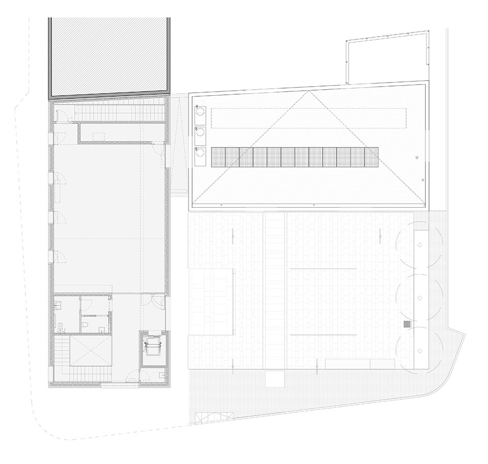
▼一层平面,ground floor plan

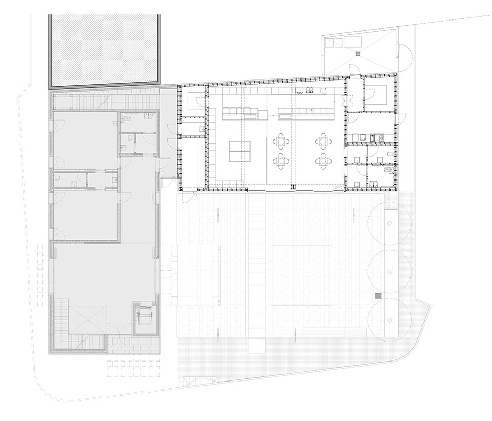
▼二层平面,first floor plan

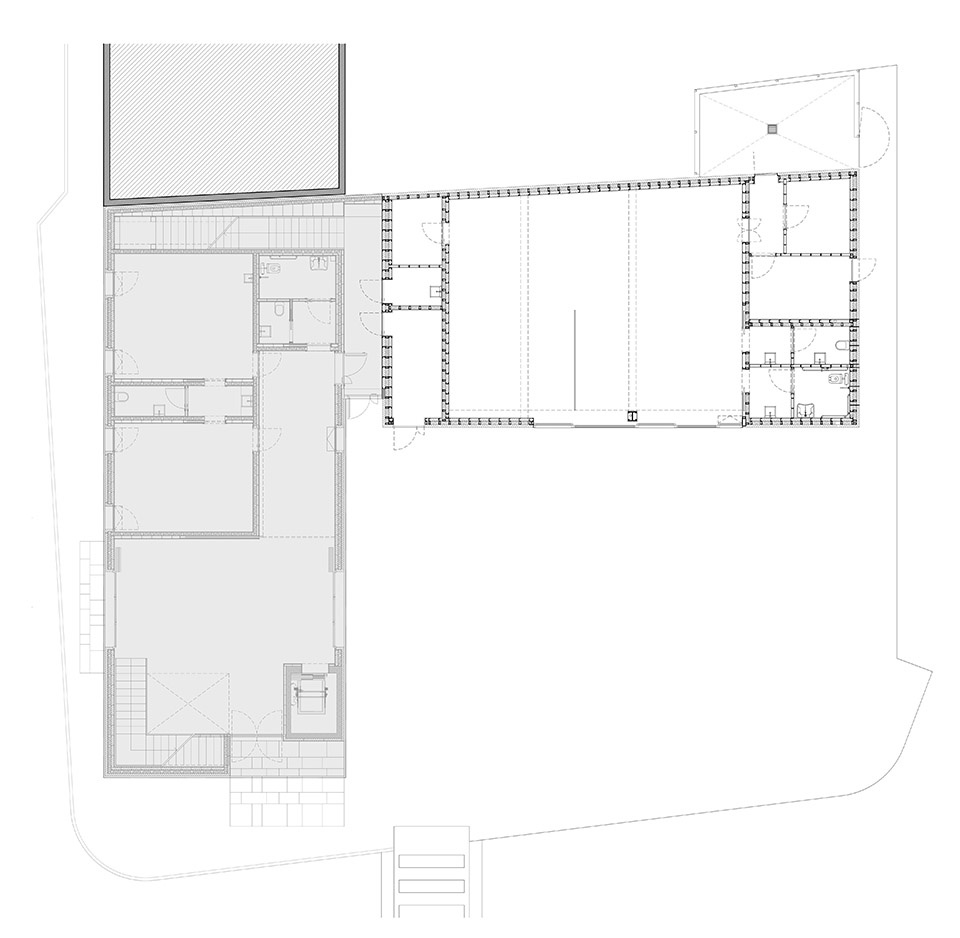
▼三层平面,second floor plan

▼立面,elevation


▼剖面,section




















