深川住宅,日本 / note architects
这是一个位于东京东部的住宅改造项目。业主希望在紧凑的居住环境中实现一种开放的生活方式,能够感受到家人的存在,同时与风、阳光等自然元素保持亲密联系。
This is a renovation project in east Tokyo. The client wished for an open lifestyle where they could feel the presence of a family, in a compact living environment where they could get in touch with nature such as wind and sunlight.
▼室内概览,overview of the indoor space


▼实现一种开放的生活方式,an open lifestyle



业主一家原本居住在东京西部,在孩子出生后,他们搬到了丈夫的故乡——东京东部,与父母更为接近。在租住房期间,他们萌生了建造新居的想法。一次散步时,他们偶然路过我们事务所,因其地理位置与他们理想的生活区域接近,于是我们从选址开始,展开了新住宅的设计。
The client family lived in the west side of Tokyo, but after the birth of their child, they moved to the east area where the husband is from and where his parents live. They began planning to build a new home while living in rental housing. They passed by our office near their rental housing while on a walk, and since it was close to the area where they wanted to live, we started to design a new house from the property search.
▼开放式厨房,open kitchen


▼以岛台分隔空间,the space is separated by islands


▼岛台细部,kitchen island detail


在规划过程中,尽管住宅面积有限,我们仍提出以“开放”为核心的居住理念:让居住者在小尺度的空间中亲近自然、感受光风,并始终保持家人之间的交流与连结。原有住宅为典型的老式日式平面,起居室和卧室几乎没有窗户,室内昏暗潮湿,通风不良。我们在延续既有格局的基础上,以中央柱体和半透明的界面(如玻璃门、地面材质的变化等)进行空间划分,创造出通透舒适的环境。沿墙设置的长台面,将视线自然引向室外。台面与设施的高度设计结合光影的层次,使日常活动与光线的渐变相呼应。面向阳光充足的阳台一侧,被设计为类似“缘侧”的空间,成为可以静坐休憩的场所。
In planning a house, although a compact residence, we proposed an open living environment where residents could be in touch with nature such as wind and sunlight, and where they could feel the presence of their family. The existing house had a typical old Japanese plan, with no windows in the living room or bedrooms, and a dim, damp atmosphere with poor ventilation. While we took over the existing plan, we created an open and comfortable space by dividing the area with central column and translucent boundaries, such as a glass door, floor finishes. The counter along the wall directs your consciousness outside. We arranged the height of the counter and facilities so that activities would change according to the gradation of light. The balcony side where high-quality light shines in are like Engawa (Japanese wood deck) where you can quietly relax.
▼卧室空间,bedroom space


▼从卧室看向厨房,from bedroom to the kitchen

材料的运用强化了光影质感:略带肌理的饰面、和纸墙面、厨房的瓷砖,以及以柿渋(一种日本传统天然涂料)处理的椴木胶合板,共同营造出温润而富有层次的空间氛围。
The materials that have slight unevenness, the Japanese paper wall, tile in kitchen and lauan coated with persimmon juice, a traditional Japanese natural paint, transmit texture of light.
▼盥洗室的开窗,opening the window to the washroom


▼椴木细部,lauan detail

▼椴木细部,lauan detail


通过在盥洗室与入口处开窗,使空间能够望向阳台,仿佛室外就在身旁。住宅捕捉并抽象化了都市中心的自然气息,重建人与环境的关系。小巧的居所因四季更替而不断变化,赋予日常生活新的韵律与质感。
We create the situation where outside is next to you, by opening the window to the washroom and entrance so you can see through to balcony. It captured abstract nature of central city with certainty and rebuilt new relationship with human. Small house where the life is lived with change of seasons.
▼夜间卧室,bedroom at night

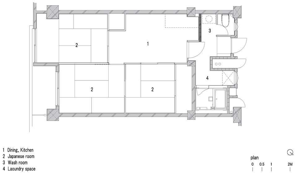
▼改造前平面,plan before renovation

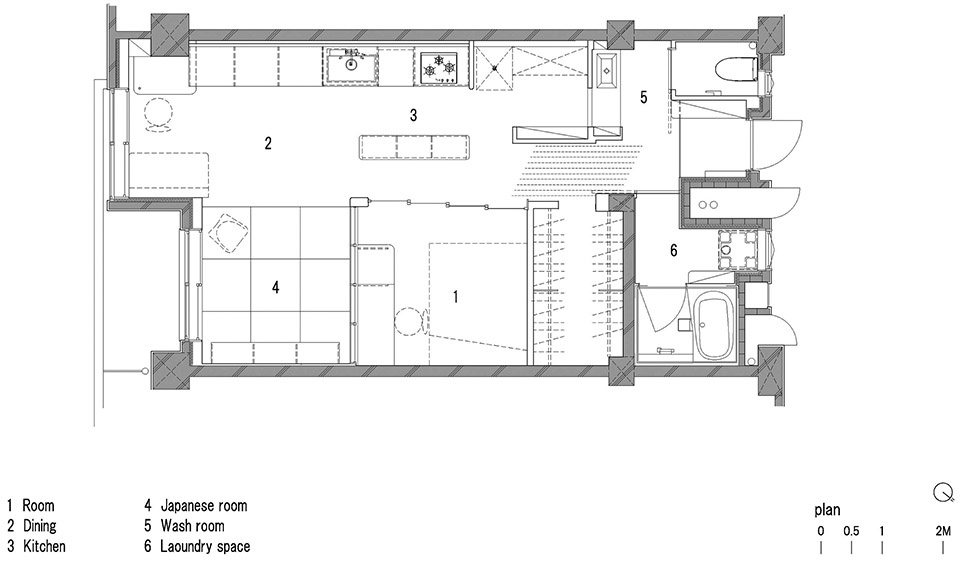
▼改造后平面,plan after renovation

Project Name: Fukagawa apartment
Office Name: note architects
Office Website: http://note-arch.com/
Social Media Accounts: https://www.instagram.com/notearchitects/
Contact email: info@note-arch.com
Firm Location: Koto-ku Tokyo Japan
Completion Year: 2023
Gross Built Area (m2/ ft2): 54㎡/580 ft2
Project Location: Koto-ku Tokyo Japan
Program / Use / Building Function: residence
Lead Architects: note architects
Lead Architects e-mail: info@note-arch.com
Photographer
Photo Credits: Hiroki Kawata
Photographer’s e-mail: hiroki.kawata@gmail.com














