老宅的再次翻修,斯洛伐克 / Kilo / Honč
这是一栋建于1926年的典型乡村住宅,大约25年前曾进行过一次翻修,但效果并不理想。与之形成鲜明对比的,是一片令人惊叹的花园,尽头延伸至森林深处。花园中央的开阔空间如同一个小广场,一棵古老而壮丽的核桃树矗立其中,成为场地的精神核心。设计由此展开——我们在探寻场所的本质、空间的秩序与建筑的可能性,同时将房子重新朝向花园,打开内部,并与环境建立更为紧密的联系。
A classic countryside house built in 1926, renovated roughly 25 years ago—though not very happily. In contrast, a stunning garden ending in a forest. In the garden, a sort of “square,” and in the middle of it, a magnificent old walnut tree. We were enchanted. We’re searching for the essence, for space, for a program, for architecture. At the same time, we turn the house toward the garden. We open it up and connect it properly with the site.
▼住宅外观,exterior of the house


▼住宅庭院,courtyard of the house

▼住宅庭院,courtyard of the house


设计的核心诉求是“生活在花园中”。人们在这棵老树下栖居、停留,与自然共处。花园深处未来将设置一座桑拿房,需要穿越整个花园才能抵达,沿途经过菜畦与由旧棚改造的隐秘小屋。动线的延展让生活不再是触手可及的便利,而是包含行走、探索与停顿的体验。同时,室外还将设置木桶或浴缸,形成冷水浴的场所,使生活回归简单而真实的状态。
▼设计概念,scheme

We want to live in the garden, we want to live under the old tree, that’s it, can you feel it? Beneath the forest, where someday we’ll build a sauna. Yes, way back there, so we have to walk through the whole garden. Past the vegetable beds, past our little hideaway made from an old shed. So that not everything is conveniently at our fingertips. We’ll put a tub or a barrel out there too, for cold plunges. And generally, we want to live a bit more simply.
▼“生活在花园中”,live in the garden

▼人们在这棵老树下栖居、停留,与自然共处,
people dwell and linger under this old tree, coexisting with nature



在空间层面,我们重新定义了室内与室外的关系。通过引入一面内退式玻璃幕墙,建筑获得了一个“介于内外之间”的灰空间:夏季可遮阴,微风轻拂,避免室内过热。在这里可以种植花木,可以动手劳作,也可以仅仅静坐无事。这一过渡空间柔化了内与外的界限,使居住者与空气、光线及生活本身建立直接的联系。
▼轴测图,axonometric

After all, that’s why we came to the countryside. We’re also shifting the boundary of the interior. By inserting a new recessed glass wall. Because we don’t just want inside and outside. We want something in between. A place with summer shade, where a breeze gently flows, where the house doesn’t overheat. Where we can linger, grow flowers, tinker with something, or just sit and do nothing. To soften the boundary between in and out. Just being—us, the air, the light, and our life.▼“介于内外之间”的灰空间,the gray space between inside and outside


▼入口,entrance

▼室内空间,interior space


▼打破室内外之间的边界,breaking down the boundaries between indoors and outdoors


▼楼梯空间,staircase space


▼卧室,bedroom



▼阁楼空间,attic space



▼浴室,bathroom


▼施工过程,construction progress


▼场地平面,site plan

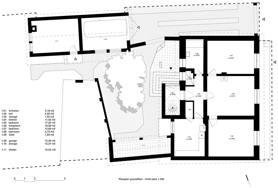
▼改造前一层平面,ground floor initial state plan

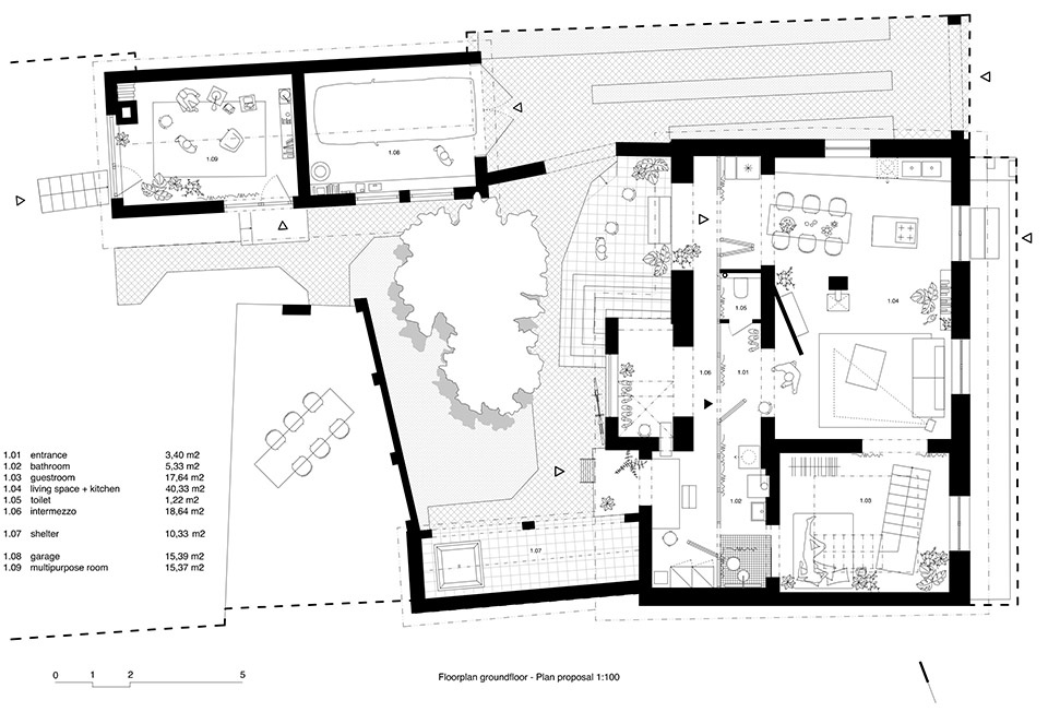
▼改造后一层平面,ground floor proposal plan

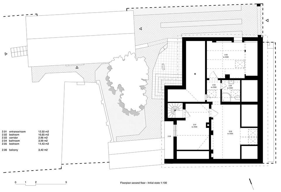
▼改造前二层平面,second floor initial state plan

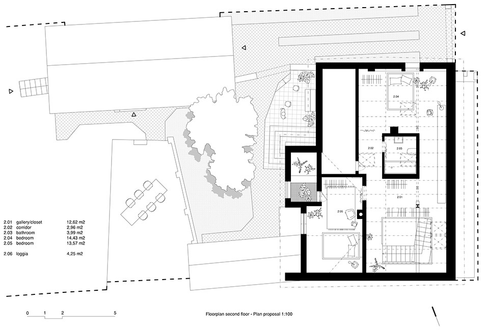
▼改造后二层平面,second floor proposal plan

Project: Reconstruction of a reconstructed House – Plavecký Štvrtok
Studio: Kilo / Honč
Studio Location: Bratislava
Website: https://www.kilohonc.com
E-mail: info@kilohonc.com
Built: 2024
Project: 2022
Area: 165 sqm
Built area: 147 sqm
Area of the site: 1065 sqm
Project location: Plavecký Štvrtok, SVK
Architects: Mgr. Richard Kilo, Ing. arch. Matej Honč, Ing. Arch. Ľubomíra Blašková
Photographer.
Website: http://matejhakar.com
E-mail: info@matejhakar.com














