KINEKI La Punta住宅,墨西哥 / Amezcua + Mario Conde
在墨西哥太平洋海岸,一座全新的建筑地标应运而生:KINEKI La Punta,这是一个坐落于埃斯孔迪多港Brisas de Zicatela区的先锋住宅项目,完美融合了可持续理念、设计美学与自然之美。
A new architectural milestone has emerged on the Mexican Pacific coast: KINEKI La Punta, a pioneering residential project located in Brisas de Zicatela, Puerto Escondido, seamlessly blending sustainability, design, and natural beauty.
▼外观,exterior view

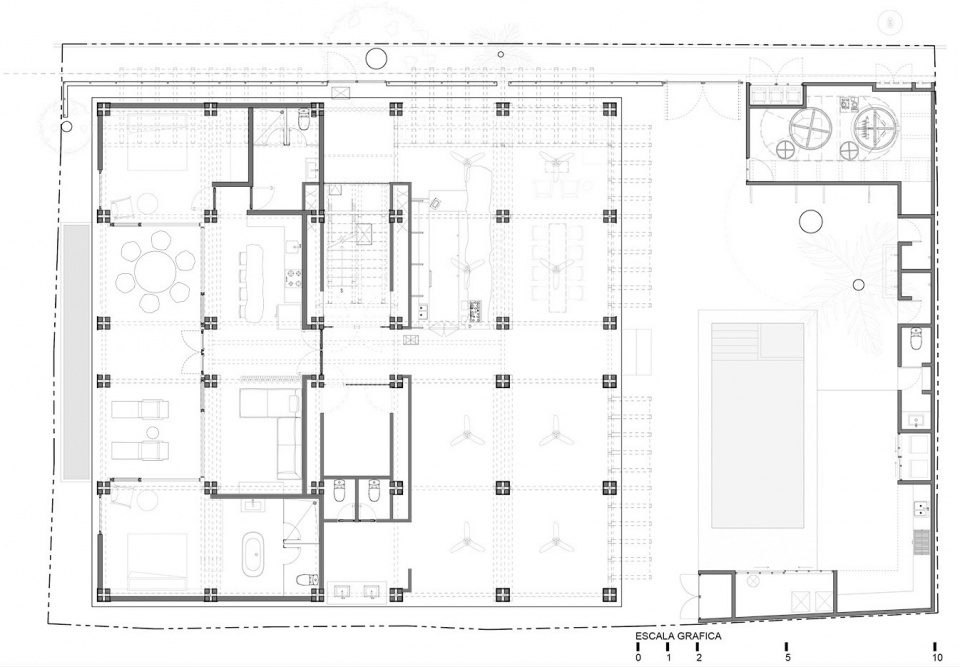
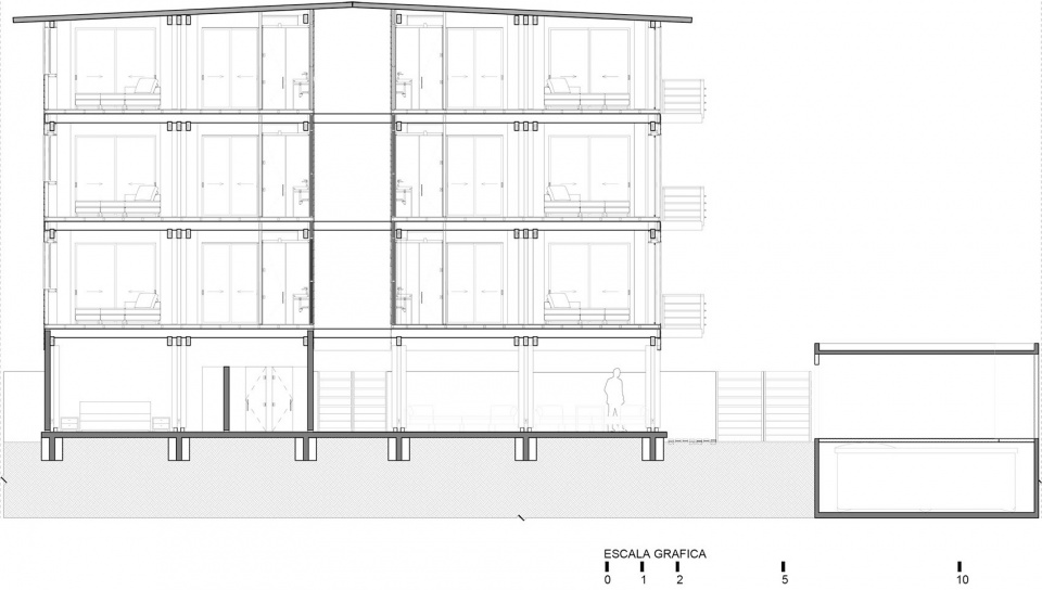
该项目由AMEZCUA建筑事务所携手Mario Conde联合打造,历经十余年研究与创意探索,于18个月内建成,总建筑面积为 1,200平方米,占地600平方米。项目包含十二套 60平方米套房与一套120平方米公寓,并配有480平方米的绿地及共享设施,旨在营造社区归属感与身心健康的生活方式。
The result of over a decade of research and creative exploration, KINEKI La Punta is the latest project by AMEZCUA, in collaboration with Mario Conde. The building was completed in 18 months and spans 1,200 m² of construction on a 600 m² plot. It includes twelve 60 m² suites and a 120 m² apartment, complemented by 480 m² of green areas and amenities designed to foster a sense of community and wellbeing.
▼外观近景,closer view of exterior


亮点设施包括一个120平方米的多功能空间,可灵活用作联合办公区、酒吧或瑜伽/普拉提空间,此外还设有泳池与烧烤区,强调平衡与联结的生活方式。
Key features include a 120 m² multifunctional space adaptable for coworking, a bar, or yoga and Pilates practice, as well as a pool and barbecue area. These shared amenities emphasize a lifestyle rooted in balance and connectivity.
▼120平方米的多功能空间,120 m² multifunctional space

项目在建筑材料的选择上也颇具创新性:建筑结构采用经处理的实心松木,墙体与楼板使用聚氨酯芯材的纤维水泥板,兼顾耐久性、热效能与声学舒适性。十字形布局有效避免套房之间的共墙设计,提升私密性和自然通风,同时优化了空间使用。
Constructed with solid treated pine and featuring walls and slabs made of fiber cement panels with a polyurethane core, the building showcases innovative material choices that ensure durability, thermal efficiency, and acoustic comfort. The cross-shaped layout eliminates shared walls between suites, offering enhanced privacy and ventilation while optimizing space.
▼黑色木纹质感纤维水泥外立面,
façade, clad in black fiber cement with a wood grain texture

▼楼梯,staircase

▼俯瞰底层泳池,overlooking the pool

可持续发展理念是本项目的一大核心:KINEKI La Punta配备了雨水收集系统、水处理装置,以及大量本地植被景观。其黑色木纹质感纤维水泥外立面,致敬日本“烧杉板(Shou Sugi Ban)”工艺,呈现出强烈且恒久的美学风格。
A hallmark of the project is its deep commitment to sustainability. KINEKI La Punta integrates rainwater harvesting systems, a water treatment plant, and extensive native landscaping. Its façade, clad in black fiber cement with a wood grain texture, pays homage to the Japanese Shou Sugi Ban technique, providing a striking, timeless aesthetic.
▼室内概览,overall of interior

▼温暖的木制室内,warm wooden interior

▼开放的室内空间,open interior space

▼细部,details

本项目由Miguel González、Saraí Cházaro、Jorge Vázquez、Milton Durán、Juan Martínez和Julio Amezcua联合设计,摄影由Jaime Navarro拍摄。KINEKI La Punta成为生态生活新范式的代表——一个与瓦哈卡海岸完美共生的灵感栖居之所。
With design by Miguel González, Saraí Cházaro, Jorge Vázquez, Milton Durán, Juan Martínez, and Julio Amezcua, and photography by Jaime Navarro, KINEKI La Punta positions itself as a new paradigm in ecological living—an inspiring retreat in perfect harmony with the Oaxacan coast.
▼平面图,plan

▼剖面图,sections


Diseño / Design: Amezcua
Año / Year: 2024
Ubicación / Location: Brisas de Zicatela, Puerto Escondido, Oaxaca
Área construida / Built Area: 1,200 m²
Tiempo de ejecución / Execution Time: 18 months
Construcción / Construction: Amezcua + Mario Conde
Equipo de diseño / Design Team: Miguel González, Saraí Cházaro, Jorge Vázquez, Milton Durán, Juan Martínez, Julio Amezcua
Fotografías / Photography: Jaime Navarro














