阿姆斯特丹Bajeskwartier区社会住宅,荷兰 / Atelier Kempe Thill
在阿姆斯特丹新兴的Bajeskwartier区,F地块的建设项目成为Atelier Kempe Thill过去25年来对社会住房建造课题研究的一个高点。该事务所在兹沃勒的Hiphouse、巴黎蒙马特、以及不来梅的中庭住宅等项目中积累的经验,为本项目提供了富有成效的启发。成果是一栋兼具成本效益与建筑品质的住宅楼。它既属于该事务所一系列高层住宅研究项目的一部分,探索如何更好地将此类建筑类型融入城市环境,同时也提供具有吸引力的居住品质。
The project for Construction Field F in the new Bajeskwartier district of Amsterdam forms a highpoint in Atelier Kempe Thill’s examination of the topic of social housing construction over the past twenty-five years. Experiences from previous projects for housing associations such as the Hiphouse in Zwolle, Montmartre-Paris, or the Atriumhaus (Atrium Building) in Bremen provide productive influences here. The result is a building with a remarkable cost-effectiveness ratio. It is simultaneously part of a series of projects by the firm dealing with the topic of high-rise residential construction and looking for ways to better integrate this typology in urban surroundings while also offering compelling residential qualities.
▼项目概览,Overview of the project


C.I.A.M.的再诠释
C.I.A.M. Revisted
项目的出发点源于OMA、Fabrications及Lola Landscape Architects制定的城市发展规划。该规划将20世纪70年代的晚期现代主义监狱建筑群 Bijlmerbajes改造为一个包含1100余套公寓的新城区。规划中大约75%的破败建筑将被拆除,而部分重要元素如显著的监狱围墙、中央服务楼以及一栋牢房高层则作为重要文化遗存被保留。这一城市发展项目既可视为对历史监狱建筑群的重新诠释,也可看作对现代主义经典城市规划的一次修订。其构想犹如21世纪的“沃伊赞计划(Plan Voisin)”。方案在原有场地上提出了一种对阿姆斯特丹而言相对少见的开放式城市形态——由九栋雕塑般的高层建筑组成,并镶嵌于绿色景观之中。新城区几乎无车,内部设有宽阔的公共公园,融入阿姆斯特丹的城市肌理。
▼原始场地,original site


The starting point for the project was provided by the urban-development design by the firms O.M.A., Fabrications, and Lola Landscape Architects. In it, the late-modernist Bijlmerbajes prison complex from the 1970s is being successively transformed into a new urban district with over 1100 apartments. The planning foresees the demolition of roughly 75 percent of the existing, truly desolate building volume. Some important elements, such as part of the prominent prison wall, the central service building, and a prison cell high-rise are, however, retained exemplarily as important cultural relicts. The proposed urban-development project can thus be regarded both as a reinterpretation of the historical prison complex and as a revision of the urban planning of classical modernity. What is put forward is a sort of “Plan Voisin” for the twenty-first century. Taking up the original complex, for the district, a—for Amsterdam—rather untypical, open urban construction with a sequence of nine sculptural high-rise buildings embedded in a green landscape is proposed. The new district forms a nearly car-free enclave with a very spacious public park within the urban corpus of Amsterdam.
▼融入阿姆斯特丹的城市肌理,a very spacious public park within the urban corpus of Amsterdam


“DE VRIJHEID”
Atelier Kempe Thill的项目位于高层建筑群的中央,由四栋高达60米的住宅塔楼围合出一个方形公共小广场。每栋楼由不同的事务所设计,以营造适度的建筑多样性。同时,OMA主导的总体规划通过多次联合工作坊,对体量、高度、材料与色彩选择、广场入口的位置以及建筑细节进行了严密协调,从而形成了统一又丰富的整体效果。
The project by Atelier Kempe Thill is located in the central cluster of high-rise buildings, an ensemble consisting of four, up to 60-meter-high residential towers grouped around a small, quadratic, district public square. Each building is planned by one firm so as to generate a sensible amount of architectural diversity. At the same time, the clear ensemble effect proposed in the master plan has been examined and developed further architecturally through intensive workshops with the planning firms. The overall planning is being orchestrated and supervised by O.M.A. As a result, the building volumes and heights, choice of materials and colors, position of the prominent entrances on the public square, and important architectural details of the buildings are carefully coordinated.
▼住宅塔楼围合出一个方形公共小广场,residential towers grouped around a small, quadratic, district public square


中庭基座与住宅塔楼
Atrium building and residential tower
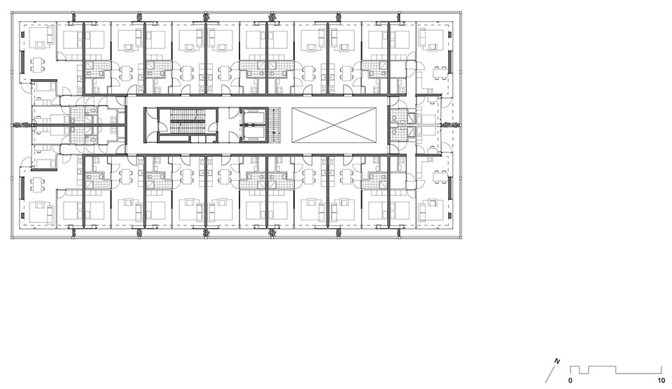
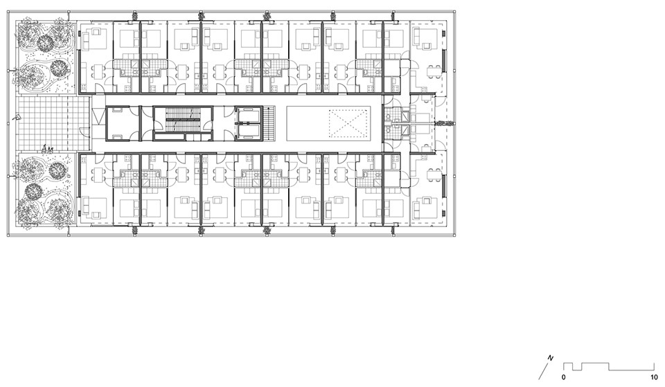
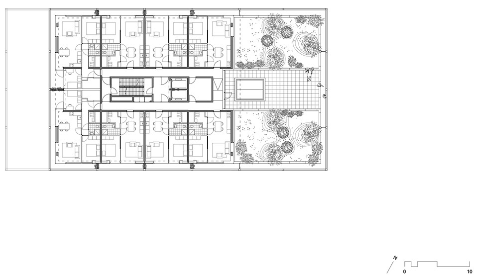
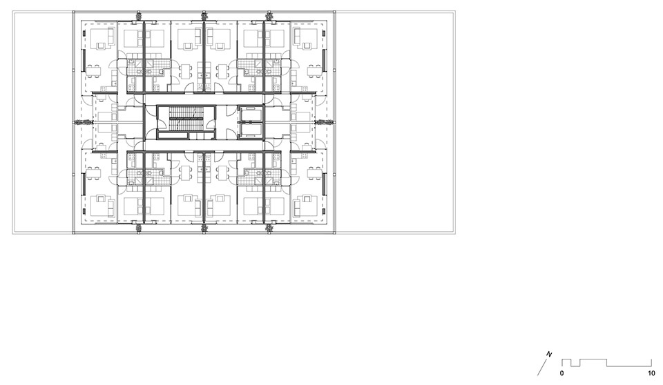
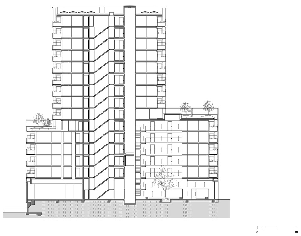
F地块项目包含140套公寓,采用两种建筑原型的战略性结合。底部六层是49.5米×25米的紧凑基座,每层高效布置14套公寓,环绕一个中央中庭。基座内部灵活多样,包含公共空间、商业功能以及宽敞的自行车库,从而实现建筑与新城区的良好融合。基座之上叠加了一座九层的紧凑型住宅塔楼,平面为29.5米×25米。每层布置八套公寓,围绕双楼梯与两部电梯展开。由此形成了一种新的雕塑性原型,既呼应城市发展的要求,也回应了建筑群体之间的对话。
For Construction Field F, with 140 apartments, a strategic combination of two architectural prototypes is proposed. The bottom six stories are designed as a very compact base of 49.5m x 25m. Fourteen apartments per story are thus arranged efficiently around a central atrium. The flexible, multifaceted base contains communal areas, commercial uses, and a spacious bicycle garage so as to facilitate high-quality urbanistic integration of the building into the new urban landscape. Positioned on top of this atrium building is a nine-story, compact residential tower of 29.5m x 25m. Eight apartments are situated on each story, arranged around a double staircase and two elevators. The result is a new, sculptural prototype that is also derived from the urban development requirements and the dialogue with the other buildings in the cluster.
▼基座之上叠加九层的紧凑型住宅塔楼,Positioned on top of this atrium building is a nine-story, compact residential tower


▼宽敞的自行车库,a spacious bicycle garage

新的集体性
New Collectivity
为了增强约300名居民的共处感,建筑的公共空间被设计得宽敞而具吸引力。一层层高4.5米,形成通透的视线,将多样的室内空间与绿色环境相连。材料选择既高品质又坚固耐久:裸露混凝土墙、抛光混凝土地面,以及橡木与水磨石。基座中央布置了一个绿植大厅,其中种植了一棵高达11米的树木。其上方展开六层高的中庭,引入自然光,并设有开放楼梯。基座屋顶还为居民提供两处公共屋顶露台,基质厚度达80厘米,栽植5米高的树木,未来将形成一个宜人绿色景观。通过这些措施,建筑试图营造出一个庆祝集体性、促进交流的氛围框架,孕育一个鼓舞人心的社会“微观世界”。
▼剖透视,perspective section

To strengthen the coexistence of the roughly 300 residents, attempts are made to design the public areas in the building spaciously and invitingly. The ground floor is thus designed in a particularly airy manner. With a free height of 4.5m, it provides open lines of sight into the diverse interior spaces and the green surroundings. The materialization is designed to be both high in quality and robust. Besides exposed concrete walls and a polished concrete floor, oakwood and terrazzo are used. In the center of the base, there is a spacious hall with indoor greening and an 11-meter-high tree. Above it develops a six-story atrium with daylight and an additional open staircase. Two communal rooftop terraces for residents are provided on the roofs of the atrium building. They have a high substrate structure of up to 80cm. With the planting of a grouping of 5-meter-high trees, over the coming years an intensive green landscape that invites spending time and relaxing is meant to develop here. By means of all these measures, an attempt is made to create an atmospheric framework that celebrates collectivity and stimulates communication within the building. What arises is an inspiring social microcosmos that strengthens the self-conception of residents and facilitates more community-oriented living within the city.
▼底层入口,the entrance on the ground floor

▼底层入口,the entrance on the ground floor

▼绿植大厅,the landscape hall


▼将多样的室内空间与绿色环境相连,provides open lines of sight into the diverse interior spaces and the green surrounding


▼将多样的室内空间与绿色环境相连,provides open lines of sight into the diverse interior spaces and the green surrounding


快乐的“最低生存空间”
Joyful “Existenzminimum”
受制于当下经济环境,公寓面积普遍偏小。为了最大化利用空间,最小户型取消了玄关与走廊,只设开放式厨房。部分外立面装有滑动隔墙,以形成小尺度的套间空间。玻璃幕墙通至地面,将公寓向外延展,视觉上更显宽敞。所有公寓均设环绕式阳台,可通过2.3米×2.3米的推拉窗进入。建筑转角采用开放设计,增强内外的通透与轻盈感。整体上,设计有意识地借用了C.I.A.M.的原则——光、空气与景观——以展示社会住房同样可以提供一定的空间奢华感。
The apartments in the building—corresponding to the current economic circumstances—are rather or very small. To utilize the space available as effectively as possible, only open kitchens are provided, and entrance halls and corridors are dispensed with in the case of the smallest apartments. Along the façades, sliding walls are installed in part so as to form small enfilades. The façades are glazed down to floor level in order to expand the apartments spatially toward the outside and make them appear roomier. All the apartments also have a circumferential balcony, which can be accessed via a sliding window of 2.3m x 2.3m in dimension. The corners of the building are designed in an open manner so as to engender lightness both inside and outside. On the whole, an attempt is made to consciously make use of the C.I.A.M. principles such as light, air, and panorama in the interior space as well. The aim is to show that a certain spatial luxury is also possible in social residential construction.
▼公寓均设环绕式阳台,All the apartments also have a circumferential balcony

▼建筑转角采用开放设计,The corners of the building are designed in an open manner

▼增强内外的通透与轻盈感,engender lightness both inside and outside

围墙、入口与轻盈体量
The wall, the Entrance, and a rather light Building
建筑设计在很大程度上受制于如何将历史监狱围墙纳入整体构图,以及如何在公共广场角落形成一个重要入口。基座因此在多个位置采用大挑檐,底层以六根厚重的“柱脚”和厚板支撑,营造出悬挑桌面的结构意象。立面以抛光水磨石构件表现足够的视觉厚重感,同时也呼应预制混凝土的灰色监狱围墙。整栋建筑“托举”在这一“桌面”之上,自此向上逐渐过渡为金属网格化的阳台立面,呈现轻盈对比。开敞的转角、环绕露台的轻质廊架以及高挑屋檐共同塑造了介于垂直与水平之间的张力,在城市厚重感与现代轻盈感之间寻求平衡,契合新城区的特质。
The design of the building is shaped to a great extent by the architectural integration of the historical prison wall into the overall composition as well as the formation of an urbanistically important corner entrance on the public square. To facilitate this, the base of the building must form generous cantilever extensions at several points. To express this structural fact tectonically as well, the high ground floor is designed with six massive “legs” and a thick slab so as to give the impression of a projecting table. It is outfitted with polished terrazzo elements with sufficient optical heaviness, and simultaneously also incorporates the gray of the prison wall of prefabricated components in its design. The entire building thus rests on the “table,” which gives rise to a rather light and contrasting impression. This develops upward in a calm manner with the metal, grid-like façade of balconies. Important design elements are thus the glazed open corners, the lightweight pergolas around the two rooftop terraces, and the high edge of the roof, behind which the building technology is concealed. What develops on the whole is a building that intentionally oscillates between verticality and horizontality, and strives for a balance between urban heaviness and modernistic lightness in order to allude to the character of the new residential district in an optimal way.
▼立面以抛光水磨石构件表现足够的视觉厚重感,outfitted with polished terrazzo elements with sufficient optical heaviness

▼金属网格化的阳台立面,grid-like façade of balconies

经济性与生态性
Economical + Ecological
为实现经济建造,设计自始即融入多项措施:每层最多14户的紧凑布局;仅设两部电梯与两处楼梯的高效交通核;紧凑的外壳;标准轴线尺寸,方便高预制率的系列化建造;环绕阳台兼作施工脚手架,大幅降低建造成本。得益于外壳混凝土的设计,室内装修成本被降至最低。建筑的紧凑性同时也提升了物理性能。外立面采用三层太阳控制玻璃,并由阳台被动遮阳。所有公寓均接入冷热系统,确保夏季舒适。整体能耗比荷兰已相对严格的BENG标准低约20%(约24kWh/m²)。所有屋顶均为绿色屋顶,增强生物多样性并储存雨水;最高屋顶还布置了光伏设施。结构寿命预计至少100年,并在户间隔墙中预留无钢筋区,方便未来合并公寓。此举为创立于1868年的阿姆斯特丹住房公司 De Alliantie Ontwikkeling B.V. 提供了在22世纪仍可转型的良好基础。
To be able to construct the building economically, a wide range of deliberate measures have been integrated into the planning from the start. A good typological basis is created by the up to fourteen apartments per story, the very efficient access with only two elevators and two staircases, and the compact shell of the façades. At the same time, the use of standard axial dimensions facilitates serial construction with a high degree of prefabrication. The wrap-around balconies are also used as scaffolding and thus considerably reduce the costs involved in erecting the building. As a result of the designed concrete of the shell construction, interior construction costs are reduced to a minimum. With its great compactness, the building simultaneously provides outstanding basic conditions with respect to building physics. The façades are executed with triple solar-control glass and, in addition, are also shaded passively by the balconies. All the apartments are connected to a heating and cooling system, thus guaranteeing high thermal comfort in the warm summer months as well. Altogether, the building therefore lies roughly 20 percent under the Netherlands’, in any case, already high BENG standard (ca. 24 kWh/m2). All the roofs are designed as green roofs in order to strengthen biodiversity in the district and provide sufficient storage for rainwater at the same time. On the upper roof level, a photovoltaic installation is realized in addition. The shell construction has an estimated lifespan of at least 100 years. To facilitate a conversion with larger apartments in the future, breakthroughs in the partition walls between apartments can be realized relatively simply, since zones free of reinforcements are envisioned here. The Amsterdam housing company De Alliantie Ontwikkeling B.V., which was established in 1868, is thus provided with a good basis for a possible transformation of the building in the twenty-second century.
▼施工过程,construction progress


▼场地区位,site location

▼场地平面,site plan

▼一层平面,ground floor plan

▼四层平面,fourth floor plan

▼五层平面,fifth floor plan

▼六层平面,sixth floor plan

▼七层平面,seventh floor plan

▼屋顶平面,roof plan

▼立面,elevation




▼剖面,section



▼细部,detail

Program: 140 apartments, commercial space, bicycle parking
Address: Dijkmeerlaan 1A, 1B, 3 t/m 283 1096 DE Amsterdam
Architects: Atelier Kempe Thill architects and planners
www.atelierkempethill.com
Client: de Alliantie
Jan van der Heijdenstraat 36
1221 EJ Hilversum
Team Atelier Kempe Thill: Atelier Kempe Thill architects and planners, Rotterdam NL
André Kempe, Oliver Thill, Marc van Bemmel with:
David van Eck, Phillip Haak, Maria Dau, Christine Hahnel, Lena Behrendt, Kento Tanabe
Structural engineer: ABT, Velp NL
Building services engineer: Techniplan, Rotterdam NL














