Nagikko幼儿园,日本 / MOUNT FUJI ARCHITECTS STUDIO
由土地孕育的幼儿园 A Nursery School Nurtured by the Land
农田沿着一片向南缓缓倾斜的坡地展开。北侧,奈义山——其平坦的山脊自东向西延伸——如同一处安静的背景,栖息于小镇之后。尽管地处冈山县,该地区位于群山环绕的内陆,降雨相对充沛。当地被称为“广户风”的强风在夏末尤为迅猛地掠过大地。秋季,浓雾笼罩地表,冬季则积雪覆盖。
Farmland spreads across a gently descending slope facing south. To the north, Mount Nagi—with its flat ridge extending east to west—rests in the background like a quiet backdrop to the town. Although located in Okayama, the area lies inland among mountains, receiving relatively abundant rainfall. Strong winds known locally as “Hiroto winds” sweep rapidly across the land, especially toward the end of summer. In autumn, dense fog blankets the ground, and in winter, snow accumulates.
▼项目概览,overview of the project

在这样一个充满动态变化的自然环境中,小镇既不对抗自然,也不完全顺从自然,而是在土地与社会相互叠合的微妙平衡中存在。通过直接接触原始自然,孩子们不仅能锻炼出健康的身体,也在日常生活中吸收丰富且多样的信息——无论在数量还是质量上。每当我从东京来到这里,都会对这种环境心生羡慕,甚至不禁思考,这是否也是该地拥有全国较高出生率的原因之一。
Within this dynamic natural environment, the town appears neither to resist nature nor to fully submit to it, but rather to exist in a delicate balance where land and society overlap. By engaging directly with raw nature, children not only develop healthy bodies but also absorb a rich variety of information—both in quantity and quality—on a daily basis. Each time I visited from Tokyo, I found myself envying this environment, wondering if it might also help explain why the town has one of the highest birth rates in the country.
▼鸟瞰,aerial view

小镇计划将原有三处教育与托育设施整合为一个面向0至5岁儿童的一体化中心。2019年通过提案竞选,我们被选中负责该项目的设计。从一开始,我们便设想,这将是一处延续我们对小镇最初印象的场所——一个由奈义之地本身滋养儿童的空间。
The town planned to consolidate its three existing educational and childcare facilities into a single integrated center for children aged 0 to 5. Following a proposal process in 2019, we were selected to design the project. From the outset, we envisioned a facility that would extend our initial impression of the town—a place where the land of Nagi itself nurtures the children.
▼建筑外观,building appearance

景观即建筑/建筑即景观 Landscape as Architecture / Architecture as Landscape
最终形成的是一种简洁的构成:一系列沿东西向排列的钢结构框架,如同水平展开的横杆,其间交替布置着从南北两侧倾斜的大型木质屋面板。这些木屋面通过将胶合木桁架的下弦与CLT板整合为一体,形成统一结构。其强大的面内刚度可将水平荷载高效传递至下坡一侧的钢筋混凝土墙体,使钢框架仅承担竖向荷载,从而实现纤细而优雅的比例。
What we arrived at was a simple composition: a series of steel frames aligned east–west like a set of horizontal bars, with several large wooden planes leaning alternately from the north and south. These wooden roof planes are formed by integrating the lower chords of laminated timber truss beams with CLT panels, creating a unified structure. Their strong in-plane rigidity efficiently transfers lateral forces to reinforced concrete walls on the downhill side, allowing the steel frames to support only vertical loads, resulting in a slender and elegant proportion.
▼装配过程,assembly construction process

沿钢结构的中心轴线延伸出一条约100米长的廊道空间,被命名为“奈义之道(Nagimichi)”。在这一轴线两侧,托育室与游戏空间在木屋面之下呈折叠、褶皱状展开。“奈义之道”如同一条街道般的空间——没有预设用途——既鼓励自发活动的发生,同时也作为缓冲空间,承接周边房间溢出的各种活动。
Along the central axis of the steel structure runs a corridor-like space approximately 100 meters long, named “Nagimichi.” Flanking this path in a folded, pleated arrangement are nursery rooms and play areas beneath the wooden planes. “Nagimichi” functions like a roadside space—one without predetermined use—encouraging spontaneous activity, while also serving as a buffer that accommodates activities overflowing from the adjacent rooms.
▼室内概览,overview of the interior

▼托育室与游戏空间,nursery rooms and play areas


这些相互连接的房间从中心向边缘逐渐降低天花高度,使空间从“奈义之道”一侧明亮、活跃且开阔的状态,连续过渡到更加亲密、略暗且更具身体感的小尺度空间。连同可自由使用的“奈义之道”,孩子们将如同解读土地一般解读这一环境,根据自身的行为与情绪,自主发现属于自己的空间。
The connected rooms gradually decrease in ceiling height from the center toward the edges, transitioning continuously from the bright, active, expansive space along Nagimichi to more intimate, dim, and physically grounded smaller spaces. Including the freely usable Nagimichi, children will interpret the environment much like they interpret the land itself, discovering their own places in response to their activities and moods.
▼廊道空间,corridor-like space




▼“奈义之道”,“Nagimichi”

内外相互交织的褶皱式空间组织,形成多个庭园,将奈义的自然环境引入其中。设有深檐的“奈义之道”在雨天亦可作为活动空间,成为连接室内与室外的类似“缘侧”的中介区域。所有这些都是将孩子们引向奈义之地的建筑装置。然而回望这一过程,这个项目仿佛本身就是奈义景观的一部分。
The pleated spatial configuration—where interior and exterior intertwine—creates multiple gardens that draw in the natural environment of Nagi. The eaves-covered Nagimichi, which also serves as a place for physical activity during rainy weather, acts as an intermediate, engawa-like zone connecting indoors and outdoors. All of these are architectural devices that bring children closer to the land of Nagi. In retrospect, however, it feels as though the project was designed as part of the landscape of Nagi itself.
▼庭园,courtyard

作为图像网络的景观 Landscape as an Image Network
建成后的幼儿园沿东西向延展的形态,与其背后的奈义山相呼应。同时,它也令人联想到当地用于晾晒稻谷的“架挂(hasa-kake)”结构。其低矮而具有庇护性的屋顶——为抵御“广户风”而设计——让人想起周边住宅的山墙屋顶,也有人将其比喻为母亲温柔托起的双手。它还常被视为邻近奈义当代美术馆的一个附属体。
The completed nursery, with its elongated east–west form, resembles Mount Nagi rising behind it. At the same time, it evokes the “hasa-kake” structures used for drying harvested rice in the region. Its low, sheltering roof—shaped to resist the Hiroto winds—recalls the gabled roofs of surrounding houses, while some have even likened it to a mother’s gently cupped hands. It is also often described as an annex to the nearby Nagi Museum of Contemporary Art.
▼项目周边景观,surrounding landscape of the project

作为一所托育设施,这座建筑并未收敛为单一的形象,而是在不同尺度的地域景观之间生成连续的联想。成为小镇景观一部分的建筑,并不需要强加单一形象,而是应当激发居民多样的解读,与场所中独特的元素建立无数联系,从而不断丰富并强化与土地相关的意象网络。
Rather than converging into a single image as a childcare facility, the building forms successive associations with various landscapes of differing scales throughout the region. Architecture that becomes part of a town’s landscape may not impose a singular image, but instead invite diverse interpretations among residents, forming countless connections with elements unique to the place. In doing so, it deepens and strengthens the network of images tied to the land.
▼夜景,night view


我们希望奈义町的孩子们能够在这片土地的滋养下健康成长——无论在身体还是想象力层面——通过与土地的深度连接,充分感受其所赋予的一切。
It is our hope that the children of Nagi Town will grow up healthy, receiving the full blessings of the land—both physically and imaginatively—through their deep connection with it.
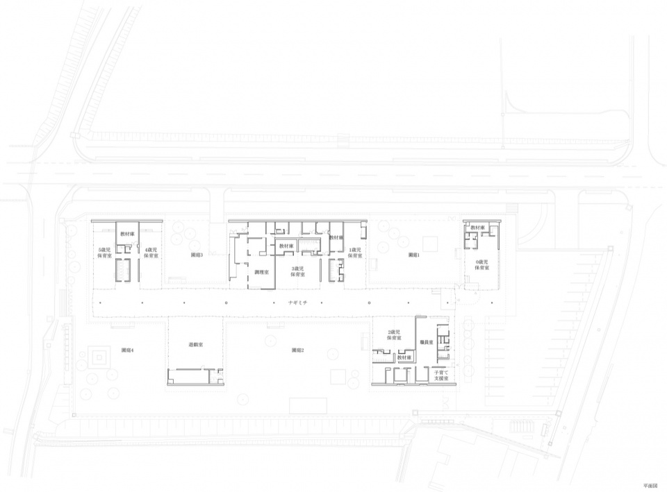
▼场地平面,site plan

▼总平面,master plan

▼剖面,section

▼轴测图,axonometric drawing

▼细部,details














