金海湾幼儿园,重庆 / NAN建筑事务所
本项目位于重庆渝北礼嘉区域,北临嘉陵江,面向开阔的江景。场地呈直角三角形,用地紧张且条件苛刻,在充分回应城市环境与教育建筑功能需求的同时,我们探索了空间叙事与儿童心理发展的结合。
This project is located in the Lijia area of Yubei District, Chongqing, adjacent to the Jialing River on the north side, with expansive river views. The triangular site is extremely constrained, posing strict spatial and environmental challenges. In response, the design seeks not only to resolve the functional requirements of an educational building, but also to integrate spatial narratives with the psychological development of children.
▼项目概览,project in the context

▼项目与环境,project in the context


▼项目与周边环境鸟瞰,Aerial view of the project and surrounding environment


首先,在儿童心理学的视角下,幼儿园建筑不仅是教育的容器,更是儿童认知、感知与想象力的启蒙场所。为此,设计采取了错叠堆叠的体量策略:各教学单元依次向后退,让每一层都拥有独立的露台。这些露台既是室内空间的自然延伸,也是儿童心理成长所需的“过渡性空间”,使孩子们在活动中感受到层层递进却无隔绝感的空间体验。因而,每一层都仿佛“在地面上”,儿童始终处于安全而开放的环境之中。
From the perspective of child psychology, a kindergarten is not merely a container for education but also a catalyst for children’s cognition, perception, and imagination. To this end, the design adopts a staggered stacking strategy: each classroom unit is set back in sequence, allowing every floor to enjoy its own terrace. These terraces act as natural extensions of the indoor space, serving as “transitional zones” essential to children’s psychological growth. They provide a sense of continuity so that each level feels as if it were on the ground floor, ensuring openness without isolation.
▼错叠堆叠,the staggered stacking strategy

▼独立的露台,the independent terrace

▼安全开放的环境,the safe and open space

在界面处理上,建筑南北向采用大面积落地玻璃,使南侧充足的日照与北侧的江景最大化进入室内,形成明亮而开放的学习氛围。东西向则以陶土砖幕墙构建出通透的界面:这种半透明的肌理在白天有效削弱了西晒与邻近别墅区、街道的干扰,在夜晚则被内部光影激活,呈现出轻盈而温润的“灯笼”意象。对于儿童而言,这种光影变化不仅提升了空间的安全感,也营造出富有幻想色彩的氛围。
In terms of façade articulation, large floor-to-ceiling glazing is employed on the south and north elevations to maximize natural daylight from the south and panoramic river views from the north, creating a bright and open learning environment. On the east–west axis, a permeable terracotta brick screen defines the façade: during the day, its porous texture mitigates westward glare and shields views from the neighboring villas and streets, while at night, it transforms into a luminous, lantern-like skin—lightweight, delicate, and evocative. For children, such dynamic light and shadow not only enhance their sense of safety but also cultivate an atmosphere rich in imagination.
▼大面积落地玻璃,the large floor-to-ceiling glazing

▼“灯笼”意象外立面,lantern-like skin



在城市层面,设计亦强调不同界面的差异化回应。建筑北侧紧邻城市道路与江景,因此将走廊、楼梯间、办公室等辅助空间集中布置于此,并通过开放的连续走廊形成公共观景平台,延续了城市景观的开放性。南侧则以错落的体量削弱了建筑的压迫感,形成更为亲和的社区界面。
At the urban scale, the building addresses each interface with distinct strategies. The north side, facing the main road and river, accommodates circulation and auxiliary spaces such as corridors, stairwells, offices, and meeting rooms. These are organized into a continuous open walkway that doubles as a public viewing platform, extending the openness of the riverside landscape. The south side, in contrast, presents a playful and fragmented massing that softens the building’s presence and creates a more intimate interface with the residential neighborhood.
▼临街界面,street facing interface

▼夜景,night view

整体而言,该建筑以“错叠堆栈”的空间原型回应了场地的限制与教育功能的需求;以“半透明幕墙”的策略在不同尺度上协调了儿童心理体验与城市界面关系。它既像一个童话般的城堡,充满童趣与想象力,又以细腻的空间策略回应了环境、日照与心理成长的多重议题。
In sum, the design employs the spatial prototype of “staggered stacking” to reconcile the limitations of the site with the demands of early childhood education, while the “semi-transparent façade” strategy negotiates the relationship between psychological experience and urban interface. The result is a kindergarten that resembles a fairy-tale castle—playful and imaginative—while simultaneously addressing environmental, solar, and developmental considerations with architectural precision.
▼鸟瞰夜景,aerial view of night scenery

▼轴测图,axonometric drawing

▼总平面图,Site-Plan

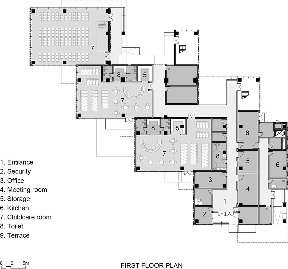
▼1层平面图,Plan-F1

▼2层平面图,Plan-F2

▼3层平面图,Plan-F3

▼屋顶平面图,Roof-Plan

▼剖面图,Section


NAN建筑事务所
NAN Architects
主持设计师:南旭
设计团队:周鼎奇、唐慧莲、王文彧,杨慧玲、陈梦凡、沐灿琪、马琪
结构顾问:张准
业主:香港置地,招商蛇口
施工图:中机中联工程有限公司、中煤科工集团重庆设计研究院
摄影:刘松恺
项目年份:设计2018年 建成2022年
建筑材料:钢筋混凝土,陶土砖,落地窗
Principal: NAN Xu
Design Team: ZHOU Dingqi, TANG Huilian, WANG Wenyu, YANG Huiling, CHEN Mengfan, MU Canqi, MA Qi
Structural Consultant: ZHANG Zhun
Client: Hongkong Land, China Merchants Shekou
Construction Drawings: China Machinery Zhonglian Engineering Co., Ltd., China Coal Technology & Engineering Group Chongqing Design & Research Institute
Photography: LIU Songkai
Project Year: Design 2018, Completion 2022
Materials: Reinforced concrete, terracotta brick, floor-to-ceiling glazing














