柏林ZKU艺术与城市学中心改造,德国 / Peter Grundmann Architekten
ZKU艺术与城市学中心于2012年成立。其前身为柏林莫阿比特的一座旧货运站。其多元化的活动不仅涵盖艺术、城市研究及各类音乐活动,还包括城市战略、讲座、电影放映、社区市集等。随着活动范围不断扩大,现有的空间很快便不敷使用。
The ZKU – Center for Art and Urbanistics was established in 2012 with the conversion of a former freight station in Berlin Moabit. Its highly diverse program includes not only art, urban research, and various music events but also urban strategies, lectures, cinema, neighborhood markets, and much more. The available space soon became insufficient for the growing range of activities.
▼项目概览,project overview


▼活动中心,Center for Art and Urbanistics

2016 年,ZKU艺术与城市学中心决定进行扩建。但由于项目四周均为公园,扩建必须以不占用任何开放空间的方式进行。最终的解决方案是:在原有未供暖的仓库上方加建一层。
In 2016, the decision was made to expand. Since the ZKU is surrounded by a park on all sides, the expansion had to be designed in a way that would not occupy any of the open space. The solution was to add an extra floor to the old, unheated warehouse.
▼周边环境,surrounding environment of the project


建筑的原有屋顶被拆除,但地下层大厅的所有墙体和天花板均得以保留。新的结构环绕在现有砖墙之外,而这些砖墙保持原貌,未做保温处理,从而保留了建筑的工业特征。
The roof was removed, but all the walls and ceilings of the basement-level hall were retained. The new structure wraps around the existing brick walls, which remain raw and uninsulated, preserving the industrial character of the building.
▼新增结构概览,new structure overview


▼建筑的工业特征,the industrial character of the building


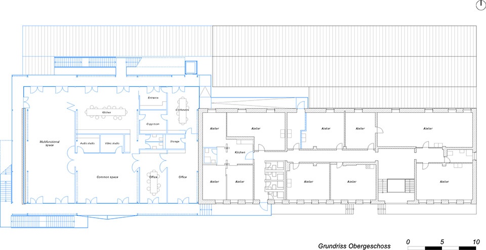
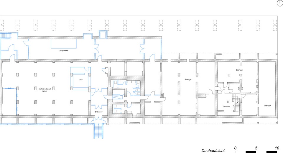
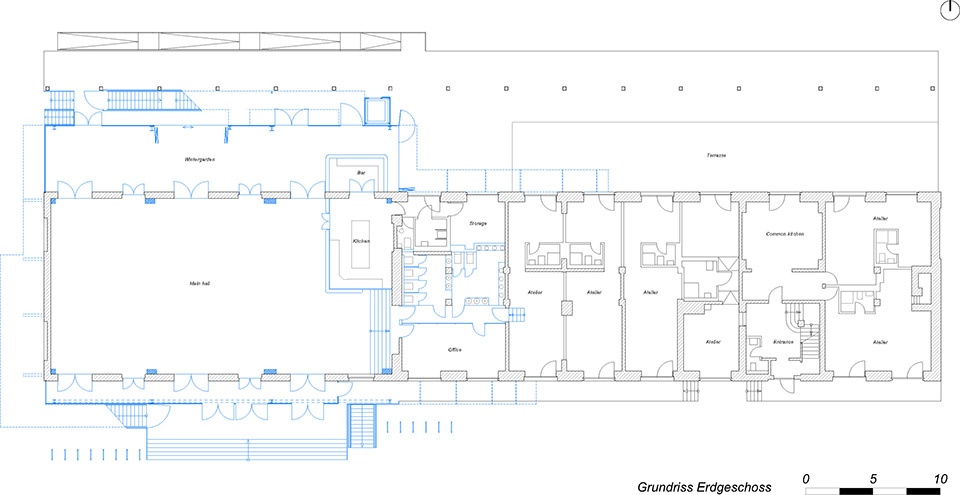
地下层与底层为大型活动空间。南侧的玻璃幕墙距离砖墙1.80米,形成类似画廊的空间。北侧的玻璃幕墙则后退6米,从而增加了一间房间。两座外部楼梯通向由环绕的廊道围合的上层空间。这些廊道既可从室内进入,也可从室外通行。屋顶被设计为大露台,旨在提供全景视野。
The basement and ground floors house large event spaces, and the glass façade on the south side is positioned 1.80 meters away from the brick wall, creating a gallery-like space. On the north side, the glass façade is set back by six meters, allowing for an additional room. Two external staircases lead up to the upper floor, which is surrounded by gallery walkways. These walkways provide access to the space both from inside and outside. The roof can be used as a large terrace, offering panoramic views.
▼大型活动空间,the large event spaces

▼不同的活动空间,different activity spaces


▼上层空间,the upper floor

▼楼梯与廊道,gallery walkways and staircases




旧有与新建的元素均以开放的方式依次展开,如带屋顶的平台、楼梯、玻璃幕墙、结构本身、环廊、砖墙以及室内空间,最终形成一个开放而一体化的场所。这些建筑元素之间的动态互动,又因众多艺术家、文化工作者与社区团体的参与而进一步丰富,使其成为一座充满活力的艺术与城市交流中心。
The old and new elements—such as the platform with its roof, the staircases, the glass façade, the structure itself, the gallery walkways, the brick wall, and the interior rooms—are all laid out openly,one behind the other, creating an open, integrated space. This dynamic interplay of architectural elements is further enriched by the many artists, cultural workers, and community groups that contribute to the space, making it a lively center for art and urban interaction.
▼室内细部,interior details


▼建筑立面图,elevation drawing



▼屋顶平面图,roof plan

▼各层平面图,floor plan

















