河南省科技馆新馆,郑州 / 同济院麟和建筑工作室 ATELIER L+
中原大地亘古弥新,科技人文星汉璀璨。河南省科技馆新馆汲取“河洛文化”灵感,宛如黄河与洛河交汇形成的自然造型,大气舒展、浑若天成;又如飞鸟振翅,以强烈的文化与科技感“展翼中原”。
The land of the Central Plains is ancient and new, and the stars of science, technology, and humanities shine brightly. The New Science and Technology Museum of Henan Province draws inspiration from the “Heluo Culture”, resembling a natural shape formed by the confluence of the Yellow River and the Luo River, with a grand and relaxed atmosphere, as if it were naturally formed; Like a flying bird flapping its wings, it spreads its wings in the Central Plains with a strong sense of culture and technology.
▼主入口视角,Main entrance

▼主门厅,main hall

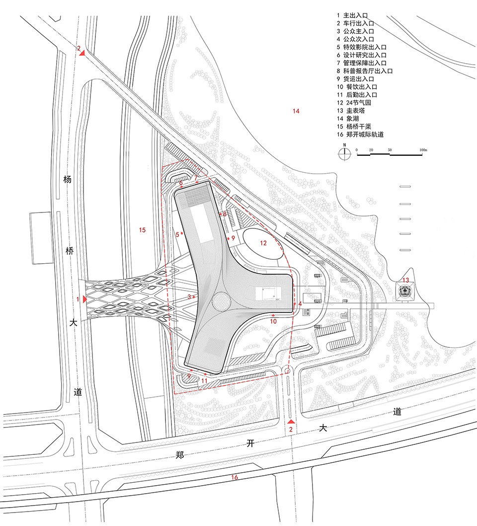
河南省科技馆新馆位于郑州市郑东新区白沙象湖规划区,由科技馆、自然馆与天文馆三馆合一,是河南省规模最大、投资最多的公益性项目,也是国内最大规模的科技馆之一。
▼区位图,location map

New Science and Technology Museum of Henan Province is located in the planning area of Baisha Xianghu in Zhengdong New District, Zhengzhou City. It combines the Science and Technology Museum, the Nature Museum, and the Astronomy Museum into one, and is the largest and most invested public welfare project in Henan Province. It is also one of the largest science and technology museums in China.
▼形体与水陆格局,volume and Water and land pattern

设计源于建筑环境前沿技术的转化,建筑被当作一个“环境智能建造”样本,总体格局、形态、系统来自环境风能流动与响应的精准塑形,建筑形态最大化契合场地风场;大尺度复合空间形态,强化建筑性能与建构的整体性;如同巴克敏斯特·富勒提出的“能量高效的环境控制装置”, 项目旨在以更少的材料、能量以及更有效的环境控制,塑造一个具有环境智能响应特征的建筑。建筑整体按照绿色三星设计、建造与运营。
▼草图,concept sketch

Design originates from the transformation of cutting-edge technologies in the architectural environment, where buildings are regarded as a sample of “environmental intelligent construction”. The overall pattern, form, and system are precisely shaped by the flow and response of environmental wind energy, and the building form maximizes its fit with the site’s wind field; large scale composite spatial forms enhance the overall performance and construction of buildings. Like Buckminster Fuller’s “geodesic domes providing a climate-controlled environment with less energy by enclosing large volumes with minimal surface area,” the project aims to shape a building with intelligent environmental response features with less material, energy, and more effective environmental control. The overall design, construction, and operation of the building are in accordance with the three-star standard of The Green Building Evaluation Label.
▼主入口建筑形态与景观,The architectural form and landscape of the main entrance

▼入口水景与幕墙,water feature and curtain wall

项目场地处于三角形态的复杂城市场地环境之中,东侧为象湖、西侧为引黄干渠、南侧为连接郑州与开封的交通主干道和城市轻轨线。整体规划是对城市大尺度场景和复杂场地的精准分析和响应:建筑布局采用三叉分形,呼应面向郑州、开封和未来城市中心三个方向的空间方位;建筑形态精准契合场地风场,成为环境能量流动、引导与捕获的空间塑形,形成最优化场地风流环境通风与舒适性能。项目关注气候韧性设计,地下空间整体与场地整体抬升形成3米台地,成功规避城市水灾考验。总体设计提出“馆园一体”理念,科技馆和圭表塔一横一纵,形成入口广场、科技馆、室外展场,最终收于圭表塔的空间主轴;面对象湖则形成多层次错落场地形态,建筑绵延展开于湖畔。顺应建筑布局构建不同主题的广场、花园和路径,如同磁力线环绕建筑,内外交融、立体丰富。
▼建筑轴测分析图,The building axonometric analysis

The site is located in a complex urban environment with a triangular shape, with Xianghu on the east side, the Yellow River diversion canal on the west side, and the main road and urban rail line connecting Zhengzhou and Kaifeng on the south side. Overall planning is a precise analysis and response to large-scale urban scenes and complex sites: the architectural layout adopts a trident fractal, echoing the spatial orientation facing Zhengzhou, Kaifeng, and the future city center. The architectural form precisely fits the site’s wind field, becoming a spatial shaping that guides, captures and flows environmental energy, forming the optimal site’s airflow environment, ventilation and comfort performance. The project focuses on climate resilience design, and the overall underground space and site are elevated to form a 3-meter platform, successfully avoiding the urban floods. The overall design proposes the concept of “integrating the museum and the park”, with the science museum and the Guibiao Tower arranged horizontally and vertically, forming an central axis from entrance plaza, science museum, and outdoor exhibition area, ultimately culminating in Guibiao Tower. Facing Xianghu, a multi-level and staggered site form is formed, with buildings stretching out along the lake shore. Construct squares, gardens, and paths with different themes in accordance with the architectural layout, like magnetic lines surrounding the building, blending the inside and outside, and enriching the three-dimensional space.
▼象湖视角雪景,Snow scenery from the perspective of Xianghu Lake

▼主入口雪景,Snow scenery from the main entrance

建筑近3000平方米的巨构中庭是空间集散、组织和体验的核心,围绕中庭空间形成动态连续的空间叙事;建筑内部空间来源于“天体运行”的宏阔想象,采用三层大跨度异型钢桁架连廊;不同层面的公共平台穿插、错落和连接,强烈的空间流动感和视角变幻强化整体体验,形成了如天体运行般精密复合的有机系统。球体影院形成科技馆中庭“空间之眼”,是全国最大的室内球幕影院,形成科技馆中央大厅的视觉焦点。
The atrium nearly 3000 square meter in the building is the core of spatial distribution, organization, and experience, forming a dynamic and continuous spatial narrative around the atrium space; The interior space of the building is derived from the grand imagination of “celestial movement”, using a three story large-span special-shaped steel truss corridor. The interweaving and connecting of public platforms at different levels enhance the overall experience with a strong sense of spatial flow and changing perspectives, forming a precise and complex organic system like the movement of celestial bodies. The spherical cinema forms the “eye of space” in the atrium of the building, and is the largest indoor ball screen cinema in the country, forming the visual focus of the central hall of the science and technology museum.
▼序厅,Preface Hall


▼中央大厅休息区,Central hall lounge area

▼序厅与球幕影院,The preface hall and the dome cinema


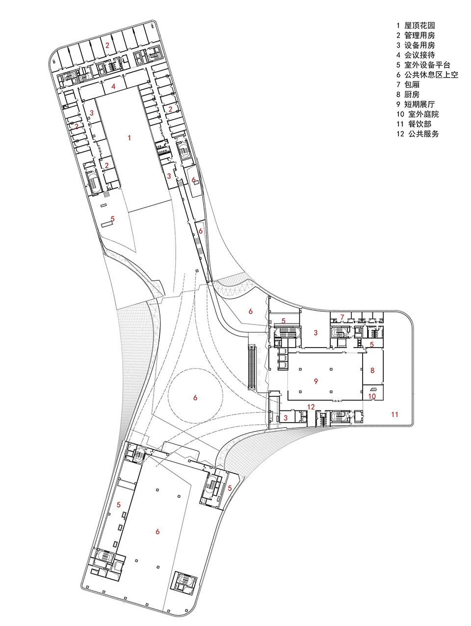
建筑功能包括主体部分和场地花园之下的大型车库两大部分。近20个大型展馆以“自然、天文、智能”为核心理念,围绕中庭空间三翼展开,主要功能区分为四层:一层与局部夹层为学术交流区、特效影院区(局部降至地下一层)与儿童探索展区;二层为智慧人类展区、自然生态展区、野生动物展区和球幕影院入口层;三层为科学奥秘展区、创新行动展区、军事航天展区、魅力中原展区和咖啡厅;四层为行政办公、业务研究用房和公众餐厅;地下一层为影院、后勤设备、库房与大型停车区。
▼科技馆流线分析图,circulation analysis

The building functions include two main parts: the main body and a large garage under the garden. Nearly 20 large exhibition halls are centered around the concept of “nature, astronomy, and intelligence” and are spread out around the three wings of the atrium space. The main functional areas are divided into four floors: the first floor and part of mezzanine are academic exchange areas, special effects cinema areas (partially lowered to the basement level), and Children’s Exploration Exhibition Areas; The second floor is the exhibition area for intelligent humans, natural ecology, wildlife, and the entrance level of the dome theater; The third floor consists of the Science Mystery Exhibition Area, Innovation Action Exhibition Area, Military Aerospace Exhibition Area, Charm Central Plains Exhibition Area, and coffee shop; The fourth floor is used for administrative offices, business research rooms, and a public restaurant; The basement level consists of a cinema, logistics equipment, warehouses, and a large parking area.
▼二十四节气园,The 24 Solar Terms Garden

▼三层公共休息区,The third floor public rest area

建筑形态设计遵循“形随流定”法则,建筑采用大尺度空间三维塑形。结合环境参数化技术平台进行的模拟验证,有效利用自然能量,从根本上趋利避害、促进通风、降低能耗;中庭空间通过热力学烟囱,实现过渡季节的自然通风控制。阳极氧化铝板表皮根据不同功能需求调整开窗率控制光线,展现建筑整体律动形态;建筑整体结合风洞实验优化表面受力模型,3D打印的刚体模型设660个风压测点,以312次/秒的扫描测定每个点的时空脉动特性,以此对建筑形态与表皮进行精准风压调试与风流引导。
▼不同季节风环境cfd模拟分析图,cfd simulation analysis diagrams of wind environments in different seasons

▼风洞实验,Wind tunnel experiment

The architectural form design follows the principle of “form follows flow”, and the building adopts large-scale spatial three-dimensional shaping. By combining environmental parameterization technology platform for simulation verification, effectively utilizing natural energy, fundamentally seeking benefits and avoiding harm, promoting ventilation, and reducing energy consumption; The atrium space achieves natural ventilation control during transitional seasons through thermodynamic chimneys. The anodized aluminum plate skin adjusts the window opening rate to control the light according to different functional requirements, showcasing the overall dynamic rhythm of the building; The surface force model of the building is optimized through wind tunnel experiments, and a 3D printed rigid body model is set up with 660 wind pressure measurement points. The spatiotemporal pulsation characteristics of each point are measured with 312 scans per second, in order to accurately adjust the wind pressure and guide the airflow of the building form and skin.
▼建筑形体与地景,Architectural form and landscape

面对大跨度、高复合、首创性技术挑战,项目全过程运用BIM技术和3D实景扫描技术,实现超大空间与复杂三维幕墙精益建造。双层铝板幕墙采用参数化设计实现超大规模鱼鳞状立面的分格纹理和自由曲面;为实现超大空间扭转钢结构建造,采用含方钢套筒独立柱的钢框架结构,中庭采用三层80米大跨度钢桁架连廊;采用项目设计及施工全程BIM模型,展现高度的设计与施工一体化组织效能。
▼建筑外表皮幕墙层次分析图 ,Analysis diagram of the layers of the building’s exterior skin curtain wall

Faced with the challenges of large-span, high composite, and pioneering technology, the entire project process utilizes BIM technology and 3D reality scanning technology to achieve lean construction of ultra large spaces and complex 3D curtain walls. The double-layer aluminum curtain wall adopts parametric design to achieve grid texture and free-form surface of the super large scale fish scale façade. To achieve the construction of ultra large space twisted steel structures, a steel frame structure with independent columns of square steel sleeves is adopted, and the atrium adopts a three story 80 meter large-span steel truss corridor. Adopting BIM models for project design and construction throughout the entire process, showcasing a high degree of integrated organizational efficiency between design and construction.
▼幕墙细节,Curtain wall detail


▼幕墙光影细节,Curtain wall light and shadow detail

河南省科技馆新馆获得上海市勘察设计公共建筑一等奖、华夏建筑科学技术奖二等奖、河南省土木建筑科学技术奖(建筑设计)一等奖、中国建设工程鲁班奖等奖项。项目投入使用一年以来,已接待近650万游客参观,最高日接待游客2.7万人,成为备受关注的展现河南“建设国家创新高地”的科技地标。
New Science and Technology Museum of Henan Province has won awards such as the first prize of Shanghai Survey and Design Public Building Award, the second prize of Huaxia Architecture Science and Technology Award, the first prize of Henan Provincial Award for Civil and Architectural Science & Technology (Architectural Design) and China Construction Engineering Luban Prize (National Quality Project) etc. Over the past year of the project’s operation, it has received nearly 6.5 million visitors, with a maximum daily reception of 27000 visitors, becoming a highly regarded technology landmark showcasing Henan’s “construction of a national innovation highland”.
▼象湖视角夜景,Night view from Xianghu Lake

▼主入口广场夜景,Night view of the main entrance square

▼杨桥干渠视角夜景,Night view from the perspective of Yangqiao Main Canal

▼西侧鸟瞰夜景,A bird ‘s-eye view of the night scene from the west side

▼东侧鸟瞰夜景,A bird ‘s-eye view of the night scene from the east side

▼总平面图,site plan

▼地下一层平面图,basement floor plan

▼一层平面图,ground floor plan

▼二层平面图,first floor plan

▼三层平面图,third floor plan

▼四层平面图,fourth floor plan

▼立面图,elevation



▼剖面图,section



▼细部,detail

Project name:New Science and Technology Museum of Henan Province
Project type:Exhibition Building
Design:ATELIER L+, Tongji Architectural Design (Group) Co., Ltd.
Website: http://www.atelierlplus.com
Contact e-mail: academy@atelierlplus.com
Design year:2016
Completion Year:2024
Leader designer & Team:
Project leaders: Li Linxue, Ren Lizhi
Architecture/Interior/Landscape Design: Li Linxue, Zhou Kaifeng, Liu Yang, Shan Yunxiang, Jiang Yongqian, Wang Yanwen, Jiao Yan, Guo Qianli, Ye Xincheng, Wu Yumo, Wu Qi, Kong Mingshu, Ni Runer, Wu Wenjing, Hu Jialiang, Qian Ren, Zhang Qi; Zhang Xu, Huang Hongbin, Lu Qinghai, Jin Xin
Structural design: Yu Zhongjun, Ruan Yonghui, Zhuojie, Wang Baotong, Zhang Shuai, Sun Huahua, Yan Yufei, He Lidong
Water supply and drainage design: Liu Jin, Gu Songming, Zhou Cuiwei
HVAC Design: Shen Xuefeng, Gu Yong, Li Bo, An Yusong, Ji Wangchuan, Zhang Xiaolei, Zhu Weihua, Zhan Guangyi
Electrical Design: Sun Feng, Wang Chang, Ye Xing, Liu Yu, Zhang Jiedong, Bing Heliang, Jin Hai
Excavation design: Jiang Wenhui, Liu Jikun
Three-star standard design of The Green Building Evaluation Label: Wang Zheng, Liu Bingyun, Zheng Xiaowei, Tang Chengyu, Wang Yingjun, Li Xiaolu, Li Dongmei
BIM Design: Liu Jian, Chen Ye
Logo Design: Hopesun Design Shen Haopeng Graphic Design Co., Ltd
Budget consultant: Yang Weiming, Chen Tingting
Wind tunnel test consultant: Quan Yong
Interior Consultant: Shanghai Tongji Architectural Interior Design Engineering Co., Ltd
Landscape Consultant: Shanghai Weiya Landscape Planning and Design Co., Ltd
Curtain Wall Consultant: Shanghai Yixuan Architectural Design Consulting Co., Ltd
Panguang Consultant: Dongliang International Lighting Design (Beijing) Center Co., Ltd
Weak current intelligent consultant: Shanghai Yisheng Construction and Installation Engineering Co., Ltd
Acoustic Consultant: Shanghai Acoustic Society
Civil Air Defense Consultant: Zhengzhou Civil Air Defense Engineering Design and Research Institute
Transportation Consultant: Shanghai Liwen Transportation Technology Co., Ltd
Project location:No. 100 Zhengkai Avenue, Baishaxianghu Planning Area, Zhengdong New District, Zhengzhou City, Henan Province
Gross built area: 129365㎡ (Underground 49240㎡)
Photo credit: ©Schranimages, Su Shengliang © ZY Architectural photography, Zhang Yong
Clients:Henan Science and Technology Museum
Materials:Anodized aluminum plate, Aluminum structure, Epoxy Terrazzo Floor
Brands:Anodized aluminum plate – Shanghai Anmet Aluminum Industry Co., Ltd., Aluminum structure – Shanghai Tongzheng Aluminum Alloy Structure Engineering Technology Co., Ltd., Epoxy Terrazzo Floor – Karry Floor Materials














