Borellini广场及原玛丽宫改造,意大利 / KM 429 architecture
新广场
The New Square
Piazza Garibaldi将成为城市的新核心——它是一条连接过去、现在与未来的轴线,是一个为城市复兴与振兴孕育机遇与行动的平台。加里波第大街(Viale Garibaldi)曾是一条重要却乏善可陈的城市道路,如今通过改造成为真正的城市广场,理想地衔接起稳固的历史中心与重建计划中的新公共功能。
The new Piazza Garibaldi is a new central hub—an axis connecting past, present, and future; a physical space designed to generate opportunities and initiatives for the revival and revitalization of the town itself. The transformation of Viale Garibaldi, once an important but unappealing urban road, into a proper urban square provides the ideal connection between the consolidated historic center and the new proposals of the Reconstruction Plan, which place new public functions along the extension of the street.
▼广场鸟瞰,aerial view of the plaza


广场的重新设计必须成为未来数年一切行动的起点与共同基准。城市的转型应当从广场开始——这个承载公民历史与象征意义的场所。它将成为整个城市区域的支点与纽带,吸引居民与访客,振兴并提升商业活力;更重要的是,它能随着时间的推移灵活适应,举办展览、集市、庙会、公众集会等活动,从而表达一种城市的可变性与灵活性。
The redesign of this urban space must serve as the starting point and the common denominator for undertaking new actions in the coming years. The transformation of the town must begin with the Square—a historical and symbolic place for citizens. It must become the fulcrum and binding element of the entire municipal area; a space capable of attracting both residents and visitors, revitalizing and enhancing commerce, and—most importantly—adapting over time to host events such as exhibitions, fairs, markets, and public gatherings, thereby expressing a concept of urban flexibility.
▼承载公民历史与象征意义的场所,a historical and symbolic place for citizens


这片广场象征着河流小镇所特有的文化融合——坐落在省区交界处,它既联合起Concordia的人民,又赋予他们独特的身份。它是一个以传统为起点、象征重启的全新标志。广场沿西南轴线延展约74米(位于加里波第大街与和平街交汇处),沿东北轴线延展约29米(至加里波第大街与穆拉托里街交汇处),总面积约1,600平方米。
This square stands as a symbol of the cultural blend typical of a river town located on the border between provinces and regions—a place that unites the people of Concordia and sets them apart. It is a new symbol for restarting from tradition. The square extends along a southwest axis for approximately 74 meters (intersection of Viale Garibaldi and Via Pace), and along a northeast axis for about 29 meters (intersection of Viale Garibaldi and Via Muratori), with a total surface area of roughly 1,600 square meters.
▼象征重启的全新标志,a new symbol for restarting from tradition


与场地的关系
Relationship with the Site
加里波第大街的城市更新——通过新广场与毗邻的私人建筑(原玛丽宫 Palazzo Mari)的改造——是一项既复杂又充满魅力的议题。它潜藏着未被释放的可能性,仿佛“静待”被唤醒,从而将“城市效应”延伸进周边的历史肌理。
The urban redevelopment of Via Garibaldi—through the creation of a new Square and the adjacent private building (former Palazzo Mari)—is both a fascinating and complex theme. It holds latent but open potential, almost “waiting,” to extend the “city effect” into the surrounding historic fabric.
▼原玛丽宫改造,the renovation of former Palazzo Mari



今日的康科迪亚因地震带来的紧急状态,面临着改变城市形态的迫切需求。唯有通过城市肌理的重组,才能改善功能性与公共福祉。本项目的首要目标,便是通过新加里波第广场,将历史中心重新与周边的建筑与地标相连,为更广泛与持续的复兴奠定基础。
Today, Concordia faces an urgent and unavoidable need to change its very urban form due to the consequences of the seismic emergency. Only through a reorganization of the territory can urban functionality and collective well-being be improved. The primary goal of this project, therefore, is to reconnect the historic center with its surrounding structures and landmarks by means of the new Piazza Garibaldi, thus setting the stage for a broader and more continuous system of reconnection.
▼将历史中心重新与周边的建筑与地标相连,reconnect the historic center with its surrounding structures and landmarks



设计聚焦于空间品质、宜居性、绿荫的重要性与人际交流的丰富性——它并非抹去记忆,而是解读该地的形态与特质,为场所注入与其潜能相呼应的“新能量”。“从城市符号重新出发”是本项目的核心理念:一条分隔过去与未来的线条。它的象征是一棵本土树种——既是2012年事件的“活体纪念”,也是一株新的“圣树”,回应康科迪亚的历史象征。它代表身份认同、可持续性与环境意识,成为城市新的引力中心——一个让人们聚集与成长的场所。
▼2012年地震后鸟瞰,aerial view after 2012 earthquake

The project will focus on place quality, livability, the importance of trees, and the richness of human interactions—pursuing an approach that does not erase memory, but rather interprets the morphology and specific characteristics of the area. The aim is to bring new “energy” to the context—energy that aligns with the site’s untapped potential. The idea of restarting from an urban symbol is the project’s conceptual core: a line drawn to separate the past from a projected future. This emblem—or allegory—is represented by a tree of native species, a living memorial to the 2012 events and simultaneously a new sacred tree, echoing Concordia’s historical symbolism. It stands for identity, sustainability, and environmental awareness. It becomes a new center of gravity for the town—a place where people can come together and grow.
▼让人们聚集与成长的场所,a place where people can come together and grow

在创新与传统的交融中,广场还将设置一条线性水景,呼应邻近的塞基亚河(Secchia River)。另一个身份标志是原玛丽宫的拱廊遗迹,被嵌入新建筑中,以静默而尊重的方式,让古今之间展开对话。新建筑线条简洁,与环境和谐融合,不做生硬对比,而是在现代性中明确表达其与场所的连接。
In blending innovation with tradition, the square will also feature a linear water feature—a reference to the nearby Secchia River. Another element of identity will be a preserved fragment of the original portico of the Palazzo Mari, integrated into the new building, honoring its shape and geometry in a silent, respectful dialogue between old and new. The new building, with its clean lines, integrates harmoniously with the context—avoiding stark contrasts and clearly asserting its connection to place despite its modernity.
▼广场中设置一条线性水景,the square will also feature a linear water feature


▼广场中设置一条线性水景,the square will also feature a linear water feature

空间The Space
本项目通过与周边地标的强烈联系来实现高质量的城市与建筑空间:它连接南北两端的广场,并通过历史中心庭院的内部通道,直达加里波第大街与塞基亚河堤岸。新加里波第广场将是完全无障碍的空间,没有几何屏障,同时仍允许轻交通流线,以保证周边商业的可达性。这条轻交通路径以地面金属槽标示,略偏北侧,以最大化行人空间。它与铺装表面齐平,不构成物理分隔,而是增强广场作为真正步行场所的潜力,可承载集会、集市、演出、音乐会与各种公共活动。
This carefully measured project aims to deliver high urban and architectural quality through strong connections to the area’s key landmarks: links to the two squares at the north and south ends, and to the Secchia riverbank, directly accessible from the avenue and the new square via internal pathways through the historic center’s courtyards. Piazza Garibaldi will be a fully accessible space, free of geometric barriers, while still allowing for light traffic circulation to ensure continued accessibility to the local commercial activities. This light-traffic route, outlined on the ground with a metal channel, will be located slightly off-center—specifically on the north side—to maximize pedestrian space. This design choice is not a physical barrier or subdivision, as it sits flush with the rest of the paved area. Rather, it enhances the potential of a truly pedestrian surface that can host large gatherings, markets, performances, concerts, and all types of public events.
▼保证周边商业的可达性,ensure continued accessibility to the local commercial activities


▼连接南北两端的广场,links to the two squares at the north and south ends


▼可承载集会、集市、演出、音乐会与各种公共活动,
a truly pedestrian surface that can host large gatherings, markets, performances, concerts, and all types of public events


如前所述,广场将呈现两个城市符号。第一是被安置于圆形混凝土砾石长凳中的一棵树,象征时间流逝,代表“新康科迪亚”。第二是一道“水刃”,在地面勾勒出已拆除的玛丽宫的轮廓。与保存下的拱廊遗迹一道,它也标示出圣保禄归化教堂的入口,创造一个新的保护性集会空间。额外的城市家具——如混凝土座椅与灯杆——将放置在玛丽宫遗址位置,既作为纪念标志,也作为新建筑底层商业与工艺活动的衬托。
As previously mentioned, the square will feature two urban symbols. The first is a tree planted in a circular concrete gravel bench, symbolizing the passage of time and representing the “new Concordia.” The second is a water blade tracing on the ground the footprint of the demolished Palazzo Mari. Together with the preserved portico fragment, this feature will also indicate the entrance to the Church of the Conversion of St. Paul, creating a new protected gathering space off Via della Pace. Additional urban furnishings, such as seating made from concrete blocks and lighting poles, will be placed to mark the site of the demolished Palazzo Mari. These elements will also serve as frames for the commercial and artisan activities on the ground floor of the new building.
▼被安置于圆形混凝土砾石长凳中的一棵树,a tree planted in a circular concrete gravel bench


广场通过底层的有顶通道,与圣保禄教堂和牧师住宅之间的空间相连,从而扩大了广场的视野,也为周边功能提供保护与灵活性。这是一种有意策略,使复兴效应延伸至更广的区域——不是通过重复的拱廊,而是通过整体性的连接来实现。唯有如此,广场的使用机会才会增加,它才能成为全面城市更新的催化剂。广场虽然通过铺装确立了边界,但概念上仍延展至加里波第大街与和平街。街道的林荫延续与新城市大道相统一,连接起城镇的关键地标。
The new square will overflow and connect, via a covered passage on the ground floor, with the space between the rectory and the Church of St. Paul. This solution will effectively expand the square’s perspective while providing protection and flexible use for surrounding activities. It is a deliberate strategy to allow the regenerative impact of this new development to extend into the surrounding areas—not by replicating protective porticoes, but by connecting the built environment in a cohesive and accessible way. Only by doing this will usage opportunities grow, as the square becomes the catalyst of a comprehensive urban regeneration. While the square will have defined boundaries through its new paving, it will conceptually continue into Viale Garibaldi and extend onto Via Pace. The continuation of the tree-lined street will unify this extension with the new urban boulevard linking the town’s key landmarks.
▼以水平铺装创造整体感,using vertical “strips” to connect adjacent buildings and horizontal paving to create cohesion



设计回应了“统一表面”与“多变空间感”的双重需求,采用垂直“条带”与周边建筑呼应,以水平铺装创造整体感。它将成为一个克制而优雅的广场——以包容为旨,而非排斥。新的城市空间将重新组织高差,消除过去的不平整,创造一个统一且无障碍的区域。仅车行段会保持轻微拱形以便排水,其余部分坡度不超过2%。水景与广场铺装之间也会有轻微的高差,即使水景干涸,该区域依旧可用。
The proposed design responds to the dual need of unifying surfaces while varying the spatial perception of the place, using vertical “strips” to connect adjacent buildings and horizontal paving to create cohesion. It will be a measured, elegant square—intended to include, not exclude. The new urban space will reorganize the various existing elevation levels, eliminating prior unevenness and creating a unified and highly accessible area. Only the car-access section will have a convex slope for stormwater drainage. The remaining areas will have a maximum gradient of 2%. There will be a slight height difference between the paving and the water blade so that even when dry, the area remains usable.
▼克制而优雅的广场,a measured, elegant square

▼克制而优雅的铺装,a measured, elegant pavement


▼创造一个统一且无障碍的区域,creating a unified and highly accessible area


玛丽宫建筑群的重建
Reconstruction of the ‘Palazzo Mari’ Building Complex
新的玛丽宫将以空间关系为纽带,融入公共场所。它不仅通过材料选择实现整合,更通过空间组织与周边建立有意义的联系。这是一座两至三层的建筑,一层为商业用途,上层为住宅。重建体量保持在4,400立方米(毛体积)范围内,允许15%的扩增。建筑通过虚实平衡与新广场衔接:底层开口与廊道设计尊重原玛丽宫保存下的拱廊片段。新体量依附其旁,以体量与光影展开呼应。其显著特征在于底层布局:这里没有拱廊,而是开放通道,将广场与牧师住宅及教堂相连,在空间上形成连续统一的铺装。新建筑采用L形平面布局,顺应重建计划要求,成为新广场的背景。底层铺设商铺与橱窗,以严谨的城市设计语言呈现,避免自我表现或无谓的张扬。其建筑的和谐感源于对周边建筑环境的融入。新玛丽宫并未试图以突兀的姿态彰显自我,而是通过比例、体量与材料的细致控制,延续了城市肌理的连续性。它在现代性与记忆之间寻求平衡:既以简洁理性的设计语言回应当代需求,又以对遗迹的尊重与对历史形态的呼应,将自身牢固地嵌入康科迪亚的城市叙事之中。
The new Palazzo Mari is a building integrated into the public space—not only through material choices but especially through spatial configurations that activate meaningful relationships with the surrounding area. It is a two- to three-story building, with commercial use on the ground floor and residential use on the upper floors. The reconstructed volume remains within the 4,400 cubic meters limit (gross), with a 15% allowable increase. The building connects with the new square through a balance of solid and void, including ground-floor openings and loggias, all designed with respect for the preserved portico fragment from the demolished Palazzo Mari. The new building aligns beside it, playing with volumes and shadows. A key characteristic is the layout of the ground floor, which doesn’t feature a portico but rather an open passage connecting the square with the adjacent rectory and church—providing shelter and expanding the square’s paving in a seamless continuum between adjoining spaces. The new building follows an L-shaped floor plan in accordance with the Reconstruction Plan guidelines, acting as a backdrop to the new square. It incorporates shopfronts and windows into a rigorous, urban design that avoids self-referential gestures or gratuitous extravagance. Its architectural harmony comes from assimilation with the surrounding built context.
▼玛丽宫建筑群夜景,Palazzo Mari Building Complex at night



▼夜景鸟瞰,aerial view at night


▼场地区位,site location

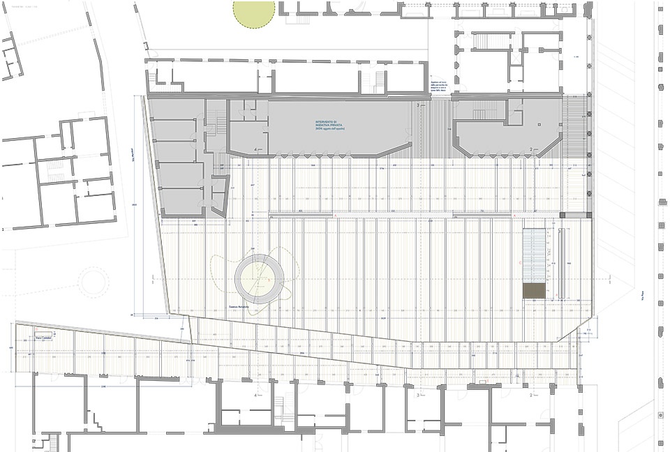
▼铺装平面,pavement plan

Project Name: Borellini Square and Palazzo Mari
Architect or Architecture Firm: KM 429 architecture
Office Website: http://www.km429architettura.com
Contact Email: info@km429architettura.com
Completion Year: 2025
Built Area (m2 or sqft): 1.600 m2
Project Location: Concordia sulla Secchia – Modena -Italy
Photographer: Davide Galli
Client: Municipality of Concordia on the Secchia














