普雷绍夫P.O.Hviezdoslav区域图书馆室内改造,斯洛伐克 / Doxa + bistan architekti
P.O. Hviezdoslav区域图书馆位于斯洛伐克普雷绍夫市中心,由三栋受保护的历史联排建筑组成。这三栋带有地下层的三层建筑均为双坡屋顶,体量与高度各不相同。图书馆的主要空间分布在中央建筑的各层之中。
The building of P. O. Hviezdoslav Regional Library consists of three protected townhouses. These three-story, basement-level houses have saddle roofs and vary in height. The library’s main spaces are located throughout levels of the central townhouse.
▼建筑外观,the Building appearance

▼外观细部,Details of appearance


在设计过程中,设计团队意识到中央联排建筑的主大厅从街道一直延伸到庭院,因而具有近似宫殿般的尺度与体量。这一特征成为设计思考的起点。团队没有选择用书架去填充这一宏伟空间,而是寻求一种在满足藏书需求的同时,能够保留空间纵深与明亮感的解决方案。
The palace-like scale of the main halls, which span the entire width of the townhouse—from street to courtyard, was one of the key realizations in the design process. Rather than filling this impressive volume with shelves, we sought a solution that preserves the spatial experience while meeting shelving capacity needs.
▼富有层次的明亮空间,A bright space with rich layers


为了不阻挡从高窗倾泻而入的自然光,设计采用了沿纵向布置的书架系统。结合纤细的白色结构,这种布局创造出一个通透、轻盈、充满光感的阅读环境。书架的密度随着楼层的上升而逐渐增强,形成自下而上层层递进的空间节奏。
▼爆炸轴测图,Axial explosion diagram

▼功能方案图,Functional scheme

The need to avoid creating barriers to natural light—which fills the halls through tall windows—also implies a longitudinal arrangement of shelves on all floors. Combined with slender white shelving, this approach ensures an airy, light-filled environment. We propose a gradient densification of the space with shelving, from bottom to top.
▼高窗与充足光照,High Windows and abundant sunlight


▼明亮的阅读环境,A bright reading environment


▼阅读空间细部,The details of the reading space


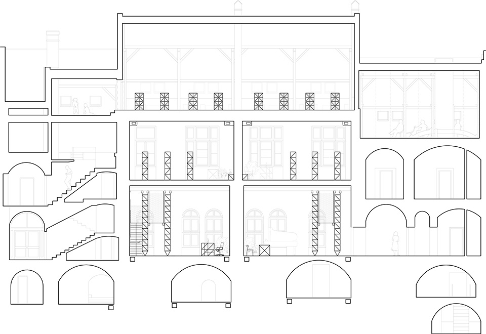
在首层,沿着建筑外墙布置了两组双层高的悬挂式书架系统。书架悬吊在钢梁下方,由极为纤细的钢杆支撑,从而在结构上显得轻盈、透明,也让书架呈现出帘幕般的轻柔姿态。
On the ground floor, we installed two pairs of double-height shelves suspended from steel beams along the perimeter walls.This structural strategy allows use of slender steel rods, turning heavy shelving into a light, curtain-like framework.
▼悬挂式书架系统,Suspended bookshelf system


二层采用三条纵向排列的长列书架,形成整齐的空间秩序;而顶层则以小型书架簇群的形式布置,使阅读区更具灵活性与亲密感。书架与空间关系的不断变化,帮助访客在游走中建立对建筑的直觉式方位感与层级感。
▼建筑分层轴测图,Axonometric drawing of building floors

On the second floor, three long rows of shelving are used, while the top floor is filled with smaller shelf clusters. The changing relationship between shelves and space helps visitors orient themselves within the library.
▼整齐的空间秩序,A neat spatial order


▼良好的阅读体验,A good reading experience

建筑的结构演化在空间中清晰可见:从原有厚重的砖石承重墙,到后期增设的铸铁廊架,再到本次改造中新加入的细腻钢构件,这些不同历史阶段的材料叠合在一起,构成了一条可阅读的时间线。
The building’s construction evolution is visible through its historic layers—from massive masonry walls, to a later cast iron gallery, to the proposed delicate steel elements.
▼建筑的结构演化,The building’s construction evolution

▼三层空间,Space of the third floor


▼阅读区,The reading area

▼灵活的家具布置,Flexible furniture arrangement



设计团队通过对建筑流线的重新组织,定义了家具的布置逻辑,并强调了建筑开口的方向性。首层空间被赋予最大的开放性与灵活性,用以支持多样的活动场景——从阅读与学习到社区聚会,成为图书馆的社交中心。随着楼层的上升,空间的多功能性逐渐弱化,环境也随之变得安静而专注,回归书与知识本身。
Defined movement routes guided the arrangement of furniture and emphasized architectural openings. The ground floor supports diverse user activities, fostering community life. As one moves up,multifunctionality gradually fades and the spaces become more book-dense and focused.
▼书架细部,Details of Bookshelf


▼书柜细部,Details of Bookcase


▼首层平面,Ground floor plan

▼二层平面,Second floor plan

▼三层平面,Third floor plan

▼透视剖面图,Perspective section

▼剖面图,Section


▼家具图纸,Furniture

Project location: Prešov, Slovakia
Competition year: 2022
Project year: 2023
Completion year: 2024
Usable floor area: 1 060m²
Books capacity: 55 500 pieces
Cost: 1,2 mil. €
Studio: DOXA & bistan architekti
Authors : Matúš Bišťan, Maroš Mitro, Ondrej Jurčo, Tomáš Boroš, Jakub Števanka, Pavel Bakajsa
Contact e-mail: info@doxa-atelier.sk, info@bistan.sk
Website: www.doxa-atelier.sk, www.bistan.sk
Social media:
IG: doxa.architekti
FB: doxa.architekti
IG: bistan_architekti
FB: bistan architekti
Studio address:
Doxa s.r.o., Jenisejská 4, 04012 Košice, Slovakia
Bistan architekti s.r.o.,Družstevná 9, 900 01 Modra, Slovakia
Cooperation: Vincent Ung ( architecture ), Martina Hončárová ( architecture ), Ján Hlodák ( architecture )
Engineering: Ivan Tatala – BPT projekt
Graphic design: Tomáš Eisner
Contractor: Isprim
Developer: Prešov Self-Governing region ( Public )
Client: P.O.Hviezdoslav regional library in Prešov
Client’s e-mail: iveta.hurna@kniznica-poh.sk
Client’s website: www.kniznica-poh.sk
Photo credits : Alex Shoots Buildings
Photo website: https://alexshootsbuildings.com/
Photo IG: @alex.shoots.buildings














