旅行者的家,波兰 / BBGK ARCHITEKCI
这座房子是为了成为一个避难所——一个可以归来的地方,一个保存遥远旅行中纪念品和记忆的空间。
This house was meant to be a refuge – a place to return to, a space for preserving mementos and memories from distant journeys.
▼住宅概览,overview of the house


▼住宅鸟瞰,aerial view of the house

正是带着这样的需求,旅行者们找到了建筑师Wojciech Kotecki(BBGK Architekci联合创始人)和建筑师Katarzyna Mach。最终,诞生了Sadowski House——“属于自己的家”:极具个人特色,略显内向,但又完全向周围环境敞开。它是一座单层住宅,完全位于地面层,坐落在松树林中,隐藏在一个广阔的如帐篷般几何形状的屋顶下。设计的初衷是让住户始终在一起。对世界的好奇心和探索未知的欲望镌刻在我们的游牧基因里。通过发现新地方,我们不仅踏上了跨越全球的旅程,还走向了自我——我们收集的记忆逐渐成为我们身份的一部分。
It was with this request that the travelers approached architect Wojciech Kotecki, co-founder of BBGK Architekci, and architect Katarzyna Mach. The result was the Sadowski House – “a home of one’s own”: deeply personal, slightly introverted, yet open to its surroundings. A single-storey dwelling organized entirely on the ground level, nestled among pine trees. Hidden beneath a wide-spanning roof of tent-like geometry. Designed so that its inhabitants would always remain together. Curiosity about the world and the urge to explore the unknown are written into our nomadic DNA. By discovering new places, we embark not only on a journey across the globe but also into ourselves – and the memories we gather gradually become an integral part of our identity.
▼隐藏在广阔的如帐篷般几何形状的屋顶下,
Hidden beneath a wide-spanning roof of tent-like geometry

▼玻璃结构模糊了室内和室外的界限,
the glazed structure that blurs the boundary between interior and exterior


▼如帐篷般的屋顶,tent-like roof

Sadowskis夫妇是一对充满激情且经验丰富的旅行者,他们对遥远且有时极端的目的地有着特别的兴趣——沙漠、极地地区和其他偏远的风景。经过多年的探索,他们决定建造一座属于自己的家——一个可以归来的地方,一个庇护所,一个保存记忆和他们精心收集的遥远旅行纪念品的空间。为了实现这个愿景,他们找到了建筑师Wojciech Kotecki和Katarzyna Mach。于是,Sadowski House应运而生:一个极具个人特色的“属于自己的家”,有些内向却完全向自然环境敞开。
The Sadowskis, a couple of passionate and seasoned travelers, hold a special fascination for distant, and sometimes extreme, destinations – deserts, polar regions, and other remote landscapes. After years of exploration, they decided to build a home of their own – a place to return to, a shelter, a space for preserving memories and their carefully collected trove of souvenirs from faraway journeys. To bring this vision to life, they turned to architect Wojciech Kotecki, co-founder of BBGK Architekci, and architect Katarzyna Mach. Thus, the Sadowski House came into being: a profoundly personal “home of one’s own,” somewhat introverted yet fully open to its natural surroundings.
▼完全打开的立面,the fully opened facade

▼汇聚亲密与凝聚力的场所,
A place where intimacy and cohesion converge


这座房子建在一个森林的地块中,周围是松树林。在他们的旅行中,Sadowskis夫妇观察到,在不同且常常极端的环境条件下,人们如何创造出简单而高效的住所。他们对一个共享空间的原型产生了浓厚兴趣,尤其是那种被穹顶庇护的结构:像帐篷、蒙古包或冰屋。也许正是这种亲密与凝聚力——传统群体生活的特征——与他们这对一直共同生活、分享激情与兴趣的夫妇产生了最强烈的共鸣。如今,他们的需求是要创造“他们的地球之地”。
▼概念设计,concept design

The house was built on a wooded plot, among pine trees. During their travels, the Sadowskis observed how, in diverse and often extreme conditions, people create simple yet highly efficient dwellings. They became fascinated with the archetype of one shared space sheltered beneath a dome: like a tipi, a yurt, or an igloo. Perhaps it was this closeness and intimacy – so characteristic of traditional communal living – that resonated most strongly with them as a couple who had always shared life, passions, and interests, and who were now guided by the need to create “their place on earth.”
▼简单而高效的场所,simple yet highly efficient dwellings


这个理念成为了项目的出发点。一个单层住宅,完全位于地面层,隐藏在一个广阔的帐篷形状屋顶下——设计目的是让住户始终在一起。Sadowskis希望他们的房子能保持与周围大自然的联系,扎根于大地。因此,设计采用了玻璃结构,模糊了室内和室外的界限。在房屋的中心,建筑师设计了一个带有内庭院和可伸缩玻璃屋顶的中庭,使居民能够在屋内同时享受户外的天空。东西两侧有两个半庭院切入房体,将绿意引入室内。根据业主的要求,增加了一个22米长的全景滑动窗,将客厅空间打开向森林,并将房屋与花园融为一体。可移动的墙体和开阔的屋顶使光线和空间的交互变得无缝,同时也提供了自然通风——功能类似于帐篷。在空气流动中,风将森林的声音和气息带入室内。
This idea became the starting point for the project. A single-storey home, organized entirely at ground level, concealed beneath an expansive roof of tent-like geometry – designed so that its inhabitants would always be together. The Sadowskis wished for their house to remain open to the surrounding nature, rooted close to the earth. Hence the glazed structure that blurs the boundary between interior and exterior. At its center, the architects designed an atrium with an inner garden and a retractable glass roof, enabling the residents to dwell inside the house while simultaneously under the open sky. From the east and west, two semi-courtyards cut into the volume, drawing greenery deep inside. At the owners’ request, a panoramic 22-meter-long sliding window was added, opening the living space toward the forest and fusing the house with the garden. Movable walls and the opening roof allow for a seamless interplay of light and space, while also creating natural ventilation – functioning much like in a tipi. With the circulating air, the wind brings inside the sounds and scents of the forest.
▼客厅空间向森林打开,opening the living space toward the forest


▼房屋与花园融为一体,fusing the house with the garden


▼卧室空间,bedroom

为了与业主的愿景相一致,建筑、室内设计和花园被视为一个统一的整体。这一切得益于与景观建筑师Marta Tomasiak以及室内建筑师Monika Bronikowska和Adam Bronikowski的紧密合作。同样重要的是Sadowskis夫妇的积极参与,他们从一开始就参与了概念的塑造。因此,项目不仅响应了居民的实际需求,更反映了他们的个性。宽敞、光线充足的室内空间采用自然、温暖的材料——木材、石材、陶瓷、绿植和陶土——而中庭里栽种了热带植物,结合其他元素,展现了热带现代主义的美学。这座位于华沙森林中的安静避世之所将居民带入了南方的氛围。
In keeping with the owners’ vision, the building, interiors, and garden were conceived as a single, cohesive whole. This was made possible thanks to close collaboration with landscape architect Marta Tomasiak, and interior architects Monika Bronikowska and Adam Bronikowski. Equally important was the involvement of the Sadowskis themselves, who actively participated in shaping the concept from the very beginning. As a result, the project not only responds to the practical needs of its inhabitants but above all reflects their personalities. Spacious, light-filled interiors feature natural, warm materials – wood, stone, ceramics, greenery, and terracotta – while the atriums host exotic plants that, combined with the rest, evoke the aesthetics of tropical modernism. This quiet retreat in a Warsaw forest transports its inhabitants into the atmosphere of the South.
▼展现热带现代主义的美学,
evoke the aesthetics of tropical modernism


未来的房主还在选择材料和家具上发挥了积极作用。一个例子是他们在旅行中发现的Vals石英岩,这种石材仅在瑞士Vals山谷的一个地方开采。在客厅里,特别为女主人安排了她的三角钢琴。房子的氛围还通过来自旅行者私人收藏的众多物品进一步塑造——画作、雕塑、雕像——这些物品讲述了遥远地方的故事。它们邀请访客进入Sadowskis的世界:一个由个人物品构成的圣地,这些物品更具情感意义,而非物质价值。与房主不可分割,这些物品共同创造了一个“进化中的家”:一个设计上随着旅行与归来的平静节奏、纪念品与记忆的收集、以及四面环绕的日益茂盛的绿意一同发展变化的住所。
The future homeowners also played an active role in selecting materials and furnishings. One such example is Vals quartzite, discovered by them during a journey, a stone quarried only in one location worldwide – the Vals valley in Switzerland. In the living room, a special place is reserved for the hostess’s grand piano. The atmosphere of the house is further shaped by numerous objects from the travelers’ private collection – paintings, sculptures, figurines – that tell stories of distant places. They invite visitors into the world of the Sadowskis: a sanctuary of personal artifacts valued less for their material worth than for their emotional significance. Inseparably tied to their owners, these objects co-create a “home in progress”: a dwelling designed to evolve alongside the calm rhythm of journeys and returns, of collecting mementos and memories, and of the ever-growing greenery that envelops it from all sides.
▼夜景,night view


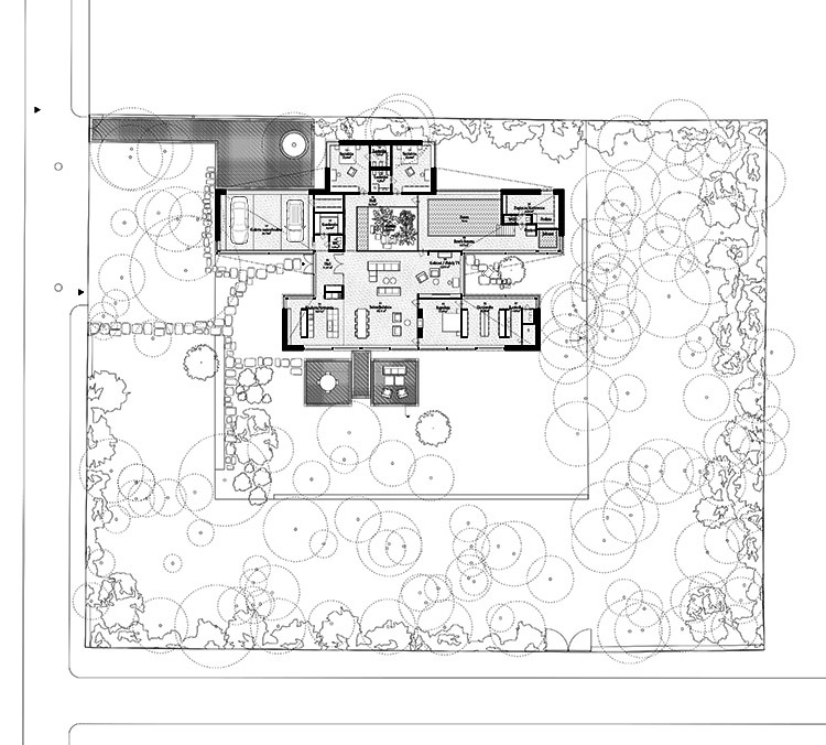
▼一层平面,ground floor plan

▼屋顶平面,roof plan

▼剖面图,section















