塱头耕学+研学中心,广州 / 非常建筑
古村落与耕学+ Historic Heritage and Gengxue+
在乡村振兴的深入推进下,毗邻春阳台艺文中心的一块三角形临水地块被选址为塱头耕学+研学中心。该项目与春阳台共同构成一个综合性的文博研学功能业态,为塱头古村的文旅发展注入了新的活力。
Within the broader context of Rural Revitalization, a triangular plot next to ChunYangTai Arts and Cultural Centre was selected for the Langtou Gengxue+ Education Centre. Together with ChunYangTai, it forms a comprehensive cultural and educational cluster, injecting new vitality into the cultural tourism development of the Langtou Ancient Village.
▼项目鸟瞰,Aerial view of the project


耕学+的总体规划借鉴了塱头村祠堂书室沿荷塘畔布局的传统,通过打造“书院街”,向青少年展示耕读文化遗产。为与塱头古村建筑群相协调,耕学+研学中心采用了与春阳台相似的策略:由三个坡屋顶的小型矩形体量组成,以微小的夹角顺应南侧河岸的走势。
The planning of the Langtou Gengxue+ Education Centre adheres to the layout of the traditional schools in Langtou Village, which are arranged along the bank of the lotus ponds. A new “street of academies” has been created to introduce the young generation to the agricultural heritage. To harmonize with the ancient architecture in Langtou Village, the Gengxue+ employs a strategy similar to ChunYangTai: comprising three small rectangular volumes with sloping roofs that are set at a slight angle to follow the orientation of the southern riverbank.
▼以微小的夹角顺应南侧河岸的走势, set at a slight angle to follow the orientation of the southern riverbank


红砖和青砖 Red Brick, Grey Brick
塱头村的材料研究中显示,随着历史的演进,红砖正逐渐取代传统青砖,成为当地主要建筑材料。耕学+采用红砖作为主要外立面材料,在为孩子们营造愉快的传统乡村生活氛围的同时,也唤起了村民对老砖记忆。
The material research in Langtou Village shows a historical trend: red brick is gradually replacing traditional grey brick and becoming the major construction material. At Langtou Gengxue+ Education Centre, red brick serves as the main material on the façade. While it generates an atmosphere of a space where the young generation can happily experience the traditional ways of life in Langtou, it also evokes the villagers’ memories of the old bricks used in their own dwellings.
▼与古村相呼应的红陶砖外立面,The red clay brick facade that echoes the ancient village

▼从入口看A栋室外楼梯及敞廊,View the outdoor staircase and open corridor of Building A from the entrance

▼A栋南立面,The south facade of Building A

得益于现代工艺,耕学+采用的窑变红陶砖,每块砖因烧制过程中的温差而产生了深浅不一的颜色变化,有效规避了工业制砖的均质化问题,为建筑注入了活力。基于功能需要,不同立面采用的砌筑工艺也不尽相同,从而使立面更加丰富且具有趣味性。所有陶砖均为空心砖,内部穿钢管,采用干挂式做法安装。
With the new technology, the kiln-transformed red terracotta bricks used in the Langou Gengxue+ Education Centre exhibit a range of tones and shades due to temperature differences during firing. This variety, rather than the monotony of standardized bricks, invigorates the ambiance of the place. The brickwork is cladded onto the structure through a dry hanging process and its bonds are varied with the diverse functions of the facility, further enriching the appearance of the façade and delivering a joyful message. All bricks are hollow in the centre for placing reinforced steel bars.
▼栏板及外墙的镂空与叠涩砌筑工艺,The hollowing out and overlapping masonry techniques for the balustrades and exterior walls


中庭与敞廊 Atrium and Loggia
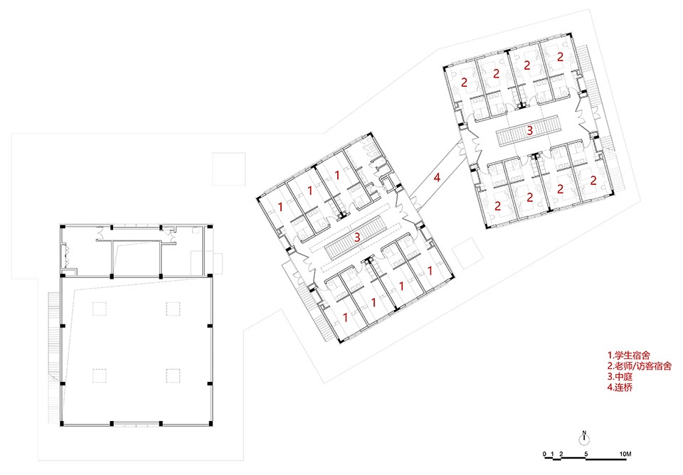
耕学+研学中心的敞廊与中庭空间专为青少年群体打造,兼具研习活动与日常生活的双重功能。首层设有门厅、教室、工坊、展厅、餐厅及厨房等功能区,营造社区般的归属感。二、三层设置两层挑高的多功能厅(兼体育馆)及配套宿舍。
The loggia and atrium of the Langtou Gengxue+ Education Centre serve as learning and research spaces for the young generation. The design integrates dual functions, catering to both learning activities and daily life needs. The first floor accommodates functional areas such as the lobby, classrooms, workshops, exhibition spaces, dinning hall, and kitchen, fostering a sense of community among occupants. The second and third floors house a double-height multifunctional hall that incorporates sports amenities, along with student dormitories on both levels.
▼一层滨水的半室外檐下空间,A semi-outdoor eave space on the first floor by the water

▼从B栋北侧平台看A栋,View Building A from the north platform of Building B

▼从东侧看通向二层平台的大台阶,Look at the large steps leading to the second floor platform from the east side

▼A栋与B栋之间的平台,The platform between Building A and Building B


室内空间形式与各楼层功能需求相契合。二、三层的宿舍围绕中庭布局,通过大楼梯与首层公共空间上下连通,营造出开放流通的空间感,该设计原型来源于塱头村传统民居的内部空间格局。为方便三栋建筑之间的通行,首层各区域通过敞廊串联,以确保师生可自由通达。
▼剖透视,perspective section

The interior design is seamlessly integrated with the programmatic requirements of each floor. The dormitories on the second and third floors are organized around an atrium, which is connected to the first-floor public space via a staircase, promoting a sense of openness and flow. This design draws inspiration from the spatial layout of traditional houses in Langtou Village. To facilitate movement among the three buildings, various areas on the first floor are coherently connected by a loggia or open corridor, ensuring free and convenient access for students and staff.
▼门厅外敞廊下的灰空间,The grey space under the open porch outside the foyer

▼门厅,The foyer

▼教室,The classroom

▼餐厅,dining hall

▼天窗将自然光引入三层高的中庭,The skylight brings natural light into the three-story atrium

▼学生宿舍,Student dormitory

看台与乡野 Viewing Platforms and Countryside Fields
该建筑的另一设计亮点在于屋面的五处观景平台,这里不仅可以全方位俯瞰周边乡野景色,更是学生们的学习和交流空间。来访者在此既可远眺自然风光,又能俯瞰历史村落,从而深度体验自然生态与地域农耕文明的交融。
Another design feature of the complex is the five viewing platforms on the roof, which offer panoramic views of the surrounding countryside. These platforms serve not only as observation points but also as social and learning hubs for students. They provide a unique vantage point to view the natural landscapes and the ancient village, allowing visitors to connect with nature and the rich agricultural heritage of the region.
▼从B栋三层半室外门廊望向连接C栋的廊桥,Looking from the outdoor porch on the third and a half floor of Building B towards the covered bridge connecting Building C

▼俯瞰庭院的露台,The terrace overlook the courtyard

▼夕阳下的建筑,Building under sunset

二楼平台的设计旨在提供多样化的户外活动空间,同时其悬挑结构为一楼外部区域提供遮蔽,有效抵御恶劣天气影响。AB栋平台之间设置的大台阶成为连接自然的重要通道,拾级而下,跨过拱桥,学生们便可以踏入对岸的乡间土地,亲身去感受祖辈传承的农耕文化与历史遗产。
A second-floor platform is designed to provide additional exterior space for various activities. Its cantilevered structure also creates eaves for the first floor, shielding the loggias from the weather. Furthermore, a grand staircase situated between buildings A and B provides further access to the nature. It allows individuals to descend from the building complex and cross the arch bridge, gaining access to the countryside fields and immersing themselves in local agricultural culture and legacies.
▼场地平面,site plan

▼一层平面,ground floor plan

▼二层平面,first floor plan

▼三层平面,third floor plan

▼立面,elevation


▼剖面,section

业主:广东省唯品会慈善基金会
地点:广州市花都区炭步镇塱头古村
主持设计:张永和,鲁力佳
项目团队:梁小宁、孙希
设计合作:广东省建筑设计研究院
用地面积:8168 m2
建筑面积:4039 m2
建筑层数:地上3层
建筑高度:14 m
结构形式:钢筋混凝土框架
设计时间:2024. 4-9
竣工时间:2025
Client: Guangdong Vipshop Philanthropic Foundation
Location: Langtou Ancient Village, Tanbu Town, Huadu District, Guangzhou, China
Principal Architects: Yung Ho Chang, Lijia Lu
Project Team: LIANG Xiaoning, SUN Xi
Collaboration: Architectural Design and Research Institute of Guangdong Province (GDAD)
Site Area: 8168 m2
Building Area: 4039 m2
Number of Floors: Three floors above ground
Building Height: 14 m
Structure: Reinforced concrete structure
Design Period: 2024. 4-9
Completion Time: 2025














