上海普陀区武宁中学异地改扩建项目 / 阿科米星建筑设计事务所
武宁中学(现为同济大学第二附属中学)异地改扩建项目位于普陀区东新路186号,基地位于上海内环核心区域,周边环绕密集住宅区,北侧紧邻轻轨三号线与内环高架桥。学校所在地块日常交通流量高,建筑密度大。经过城市规划相关部门论证,决定通过异地置换的城市更新策略,将学校从地块西北侧迁移至东南侧,为扩建后40个班级的现代化中学提供充足空间。
The relocation and expansion project of Wuning Middle School (now name as The Second High School Affiliated to Tongji University) is situated at 186 Dongxin Road, Putuo District. This site is located within the Inner Ring area of Shanghai, surrounded by densely populated residential neighborhood. To the north, it borders directly on Light Rail Line 3 and the Inner Ring Highway. This location experiences heavy traffic volumes and features high building density. After argument by the relevant urban planning authorities, it has been decided to relocate the school from the northwest to the southeast side of the site through a land swap strategy. This new strategy will provide efficient space for a modern secondary school with an expanded capacity of 40 classes.
▼项目鸟瞰,aerial view of the project


然而,在设计工作过程中面临的主要难点是可供建设用地十分局促。首先,迁址后的实际用地仅约14200平方米,远低于通常标准所需面积,大概为标准用地的三分之一。其次,按照上海市建设标准运动场地需求为18,360平方米,也远超基地承载能力,建设强度大。如何在狭窄地块上平衡高容积率与功能需求,同时兼顾校园氛围与城市环境的营造,是我们设计的核心挑战。
▼项目区域图,site location plan

However, the main difficulty faced during the design process was the extremely limited land use for construction. Firstly, the actual relocation site area of approximately 14,200 square meters, which only one-third of a standard plot, falls significantly short of the standard requirement. Secondly, Shanghai’s official construction standards require a sports ground area of 18,360 square meters. This demand far exceeds the site’s available area and necessitates a high development intensity. The significant challenge in our design is how to achieve a high floor area ratio (FAR) on a constricted site while meeting diverse program needs, nurturing an academic atmosphere, and positively engaging with the urban context.
▼与周边城市肌理相协调,Harmonize with the surrounding urban fabric

1.0 复合集约的空间策略 1.0 Integrated Spatial Design Strategy
在武宁中学改扩建项目初期,面对用地极度紧张的现实,我们提出了三个不同方向的概念方案:
During the initial phase of the Wuning Middle School renovation and expansion project, we proposed three different directions conceptual design in order to response to the extremely limited.
▼运动场地不足,Shortage of sport area

方案1:将200米跑道置于地面,建筑整合为连续综合体,布局紧凑但地下室两层,开发量最大,绿化率不达标;
Proposal 1: This proposal places the 200m track at ground level within a continuous building volume. It is compact and offers maximum developable area but requires two basement levels, and fails to meet the green space ratio.
▼方案一鸟瞰图,Proposal one aerial view

方案2:将运动场抬升至1.5层高度,形成三个独立建筑体量,形象鲜明且运动空间便于分时与社区共享。地下开发量较大,建筑密度高,容积率为1.5;
Proposal 2: By elevating the sports field, this proposal creates three distinct volumes with a sharable, iconic presence. This comes with a high density floor area ratio (FAR) of 1.5 and substantial underground construction.
▼方案二鸟瞰图,Proposal two aerial view

方案3:同样采用运动场地抬升策略,实现地上容积率最高约1.85、地下开发量最小,经济性最优。
Proposal 3: This design proposal also uses an elevated sports field. It achieves the highest above-ground floor area ratio FAR (approximately 1.85) with minimal underground work, making it the most economically viable option.
▼方案三鸟瞰图,Proposal three aerial view

基于上述尝试,在各方部门决策下,最终按照方案3进行深化设计。该方案主要有“复合集约”与“界面开放”两大核心策略。
Following evaluations and decisions by the various stakeholders, the third proposal was selected for further development. This proposal is defined by two core strategies which are “Functional Integration and Intensive Layout” and “Open and Permeable Interface.”
▼鲜明的校园入口,Distinctive campus entrance

2.0 “小型城市群落”功能组团 2.0 Functional Clusters of ‘Small-scale urban community’
我们将校园功能整合为三个主要体量:教学组团、办公与图书综合组团、体育设施组团。三者共同覆盖在一个大屋顶之下,形成“小型城市群落”,既消解了大体量对街道的压迫,也与周边住宅区尺度相协调。
▼功能分析图,Function analysis diagram

We integrated the school functions into three main volume, which are teaching cluster, office and library cluster, and comprehensive sports cluster. All three are unified under a single, overarching roof, forming a “small-scale urban community.” This approach reduces the massing’s presence on the street while harmonizing its scale with the surrounding residential area.
▼趣味与动态的感知空间,Playful and dynamic spatial experience

其中,教学组团作为核心,采用“回”字型体量设计,围合出兼具交通、景观与社交功能的开阔公共中央庭院,引入充沛的阳光与绿化,营造出通透而富有自然气息的公共校园空间。
The teaching cluster, serving as the core function, adopting “Double Loop” volume design which enclose an expansive central courtyard. This public courtyard integrates circulation, landscaping and social functions, introducing abundant sunlight and greenery, creating a public campus environment that feels both transparent and permeated with nature.
▼教学组团内庭院,Teaching cluster inner courtyard

三个组团之间有水平向的交通系统连接,在每层设置室外、半室外平台与连廊,形成立体化的公共活动系统。学生可在课间奔跑、集合、远眺,人均活动面积达6平方米,有效缓解高密度校园的活动拥挤问题。
Three clusters are interlinked by horizontal circulation. Each floor features outdoor, semi-outdoor platforms and bridges, forming a three-dimensional network of public activity spaces. This allows students to run, gather, and enjoy city views after classes, with per-capita activity space reaching 6 square meters, effectively easing the pressures of this high-density campus.
▼教学组团内庭院,Teaching cluster inner courtyard

3.0 浸润在城市中的校园 3.0 Campus Immersed in the City
有别于传统封闭的“象牙塔”式校园,武宁中学的设计探索了教育空间与城市社会的开放性连接。通过开阔的走廊设计和局部镜面反射的巧妙运用,把街道景观动态地引入校园,让师生在行走间不经意地捕捉到城市的风景。
Wuning Middle School fosters a dynamic dialogue between its educational spaces and the urban fabric, that in contrast to the conventional enclosed “ivory tower” campus. Its broad corridors and strategic use of reflective mirror surfaces seamlessly weave the vibrancy of the city into the campus fabric, allowing students and teachers to encounter urban view in their daily circulation within campus.
▼半室外活动空间,Semi-Outdoor activity spaces

入口处的大挑檐不仅塑造了具有仪式感的进入体验,其下方的半室外广场更化身为向社区开放的“城市客厅”,实现了教育建筑公共性的当代诠释。
This monumental entrance canopy establishes a ceremonial gateway, while the space beneath it transforms into a communal “urban lounge” open to the community. This embodies a modern vision for the civic potential of educational architecture.
▼水平交通系统,the horizontal circulation

建筑立面采用标准化模块设计,各个立面元素不一,即满足了不同的教学功能,也呼应了周边城市的日常氛围。
The building façade employs a standardized modular design, the varying façade elements respond to different teaching functions, at the same time, it also respond to nearby surrounding city context.
▼建筑与街道景观,Building and Streetscale


4.0 漂浮的校园大屋顶 4.0 The Floating Campus Roof
三个体量共同托举起顶部的大屋顶,屋顶西侧主要是行政办公及会议室的使用,而200米跑道、器械场地、跳远沙坑、屋顶花园和校园广播站则是布置在屋顶的东侧。为方便学生通往各楼层上课,我们也在教学楼内庭院设置室外楼梯蜿蜒向上通至屋顶活动场地,将地面、各层平台与屋顶大操场串联为一个整体,在打破空间局限、创造丰富活动体验的同时,也承担着重要的疏散功能。
▼跑道布置方案类比,Compare of running track design options

The three volumes collectively support a overarching roof. The western part of the roof is primarily used as administrative offices and meeting rooms, while the eastern side accommodates a 200-meter running track, equipment areas, a long jump pit, a rooftop garden, and the campus broadcast station. To facilitate student access, an outdoor staircase is placed within the building’s courtyard, winding its way up to the rooftop activity area. This stair seamlessly links the ground level, intermediate terraces, and the main rooftop playground into a cohesive whole. It not only breaks spatial constraints and creates a rich experience of movement and activity but also serves as a vital circulation and evacuation route.
▼屋顶活动空间与围栏,Rooftop activity area and parapet

屋顶围栏高度约7米,外立面采用金属网格栅,塑造轻盈的漂浮感。从外部看该空间是城市天际线的视觉焦点,凸显了校园的独特个性。
An approximately 7-meter-high parapet, finished with an outer layer of metal mesh, serves a dual purpose. This design achieves an aesthetic of visual lightness, creating a sense that the roof plane is floating. To the city beyond, it establishes a strong presence, forming a new visual anchor in the urban skyline that underscores the campus’s unique identity.
▼漂浮的大屋顶,Floating roof

武宁中学移扩建项目是阿科米星又一次城市更新的复杂实践。在用地严重受限的背景下,设计以“城市化”与“功能化”为导向,巧妙组织三个建筑体量,抬高运动场地,架空底层空间,并通过连廊串联功能区域。项目不仅完备地承载了40班的教学任务,更通过开放的空间策略融入社区,激活了街区的公共生活,成为上海内环兼具教育功能与社区活力的新地标。
The Wuning Middle School Relocation and Expansion Project showcase another complex practice in urban regeneration by the Atelier Archmixing. With the extremely restricted use of the site, the design is guided by the principles of “Urbanization” and “Functionalization.” It masterfully organized these three building cluster volumes, through elevating the sports field, creating a raised ground space, and interconnects programmatic areas aerial walkways. This project transcends its core function for 40 classes, seamlessly connecting with the community and injecting new vitality into the neighborhood through its open design. It becomes a new landmark within Shanghai’s Inner Ring area, embodying both educational function and community vibrancy.
▼一层平面图,First floor plan

▼二层平面图,Second floor plan

▼三层平面图,Third floor plan

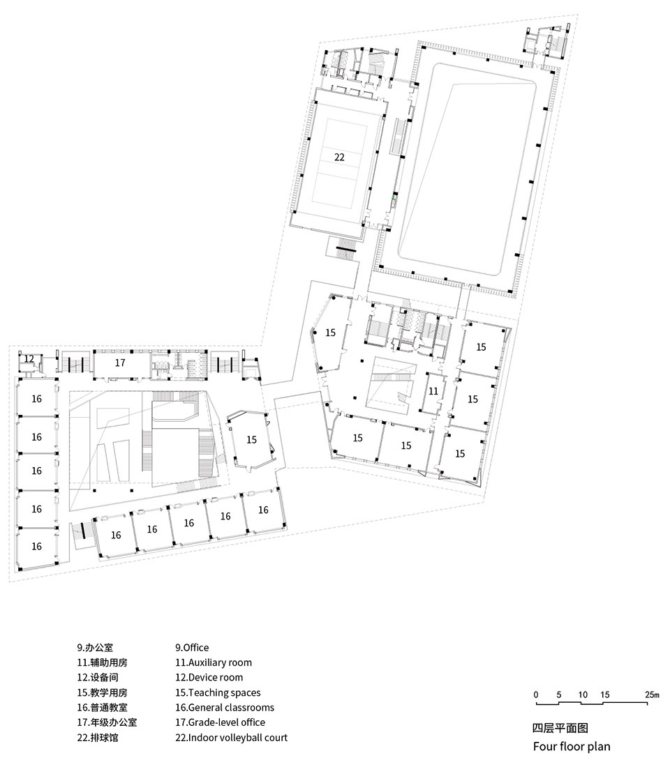
▼四层平面图,Fourth floor plan

▼五层平面图,Fifth floor plan

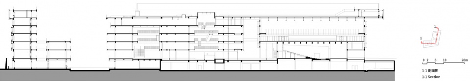
▼剖面图,section
















