萌宠乐园,浙江宁波 / a9a建筑设计事务所
本项目位于宁波市鄞州区横溪农场,是一座集生态教育、动物互动与亲子体验于一体的特色建筑。项目总建筑面积372.23平方米,建筑高度6.2米,主体采用钢木混合结构,以胶合木云杉作为主要建材,体现出自然、温暖与科技融合的现代农庄建筑风貌。
This project is located in Hengxi Farm, Yinzhou District, Ningbo City. It is a distinctive building integrating ecological education, animal interaction and parent-child experience. The total construction area of the project is 372.23 square meters, with a building height of 6.2 meters. The main structure adopts a steel-wood hybrid structure, with glued laminated timber and spruce as the main building materials, presenting a modern farm architectural style that integrates nature, warmth and technology.
▼项目概览,Overall view

项目场地自然条件极为优越,北侧紧靠茂密竹林,南面向开阔稻田延展,拥有极佳的景观视野与生态资源。建筑总体布局顺应东西向狭长地形,巧妙利用原有1.3米自然高差,通过错层、架空与缓坡处理,创造出富有趣味性的空间序列和参观体验。建筑南立面充分打开,采用大面积Low-E中空玻璃结合木质遮阳格栅,在最大化引入自然光照的同时,有效防止夏季过热,营造舒适节能的室内环境。
The project site enjoys extremely superior natural conditions. It is adjacent to a thick bamboo forest on the north side and extends towards an open rice field on the south side, offering an excellent landscape view and ecological resources. The overall layout of the building conforms to the long and narrow terrain running from east to west. It ingeniously utilizes the original 1.3-meter natural height difference and creates an interesting spatial sequence and visiting experience through staggered floors, elevated floors and gentle slopes. The south facade of the building is fully opened, featuring large areas of Low-E insulating glass combined with wooden sunshade grilles. This not only maximizes the introduction of natural light but also effectively prevents overheating in summer, creating a comfortable and energy-efficient indoor environment.
▼远观,Distant view

▼路人视角,Passerby perspective

建筑设计概念源于“稻田中的守护小屋”,旨在打造一个与自然共生、与动物共存、与儿童共情的温暖场所。建筑形态以双坡屋顶为母题,通过重复的三角形屋架单元形成强烈的韵律感,深远出挑的屋檐既适应江南多雨气候,又塑造出建筑轻盈悬浮于稻田之上的视觉意象。夜间,透光的建筑体量犹如一盏温暖的灯笼,成为田野中迷人的存在。
▼爆炸图,axo analysis

The architectural design concept is derived from the “Guardian House in the Rice Field”, aiming to create a warm place that coexists with nature, animals and empathizes with children. The architectural form takes the double-pitched roof as its motif, creating a strong sense of rhythm through repetitive triangular truss units. The deep and overhanging eaves not only adapt to the rainy climate of the Jiangnan region but also shape the visual image of the building floating light above the rice fields. At night, the translucent building volume is like a warm lantern, becoming a charming presence in the fields.
▼建筑近景,Close view


在空间组织方面,首层依据动物生活习性和运营流线需求,合理布置多个动物互动单元及后勤支持空间。各功能区既相对独立又保持视觉连通,确保动物福利和游客体验的双重提升。二层采用满铺设计,通过局部挑空形成垂直方向的视觉联系和行为互动。三角形阁楼空间充分利用屋顶结构特性,创造出适合儿童尺度的包裹性体验区域,低矮的观察窗、软包窗台和圆角设计无不体现对儿童群体的细致关怀。
In terms of spatial organization, the first floor rationally arranges multiple animal interaction units and logistical support Spaces based on the living habits of animals and the requirements of operational flow lines. Each functional area is relatively independent yet visually connected, ensuring a dual improvement in animal welfare and visitor experience. The second floor adopts a full paving design, creating vertical visual connections and behavioral interactions through local openings. The triangular attic space makes full use of the roof structure characteristics to create a wrapped experience area suitable for children’s scale. The low observation Windows, soft-padded window sills and rounded corner designs all reflect meticulous care for the children’s group.
▼入口处,Entrance


立面设计采用现代乡土语汇,北侧以实墙为主减少竹林湿气影响,南侧则充分开放,采用大型推拉门和可开启扇,实现自然通风与景观渗透。东西山墙采用竖向长窗与实墙虚实结合的处理方式,在满足通风采光需求的同时,形成富有表现力的造型特征。
The facade design adopts modern local language. The north side is mainly solid walls to reduce the influence of bamboo forest moisture, while the south side is fully open, featuring large sliding doors and openable panels to achieve natural ventilation and landscape infiltration. The east and west gable walls adopt a treatment method that combines vertical long Windows with solid walls, which not only meets the requirements of ventilation and lighting but also forms an expressive shape feature.
▼首层空间,Ground floor space


建筑与场地的关系经过精心推敲:南侧通过架空平台、缓坡和台阶系统消解高差,形成向稻田渗透的开放式互动场域;北侧设置疏水层和防潮措施,确保建筑与竹林边界的和谐共生。景观设计延续建筑语言,采用本土材料和低干预策略,使建筑与自然形成有机整体。
The relationship between the building and the site has been carefully considered: on the south side, the height difference is mitigated through elevated platforms, gentle slopes and step systems, creating an open interactive area that penetrates into the rice fields. A hydrophobic layer and moisture-proof measures are set up on the north side to ensure the harmonious coexistence of the building and the bamboo forest boundary. Landscape design continues the architectural language, adopts local materials and low-intervention strategies, and enables the building to form an organic whole with nature.
▼首层结构,Ground floor structure


▼二层空间,First floor space

室内设计充分考虑儿童使用需求:所有转角均采用圆弧处理,观察窗高度适应不同年龄段儿童的身高特点,地面材料选择防滑且温暖的木质和橡胶材质。动物互动区的围护系统采用可拆卸设计,便于根据不同动物需求灵活调整空间配置。色彩方案采用柔和的大地色系,营造安心舒适的氛围。
The interior design fully takes into account the usage needs of children: all corners are rounded, the height of the observation Windows is adapted to the height characteristics of children of different ages, and the floor materials are made of anti-slip and warm wood and rubber. The enclosure system of the animal interaction area adopts a detachable design, which is convenient for flexibly adjusting the space configuration according to the needs of different animals. The color scheme adopts soft earth tones to create a reassuring and comfortable atmosphere.
▼二层看向室外,Looking outside from first floor

▼屋顶结构,Roof structure

▼结构近景,Structure details


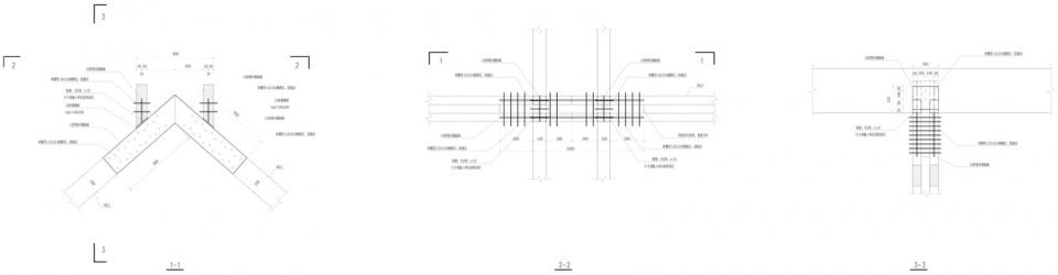
结构系统是本项目的一大亮点:主体采用钢木混合体系,胶合木梁柱外露展示,体现结构真实性与美学价值。屋面采用预制木桁架系统,实现大跨度无柱空间,为互动区域提供灵活使用的可能。所有金属连接件均精心设计,既满足结构要求,又成为空间中的装饰细节。
The structural system is a major highlight of this project: the main body adopts a steel-wood hybrid system, with glued laminated timber beams and columns exposed and displayed, reflecting the authenticity and aesthetic value of the structure. The roof adopts a prefabricated wooden truss system, achieving large-span column-free Spaces and providing flexible usage possibilities for interactive areas. All metal connectors are meticulously designed to not only meet structural requirements but also serve as decorative details in the space.
▼夜览,Night view

本项目通过现代木构技术的创新运用,将生态理念、儿童行为心理与建筑空间深度融合,创造出一个人、动物、自然和谐共处的沉浸式体验场所。建筑不仅为萌宠提供福利化的生活环境,更为孩子们打造了一个激发探索欲、培养生态意识的成长空间。在细节处理上,我们坚持“设计为人”的原则,从扶手直径到窗台高度,从材质触感到空间尺度,无不体现对儿童群体的深度理解和人文关怀。
This project, through the innovative application of modern wood construction technology, deeply integrates ecological concepts, children’s behavioral psychology and architectural space, creating an immersive experience place where humans, animals and nature coexist in harmony. The building not only provides a welfare-oriented living environment for cute pets, but also creates a growth space for children that stimulates their curiosity and cultivates their ecological awareness. In terms of detail handling, we adhere to the principle of “design for people”. From the diameter of the handrail to the height of the window sill, from the texture of the material to the scale of the space, all reflect a deep understanding and humanistic care for the children’s group.
▼总平面图,masterplan

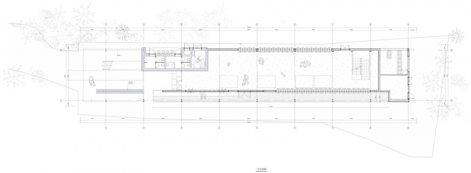
▼一层平面图,ground floor plan

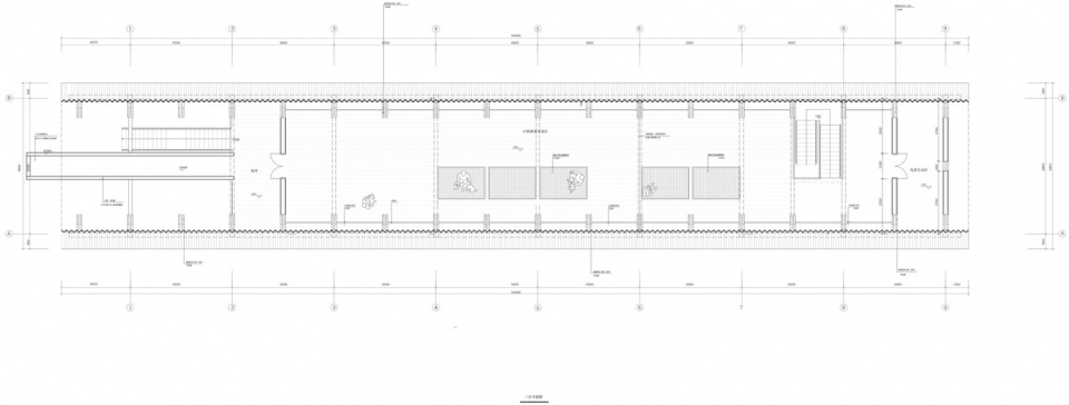
▼二层平面图,first floor plan

▼屋顶平面图,roof plan

▼立面图,elevation



▼完成立面图,elevation

▼大样图,details



Project Name: Jiangshan Wanli Pet Paradise
Project Type: Non-standard Commercial
Design Firm: a9a Architectural Design Studio
Company Website: http://www.a-9-architects.cn
Contact Email: a_9_architects@163.com
Project Design: Architectural Design
Completion Year: June 2025
Design Team: Lead Designer | Li Yuejiu
Design Team | Zhang Haomiao, Hu Shiyu, Zhang Tianxiao, Fu Sihan
Project Location: Hengxi Town, Ningbo City
Building Area: 800㎡
Photography Copyright: Existence Architectural Photography, dong Photography
Collaborators: Construction Drawing Design | a9a Architectural Design Studio
Landscape Design | Hanxiang Landscape
Lighting Design | bpi














