克拉科夫白色住宅,波兰 / UCEES studio
由波兰UCEES建筑事务所设计的白色住宅融合了现代建筑语言、环保技术与对细节的极致考究。建筑因其白色外墙与围栏而得名。它坐落于克拉科夫最负盛名的高端住宅区Wola Justowska。这一地区常被誉为“克拉科夫的比弗利山庄”,象征着城市的优雅与财富。
The House in White, designed by Polish UCEES studio, combines modern form with environmentally-friendly solutions and exceptional attention to detail. The building takes its name from its white walls and fences. It is located in Wola Justowska, the most prestigious residential district of Krakow. The district is widely known as Krakow’s Beverly Hills – a luxurious neighborhood in LA, home to the rich and famous.
▼项目概览,Project Overview

▼现代的建筑语言,Modern architectural language

项目所在的区域曾经是一片乡村,但因其既毗邻市中心,又被自然绿地环绕,这在大型都市聚落中极为罕见,同时靠近克拉科夫最大的森林公园、动物园以及Piłsudski纪念冢。这种得天独厚的地理位置备受青睐。
The former village near Krakow owes its popularity mostly to its location: it’s close to the center while remaining green – a rare combination in big city agglomerations. It’s also situated next to the largest woodland park in the Krakow area, the Zoo, and Piłsudski’s Mound.
▼与自然的和谐关系,A harmonious relationship with nature

自设计伊始,建筑师便以“典型的城市别墅”作为形式原型。建筑采用平屋顶,立于一块不大的地块之上,被绿植包围。其目标并非喧宾夺主,而是以思辨性的姿态融入环境,在尊重周边现代主义别墅的同时,引发对当代住宅语言的思考。
▼轴测图,Axonometric drawing

From the very beginning, the architects focused on the typical urban villa as the appropriate form for the house. The flat roof building, situated on a small plot and surrounded by greenery, was meant to draw attention and provoke thought. Rather than competing with the surrounding architecture, it was designed to show respect for the nearby modernist villa.
▼思辨性的设计,Speculative design

建筑呈近乎方形的平面。紧凑而纯净的白色立方体以形体与质感为唯一的表达手段,摒弃多余装饰,追求极致纯粹。建筑的主要材料为混凝土。外立面采用由白色水泥与玻璃纤维增强复合板(GRC)浇筑而成的三维立面模块,自底至顶包覆整个建筑。该技术赋予了立面现代而富动感的雕塑式表情,使其在周围建筑中脱颖而出。
The architects designed the building on an almost square plan. The compact, uniform white cube was designed with shape and texture as the only tools. The primary construction material was concrete. White cement was used to form 3D fiberglass-reinforced panels that cover the building’s façade from base to roof. They enabled a modern and dynamic architectural expression to be created that stands out against the surrounding buildings.
▼紧凑而纯净的白色立方体,A compact and pure white cube


设计旨在不仅以第一印象打动人,更要经得起时间的凝视。其建筑形体通过一种“雕凿”的过程塑造而成:从立方体中逐层剔除体量,形成退缩的上层体块、凹陷的镜面曲线、嵌入式的底层露台与窗洞,以及经过精细“雕刻”的混凝土细节。混凝土板像拼图般覆盖立面,形成完整的连续肌理。出于这一设计逻辑,建筑中完全没有金属构件,无窗台、无檐口、无金属挑檐。唯二的例外是窗上的玻璃与二层那道几乎隐形的透明玻璃栏杆。
The house was designed to impress from first contact, but more importantly, to maintain that impression over time. Its architectural form was shaped through the process of “chiseling away” the cube’s layers. Thus, the diminished upper floor was created along with sculpted, concave lens-shaped forms, recessed ground-floor terraces, windows and meticulously “milled” concrete façade details. Concrete slabs create a complete whole like a jigsaw puzzle across the façade. That’s why no metalwork was included in the design: there are no sills, cornices or overhangs made from materials other than concrete. The only exception is glass in the windows and a transparent, nearly invisible balustrade upstairs.
▼外立面设计,Facade design


▼精致而极简的气质,A refined and minimalist character


▼几乎隐形的透明玻璃栏杆,The nearly invisible balustrade

白色住宅的独特建筑气质源自对细节的严苛考量。从平面板到三维板的每一个立面元素的连接点,再到它们与门窗框架的衔接都经过反复推敲与精密设计。这种精确的细节贯穿于建筑的整个立面高度:体现在圆角的女儿墙、立面有节奏的折线断裂、露台的地面铺装与边缘收口之中。这种一体化的语言甚至延伸至建筑之外,包括垂直的栅栏立柱与主入口平滑统一的包覆。这些微妙的构造手法只有在近距离观赏时才能被完全感知。其精确的施工与建筑严谨性赋予了住宅一种精致而极简的气质。
The final expression of the House in White’s character results from critical attention to detail. Each connection point of the façade elements, the flat and 3D slabs and their integration with the window and door joinery, was the result of deliberate reflection and precise design. This detail is present throughout the entire height of the building. It appears in the recesses in the form of rounded attics, the sudden but rhythmic breaking of the façade lines and the flooring and outline of the terraces. It also extends beyond the building’s form itself – through the vertical fence poles and the smooth, uniform lining of the main gate and gateway. The subtlety of the solutions means their full expression can only be perceived from close range. Precision of execution and architectural rigor give the building both a refined and minimalist character.
▼精密的立面衔接,Precise facade connection


建筑在平面与高度上均采用层层递进的空间策略,使其整体呈现出独特的戏剧性构图。面向花园的一侧开放、流动,而背向街道的一面则更为封闭、整体、沉稳。立面上的挑檐、支撑构件与多变的肌理共同塑造了动感造型,同时通过降低光反射率来保护当地动物栖息。
All planned spatial solutions, cascading gradually in both the building’s projection and height, bestow a distinctive theatrical quality upon the structure. They underscore the dialogue between the open form facing the garden and the more closed, monolithic expression on the opposite side. While the protruding awnings, supports and differentiated façade texture have been designed to create dynamic form while minimizing light reflection to protect the local fauna.
▼立面的光影变化,The changes in light and shadow on the facade


设计团队在此项目中高度重视绿色与可持续策略。立面使用的GRC板基于TioCem水泥制成。这种材料能吸附并分解空气中的氮氧化物,具有净化空气的功能。该项目成为了单户住宅立面抗雾霾混凝土的试验场与示范案例。
The designers of the House in White put significant emphasis on green solutions. The material for the GRC panels covering the façade was based on TioCem cement, which removes nitrogen oxides from polluted air. This is a groundbreaking technology, and the House in White serves as a proving ground for facade concretes with anti-smog properties in single-family housing.
▼起居空间,Living space



▼卫浴空间,Bathroom


▼楼梯,Staircase


建筑在场地中的布局经过精心推敲,以完整保留所有原有树木,使其成为场地无可替代的自然资产。环保理念还体现在多项设施中:带热回收的通风系统、光伏板、雨水收集系统与绿色屋顶露台,共同构建了一个可持续的生态住宅。
The building’s placement on the plot allowed all existing trees to be preserved, making them an undeniable asset to the site. Environmental stewardship is also demonstrated through the use of ventilation systems with heat recovery, photovoltaic panels, rainwater collection systems and green terraces.
▼夜景,Night view


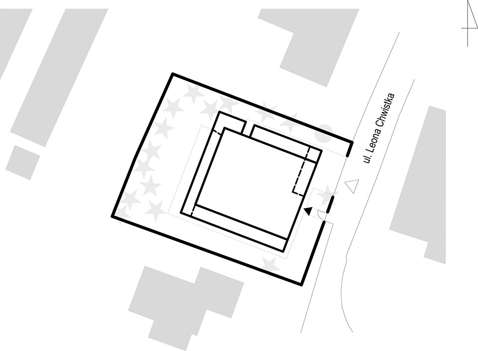
▼总平面图,Site plan

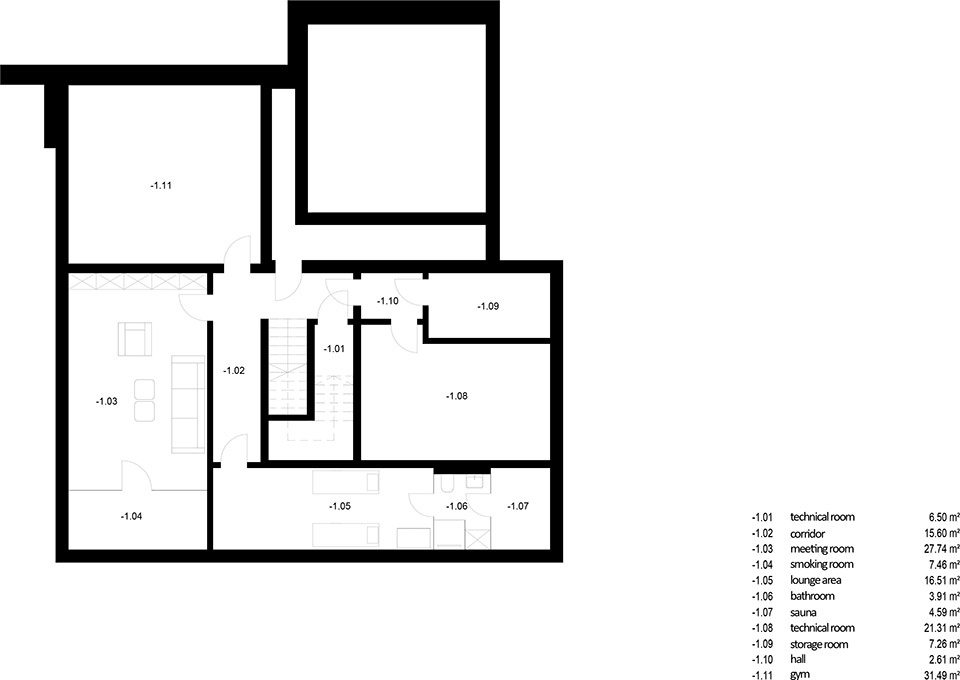
▼地下室平面图,Basement plan

▼一层平面图,Ground floor plan

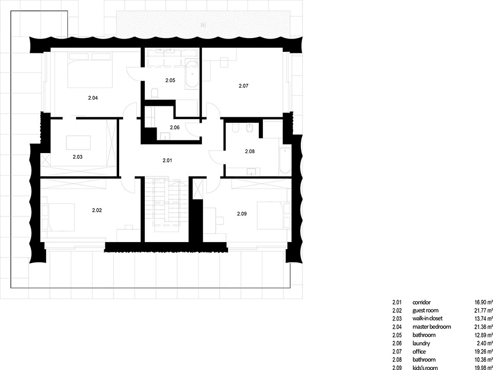
▼二层平面图,First floor plan

▼东立面,East Elevation

▼北立面,North Elevation

▼南立面,South Elevation

▼西立面,West Elevation

▼剖面图,Section

Photos: Paweł Ulatowski
Studio: UCEES
Designers: arch. Marek Szpinda, arch. Piotr Uherek
Collaboration: arch. Gabriela Doroż
Usable floor area: 490 square meters
Volume: 2660 cubic meters
Realization: 2024
GRC technology façade contractor: KROE














