前洲际酒店改造项目,捷克 / TaK Architects
捷克斯洛伐克现代主义的地标A Landmark of Czechoslovak Modernism
前洲际酒店(InterContinental Hotel)建于1968年至1974年间,是前捷克斯洛伐克的首家国际五星级酒店。其设计采用粗野主义风格,展现出建筑、设计与艺术的地标性融合。建筑师卡雷尔·菲尔萨克(Karel Filsak)领导的设计团队汇聚了当时捷克最杰出的艺术与设计人才,共同打造出一个完整统一的艺术整体——真正意义上的“总艺术作品”(Gesamtkunstwerk)。
The former InterContinental Hotel, built between 1968 and 1974, was the first international five-star hotel in the former Czechoslovakia. Designed in the Brutalist style, it represented a landmark fusion of architecture, design, and art. Led by architect Karel Filsak, the team behind the hotel brought together some of the country’s leading talents, resulting in a unified artistic whole—a true Gesamtkunstwerk.
▼酒店鸟瞰,aerial view of the hotel

▼酒店外观,exterior of the hotel


▼酒店外观,exterior of the hotel

酒店开业之初,成为捷克斯洛伐克工艺与创造力的展示窗口。它是东欧阵营中首个获得美国投资的项目,迅速成为现代化、奢华与世界级美食的象征。不仅仅是一家酒店,它同时也是一位文化大使,是20世纪捷克建筑史上的高光篇章。酒店及其周边环境的建设因苏联入侵捷克斯洛伐克而被迫中断。此后数十年间,建筑逐渐被忽视,最终在上世纪90年代末遭遇了一次缺乏敏感性的翻新。当现任业主接手时,酒店的状况已十分糟糕。
Upon opening, the hotel stood as a showcase for Czechoslovak craftsmanship and creativity. It was the first American investment in the Eastern Bloc and quickly became a symbol of modernity, luxury, and world-class gastronomy. More than just a hotel, it was a cultural ambassador and a highlight of 20th-century Czech architecture. The completion of the hotel, including its broader surroundings, was disrupted by the Soviet occupation of Czechoslovakia. Over the following decades, the building suffered from neglect, culminating in an insensitive renovation in the late 1990s. By the time the current owners acquired it, the hotel was in a rather squalid state.
▼酒店旁的地标性建筑,the iconic building nearby

以保护为导向的新篇章A New Chapter, Guided by Preservation
与同时代的标志性建筑——如布拉格酒店(Hotel Prague)或Transgas综合体——不同,这座建筑并未被拆除,而是在三位捷克企业家的推动下获得了新生:帕维尔·鲍迪什(Pavel Baudiš)、爱德华·库切拉(Eduard Kučera)和奥尔德日赫·施莱姆尔(Oldřich Šlemr)。出于与酒店的情感联系以及保护其建筑价值的愿望,他们决定让这座地标重现其作为布拉格市中心社会与文化枢纽的地位。
Unlike other notable structures of its time—such as Hotel Prague or the Transgas Complex—this iconic building was not demolished. Instead, it was given a second life thanks to three Czech entrepreneurs: Pavel Baudiš, Eduard Kučera and Oldřich Šlemr. Motivated by personal ties to the hotel and a desire to protect its architectural value, they set out to restore its status as a social and cultural hub in the heart of Prague.
▼与原有建筑之间的连廊,the corridor connects to the original building


▼与原有建筑之间的连廊,the corridor connects to the original building

他们意识到不仅建筑本身需要焕新,其被忽视的周边环境也亟需振兴,于是发起了一场建筑设计竞赛。最终由马雷克·蒂赫(Marek Tichý)领导的TaK建筑事务所(TaK Architects)中标,承担为期五年的整体改造工程。同时,他们与费尔蒙酒店集团(Fairmont Hotels & Resorts)建立合作关系——该集团的国际标准与本地活力正契合项目的雄心:将这座地标重新推出为“布拉格费尔蒙金色酒店(Fairmont Golden Prague)”。为实现这一目标,建筑新增了多种设施,如户外泳池、餐饮翼楼及会议扩建部分,与原有结构无缝衔接。
Recognizing the need to revitalize not only the building but also its neglected surroundings, they launched an architectural competition. TaK Architects, led by Marek Tichý, were ultimately selected to lead a comprehensive five-year reconstruction. In parallel, a partnership was formed with Fairmont Hotels & Resorts—an operator aligned with the project’s ambition to bring international standards and a vibrant local presence and to reintroduce the icon as the Fairmont Golden Prague. To support this ambition, the building was expanded through a seamless new layer of facilities, such as an outdoor pool, restaurant wing, or conference extension.
▼与原有结构无缝衔接,the building was expanded through a seamless new layer of facilities


▼与原有结构无缝衔接,the building was expanded through a seamless new layer of facilities

面向城市与公共生活的愿景A Vision for Connection and Public Life
蒂赫的设计理念以“敏感而具变革性”的方式重新诠释建筑,使其与城市建立更紧密的联系——超越仅在地面层激活Pařížská大街的层面。新的透明建筑延伸体与新植绿化融合,向德沃夏克河堤(Dvořák Embankment)方向展开,引导人们通过一片绿色坡地通向河岸。在城市与伏尔塔瓦河的交汇处,一个新的当代艺术馆成为城市更新的重要节点。
A central feature of Tichý’s vision was sensitive yet transformative reimagining of the building toward a stronger connection with the city—going beyond the mere activation of Pařížská Street at the ground level. A transparent architectural extension integrates with newly planted greenery and extends toward Dvořák Embankment, leading visitors through a green slope down to the river. At the junction of the city and the Vltava, a new contemporary art pavilion marks a key element in the urban revitalization.
▼激活到达层,activate the ground level


▼到达层灯光设计,lighting design

酒店下层新增了一个可从街道与河岸两侧进入的画廊空间,免费对公众开放,鼓励人们以全新的方式与建筑互动。如今的一层成为一个由艺术家与设计师共同策划的艺术展示空间,延续了建筑自诞生以来“艺术融入建筑”的传统。设计团队从一开始就坚持这些空间应当保持开放与包容,并设置了独立入口以支持这一理念。
A gallery space—accessible from both the street and riverfront—has been integrated into the hotel’s lower level. This ensures free public access and encourages engagement with the building beyond its role as a hotel. The ground floor now functions as a curated art space, created in collaboration with artists and designers, continuing the building’s original commitment to artistic integration. From the beginning, the architects emphasized that these spaces must remain open and welcoming to the public. Separate entrances support this principle.
▼从街道与河岸两侧进入的画廊空间,A gallery space—accessible from both the street and riverfront

▼从街道与河岸两侧进入的画廊空间,A gallery space—accessible from both the street and riverfront

修复与创新的融合Blending Restoration and Innovation
改造过程中最重要的是在“保护”与“创新”之间找到平衡。建筑师在沿用原始三种主要材料——混凝土、玻璃与木材——的基础上,引入了新的空间与艺术层次。正如当年的设计团队一样,蒂赫及其团队从项目早期就邀请艺术家与设计师参与,模糊建筑与艺术的界限,以当代的表达丰富这一建筑遗产。同样关键的原则是“空间的民主化”——让酒店向城市开放,使建筑延伸至公共领域,令室内外空间彼此贯通。从立面、花园到室内设计,每个细节都经过精心处理,体现出极高的工艺与设计水准。项目的规模与其愿景同样宏大。
The reconstruction involved a careful balance of preservation and innovation. Architects worked with the original trio of materials—concrete, glass, and wood—while introducing new spatial and artistic layers. Like the hotel’s original creators, Tichý’s team engaged with artists and designers from the project’s outset, blurring the line between architecture and art, enriching the legacy with a contemporary generational expression.Equally essential was the principle of democratizing the space—opening the hotel to its surroundings, extending architecture into the public realm, and connecting the interior with the exterior. Every element—from façades and gardens to the redesigned interiors—was handled with meticulous care and a dedication to detail. The scale of the project is matched by the ambition of its vision.
▼改造后的大堂空间,the lobby space after renovation



经典细节的重生Restoring Iconic Details
建筑老化严重,许多结构已技术过时或存在安全隐患,必须进行全面重建。尽管面临种种困难,项目团队(由Metrostav担任总承包)仍坚持保留并修复所有具有价值的原始元素,即便这意味着更复杂、更昂贵的工序。关键的艺术与建筑细节得以悉心修复。由雕塑家兹比涅克·塞卡尔(Zbyněk Sekal)创作的陶瓷立面——酒店的标志之一——被重新制作,原有52条陶瓷带中有48条以新工艺重现。会议大厅的天花板(原由扬·什拉梅克 Jan Šrámek 设计,配以雷内·鲁比切克 René Roubíček 的吊灯)被重建,重现1960年代混凝土与玻璃的对话。
The building’s deteriorating condition posed a significant challenge. Many parts were technically obsolete or structurally unsound, requiring full reconstruction. Despite these issues, the exceptionally broad team, with Metrostav as general contractor, committed to preserving valuable original elements—even when doing so meant a more complex and expensive restoration. Key artworks and architectural features have been carefully restored. The ceramic façade by sculptor Zbyněk Sekal—an icon of the hotel—was recreated, with 48 of the original 52 ceramic strips replaced by newly crafted elements. The hotel’s conference hall ceiling, originally designed by Jan Šrámek and lit by René Roubíček’s chandeliers, was rebuilt to reflect the 1960s dialogue between concrete and glass.
▼改造后大堂,the lobby space after renovation


▼修复后的混凝土天花,the concrete ceiling after renovation


▼修复后的混凝土天花,the concrete ceiling after renovation


此外,捷斯米尔·卡夫卡(Čestmír Kafka)的木质天花雕塑及米洛斯拉夫·海尼(Miloslav Hejný)的《魔幻森林》柱状雕塑片段也被重新安装。传奇的“金色布拉格餐厅”(Zlatá Praha)再度展出雨果·德马蒂尼(Hugo Demartini)的金色装饰与萨林格玻璃工坊(Sallinger Glassworks)的玻璃屏风。大堂中,斯坦尼斯拉夫·利本斯基(Stanislav Libenský)与雅罗斯拉娃·布里赫托娃(Jaroslava Brychtová)的铸玻璃雕塑与泽德涅克·洛茨基(Zdeněk Lhotský)的新作并置——后者在项目初期便被邀请参与,共同塑造酒店“新总艺术作品”的面貌。
Elsewhere, wooden ceiling sculptures by Čestmír Kafka and fragments of Miloslav Hejný’s columnar piece Enchanted Forest were reinstated. The legendary Zlatá Praha restaurant once again features Hugo Demartini’s gilded fixtures and glass screens from the Sallinger glassworks. In the lobby, cast glass sculptures by Stanislav Libenský and Jaroslava Brychtová now share space with new works by Zdeněk Lhotský, invited by Tichý early on to help shape the new Gesamtkunstwerk version of the hotel.
▼玻璃屏风,glass screen

▼餐厅空间,restaurant

▼餐厅空间,restaurant

此外,修复与新创作品还包括约瑟夫·伊拉(Josef Jíra)的九幅彩绘玻璃窗(由扬·切尔诺霍尔斯基 Jan Černohorský 补充完成)、弗朗齐谢克·罗诺夫斯基(František Ronovský)的蜡画,以及约瑟夫·克利梅什(Josef Klimeš)的巨型木雕墙面。
Other restored and newly commissioned works include nine stained-glass windows by Josef Jíra, supplemented by Jan Černohorský, an encaustic painting by František Ronovský, and monumental carved wooden walls by Josef Klimeš.
▼修复后的陶瓷隔断,the ceramic partition wall after renovation

▼营造艺术氛围,create artistic atmosphere

艺术的新篇章A New Artistic Chapter
超过二十个艺术工作室参与了本次艺术策划,由蒂赫统筹,重新激活了20世纪“建筑师与艺术家协作创作”的模式。如今,酒店融合了历史与当代作品,成为一座“活的展览”。宾客与访客首先会看到扬·库克拉(Jan Kukla)的玻璃光影装置《苍穹》(Heavens),由600根发光玻璃杆组成。库克拉还参与了会议吧台的设计。扬·切尔诺霍尔斯基为前台制作了镜面玻璃砖,洛茨基的玻璃壁画《织锦》(Tapestries)则延展至外立面。
Over twenty studios contributed to the project’s artistic direction, curated under Tichý’s leadership. This approach reactivated the collaborative artist–architect model of the 20th century. The hotel now merges historic and contemporary works in a living exhibition. Guests and visitors alike are welcomed by Heavens, a glass light installation by Jan Kukla composed of 600 glowing rods. Kukla also contributed to the hotel’s conference bar design. Jan Černohorský created mirrored glass bricks for the reception, and Zdeněk Lhotský’s Tapestries—kinetic glass murals—adorn the interiors, extending to the façades.
▼酒店融合了历史与当代作品,merges historic and contemporary works

▼酒店融合了历史与当代作品,merges historic and contemporary works

▼俯瞰布拉格城区的景色,overlook the city view

▼客房区域,guest room

▼客房区域,guest room

酒店内的吊灯由捷克玻璃品牌Bomma与Preciosa合作设计。大堂中央由马丁·雅内茨基(Martin Janecký)创作的巨型玻璃墙《布拉格的符号》(House Signs of Prague)成为视觉焦点;而康养接待区则由Lasvit、旺达·瓦利赫拉霍娃(Wanda Valihrachová)与TaK建筑师联合创作的一件长8米的流线形雕塑构成,象征流水意象。
The hotel features chandeliers designed in collaboration with Czech glass brands Bomma and Preciosa. The monumental glass wall House Signs of Prague by Martin Janecký dominates the lobby, while the wellness reception is framed by an 8-meter-long sculpture evoking flowing water—created by Lasvit, Wanda Valihrachová, and TaK Architects.
▼吊灯设计,chandeliers design


对可持续性的承诺Commitment to Sustainability
可持续性是改造工程的重要支柱。酒店现采用地热系统进行供暖与制冷,能源取自附近河水。厨房、洗衣房及康养区产生的余热得以回收再利用。同时,项目还实施了严格的水资源管理策略——涵盖中水与雨水回收、蓄水池及水循环热能回收系统。绿化屋顶与垂直花园提升了热舒适度并改善了局部微气候,而雨水与中水系统被用于灌溉。这些举措展示了历史建筑如何通过生态责任实现重生。
Sustainability played a vital role in the reconstruction. The hotel now uses a geothermal system for heating and cooling, drawing energy from the nearby river. Waste heat from hotel operations—such as kitchens, laundry, and wellness areas—is also reused. In addition, uncompromising water-harvesting strategies have been introduced—covering greywater, rainwater, retention basins, and heat recovery from water systems. Green roofs and vertical gardens enhance thermal comfort and contribute to the local microclimate, while rainwater and greywater systems are used for irrigation. These features highlight the project’s commitment to demonstrating how historic buildings can be renewed with ecological responsibility.
▼酒店夜景,hotel at night


▼场地平面,site plan

▼地下层平面,basement plan

▼一层平面,ground floor plan

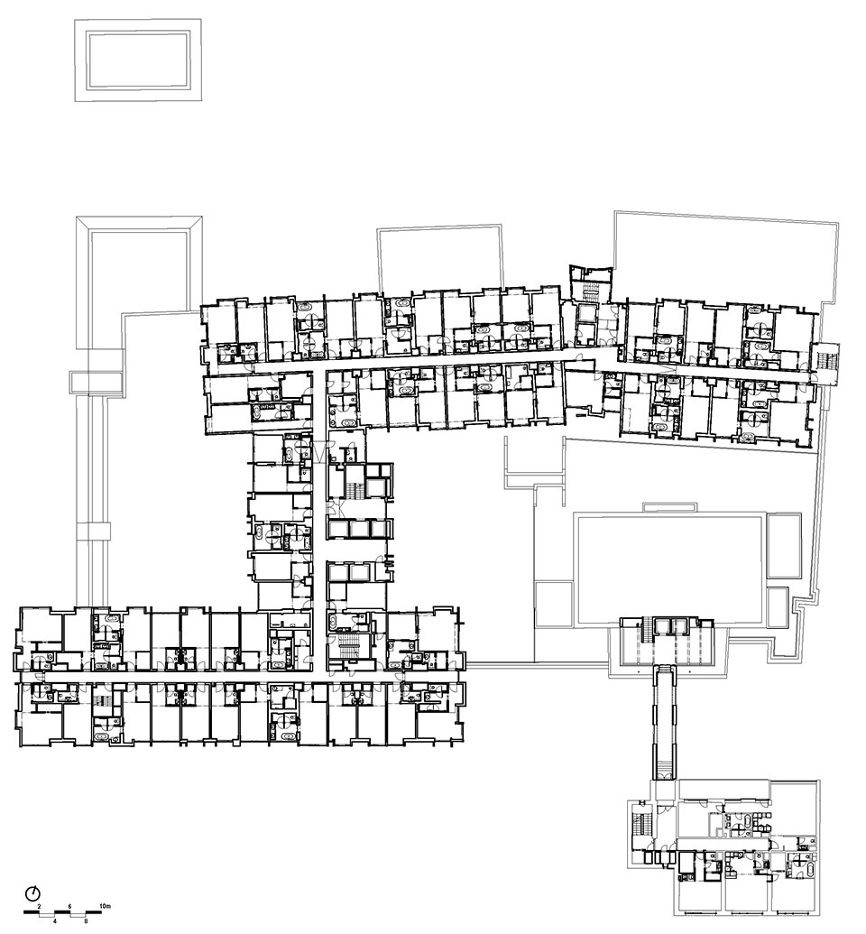
▼二层平面,first floor plan

▼三层平面,third floor plan

▼七层平面,seventh floor plan

▼八层平面,eighth floor plan

▼立面图,elevation



Studio TaK Architects
Author Marek Tichý
Contact E-mail info@tak2002.cz
Website http://www.tak2002.cz
Studio address Hollarovo náměstí 2275/2, 130 00 Prague, Czech Republic
Co-author Klára Tichá, Alžběta Komorná, Fiona Thompson, Kate Cunnigham
Design team 12 architects engaged for specific parts of the project
32 engineers and designers for the construction section [including Head of Design – HIP]
total project team: 76 members
Project location Pařížská 43, Dvořákovo nábřeží, Náměstí Curieových, Prague
Project country Czech Republic
Project year 2019–2025
Completion year 2025
Built-up area 2 525 m²
Gross floor area 38 189 m²
Plot size 14 800 m²
Client Three independent Czech investors – Pavel Baudiš, Eduard Kučera and Oldřich Šlemr
Photographer BoysPlayNice, http://www.boysplaynice.com,info@boysplaynice.com














