岩前艺术中心,广东肇庆 / Vantree Design
▼项目概览,Overview of project

肇庆星湖畔的岩前村,正在经历一次“重新被发现”的过程。在2024年,许牧川教授带领的研究生团队提出“岩前艺术中心”方案,以美学与公共空间为媒介,重新激活村落的文化脉络。
▼岩前艺术中心模型,Model of Yanqian Art Center

Yanqian Village, located by Xinghu Lake in Zhaoqing, is undergoing a process of “rediscovery.” In 2024, Professor Xu Muchuan and his graduate team proposed the Yanqian Art Center—a project that uses aesthetics and public space as media to reactivate the village’s cultural fabric.
从地方议题到概念构想——设计的原点 From Local Issue to Competition Concept — The Origin of Design
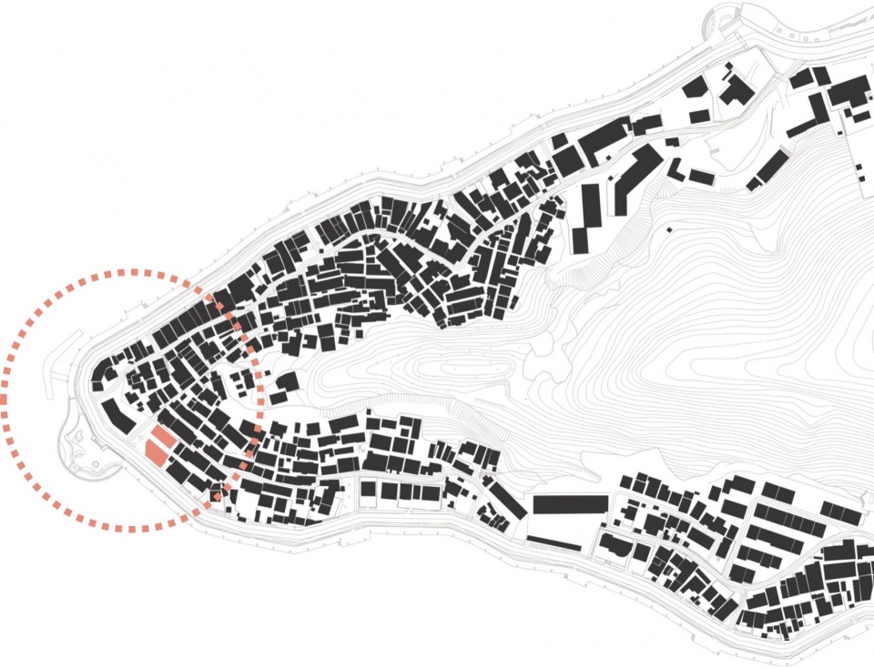
岩前村位于广东省肇庆市端州区国家5A级景区星湖东岸,是“景—村—城”交汇的地带。南、西两面为星湖碧水环绕,北接七星岩,因而得名“岩前”。
▼位于半岛端头的场地,Site at the tip of the peninsula

▼岩前村概览,Overview of Yanqian Village

Yanqian Village sits on the eastern bank of Xinghu Lake in Duanzhou District, Zhaoqing, Guangdong Province, where landscape, village, and city intersect. Surrounded by the lake to the south and west, and backed by the Seven Star Cave to the north, the village’s name literally means “in front of the rocks.”
▼ 艺术中心入口,Entrance to the Art Center

从概念方案到场所记忆——空间的生成 From Concept to Memory — The Generation of Space
通过田野调研,团队提出以“事件”激活乡村——设立岩前在地艺术节,而岩前艺术中心则是承载文化与人群的“容器”。
Through field research, the team proposed to activate the countryside through events—launching the Yanqian Art Festival, with the Art Center serving as a container for culture and people.
▼酒堂、咖啡厅场地现状,Existing buildings: Village Hall and Café

团队选定了位于岩前码头旁的一块场地,其内现存一栋废弃的咖啡厅与一间传统酒堂。设计通过连接两栋旧有建筑,编织出一个全新的公共空间,并为人们观赏星湖提供了全新的视角。几片置入的山墙,既是对岭南建筑语汇的抽象转译,也编织起建筑的交通流线。通过空间的开放与重构,让村民重新走入公共生活,也让旅者重新认识岩前的真实与温度。
▼建筑生成,Spatial generation

The site, located beside Yanqian Pier, included a disused café and an old village hall. By connecting these two existing buildings, the design weaves a new public space and offers a renewed perspective toward Xinghu Lake. Inserted gable walls abstractly reinterpret the Lingnan architectural language while organizing circulation. Through openness and reconstruction, the project draws villagers back into public life and offers visitors a renewed sense of the village’s authenticity and warmth.
▼ 临街视角,Street View Perspective


岩前艺术中心因此成为一种象征:既是事件的容器,也是文化的催化器,让乡村的故事得以继续被讲述。
▼功能分布,Program distribution

The Yanqian Art Center thus becomes symbolic—a container for events and a catalyst for culture, allowing the village’s stories to continue unfolding.
▼观景平台,Viewing platform

从艺术表达到文化记忆——符号的置入 From Artistic Expression to Cultural Memory — The Insertion of Symbolism
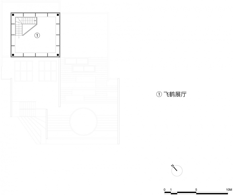
作为艺术节的核心节点,建筑内部设置“飞鹤展厅”。团队以星湖湿地的代表性生物——灰鹤为灵感,在玻璃盒中构筑艺术装置:灰鹤掠过湖面,飞向城市天际。
As the core venue of the Art Festival, the building houses the Crane Gallery. Inspired by the grey crane, a symbol of the Xinghu wetlands, the team created an installation inside a glass box—a crane gliding over the lake, flying toward the city skyline.
▼飞鹤展厅,Crane Gallery



这一意象正是岩前村的写照:它根植于七星岩的自然沃土,如今承载着历史的厚重与未来的希望,振翅飞向文化复兴与社区活力的新图景。
This imagery captures the essence of Yanqian Village itself—rooted in the fertile landscape of Seven Star Cave, yet now spreading its wings toward a new horizon of cultural revival and community vitality.
▼清晨的灰鹤,The Crane at Dawn

从图纸语言到建造实践——共建的行动 From Drawings to Construction — The Process of Co-building
2025年3月,岩前艺术中心在广东省高校“乡村创新”艺术设计大赛中斩获桂冠,团队随即进入漫长而细致的深化阶段。在深化过程中,村民的声音成为设计中最重要的变量。
In March 2025, the Yanqian Art Center won First Prize in the Guangdong Provincial “Rural Innovation” Art and Design Competition. The team then entered a long and detailed development phase, during which the villagers’ voices became the most crucial variable.
▼艺术中心鸟瞰,Aerial view of the Art Center

艺术中心一侧的一处社坛是村民日常祭祀的重要空间。团队与村民沟通后,调整入口楼梯的形态,为社坛让出更多的祭拜区域。
Next to the Art Center stood a community altar used for daily rituals. After discussions with villagers, the design team adjusted the entrance staircase to reserve more space for worship.
▼艺术中心与社坛,The Art Center and the village altar


施工过程中,村民反映两栋建筑之间的通道采光不足。为了保留巷道原有的行走体验,团队在二层楼板与大台阶处嵌入天窗,让自然光重新流入村巷。
During construction, villagers noted poor daylighting in the passage between the two structures. To preserve the spatial experience of the alley, skylights were embedded into the upper floor slab and stairwell, allowing natural light to return to the lane.
▼二层采光窗,Skylights on the second floor

▼巷道的体验,Experience of the alley


2025年10月,岩前艺术中心正式落成。纸上的构想成为现实场景——不仅是一次建筑实验的完成,更是一次由教育、专业与地方共建的成功实践。
In October 2025, the Yanqian Art Center was officially completed. What began as an idea on paper became a tangible environment—not merely a finished architectural experiment, but a successful co-construction between education, profession, and locality.
▼艺术中心鸟瞰,Aerial view of the Art Center

从临时事件到常态活动——社区的运营 From Temporary Event to Daily Life — Community Operation
2025年10月31日,岩前在地艺术节正式开幕。居民、游客、学生与艺术家在同一空间中聚集,乡村成为真正的文化现场。
On October 31, 2025, the Yanqian Art Festival officially opened. Residents, tourists, students, and artists gathered in the same space, transforming the countryside into a genuine cultural field.
▼艺术中心与村民活动,The Art Center hosting community activities


未来,艺术中心将承担更多功能:与端州区青少年宫合作开展艺术教育;联动七星岩管理处提供游客导览;定期举办展览与市集;设立“青年夜校”,促成本地与外来青年的交流等。
In the future, the Art Center will take on more functions: partnering with the Duanzhou Youth Palace for art education, organizing guided tours with the Seven Star Cave Scenic Administration, hosting regular exhibitions and markets, and launching a “Youth Night School” to foster dialogue between local and visiting youth.
▼“乡村创新”艺术设计大赛优秀作品展,Exhibition of “Rural Innovation” Competition

▼在艺术中心举办的读书分享会,Reading salon held at Art Center

通过“事件”的延续与机制化运营,岩前艺术中心正在从一次性的设计成果转化为村庄生活的常态基础设施。
Through the continuation of events and institutionalized operations, the Yanqian Art Center is evolving from a one-time design project into an enduring infrastructure of village life.
▼ 艺术中心二层夜景,Night View of Second floor of the Art Center

▼可根据使用场景变换的玻璃盒子,Glass box adaptable to different uses

在这样的循环中,设计的意义被重新定义:它不只是建造的终点,而是生活重新被发现的地方。
In this ongoing cycle, the meaning of design is redefined—it is not the end point of construction, but the place where life is rediscovered.
▼岩前艺术中心 总平面图,Master plan

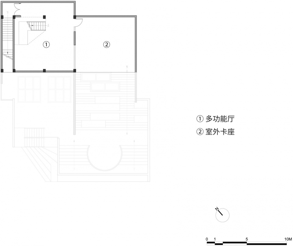
▼一层平面图,First floor plan

▼二层平面图,Second floor plan

▼三层平面图,Third floor plan

▼四层平面图,Fourth floor plan

▼南立面图,South elevation

▼西立面图,West elevation

▼剖面图1-1,Section 1–1

Project Name: Yanqian Art Center
Location: Yanqian Village, Zhaoqing, Guangdong
Building Area: 700 m²
Design Period: 2024
Completion Period: 2025
Design Team: Muchuan Xu, Junrui Chen, Jingxin Xie
Design Development: Guanbao Ye, Lanjian Xu, Shanghai Municipal Engineering Design Institute (Group) Co., Ltd.
Installation Consultant: Zhou Ji
Lighting Design Consultant: Tungsten Studio
Installation Fabrication Team: Guangdong Zhongchuang Intelligent Technology Co., Ltd.
Photography & Video: Menghai Qiu
Vantree Design
info@vantree.com.cn














