千代田区一番町新“叠石”办公楼,日本 / Mitsubishi Jisho Design Inc.
这座租赁式办公楼距东京千代田区一番町的地铁站仅数步之遥——这里毗邻皇居,充盈着深厚的历史与文化氛围。传统的租赁办公楼往往在同一栋建筑中容纳多家企业,但其立面却无法反映内部的多样性。此外,它们与周边社区的联系薄弱,对街景与邻里特色的贡献也十分有限。本项目试图解决这些问题,打造一座能够连接人群与城市环境的建筑,同时容纳日益多元的工作方式与价值观。为此,设计中引入了两项关键建筑元素:由凸窗定义的室内空间以及开放的外部空间。
This tenant office building stands just steps from a subway station in the Ichibancho district of Tokyo’s Chiyoda Ward—an area near the Imperial Palace (the former Edo Castle) steeped in history and culture. Conventional tenant office buildings generally house multiple companies within a single structure, yet their facades fail to reflect the diversity within. On top of this, they lack a sense of connection with the surrounding community and contribute little to the streetscape or the character of the local neighborhood. This project addresses these problems by creating a building that connects people to the surrounding urban environment while accommodating increasingly diverse work styles and values. To achieve this, two key architectural elements were incorporated: interior spaces defined by projecting bay windows and an open exterior space.
▼项目鸟瞰,Aerial view of the project

▼建筑立面,Building facade


立面的设计由层层堆叠、形状各异的凸窗构成,其灵感来自附近旧城护城河仍然可见的石墙意象——一种“叠石”概念。凸窗将租户企业及其员工的多样活动以建筑语言表达出来,让街道界面更富层次与生命力,并促进使用者与工作场所之间的精神联系。外立面复杂的形态由标准铝窗框与四种不同U形预制混凝土板组合形成,在表现力与经济性之间取得了平衡。
The design for the facade, composed of bay windows of varying shapes stacked floor by floor, is based on the concept of piled stones—a theme inspired by the stone walls still visible along the old castle moat in the vicinity. The bay windows give expression to the diverse activities of the tenant companies and their employees, enlivening the surrounding streetscape and nurturing a sense of connection between the occupants and their workplace. The exterior’s complex appearance was achieved through a combination of standard aluminum window frames and precast concrete (PC) slabs in four different U-shaped configurations, balancing expressive design with economic efficiency.
▼建筑入口,Building entrance


▼电梯厅,Elevator lobby

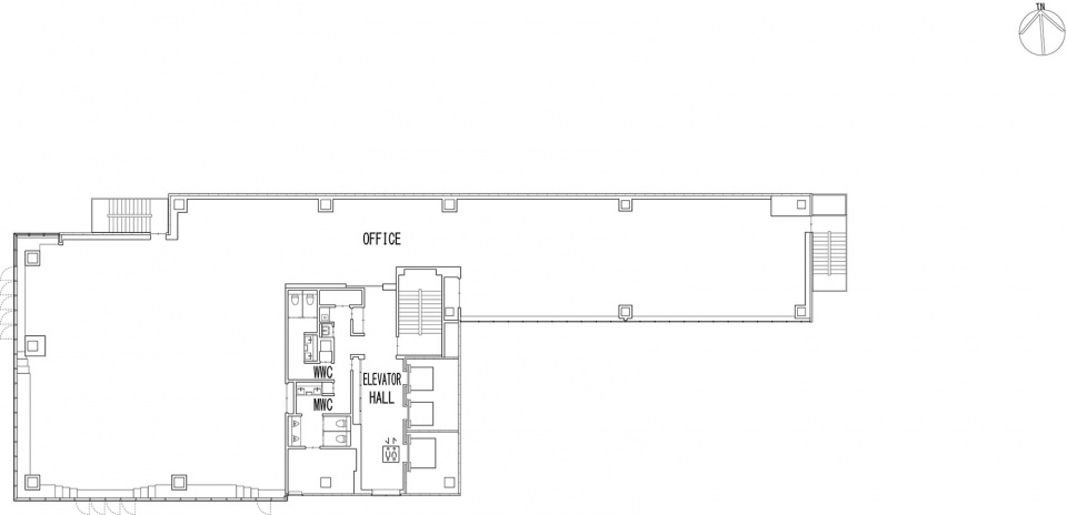
各层的凸窗空间与立面融为一体,且高度变化不一,可容纳从吧台高度到座椅高度的多种使用方式。根据建筑法规豁免,这些空间无需计入建筑面积,从而在既定体量内实质性增加了可用工作空间,提供了明显的经济优势。同时,设计重新定义了常规办公布局中往往被忽视的“窗边区域”,将其转化为可使用的活动空间。最终呈现出一座以凸窗为核心、鼓励灵活工作方式与富有想象力的家具布置的办公建筑。
The spaces created by the bay windows on each office floor are integrated with the facade and vary in height, accommodating counter- to desk-level seating. Under building code exemptions, these spaces are excluded from floor area calculations, effectively adding usable workspace within the allotted building volume and creating an economic advantage. At the same time, the design redefines the window perimeter—an often underused zone in standard office layouts—as an area of activity. The result is an office building that encourages flexible working styles and imaginative furniture arrangements, with the bay windows as the centerpiece.
▼办公区,Office space


利用场地的自然坡度,入口处设置了顺应高差的座椅与阶梯式露台。一层的咖啡馆可向入口方向完全打开;当窗框收起时,街道、办公楼入口与咖啡馆可以通过架空层空间无缝连接,形成一个开放、友好的外部界面,吸引周边居民、办公室使用者以及咖啡馆访客一同使用。
Taking advantage of the sloping terrain, we incorporated benches and terraces at the entrance that utilize the difference in elevation from the surrounding streets. The ground-floor café can be fully opened in the direction of the approach; when the window frames are retracted, the street, office entrance, and café connect seamlessly through the piloti space, creating an inviting exterior that welcomes local residents, office workers, and café visitors alike.
▼底层咖啡区,Ground floor coffee shop




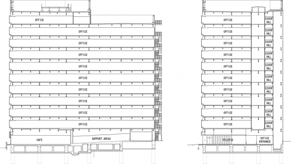
此外,所有办公楼层均采用空气系统的辐射冷却方式,并配置可开启窗户以实现自然通风。建筑还通过引入 DALI(可寻址数字照明接口)照明控制系统,降低租户装修对环境的影响。通过这些策略,建筑的年度一次能源消耗相比基准值减少了 40% 以上,达到 BEI 0.58,对应 BELS 五星和 ZEB Oriented 的性能等级。在公共区域,通过在每层使用不同色彩体系、设计便于引导使用楼梯的标识、以及在整体空间中应用“叠石”主题等方式融入 WELL 的理念。最终,该项目成为日本首个获得 WELL Core v2 预认证的租赁式办公楼。
In addition, all office floors are equipped with an air-based radiant cooling system and operable windows for natural ventilation. The use of a DALI (Digital Addressable Lighting Interface) lighting control system also reduces the environmental impact of tenant fit-outs. Through these measures, the building achieves a reduction of more than 40 percent in annual primary energy consumption compared to standard benchmarks, corresponding to a BEI of 0.58—equivalent to BELS 5-star and ZEB Oriented performance levels. In the common areas, WELL concepts were incorporated through strategies such as distinct color schemes on each floor, signage that facilitates and encourages stair use, and the application of the “piled stones” motif throughout the building. As a result, the project became the first tenant office building in Japan to obtain WELL Core v2 pre-certification.
▼楼层标识,Floor signage

▼楼梯间,Staircase

入驻的租户不仅包括长期扎根于当地的企业,也涵盖外资公司、数字创意企业、珠宝品牌等——这些租户共同强调设计品质、WELL 理念与环境性能。该项目由此成为连接多元行业与职业的城市节点,为未来中型租赁办公楼提供了一种新的范式。
The building’s tenants include not only businesses that have long called the area home but also foreign-affiliated firms, digital creative companies, jewelry brands, and others—tenants that place strong emphasis on design, WELL principles, and environmental performance. The project has given rise to a new hub for connecting diverse industries and professions within this urban neighborhood—a model for the future of mid-scale tenant office buildings.
▼夜景,Night view


▼总平面图,Master plan

▼平面图,Floor plan

▼立面图,Elevation


▼剖面图,Section

Project name: Front Place Chiyoda Ichibancho
Design and supervision: Mitsubishi Jisho Design Inc.
Location: 23-3, Ichibancho, Chiyoda-ku, Tokyo, Japan
Site area: 1,219.74 m2
Building area: 678.03 m2
Total floor area: 6,862.78 m2
Composition: 11 stories above ground
Structure: Steel
Maximum height: 47.67 m
Completion : September, 2024
Photographer: Katsuhisa Kida / FOTOTECA














