卢塘村党群服务中心,江苏宿迁 / 江苏省建筑设计研究院股份有限公司
基地概况Overview of the Base
苏北地区位置独特,湖泊和水系众多,形成了独具特色的水文化。李口镇卢塘村,西侧黄河故道穿流而过,东侧紧邻千亩鱼塘和宁静的运河,水资源丰富。水,是这片土地的灵魂。临水而居,择水而憩,自古就是人类亲近自然的本性。卢塘村党群服务中心位于黄河故道大堤旁,面朝千亩鱼塘,风光壮丽景色优美。因此,充分发挥景观优势,合理利用原始地形,处理好建筑与自然的关系成为设计的重点。
▼项目区位,Project Location

Northern Jiangsu, uniquely positioned with numerous lakes and water systems, has formed a distinctive water culture. Lutang Village, Likou Town, is rich in water resources: the former course of the Yellow River flows westward, and the east is adjacent to a thousand-acre fishpond and the tranquil Grand Canal. Water is the soul of this land. Living and resting by water has been humanity’s inherent desire to get close to nature since ancient times. Located beside the embankment of the former Yellow River and facing the thousand-acre fishpond, Lutang Village Party-Mass Service Center boasts magnificent and beautiful scenery. Thus, the design focuses on maximizing landscape advantages, making rational use of the original terrain, and harmonizing the building with nature.
▼西北鸟瞰,Aerial view from the northwest

▼南侧人视,Southern Facade Human Perspective

氛围营造 Atmosphere Creation
中国传统建筑文化强调面对自然的谦卑,当代乡村建筑应以遵循“自然之道”的态度来构想、建造与存在,顺应自然地形,融于自然山水。卢塘村分布着茂密的杨树林,村庄掩映其间,树林成为场地的主角。卢塘村党群服务中心的建设需要尊重村庄已经形成的人与树的亲密关系,使人亲近自然、敬畏自然。基地选择相对开阔之处,珍惜并尽可能保护场地周边的树木,减少对树林的扰动。建筑作为沟通人与自然的载体,不仅仅创造一座功能性建筑场所,更是创造与周围自然景观融合的诗意意境,重塑村民回归自然、参与自然、感知自然的传统村落空间。
▼基地现状,Site Current Status

▼周边环境,Surrounding Environment

Traditional Chinese architectural culture emphasizes humility toward nature. Contemporary rural architecture should be conceived, constructed, and exist in accordance with the “way of nature,” adapting to natural terrain and integrating with mountains and rivers. Lutang Village is covered with dense poplar forests, with the village nestled among them—making the woods the site’s centerpiece. The Service Center’s construction honors the close bond between villagers and trees, encouraging people to approach and revere nature. Built on an open area, the project protects surrounding trees to minimize disturbance. As a link between humans and nature, the building creates a poetic realm integrated with landscapes, reshaping a traditional village space for villagers to return to, participate in, and perceive nature.
▼北侧鸟瞰,Aerial view from the north

高程处理 Elevation Treatment
卢塘村对外交通主要利用西侧的黄河故道河堤,东侧沿河小路为村庄内部步行小道。现状地形西高东低,黄河故道河堤标高21.00,场地内标高从西到东从16.50至东侧沿河小路14.00,黄河故道河堤与沿河小路高差7米,现状村庄农房位于16.50标高,与河堤和盐和小路联系薄弱,对外交通很不方便。设计充分利用地形高差,依势而建形成错落有致的空间层次,使建筑与基地自然相融。为解决对外交通的问题,党群服务中心设计还在北侧开辟连接河堤和村庄的车行道。建筑采用错层设计,办公区设于 16.50 标高(河堤之下),上部 21.00 标高设主入口广场,与河堤齐平。村民从主门厅进入,经两处楼梯可达沿河小路,形成连续活动空间。建筑体量呼应原始地形起伏,大幅减少土方量。
▼高程处理与形体生成分析图,
Elevation Treatment & Massing Generation Analysis Diagram

Lutang Village’s external transportation relies on the western former Yellow River embankment; the eastern riverside path is for internal pedestrians. The terrain slopes west to east, with the embankment at 21.00 elevation, the site ranging from 16.50 to 14.00 elevation (riverside path), and a 7-meter height difference. Existing farmhouses at 16.50 elevation have poor connectivity, causing inconvenient external transportation. The design leverages terrain height differences, building along natural undulations to form a staggered layout that integrates seamlessly with the site. A north-side vehicular road connects the embankment and village to solve transportation issues. Adopting a split-level design, offices are set at 16.50 elevation (below the embankment), with the main entrance plaza at 21.00 elevation (flush with the embankment). Villagers enter via the 21.00 elevation lobby and reach the riverside path via two staircases, forming a continuous activity space. The building volume echoes the original terrain, significantly reducing earthwork.
▼多功能活动室室外人视,Exterior Human Perspective of the Multi-purpose Activity Room

功能分区 Functional Zoning
建筑功能分为两大部分,包括党群服务中心的办公区,和村民活动中心的活动空间。党群服务中心办公区包括办公室、卫生室、物业服务办公室、新时代文明实践站、社区综治中心、康养服务中心等功能;村民的活动中心包括便民服务中心、红白理事堂、乡情馆、电商服务中心、多功能活动室等功能。
▼功能分区,Functional Zoning


The building has two main functions: office areas for the Party-Mass Service Center (offices, clinics, property service, New Era Civilization Practice Station, community governance center, elderly care service center) and activity spaces for the Villagers’ Activity Center (convenient service center, wedding/funeral hall, hometown memory hall, e-commerce service center, multi-functional activity room).
▼室内人视,Interior View

流动空间营造 Creation of Flowing Space
建筑镶嵌于树林之中,建筑界面与树林层层叠叠、纵向延伸。设计打破楼层界限,连续变化的剖面高度,使人感知一系列空间尺度的变化,暗喻在密林中穿越的空间特质。因基地南为树林、北为新建农房,内部空间东西开敞、南北相对封闭,引导人们探索从黄河故道大堤到千亩鱼塘的景观通廊。
Embedded in the forest, the building’s facades overlap with trees and extend vertically. Breaking floor boundaries, continuously changing section heights create a sense of varying spatial scales, echoing the experience of traversing a dense forest. With woods to the south and new farmhouses to the north, the interior is open east-west and relatively closed north-south, guiding exploration along the landscape corridor from the embankment to the fishpond.
▼主入口灰空间人视,Human Perspective of the Main Entrance Semi-open Space

▼门厅人视,Lobby Human Perspective

从室外的河堤迈入入口休闲广场,这个广场不仅是建筑的引导入口,也是居民们轻松聚会、休闲放松的室外场所。穿过主广场旁的灰空间进入主门厅,室内如逐步展开的画廊,呈现多层次美景。流畅设计模糊室内外界限,使自然与建筑、各功能空间相互交融。
Entering the entrance plaza from the embankment, the space serves as both a building gateway and an outdoor gathering area. Through the gray space beside the main plaza, the lobby unfolds like a gallery, presenting layered scenery. The fluid design blurs indoor-outdoor boundaries, integrating nature with indoor and functional spaces.
▼室内人视,Interior Human Perspective

建筑中央为内向开敞的庭院。穿过门厅豁然开朗,内院上层观景平台可眺望远方,越过起伏屋顶欣赏水天一色。从观景平台通过楼梯踏入庭院,此处植被错落、小径蜿蜒,是村民放松交流的理想休憩空间。
The building centers on an inward-opening courtyard. Beyond the lobby, the upper viewing platform allows villagers to overlook rolling roofs and the water-sky blend. Stairs lead to the enclosed courtyard—a resting space with curated vegetation and winding paths, ideal for relaxation and communication.
▼观景平台人视,Viewing Platform Human Perspective

中央庭院东端的多功能活动室是室内空间高潮,功能灵活多变,可作为图书室、文化交流场所及各类社区活动场地。面向千亩鱼塘的通高落地玻璃窗提供宽阔视野,实现室内外空间融合,让村民在活动中尽享美景。
The multi-functional activity room at the east end of the central courtyard is the interior highlight. Flexible in use, it serves as a community library, cultural exchange venue, and event space. With full-height floor-to-ceiling windows facing the fishpond, it offers broad views, seamlessly integrating indoor and outdoor spaces for residents to enjoy the scenery.
▼多功能活动室人视,Multi-purpose Activity Room Human Perspective

一系列共享空间构建出丰富多彩、流动变幻的建筑环境,为村民提供多元社区体验。建筑隐于杨树林中,如隐秘居所与自然共同勾勒出层次丰富的画卷。傍晚立于观景平台,远眺水天相接,渔灯点点如星光闪烁。
These shared spaces create a vibrant, flowing environment, providing diverse community experiences. Hidden in poplars, the building resembles a secluded retreat, depicting a layered picture with nature. In the evening, the viewing platform offers vistas of the water-sky blend and twinkling fishing lights like stars.
▼北侧人视,North View

地域特色塑造 Shaping of Regional Characteristics
传统乡村建筑蕴含丰富的地域文化特征,不同地域的乡村建筑在形式、风格和建筑材料上呈现出鲜明的特点。现代乡村建筑设计应在空间布局、建筑形式、材料应用和技术手段等方面,寻求传统文化与现代建造的有机融合,创造出具有地域特色和现代特征的乡村建筑,满足现代人们对生活品质、舒适度和文化价值的需求。
▼空间布局分析 Spatial Layout Analysis

Traditional rural architecture embodies rich regional cultural features, with distinct forms, styles, and materials across regions. Modern rural design should integrate traditional culture with contemporary construction in layout, form, materials, and technology, creating buildings with regional and modern characteristics to meet demands for quality of life, comfort, and cultural value.
卢塘村所在的苏北地区是古代汉文化核心,传统民居受南北文化影响,兼具南方建筑的温婉活泼与北方建筑的浑厚稳重。传统院落主房在前、辅房在后、两侧厢房,既保留北方四合院的封闭性,又融入江南民居与徽派建筑特色。卢塘村党群服务中心设计采用现代的结构和材料,通过创设情景性、故事性、象征性表达,从而创造出简约而又具备浓郁地域特色的空间形态,建立乡愁情感的共鸣。
▼苏北民居院落和苏北民居立面,
Northern Jiangsu Courtyard Residence and Northern Jiangsu Residential Facade


Located in Northern Jiangsu—a core area of ancient Han culture—Lutang Village’s traditional dwellings blend northern and southern influences: the gentleness of southern architecture and the solidity of northern styles. Traditional courtyards, with main houses in front, auxiliary houses behind, and wing rooms on both sides, reflect northern enclosure and Jiangnan/Huizhou architectural influences. The Service Center adopts modern structures and materials, creating a minimalist yet regionally rich spatial form through situational, narrative, and symbolic expressions to resonate with nostalgia.
▼服务中心院落,Service Center Courtyard

▼主入口立面人视,Main Entrance Facade Human Perspective

建筑为院落式布局,四面围合形成私密内院,南北立面相对封闭,东西侧采用通透大玻璃,兼顾现代功能与观景需求。立面延续当地传统面阔三开间、两坡屋顶及 “硬山造” 设计,经优化形成连续坡屋顶,兼具实用性与地域辨识度。建筑南北立面以实墙为主,不规则排列大小各异的窗户。夜幕降临时,窗内灯光与远处鱼塘渔灯交相辉映,构成 “渔舟唱晚” 的诗意画面。局部采用金属网装饰,暗喻当地特色渔网元素。
It features a courtyard layout, with closed north-south facades and transparent full-glass east-west facades for modern functionality and viewing. The facades inherit the local traditional three-bay width, gable roof, and “hard gable” design, optimized to form continuous gable roofs. The north and south facades are dominated by solid walls, with irregularly arranged windows of varying sizes. At night, lights through the windows and distant fishing lights form a poetic “fishing boats returning at dusk” scene. Partial metal mesh decoration subtly alludes to the region’s unique fishing nets.
▼东北侧人视,Northeast Facade Human Perspective

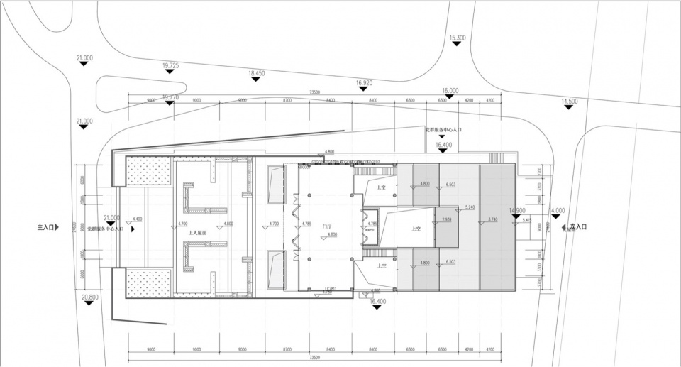
▼总平面,Master Plan

▼一层平面,First Floor Plan

▼二层平面,Second Floor Plan

▼南立面,Southern Facade

▼北立面,Northern Facade















