Loft工作室改造,深圳 / ARC Z
工作室的设计源于对一间闲置厂房艺术家工作室的重新想象。当我们初次踏入场地时,室内显得闭塞且昏暗:一个带有夹层的通高空间,自然光仅能从朝东低矮的暗色的门窗透入室内。因此,创造新的开口并引入自然光便成了改造的重点之一。幸运的是,立面上原有的两处设备换气口的构造梁为此提供了结构基础,我们便顺势将其扩展成一对更大的窗洞以引入自然光和通风,并由此出发展开了项目的设计构思。
▼改造前,Before renovation

The design of the office is derived from a derelict artist studio shed. At the first encounter, the space appeared hermetic and dim: an east-facing double-height space with a mezzanine level that admitted only the muted light of low tinted doors and windows. Introducing light through new apertures was both an imperative and instinctive act. Fortunately, The two existing ventilation shafts on the façade provided the structural basis for expanding them into a pair of high windows that receive and diffuse natural light, thereby unfolding the spatial narrative of the design.
▼主办公空间,Main working space



在不改变既有的夹层钢结构框架前提下,我们用一道弧形天花吊顶同时回应空间的多个需求:它平滑地过渡并连接了上下两层的空间,定义吊顶弧线段的圆形在夹层会议室的中心轴处达到顶点,使会议室的空间呈现出轴对称的稳定构图,并且让吊顶上部空腔得以容纳空调内机的同时使夹层获得最大的净高。透过高窗,弧形吊顶成为散射光的手段,柔和的自然光缓缓滑过整片弧面并充满室内空间。从首层望去,这道弧线的终点被隐藏,仿佛空间仍将继续延伸。在弧顶与界定内外墙体的交汇处,一条连续的磨砂玻璃灯箱轻柔地承接着天花的弧线,以一层朦胧的光晕消解了重量,使这面墙在感官上显得几乎可被穿透。
▼分析图,Analysis diagram

Within the existing mezzanine steel frame, an arced ceiling became a concise yet poetic gesture that resolved multiple demands at once: it mediates the transition between the ground floor and mezzanine with a continuous sweep, while its generative circle reaches its apex along the central axis of the meeting room above, giving the space a calm, symmetrical order and preserving the mezzanine’s maximum clear height while concealing the mechanical systems above. Soft daylight filters through the high windows and washes across the curved surface, turning it into an instrument for diffusing light; viewing inward from the ground floor, the arc seems to recede beyond sight. On the other side, a continuous frosted-glass light band gently receives the curved ceiling, making the wall appear perceptively permeable.
▼面向窗外的办公区全览,An overview of the office facing the window

两侧高窗射入的自然光雕刻出弧顶的体积,高窗开口与弧线的碰撞塑造出一对兼具雕塑感和功能性的窗洞,深嵌的切口也与下方门窗一并通过空间对位和光线关系界定了办公桌的布局。而在室外,两侧高窗则以极简的方形窗洞呈现在白墙之上。有趣的是,类似的内外对比可以引申出某些巴洛克建筑的先例——如都灵的圣玛利亚广场教堂——其外部立面上的窗洞平直规整,却在室内呈现为饱满发光的体量。
Light, cast through two elevated apertures, assumes the status of volume, sculpting the arc into a pair of embrasures with both plastic and imaginative depth. The embrasures further inform the arrangement of desks through their spatial alignment. From the exterior, however, the embrasures appear as simple square openings on a flat wall. This recalls certain Baroque precedents—such as the church of Santa Maria di Piazza in Turin—where the window registers as flat and geometric on the exterior yet volumetric and luminous within.
▼右侧天窗,Right-side skylight

▼左侧天窗,Left-side skylight

▼自然采光,Natural daylighting

弧顶之下,三个不同尺度的玻璃窗户构成了夹层的室内立面。其中最大的窗直接对应着夹层的会议室空间,如舞台般展示着内部活动;最小的磨砂玻璃窗则暗示着一种熟悉的尺寸,却又被置于一个不寻常的位置,在夜间像灯笼一般被点亮。而最后那扇长方形横窗似乎又暗示了一个隐匿房间的存在。只有登上夹层时,它背后所隐蔽的楼梯空间方才显现给访客。三扇大小形态各异的窗户在室内立面上展现出不同尺度和属性的空间,激发意识对于想象维度的间接感知,和身体对真实维度的直接体验的双重乐趣。
This traversal of light across the threshold recurs on an interiorized elevation articulated by three windows of varying scales. The largest one channels light into the enclosed meeting room, framing and displaying the activities within; the smallest suggests an uncanny, uninhabitable dimension, lit up like a lantern during nighttime. The last aperture alludes to—and then eludes—the presence of a hidden room, which only reveals itself as a concealed staircase once the visitor ascends to the upper level. The three windows propose, within one room, varied spatial vitality—whether validated through direct experience or through a vicarious perception.
▼有趣的内部开窗, Interesting internal window

设计的结果和空间的呈现,起始于将现有自然光条件的限制作为一种线索。而与之对应的,我们也选择用光线重勾空间过往的痕迹。因此,我们将空间两侧红砖墙被涂白,以光线凸显其细腻肌理,连同原有结构框架一并被“循环利用”到新的空间中。
The design reveals itself through transforming the initial limitation of natural light into a generative cue. In turn, we let light to subtly portray the traces of what the space once was. The brick walls on both sides were painted white so that light could reveal their haptic textures, allowing the original structural framework—and the traces it carried—to be “recycled” into the new spatial narrative.
▼会议室,Meeting room

▼夹层模型绘图空间,Mezzanine workshop


砖的肌理作为一种场地内外的印迹,从墙面一直蔓延到庭院,延续着场地外行步道的印记。这方庭院微微抬高,被若干具有不同通透性的界面所围合:临街一侧是轻盈透光的阳光板,展示出一层清澈的浮影;在上方,光线被树冠过滤后撒在室内,形成另一种浮影般的清澈。
The brick texture registers as a trace that weaves throughout the site, extending from the wall to the courtyard and resonating with the brick paved sidewalk. The courtyard itself is slightly elevated and enclosed by layers of varying permeability: translucent polycarbonate panels along the street as a lucid illusion, and above, the canopy of trees filtering light and shadow as an illusionistic lucidity.
▼光与树影的交织,The weaving of light and tree shadows

▼院落,Courtyard

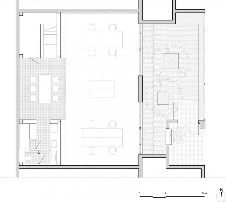
▼一层平面图,First floor plan

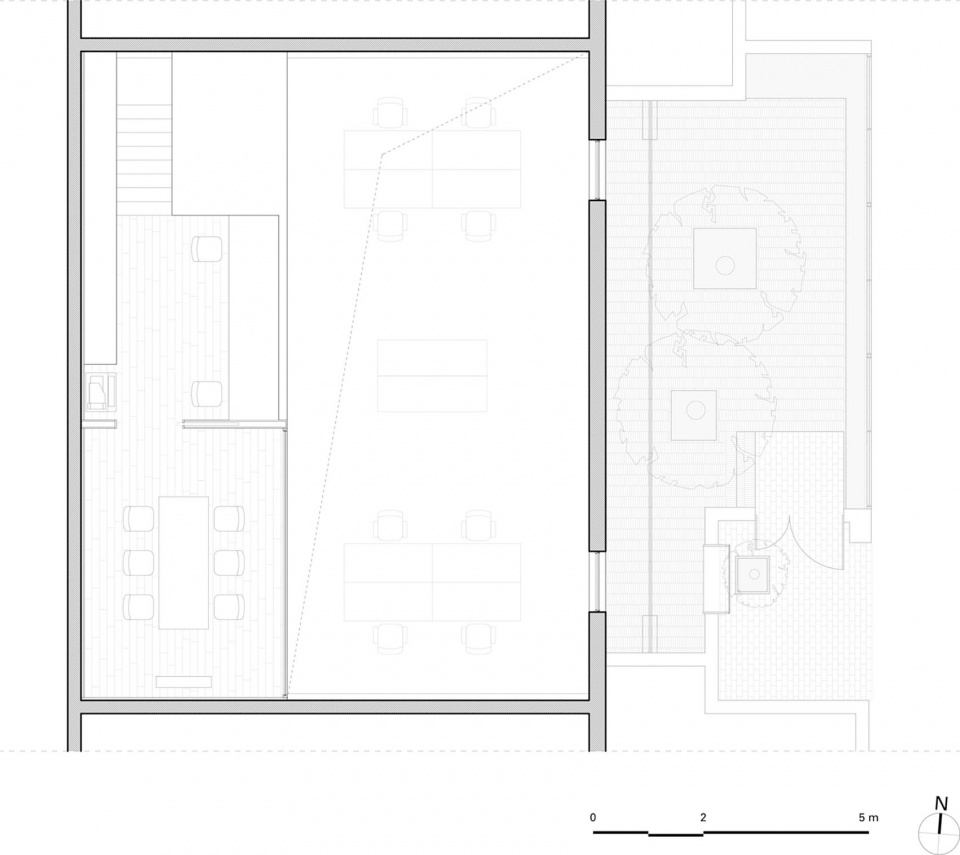
▼夹层平面图,Mezzanine floor plan

▼剖面图,Section
















