秦皇岛GatherHouse玖山合吉,河北 / 北京山房筑艺术设计有限公司
建筑本身就是一个“发酵”的载体。红砖墙体是“过去”的风味,记录了工业时代的记忆;耐候钢的锈蚀是“现在”的进行时,如同面包在烘烤中持续发生的美拉德反应,随时间推移呈现出不同的色泽与质感;而穿梭其中的人与新鲜出炉的面包,则代表着“未来”的活力与新生。整个空间,就是一个巨大的、缓慢发酵的容器。
Architecture itself is a vessel for “fermentation.” The red brick walls are a reminder of the “past,” preserving memories of the industrial age. The rusting of weathering steel embodies the “present,” like the Maillard reaction that unfolds as bread bakes—gradually revealing shifting hues and textures over time. And the people moving through the space and the freshly baked bread symbolize the vitality of the “future.” The entire space is a vast container for the slow fermentation process.
▼项目外观,Exterior view of the cottage


项目概述Project overview
GatherHouse玖山合吉坐落于秦皇岛西港花园的工业遗存区内,前身为一座结构规整的工业厂房。设计从面包的烘制过程中汲取灵感,将标志风味生成的“美拉德反应”转译为空间的核心叙事语言。
GatherHouse is located in the industrial heritage area of Xigang Garden in Qinhuangdao. Originally a neatly structured industrial workshop, the building has been reimagined through a design inspired by the “Maillard reaction” in baking bread. The design translates the Maillard reaction — the chemical process that creates distinctive flavor — into the core narrative of the space.
▼入口,Entrance

▼室外座椅与遮阳棚设计,Design of outdoor seating and sunshades

第一幕:
序曲 – 粗犷的暗示
Act I:
Prologue – An Allusion
顾客首先触摸到的是粗粝的红砖和冷硬的耐候钢。此时的空间语言是宏大、厚重、静止的。刻意保留部分原建筑的工业印记,如模糊的厂标、斑驳的油漆,作为故事的“扉页”。
The first thing customers touch is the coarse red brick and the cold, rigid weathering steel. At this moment, the space is grand, weighty, and still. Certain traces of the original industrial building—such as the faint factory logo and mottled paint—are deliberately preserved as the “opening pages” of the story.
▼街角视角,Street corner view

若有若无的麦香开始从室内溢出,与旧建筑的气味形成初次对话,勾起探索的欲望。
A subtle aroma of wheat begins to drift from the interior, which initiates a quiet dialogue with the scent of the old structure and stirs people’s desire to explore further.
▼入口大厅,Entrance hall

步入室内,由木材与发光杜邦纸构筑的圆形明厨装置,以柔和的形态与光感,呼应着面包内里的绵软与温热。西侧增设的大窗,为室内引入充沛光线,并建立起与室外庭院空间的视觉连接。明厨周围的环形流线设计,鼓励顾客环绕、驻足、观看,甚至与面包师进行简短交流,强化“现场感”与“透明感”。
Stepping inside, visitors encounter a circular open kitchen made of wood and illuminated DuPont paper. Its gentle form and soft glow echo the warmth and tenderness found inside freshly baked bread. A newly added large window on the west side brings abundant natural light into the space and establishes a visual connection with the outdoor courtyard. The circular flow around the open kitchen invites customers to move around, pause, observe, and even engage in brief conversations with the bakers, which enhances the sense of “immediacy” and “transparency.”
▼吧台售卖区,Bar counter

▼明厨周围的环形流线设计,Circular flow around the open kitchen

▼吧台细节,Counter design features

第二幕:高潮 – 温暖的核 Act II: Climax – The Warm Core
这是整个旅程的心脏与舞台。圆形明厨,不仅是功能核心,更是一个“仪式中心”。发光杜邦纸营造出的柔和光晕,如同面包内瓤的温润。顾客可以身临其境地感受到面包师如何将平凡的面团变为金黄的艺术品——这是“美拉德反应”的动态演示。面团入炉的声响、面包师的忙碌身影,共同构成了一场充满生命力的表演。
This is the heart and stage of the entire space. The circular open kitchen is not only the functional core—it is a ritual center. The soft glow created by the illuminated DuPont paper mirrors the gentle warmth of bread. Here, customers are immersed in the process as bakers transform ordinary dough into golden works of art—a live demonstration of the Maillard reaction. The sound of dough entering the oven and the bakers’ bustling movements together form a performance brimming with vitality.
▼室内木饰展台,Indoor display counter

烘焙的香气是一种强大的情感触发器。设计可以有意识地引导这种“嗅觉体验”,让麦香、黄油香与旧厂房的“历史气息”(旧木、微潮的矿物质感)混合,发酵出一种独特的、能唤起深层记忆的“场所精神”。顾客在此品尝的不仅是一块面包,更是一段被香气激活的、关于时光的遐想。
The aroma of baking is a powerful emotional trigger. Design can intentionally guide this olfactory experience, allowing the scent of wheat and butter to blend with the “historical atmosphere” of the old factory—the aged wood and faintly damp mineral notes. This fusion ferments into a unique “genius loci” capable of awakening deep-seated memories. Here, customers are not merely tasting a piece of bread—they are savoring a moment of time, stirred into reverie by scent.
▼展台上的面包,Pieces of bread presented at the counter

面团在面包师的手中变幻成各种造型,经由烤箱烘烤后呈现在展台中售卖。我们想象这次的项目是一间专门制作美味面包的“面包工坊”,将客户置身于制作面包的空间中,让客户在精心营造的氛围中感受面包出炉的瞬间和香气四溢的幸福感。
In the hands of the bakers, dough is shaped into a variety of forms, then baked in the oven and presented for sale at the counter. We envision this project as a dedicated bread atelier, immersing customers in the very space where bread is made. Within this carefully crafted atmosphere, they can experience the moment bread emerges from the oven and the joy that rises with its fragrant warmth.
▼面包师与售卖中的面包,Bakers and pieces of bread on sale

第三幕:沉淀 – 光与景的交融 Act III: Resolution – The Fusion of Light and Landscape
当顾客手持面包走向东侧大窗,旅程从内部的“聚焦”转向外部的“舒展”。充沛的阳光将面包的色泽渲染得更加诱人。窗框将庭院景色定格成一幅活的画面,随着四季更迭而变换。此时,手中的温热面包与窗外的自然光影产生了共鸣,“内”与“外”的边界被模糊,品尝的体验因景色的融入而变得更加诗意。
As customers carry their bread toward the large east-facing window, the journey shifts from indoors to outdoors. Sunlight pours in and makes the bread’s golden hues even more enticing. The window frame captures the courtyard view like a living painting, which subtly transforms with each passing season. In that moment, the warmth of the bread in hand resonates with the natural light and shadow outside—the boundary between “inside” and “outside” blurs, and the act of tasting becomes more poetic, enriched by the scenery which becomes part of the experience.
▼沙发座位区,Soft seating area


第四幕:回味 – 美好的感受 Act IV: Aftertaste – Lingering Delight
嵌入原有窗洞的休憩座位,是旅程的休止符和回味空间。它保留了建筑的工业基因,又提供了极具安全感和包裹性的角落。顾客在这里细细品味面包的最后一口余香,回望整个空间,完成从“参观者”到“体验者”的身份转变。
The resting nooks embedded within the original window openings serve as the coda of the journey and provides a space for reflection. It retains the building’s industrial style while offering a cozy, enveloping sense of comfort. Here, customers savor the lingering aroma of the final bite of bread and gaze back across the entire space, and they transform from mere visitors to true participants in the experience.
▼室内概览,Interior overall


▼沿窗座位区,Window-side seating area

▼沿窗座位区近景,Window-side seating area close view


▼室内细节,Interior details


天窗倾泻光影、老砖墙对话新陈设,空气中弥漫着现烤面包的麦香与咖啡醇香,引导顾客穿梭于暖色系陈列台与休闲座区间。
Sunlight streams through the skylight, casting patterns of light and shadow, while old brick walls converse with new furnishings. The air is filled with the scent of freshly baked bread and the rich aroma of coffee, guiding customers between warm-toned display counters and the cozy seating area.
▼街角近景,Street corner close view



外摆区域既是室内活动的延伸与生长,也是对城市界面的激活,我们以高度概括的抽象屏风语言去建构出一个更好走进的场域。
The outdoor seating area is both an extension and evolution of the indoor experience, and a way to activate the urban interface. Through a highly abstracted language, we construct an inviting space that is open and engaging.
▼开放场域,Open space

▼外摆区域,Outdoor seating area

外摆区新建的遮阳棚,采用工业脚手架作为结构支撑,巧妙使用篷布成为受力的组成部分,构建出一个轻巧的装置体,与厚重的历史建筑形成了一种张弛有度的并置对话,极具灵活性,可轻松变身为周末市集、面包工坊、小型音乐沙龙或艺术快闪的场地。耐候钢的硬朗与篷布的柔软,为各种活动提供了丰富的背景。
The newly built canopy in the outdoor area uses industrial scaffolding as its structural support. The clever use of tarpaulin as a load-bearing component creates a lightweight installation that forms a dynamic and balanced dialogue with the solid historical architecture. Highly adaptable, the space can be effortlessly transformed into a weekend market, a bakery workshop, a small music salon, or a pop-up art venue. The contrast between the toughness of weathering steel and the softness of the tarpaulin provides a rich backdrop for a variety of events.
▼建筑夜景,Architectural nightscape


项目空间成为一本“可阅读的”教科书,向顾客讲述着工业历史、建筑美学与烘焙科学的故事。它连接了城市的过去(工业遗产)与现在(品质生活),成为秦皇岛文化地图上一个独特的坐标。
The space becomes a “readable” textbook, telling stories of industrial history, architectural aesthetics, and the science of baking. It bridges the city’s past—its industrial heritage—with its present pursuit of quality life, and thus establishes itself as a unique landmark on Qinhuangdao’s cultural map.
▼室内+户外平面,Interior + Outdoor plan

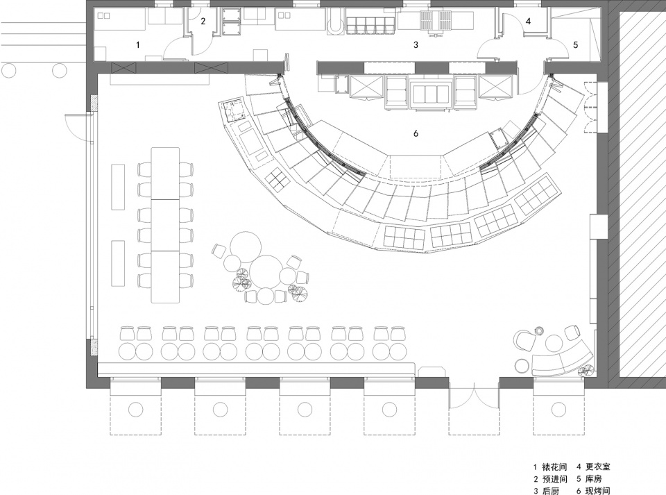
▼室内平面,Interior plan

▼立面,Elevation


Project Title: GatherHouse · Jiushan Heji
Location: Xigang Garden, Qinhuangdao, Hebei Province
Floor Area: 254 square meters
Design Period: November 2024
Completion: June 2025
Design Firm: Beijing Shanfangzhu Art Design Co., Ltd.
Lead Designers: Liu Yujie, Zhang Peng
Design Director: Zhong Shanfeng
Design Team: Ren Xiaoxue, Xi Haihong, He Maohua
Photography: Wu Xuewen














