KEBABA餐厅,上海 / 上海问和答建筑设计咨询有限公司
Kebaba 是位于上海、柏林食谱的土耳其卷店,主打现切鸡肉、多汁蔬菜与大胆酱料。品牌的野心并非成为城市中又一个普通的 kebab 小摊,而是希望叠加街头文化与派对能量。“Disco Döner”概念叙事平衡了这两种特质:一个能唤起深夜柏林俱乐部氛围,却又扎根于上海鲜活街头文化的场所
Kebaba is a late‑night Berliner‑inspired doner kebab spot in Shanghai serving up fresh chicken doner, crisp vegetables, and bold sauces. The brand’s ambition is not to become just another kebab kiosk: they want to become a destination, to layer street culture with party energy. The “Disco Döner” concept balances these two spirits: a place that evokes the atmosphere of late-night Berlin clubs while remaining firmly rooted in Shanghai’s vibrant street life.
▼餐厅入口,Entrance

空间策略从一个直接而大胆的想法展开:让整体材料语言化作一个“流动的迪斯科球”。镜面不锈钢马赛克包裹墙面与地面,光线被不断反射与折射,人的动作、器具的闪光、客流的节奏在其中被放大,使空间在全天保持动态与“现场感”。这一强烈的视觉语汇奠定了品牌鲜明的夜间能量。
The concept is deliberately straightforward: use highly reflective materials to evoke a “moving disco ball.” Mirrored stainless steel mosaics wrap the walls and floors, continually reflecting and refracting light to amplify gestures, the gleam of equipment, and the rhythm of foot traffic, making the space read as dynamic and “live” throughout the day.
▼吧台,Bar

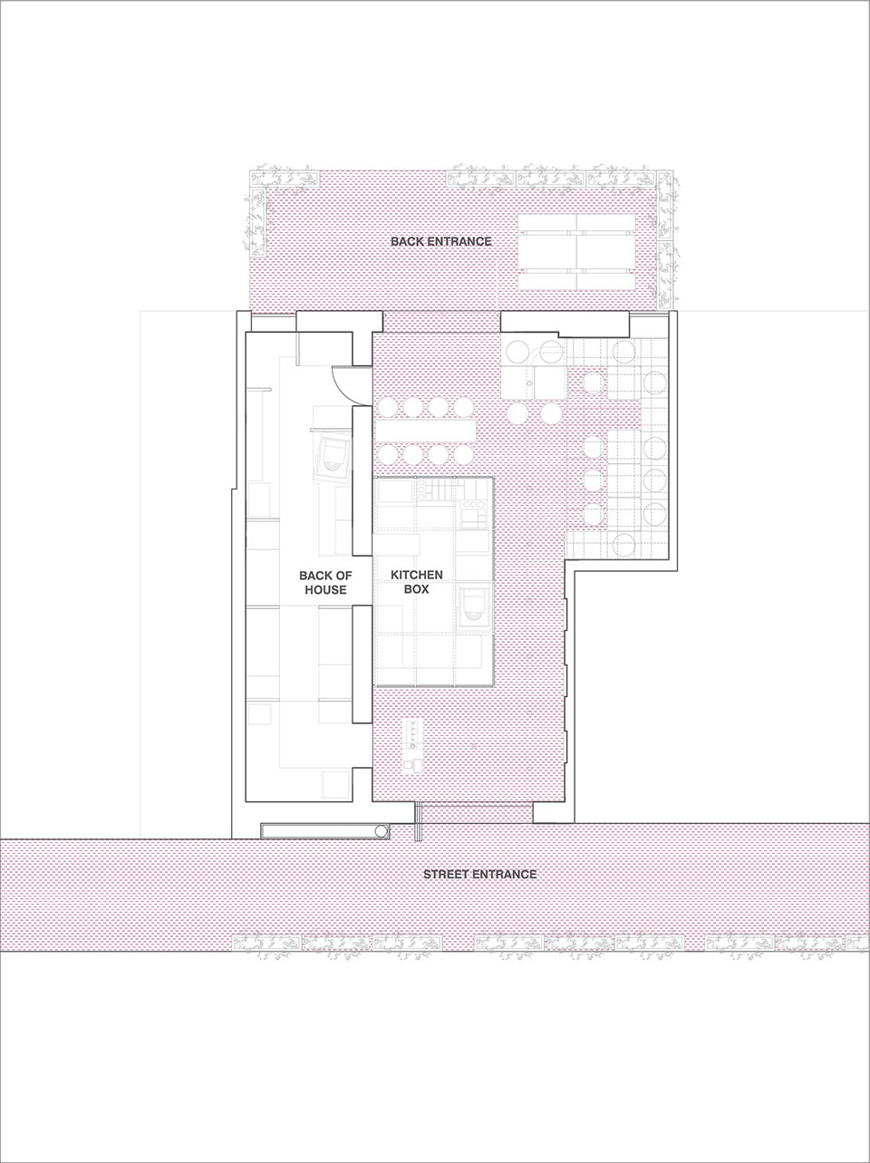
空间动线围绕着品牌的两面性展开——高效而俏皮。通过灯光分区、材质变化与动线设置构建了一条“情绪递进式”路径:从街头入口的明亮敞阔,步入活力迸发的点餐区,松弛惬意的后区,沿途穿插站立区与交流角,满足“快取”,“偶遇”,“聊天”,‘’聚会‘’等多种微场景,是从“吃完就走”到“吃完留下”的引导艺术。打破传统小吃店单一流线、单一节奏的惯性。
Circulation is organized around the brand’s dual character: efficient and playful. Through lighting gradients, material transitions, and route design, a step-by-step mood progression is established: from a bright, open street entry to an energetic order zone, and finally to a relaxed rear lounge. Standing tables and conversation nooks punctuate the path, supporting grab -and-go, chance encounters, quick chats, and small meetups—breaking the one-way flow typical of snack shops.
▼靠近入口处座位,Seats near the entrance

前区是视觉焦点和能量场。入口即核心——开放式点餐台与明档厨房第一时间进入视线。排队、点单、现切、打包与驻足观望的好奇在同一视域内完成,烟火气与“俱乐部入场仪式感”并置,显著提升外立面曝光与品牌可见度。空间中央则是一个独立的厨房盒体,完全包覆镜面不锈钢,呈现干净、克制、流程透明的食物制作核心,让街头食物也拥有精致与秩序感。这种冷静的内核与前后区域的热闹形成可读的叙事张力。空间的最深处则放慢节奏,以更柔和的座椅、降低的照度与一个可转换为 DJ 小台或迷你舞台的灵活区域,提供用餐后短暂停留、社交聚会或轻型活动的可能,使快餐场景被延展为一种更开放的社区体验。
▼厨房盒子图,Kitchen box diagram

Upon entry, the open ordering counter and visible kitchen set the tone. Street eminence meets club arrival: people queue, order, grab and go — or linger if they choose. At the centre sits an independent volume clad entirely in mirrored stainless steel, foregrounding a clean, precise, and transparent workflow and conveying the idea that street food can have a refined core. Its composure contrasts with the livelier guest areas, creating intentional narrative tension. At the back, a dedicated linger zone introduces softer seating and lowerilluminance ambient lighting, with a flexible spot reserved for a DJ nook or small stage. It accommodates post-meal socializing, short stops, and intimate gatherings, easing the pace of fast consumption and opening room for interaction.
▼厨房盒子,Kitchen box

▼内部座位,Interior seating

在材料的选择上,空间语言既服务深夜能量,也回应餐饮服务的高强度使用。基础材质以明亮不锈钢与拉丝金属为主,呈现直接、工具化的底色;后区墙面的 ALPI Sottsass 粉色饰面向 Memphis 精神致意,既柔和又锋芒,与品牌标识呼应,并与霓虹光、饱和膜材等元素共同强化“Disco”气场。耐磨的粉色地面经得起夜间高频使用,而后场的织物与吸音处理提升亲密度,使空间的节奏从硬朗到柔和自然过渡。视觉图形与装置延伸街头、音乐与涂鸦线索,将 Döner 融入更大的亚文化语境中。
Materials balance durability and attitude: bright stainless steel and brushed metal as foundational materials, setting a clear, utilitarian tone. ALPI Sottsass pink veneer on the rear zone wall pays homage to the Memphis spirit—soft yet edgy—and echoes the brand’s logo; vivid accents (neon, saturated vinyl films, etc.) amplify the “Disco” mood.Pink commercial-grade, wear-resistant flooring to withstand heavy foot traffic and late-night use. Soft finishes in the lounge add comfort. Graphics and installations reference music and street culture, embedding the döner within a wider subcultural landscape.
▼餐厅logo,Restaurant Logo

Kebaba 的空间设计最终呈现出一种双重节奏:既快速,又充满能量;既直接,又带着轻微的浪漫与反叛。它让一顿深夜的土耳其卷,成为城市中可以共享、可以记忆、可以再次回到的地方。
The spatial design of Kebaba ultimately presents a dual rhythm: fast yet energetic; direct yet tinged with a hint of romance and rebellion. It transforms a late-night Turkish wrap into a place within the city that can be shared, remembered, and returned to.
▼项目平面图,Project floor plan

QUARTA 上海问和答建筑设计咨询有限公司
Website: http://www.quarta.cn
Instagram: @ quarta_____ (https://www.instagram.com/quarta_____/)
联系方式: dz@quarta.cn
联系人:朱丹
KEBABA (街边店/餐饮)
Project Credits
设计团队: Gianmaria Quarta,游辛夷, 赫纬元
设计范围: 室内设计,定制家具设计
客户: Kebaba
地址: 上海市延平路98号6幢98-1室
设计面积: 45 sqm
竣工时间: 2025 10月
摄影版权: Dirk Weiblen (已授权使用,但在使用照片时必须注明设计公司和摄影师)
材料:
ALPI Sottsass科技木皮(18.78 ALPI Sottsass Pink), 是设计师Ettore Sottsass 为ALPI创作的材料,于1980年代的Memphis系列中得以应用 ( 品牌:ALPI )
不锈钢
不锈钢马赛克
粉色 PVC 地板
艺术漆 (品牌:Danilo Travertino)
KEBABA (Street shop / F&B)
Project Credits
Design: Gianmaria Quarta, Xinyi You, Hao Weiyuan
Service Scope: Interior Design, Custom Furniture Design
Client: Kebaba
Location: BUILDING 6, NO,98 Yanping Road, Shanghai, China
Built Area: 45 sqm
Completion: October 2025
Photographer: Dirk Weiblen
Material :
Alpi Sottsass wood laminate (Brand. Alpi )
Stainless steel
Stainless steel mosaic tiles
Pink PVC flooring
Artistic paint (Brand: Danilo Travertino)














