烟台八角湾游客服务中心,山东 / 大椽设计
面朝大海,背靠会展中心,在两个巨型尺度的面前,任何形式化的表现都不是最合适的选择。我们将基地的正负零标高处理成一道“地平线”广场,承载着整个会展中心人流和市民休闲活动,让海极致舒展开来,直至无限。
Facing the sea and backed by the convention center, in the presence of two colossal scales, any form of formalized expression is not the most appropriate choice. We treated the base’s zero elevation as a “horizon” square, which serves as a platform for the flow of people in the convention center and for citizens’ leisure activities, allowing the sea to stretch out to infinity in its utmost splendor.
▼一道“地平线”,A Horizon

由上海大椽建筑设计事务所设计的烟台八角湾游客服务中心于2025年8月落成,同月20日正式对外开放。作为会展公园内的多功能文化建筑,项目为开发区提供关键的离岸配套服务:咖啡、活体昆虫博物馆、临展、市集、公共卫生间等。构筑城市与海洋的公共接口,并服务于所有市民。
▼建设现场,Construction site

Designed by Shanghai Dayuan Architectural Design Office, the Yantai Baguowan Tourist Service Center was completed in August 2025 and officially opened to the public on the 20th of the same month. As a multi-functional cultural building within the convention park, the project provides key off-shore supporting services for the development zone: coffee, live insect museum.
▼巨构下的服务中心,The service center under the huge structure

▼拾阶而上,Ascending the steps

▼正在运营的咖啡厅,MORE COFFEE

▼-1F 平台,-1F platform

折叠自然 The folded nature
交错的平台,是对场地的抽象化回应Interlaced platforms are an abstract response to the site.
游客服务中心位于会展公园的主要入口处,以其为中心,联同社区活动、皮划艇俱乐部、码头服务、共同构成会展公园的整体化设计。基地内的场地高差造成城海之间的空间断层,为延续会展公园原有的线性肌理,游客服务中心被处理成一个嵌入地表的单层体量,横向延展。升起的飘板提升昭示性,下沉区域设计多种灰空间,结合错动折叠的平台语言,形成城市向大海自然延伸的城市阳台。
▼会展公园整体性设计,Overall design of the exhibition park

The Tourist Service Center is located at the main entrance of the Exhibition Park. Centered around it, along with community activities, a kayaking club, and marina services, they collectively form the integrated design of the Exhibition Park. The height difference within the base creates a spatial discontinuity between the city and the sea. To maintain the original linear texture of the exhibition park, the tourist service center is designed as a single-story volume embedded in the ground and extending horizontally. The raised canopy enhances its visibility, while the sunken area features various gray spaces. Combined with the language of staggered and folded platforms, it forms a natural extension of the city towards the sea, creating a city balcony.
▼清晨的服务中心,Morning Service Center

从标识性的空间,到山、海、城市、空间的语言探讨,再到平实的几何建造,面对烟台与这片海,游客服务中心在用丰富的空间语言与极低调的空间状态,回应着本地市民的日常需求。
▼会展公园现状(左)/场地高差形成的断层(右),Current site conditions

From the iconic space to the exploration of the language of mountains, seas, cities and spaces, and then to the simple geometric construction, in the face of Yantai and this sea, the tourist service center responds to the daily needs of local citizens with rich spatial language and extremely low-key spatial state.
▼市民活动日常,Daily activities of Citizens

服务中心的大部分功能“藏”在地下,屋顶与地面相连并覆上绿植,倾斜屋面、下沉庭院与多层标高构架出一套连贯的“折叠”空间系统,也带来极强适应性。抬升的平台成为落日观赏点与集会场所,其下方则形成遮阳休憩长廊。
▼过程草图及空间模型,Process sketches and spatial models

Most of the functions of the service center are “hidden” underground. The roof is connected to the ground and covered with green plants. The sloping roof, sunken courtyard and multi-level elevation form a coherent “folded” space system, which also brings strong adaptability. The raised platform becomes a sunset viewing point and gathering place, while the area beneath it forms a shaded rest corridor.
▼“折叠”空间系统,”Folded” spatial system

▼望向大海的通廊,A corridor facing the sea

▼外挑看海平台,Overhanging sea-viewing platform

▼平台下的休憩空间,Rest area beneath the platform

▼入口标识,Entrance signage

▼展览/市集广场,Exhibition/fair square

咨询中心位于平台的核心区,提供售票、咨询一站式服务,结合外广场是空间的焦点与人群集散地。平台外可融合市集、表演、休闲、观景等多种日常活动。
▼三重空间界面,Triple spatial interfaces

The consultation center is located in the core area of the platform, providing one-stop services including ticket sales and consultation. Combined with the outer square, it serves as the spatial focus and a gathering place for people. Outside the platform, various daily activities such as markets, performances, leisure, and sightseeing can be integrated.
▼滨海走廊,Coastal corridor

▼陆海之间的温柔过渡,Gentle transition between the sea

▼零标高处,At zero elevation

空间强调的几何纯粹性更是赋予建筑足够的力度,让它具有明晰可辨的视觉特征,彰显其作为城市“主要元素”应有的公共性。
The geometric purity emphasized by the space endows the building with sufficient strength, giving it a distinct visual feature and highlighting its public nature as a “major element” of the city.
▼公共界面,Public interface

▼向大海的延展,Extension towards the sea

环境韧性Environmental resilience
连续性的尺度层次,界限模糊、允许市民自由穿行Continuous scale levels with blurred boundaries, allowing citizens to move freely through them
游客服务中心主张建立一种无层级差异的功能对应分区,各片区可以在未来根据需要自由调整。沿长轴展开的线性体量,最宽处约62米,最窄不足24米。设计中预留的大片开放式广场、草坪,是专门为人流高峰准备的“弹性空间”,满足其“活动模式”与“日常模式”的平滑切换。
▼活动模式弹性空间分析,
Analysis of flexible spaces for activity patterns

The Tourist Service Center advocates for a functional zoning system without hierarchical differences, allowing each area to be freely adjusted in the future as needed. The linear volume along the long axis is approximately 62 meters at its widest point and less than 24 meters at its narrowest. The large open squares and lawns reserved in the design are “flexible spaces” specifically prepared for peak crowds, facilitating a smooth transition between “activity mode” and “daily mode”.
▼11 月 2 日任贤齐演唱会时期,服务中心的承压 ,Pressure on the service center

为优化平台开口形式对行为的影响,设计对比了全覆土、大峡谷及局部下沉庭院等策略。局部下沉庭院在扩大竖向交通核心的同时,保证功能空间享有中庭与海景的双重景观。游客中心则强化竖向连接与视野通达。
▼平台不同开口方案比对,
Comparison of different opening schemes for the platform

To optimize the impact of the platform opening form on behavior, strategies such as full coverage, grand canyon, and partial sunken courtyard were designed and compared. The partial sunken courtyard expands the vertical traffic core while ensuring that functional spaces enjoy dual views of the atrium and the sea. The visitor center emphasizes vertical connection and visual accessibility.
▼入口处与会展中心的联系,The entrance and the exhibition center

▼快速引导和分散人流的路径系统,Path system

▼提供采光的三角形洞口,Triangular skylights for natural lighting

▼自由通达的交通,Free and accessible traffic

海岸诗意The Poetic Coast
镀锌板与混凝土并置的自然逻辑The Natural Logic of Zinc-coated Steel and Concrete Placed Side by Side
建筑统一采用清水混凝土结构,但通过不同材质的细腻搭配来区分空间界面:镀锌板天花板、清水混凝土墙面与石材地面。这些材质彼此协调,共同营造出连贯质朴的空间氛围。
The buildings are uniformly constructed with exposed concrete, but the spatial interfaces are distinguished through the delicate combination of different materials: galvanized steel ceilings, exposed concrete walls and stone floors.
▼波光粼粼的镀锌板,Glistening galvanized steel plates

在直面海洋的环境中,材料必须耐用,其质感也应与环境呼应。因此我们选择了镀锌板:它的金属光泽与冷灰色调,能与粗粝的混凝土形成鲜明又协调的对比。混凝土沉稳地锚固大地,镀锌板则轻巧地反射着天光与海影。这种材质的对比,既清晰地展现了构造逻辑,又暗喻了海岸地貌中礁石与水流并置的自然逻辑。
These materials are in harmony with each other, jointly creating a coherent and simple spatial atmosphere. In an environment facing the ocean, the materials must be durable and their textures should echo the surroundings. Therefore, we chose galvanized steel: its metallic luster and cold gray tone form a sharp yet harmonious contrast with the rough concrete. The concrete firmly anchors the earth, while the galvanized steel lightly reflects the sky and sea. This material contrast not only clearly presents the construction logic but also alludes to the natural logic of the juxtaposition of rocks and water in the coastal landscape.
▼台阶次入口,Secondary entrance via steps

镀锌板表面特意选用大花纹肌理,使其在不同时段的光线下呈现出波光粼粼的视觉效果,犹如将海面的波纹延伸至室内顶棚。随着一日之中光线的流转,天花板仿佛成为海洋的延续,令极简的几何现代性空间突然拥有了温度与叙事感。
The surface of the galvanized sheet is deliberately chosen with a large pattern texture, which makes it present a glittering visual effect under the light at different times, as if extending the ripples of the sea to the indoor ceiling. As the light changes throughout the day, the ceiling seems to be a continuation of the ocean, suddenly giving the minimalist geometric modern space warmth and a sense of narrative.
▼ 天花板成了海洋的延续,Ceiling as an extension of the ocean

空间重构Spatial Reconstruction
自然、文化与日常Nature, Culture and Daily Life
项目于2023年6月启动,室内设计围绕三个核心展开:海边的自然性、城市的文化性与生活的日常性。为精准服务日常市民、会展游客与水上运动爱好者这三类客群,我们梳理出如厕、就餐、休憩、办公、展示六大核心功能,并重点强化“驿站”的公共服务与“展陈”板块。
▼功能调整,Functional adjustments

The project was launched in June 2023. The interior design is centered around three core elements: the naturalness of the seaside, the cultural nature of the city, and the daily life. To precisely serve the three types of customers, namely daily citizens, exhibition and conference visitors, and water sports enthusiasts, we have identified six core functions: restrooms, dining, relaxation, office work, and exhibition. We have particularly emphasized the public service aspect of the “service station” and the “exhibition” section.
▼室内望海,Indoor sea view

通过更衣区与办公区的位置置换,优化内部流线。释放出的原办公区域被转为商业用途,有效提升了空间活力。同时,将行政管理功能整合进服务大厅,进一步集约了空间。
▼空间优化,Spatial optimization

By swapping the locations of the changing area and the office area, the internal circulation has been optimized. The original office space thus released has been converted for commercial use, effectively enhancing the vitality of the space. Meanwhile, the administrative management functions have been integrated into the service hall, further consolidating the space.
▼虫鸣探秘活体自然博物馆,Insect Chorus: Living Nature Museum

游客服务大厅以清水混凝土与水磨石为主材,中央区域通过艺术装置与色彩点缀打破单调,服务台结合电子屏与展陈功能,形成动态文化窗口。艺术餐厅以渐变色彩与曲面吊顶模拟海浪形态,鱼群灯具,小舞台与灯光共塑沉浸式用餐体验。
▼咨询中心/艺术餐厅室内效果图,Interior renderings

The tourist service hall mainly uses fair-faced concrete and terrazzo as materials. The central area breaks the monotony through artistic installations and color accents. The service counter integrates electronic screens and exhibition functions, forming a dynamic cultural window. The art restaurant simulates the shape of ocean waves with gradient colors and curved ceilings. Fish-shaped lamps, a small stage and lighting together create an immersive dining experience.
▼咖啡厅,MORE COFFEE

后记 Postscript
滨海沿线日常活跃着骑行、运动、休闲的市民,却长期缺乏与之匹配的休憩与服务节点。“一道地平线”通过环境、空间的多重维度,创造人与大海接触的机会,塑造共享、开放、活跃的城市阳台,也是公共建筑对市民社会最深刻的回应。
The coastal area is daily frequented by citizens engaged in cycling, sports and leisure activities, but has long lacked rest and service nodes that match these activities. “A Horizon” creates opportunities for people to interact with the sea through multiple dimensions of the environment and space, shaping a shared, open and vibrant urban balcony. It is also the most profound response of public architecture to the civic society.
▼傍晚海边活动的市民,
Citizens engaging in evening activities by the seaside

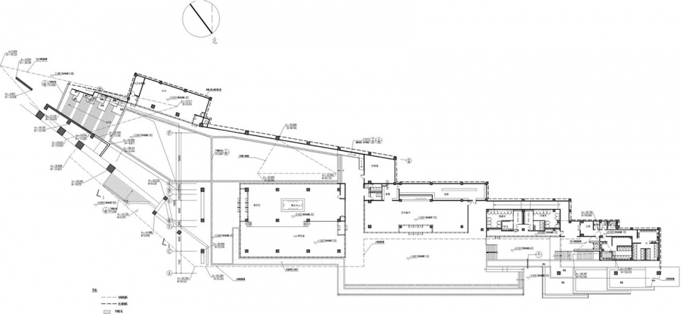
▼总图,Master plan

▼组合平面,Combined floor plan

▼组合立面图,Combined elevation

▼节点细部,Detailed nodes

Project Name: Yantai Baguowan Tourist Service Center
Project Type: New Construction
Project Location: Economic Development Zone, Yantai, Shandong Province
(intersection of Haibin Road and Guiyang Street, Yantai Huangbohai New District)
Design Firm: Shanghai Dachuan Architectural Design Office
Chief Architect: Dongtao Hong
Complete Design Team: Dongtao Hong, Tan Tang, Jiawei Wu, Tao Ying, Hua Hong, Huajie Yu, Taihao Wang
Client: Yantai Huangbohai New District Construction and Transportation Bureau
Cost: 41 million yuan (total); 8,300 yuan/㎡ (cost per square meter)
Design Period: June 2021 – May 2025
Completion Date: September 2025
Building Area: 4,911.23 ㎡ (gross floor area: 2,224.50 ㎡)
Site Area: 17,500 ㎡
Planning + Landscape: AECOM














