白洋·咖啡,扬州 / 南京苏格空间建筑设计有限公司
我们在扬州老城区,
梧桐树下,
修缮了一间老房子。
平日里,人来人往!
靠着窗边,一杯咖啡
就这样,可以坐一个下午。
We renovated an old house under the paulownia trees in the old town of Yangzhou. On ordinary days,
people come and go!
By the window,
with just a cup of coffee,
you can sit there for the whole afternoon.
▼沿街视角,street view

五千年沉淀下来的古城底色中,我们尝试重新定义老城街区的商业新生。
时光浸染的老街,我们不做过多打扰。
不打扰,只融入——让建筑以温润的姿态,在老街巷弄里自然生长。
Amid the ancient city’s five-thousand-year-old heritage, we attempt to redefine the commercial rebirth of the old town’s neighborhoods.The old street, steeped in time, we won’t disturb too much. No disturbance, only integration – let the building grow naturally in the old streets and alleys with a gentle and refined posture.
▼侧街视角,side street view

壹 · 老建筑的新生:保留与重构的对话1. Rebirth of Old Buildings
两栋分离的建筑,以围合式改造实现联结。 保留原顶,拆改墙体,以石头重建, 既留存岁月的筋骨,也赋予空间新的呼吸。
A Dialogue between Preservation and Reconstruction Two separate buildings are connected through an enclosed renovation. The original roof is retained, the walls are demolished and modified, and the space is rebuilt with stones. This not only preserves the essence of time but also endows the space with new vitality.
▼街角透视,Street corner perspective

外立面选用夯土漆,粗粝质朴;
檐口点缀各地淘来的老瓦片,木石交错,灯光轻映;
门口延展出一段老杉木打造的户外区,
梧桐树下,这里成为行人愿意驻足的“街角驿站”。
The exterior facade is painted with rammed earth paint, which is rough and simple. The eaves are dotted with old tiles picked up from various places, with wood and stones interlaced and light gently shining on them. At the entrance, an outdoor area made of old fir wood extends out. Under the paulownia trees, this place has become a “corner stop” that pedestrians are willing to stop by.
▼立面细节,Facade details

▼改造前,Before the renovation

贰· 空间的叙事:一场渐进式的沉浸2. Narrative of Space
入口处,一截从旧物市场淘来的老木桩,
既是人流动线的界点,也是时间的信物。
圆形吊顶与侧墙圆窗呼应,光从顶部漫下,
拉深了纵深感,也点亮了仪式感。
At the entrance of a progressive immersion, an old wooden stake picked up from a second-hand market serves as both the boundary point of the flow of people and a token of time. The circular ceiling echoes with the round Windows on the side walls. Light pours down from the top, deepening the sense of depth and enhancing the sense of ceremony.
▼庭院内部,Inside the courtyard

▼庭院入口,Courtyard entrance

向左,整面落地窗将视线彻底打开, 让老街的风景与室内的温度自由交融。 中心区域,一个椭圆形水吧贯穿两栋建筑, 成为空间无形的纽带。
To the left, the entire floor-to-ceiling window opens up the view completely, allowing the scenery of the old street to blend freely with the temperature inside. In the central area, an oval-shaped water bar runs through the two buildings, serving as an invisible bond in the space.
▼庭院廊下空间,The space under the courtyard corridor

斜屋顶下,老木头、莱姆石与绿植点缀出无界的松弛。
Under the sloping roof, old wood, lime stone and green plants add a touch of boundless relaxation.
▼室内外空间渗透,Indoor and outdoor space penetration

叁 · 后场与二楼:私密与开放的平衡3. The Rear Area and the Second Floor
后场是烘焙与裱花的专注天地, 我们沿用建筑的斜顶结构,模拟自然天窗,引入光线,照亮水洗石台面与竹编飞檐。
A Balance of Privacy and Openness The rear area is a dedicated space for baking and decorating. We continue to use the building’s sloping roof structure, simulating natural skylights to introduce light and illuminate the washed stone countertops and bamboo eaves.
▼室内效果,Interior design

一根老木桩作为结构支点,撑起整个空间的叙事。 透过窗景,老城斑驳的墙面与室内形成对话, 历史与当代在空间中叠合。
An old wooden stake serves as a structural fulcrum, supporting the narrative of the entire space. Through the window view, the mottled walls of the old town and the interior form a dialogue, with history and the present overlapping in the space.
▼看向庭院,Look towards the courtyard

肆· 廊道与庭院:一处停顿的观景亭4.Corridor and Courtyard
连接前后场的廊道,刻意保留老墙与苔痕,
梁柱未加修饰,维持材料最初的质感。
红色不锈钢以古法锤纹包裹立柱,
将这里定义为“观景亭”—让人在此停顿,与自然对话。
A paused viewing pavilion connects the corridor between the front and back areas. The old walls and moss marks are deliberately retained, and the beams and columns remain unadorned to maintain the original texture of the materials. The columns are wrapped in red stainless steel with ancient hammer patterns, defining this place as a “viewing pavilion” – allowing people to pause here and have a dialogue with nature.
▼室内外空间的视觉流动,The visual flow between indoor and outdoor Spaces


庭院中,花石、青苔与莱姆石小径交错, 一树一石,一院静水,材质的肌理在脚下延伸。
In the courtyard, flower stones, moss and lime stone paths crisscross each other. With each tree and each stone, there is still water in the courtyard. The texture of the materials extends underfoot.
▼制作台,Coffee making counter

红色旋转楼梯串联起一楼、二楼与户外平台。
The red spiral staircase connects the first floor, the second floor and the outdoor platform.
▼从窗边看向老街,Look out of the window towards the old street

同样二楼未作过多修饰,射灯点亮顶部, 长虹玻璃轻掩老建筑遗留的残墙, 既保护了历史的痕迹,也不阻挡光线的漫入。
The second floor was also not overly decorated. Spotlights illuminated the top, and the long-arc glass gently covered the remaining walls of the old building, which not only protected the historical traces but also did not block the light from penetrating in.
▼从窗边看向老街,Look out of the window towards the old street


伍· 我们想表达的,不只是一种风格,更是一种态度5· What we want to express is not merely a style, but an attitude.
从四月到十一月,
我们往返于南京、苏州、扬州,
寻找每一块老木、每一片旧瓦、每一件有温度的旧物。
这是一次从建筑、室内到灯光、软装、景观的融合实践,
也是一次对“在地文化”的重新解读。
老街区不必是标本,也不必全然崭新。
它应既承载历史的厚重,也接纳当代的轻盈;
既留存扬州的慢调性情,也安放年轻人的精神向往。
▼二楼角落空间,Corner space on the second floor


From April to November, we traveled back and forth between Nanjing, Suzhou and Yangzhou, seeking every piece of old wood, every old tile and every warm old object. This is a practice of integration from architecture, interior design to lighting, soft furnishings and landscape, and also a reinterpretation of “local culture”. Old neighborhoods don’t have to be specimens, nor do they have to be completely brand new. It should not only carry the weight of history but also embrace the lightness of the present. It not only retains the slow-paced temperament of Yangzhou but also accommodates the spiritual aspirations of the young.
▼一层平面图,1st floor plan

▼二层平面图,2st floor plan

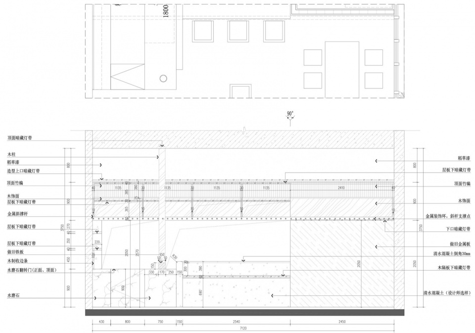
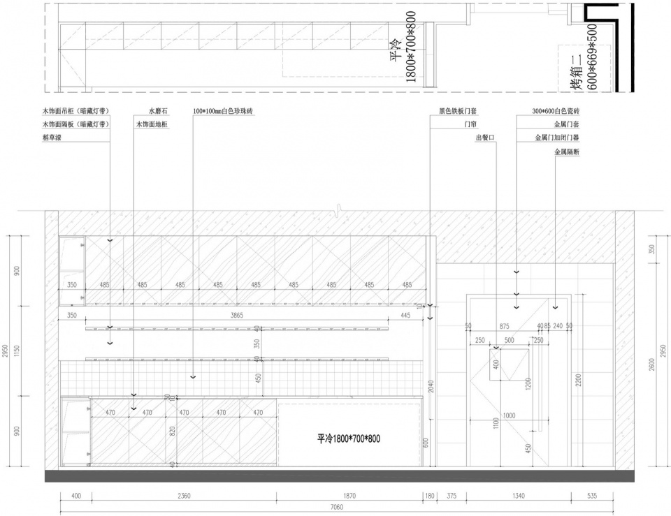
▼立面图,Elevation drawing



▼原始结构图,Original structure diagram

Project Name: Baiyang · Coffee
Project Type: Restaurant
Design Party: Nanjing Suge Space Architectural Design Co., LTD
Website:https://mp.weixin.qq.com/s/HnAUUcZ5o-lu3WO9qCwwfQ
Contact e-mail:18795907985@163.com
Design year:2025.04
Completion Year:2025.10
Leader designer & Team:Wang Haiyang, Xu Yanhuan,Bai Lu,Xingyue
Project Address: Yangzhou, China
Gross built area: 19㎡
Photo credit: 黑曜石
Partner:光合未来 LIGHT FUTURE
Clients:Baiyang · Coffee
Materials:Lime stone straw paint old fir wood washed stone














