华南国家植物园云溪迁地保护示范区自然教育馆,广东 / 华南理工大学建筑设计研究院有限公司
缘起Origin
自然教育馆位于华南国家植物园迁地保护示范区,坐落于公园溪谷径游线尽端。它是沿着山溪汇聚水面而建的一组具有岭南园林特色的单层景观建筑,建成后将成为游客溯溪游玩后的休憩场所,也是集市民休闲观光与岭南历史植物科普学习的重要场所。
The Nature Education Center is located in the Ex-situ Conservation Demonstration Area of the South China National Botanical Garden, at the end of the park’s valley trail. It is a group of single-story landscape buildings with Lingnan garden characteristics built along the mountain stream. After completion, it will become a resting place for tourists after tracing the stream, and an important place for citizens to relax and sightsee and learn about Lingnan historical plants.
▼场地鸟瞰,Aerial view of the site


▼项目鸟瞰,Aerial view of the project

设计理念 Design concept
自然教育馆背靠白云山葱郁幽深的峡谷,用地中心为山涧汇聚而成的水面,建筑体量化整为零,采用轻盈低矮的姿态,环绕水面平缓地展开。各主体建筑间以连廊联系,结合敞廊、庭院、平台等开敞空间,整体布局自然流畅不拘一格,营造出“融于山水、内外渗透、步移景异、亭榭轩桥”的现代岭南园林建筑意境。
The Nature Education Center is backed by the lush and deep canyon of Baiyun Mountain. The center of the site is the water surface formed by the convergence of mountain streams. The building volume is divided into pieces, adopting a light and low posture, and unfolds gently around the water surface. The main buildings are connected by corridors, combined with open spaces such as open corridors, courtyards, and platforms. The overall layout is natural and smooth, creating a modern Lingnan garden architectural concept of “integration into mountains and rivers, internal and external penetration, different views with every step, pavilions, terraces, and bridges”.
▼鸟瞰总平,Aerial view of the plan

▼岭南园林建筑意境,Lingnan garden architectural concept

建筑造型延续岭南建筑通透、朴素、淡雅、明快的神韵,又通过现代的材料技术实现创新:金属屋面结合轻薄的檐口构造打造的轻盈体量;立面以通透的玻璃幕墙打破室内外空间界限,将园林空间与建筑空间融为一体。
The architectural style continues the transparent, simple, elegant and bright charm of Lingnan architecture, and achieves innovation through modern material technology: the metal roof is combined with a thin eaves structure to create a light volume; the facade uses a transparent glass curtain wall to break the boundary between indoor and outdoor space, integrating the garden space with the architectural space.
▼通透的玻璃立面,Transparent glass elevation


▼园林空间与建筑空间融为一体,ntegrating the garden space with the architectural space

墙体采用镂空砌筑灰色陶砖,在传承岭南青砖特质的基础上,打造了通透、精致的现代质感;连廊外侧的疏密有致金属立柱在光线投射下形成富有节奏感的光影,营造出游走于林中的空间氛围。
The walls are made of hollow gray ceramic bricks, which inherit the characteristics of Lingnan blue bricks and create a transparent, exquisite and modern texture; the sparse and dense metal columns on the outside of the corridor form rhythmic light and shadow under the projection of light, creating a spatial atmosphere of walking in the forest.
▼外侧廊道,Outside corridoe


▼富有节奏感的光影,Rhythmic light and shadow

功能布局 Functional layout
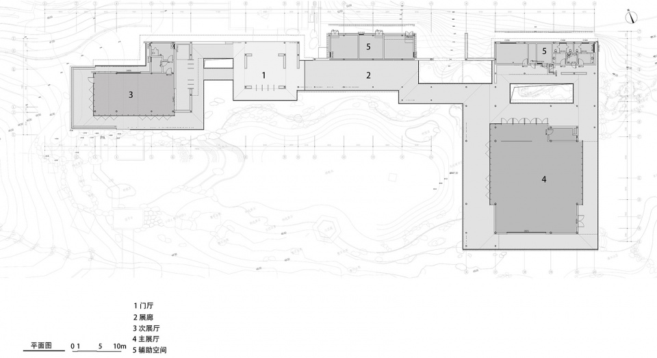
建筑以入口门厅为中心,主厅与次厅分布与东西两侧,整体环绕溪涧水面呈L布局。门厅往东可到达主厅,内部是开阔的无柱多功能空间,可适应将岭南植物历史的展示需求,也可作为外事活动接待场所使用。门厅往西可到达次厅,适用于展出小尺度的植物标本,厅内可远眺溪谷径或在平台回望主厅。三个主要空间通过折廊相连,游客在行进当中可观赏到两侧景展墙或者园林景观,感受到一步一景游园体验。
▼功能布局分析图,Functional layout diagram

The building is centered on the entrance hall, with the main hall and the secondary hall distributed on the east and west sides, forming an L-shaped layout around the stream surface. The main hall can be reached from the east of the hall. The interior is an open, column-free multifunctional space that can meet the needs of displaying the history of Lingnan plants and can also be used as a reception venue for foreign affairs activities. The secondary hall can be reached from the west of the hall, which is suitable for exhibiting small-scale plant specimens. From the hall, you can overlook the valley path or look back at the main hall from the platform. The three main spaces are connected by folding corridors. Visitors can enjoy the exhibition walls or garden landscapes on both sides while walking, and experience a one-step-one-view garden experience.
▼入口门厅,The entrance hall

▼门厅廊道,Corridor of the hall

▼景展墙,The exhibition walls


景观设计 Landscape Design
溪庭被设计为布局精巧、精致野趣、信步闲庭的园林庭院空间,结合借景对景的园林手法,形成“赏园、望溪、观山”三重游园感受,于山水之间展现岭南园林之美。其中入口门厅采用框景的构图手法,近处采用天然黑山石布置于水面,形成水中石景景观,中景以兰芷亭为构图核心,自然水面倒印山景,营造出人在画中游的趣味。主厅远观可俯瞰溪谷四季变幻的自然山林景色,地标性桥体虹桥与周边杉林叠泉的自然环境融合;近临镜面水庭,通过山林倒影提升庭园的纵深感。后庭以碧云叠泉为主题,以幽深山谷为背景,山涧曲折而下,松柏点缀其中,形成一幅自然的山水画卷。
▼景观分析图,Landscape diagram

The Creek Courtyard is designed as a garden courtyard space with exquisite layout, exquisite wildness, and leisurely strolling. Combined with the garden technique of borrowing scenery to create a triple garden experience of “viewing the garden, looking at the creek, and viewing the mountain”, showing the beauty of Lingnan gardens between mountains and waters. The entrance hall adopts the composition technique of framing the scenery. Natural black mountain stones are arranged on the water surface in the near distance to form a stone landscape in the water. The middle view is based on the Lanzhi Pavilion as the core of the composition. The natural water surface reflects the mountain scenery, creating the fun of people swimming in the painting. From a distance, the main hall overlooks the natural mountain scenery of the valley that changes with the seasons. The landmark bridge body Hongqiao is integrated with the natural environment of the surrounding fir forests and overlapping springs; the mirror-like water courtyard is close, and the depth of the garden is enhanced by the reflection of the mountains and forests. The back garden is themed with green clouds and overlapping springs, with deep valleys as the background, and the mountain streams are winding down, dotted with pines and cypresses, forming a natural landscape painting.
▼户外花园景观,Garden courtyard space


▼外廊道的景观空间,Landscape of outside corridor

▼框景的构图手法,Technique of framing the scenery

气候适应性 Climate adaptability
为适应岭南炎热多雨的气候,建筑通过挑檐与连廊实现遮阳与避雨,在廊道链接的位置设有多处小尺度的庭院,在丰富景观空间层次的同时,通过促进局部拔风调节建筑的微气候。
▼通风分析图,Ventilation analysis diagram

In order to adapt to the hot and rainy climate of Lingnan, the building uses overhanging eaves and corridors to achieve sunshade and rain shelter. There are many small-scale courtyards at the location where the corridors are connected. While enriching the landscape space level, it regulates the microclimate of the building by promoting local wind extraction.
▼通过挑檐与连廊实现遮阳与避雨,Use overhanging eaves and corridors to achieve sunshade and rain shelter

后记 Postscript
项目落成以来获得市民的广泛认可,成为市民在溪谷径游玩后的休憩点,吸引了大量游客停留休息。项目采用半开放的展陈模式,将展示内容与廊道结合,营造轻松的观展体验。项目获得广州市2024年度优秀工程勘察设计奖公共建筑工程一等奖,获得A&D Awards 最佳教育建筑铜奖。
Since its completion, the project has been widely recognized by citizens and has become a resting spot for citizens after playing in the valley trail, attracting a large number of tourists to stay and rest. The project adopts a semi-open exhibition mode, combining the display content with the corridor to create a relaxing exhibition experience.The project won the First Prize for Public Building Engineering in the 2024 Guangzhou Excellent Engineering Survey and Design Awards, and received the Bronze Award for Best Educational Building at the A&D Awards.
▼夜景,Nightviews

▼总平面图,Master plan

▼平面图,Plan

▼剖面图,Section

Project name:Yunxi Ex-situ Conservation Demonstration Area of South China National Botanical Garden – Nature Education Center
Project type:Exhibition Building
Design:ARCHITECTURAL DESIGN & RESEARCH INSTITUTE OF SCUT CO., LTD/Guangzhou Landscape Architectural Design & Research Institute
Website:https://www.scutad.com.cn/
Contact e-mail:429790541@qq.com
Design year:2020-12
Completion Year:2022-12
Leader designer & Team:Qiu Jianfa, He Xiaoxin, Zhang Han, Li Qing, Lin Zhaotao, Chen Guangcheng, Jiang Yi, Fan Liqiong, Liu Yingtang, Fan Jing, Jiang Lu, Zhang Yanbin, Tan Tingting, Lin Lin, Zhong Riming, Li Qing, Lin Lebin, Huang Pujie, He Yaobing, Zhang Bangtu, Fan Ximei, Huang Guangwei, Li Gengji, Cen Hongjin, Zhong Wenyong, Wang Jianwei, Tang Zhenyi, Xiao Xiao, Zheng Chunhong.
Project location: Ex-situ Conservation Demonstration Area of the South China National YunXi Botanical Garden
Gross built area: 2034㎡
Photo credit: Deng Yu Yi、IX-Miles Architecture Photography,Xu Mian,
Partner:Guangzhou Pubang Landscape Architecture Co., Ltd
Clients:Guangzhou Municipal Forestry and Landscaping Bureau、Guangzhou Yucheng Real Estate Development Co., Ltd
Materials:Grey aluminum panel, imitation wood aluminum panel, grey ceramic tile, ultra-clear glass














