VIDA联合学校,捷克 / OVA
位于 Chýně的新学校设计基于一种当代、现代的教育方式。学校的共享空间——包括室内和室外——在学习过程中与传统教室同样重要。非正式学习可以在走廊沿线的壁龛中进行,而小角落则为安静交谈提供机会。研习室提供多种座位布局,以支持不同的专注模式。屋顶被设计为既可用于游戏也可用于学习。因此,这所学校呈现出一个丰富的内部世界,使年幼学生和青少年学生都能找到属于自己的位置。
The design for the new school in Chýně is based on a contemporary, modern approach to education. The school’s shared spaces — both interior and exterior — play an equally important role in the learning process as traditional classrooms. Informal learning can take place in alcoves along corridors, while small nooks provide opportunities for quiet conversation. Study rooms offer various seating arrangements, supporting different modes of concentration. The roof is designed for both play and learning. Thus, the school offers a rich internal world in which both young pupils and teenage students can find their own place.
▼项目外观,exterior of the project

这座建筑不仅服务于基础教育,还容纳下午项目——学生的课外活动以及成人的教育和体育活动。这块狭长且倾斜的场地位于 Chýně的中心附近,Chýně是一座靠近布拉格、快速发展的自治市。周边区域预计将迎来显著的住宅开发。在一段时间内,新学校可能会孤立地矗立在社区边缘的田野上,但最终,它将成为城镇建筑结构中不可分割的一部分。设计目标之一是应对这两种状态——暂时的孤立以及未来的城市融合——并为场地提供一个清晰界定且易于理解的公共空间。
The building serves not only for primary education but also accommodates afternoon programs—extracurricular activities for pupils as well as educational and sports activities for adults. The elongated, sloping site lies near the center of Chýně, a rapidly growing municipality close to Prague. Significant residential development is expected in the surrounding area. For some time, the new school may stand alone on the field at the edge of the locality, but eventually it will become an integral part of the built structure of the town. One of the design objectives was to handle both conditions — the temporary isolation and the future urban integration — and to provide the site with a clearly defined and comprehensible public space.
▼远眺建筑,distance view of the building

▼学校入口,school entrance

▼红墙细节,brick wall details

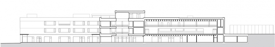
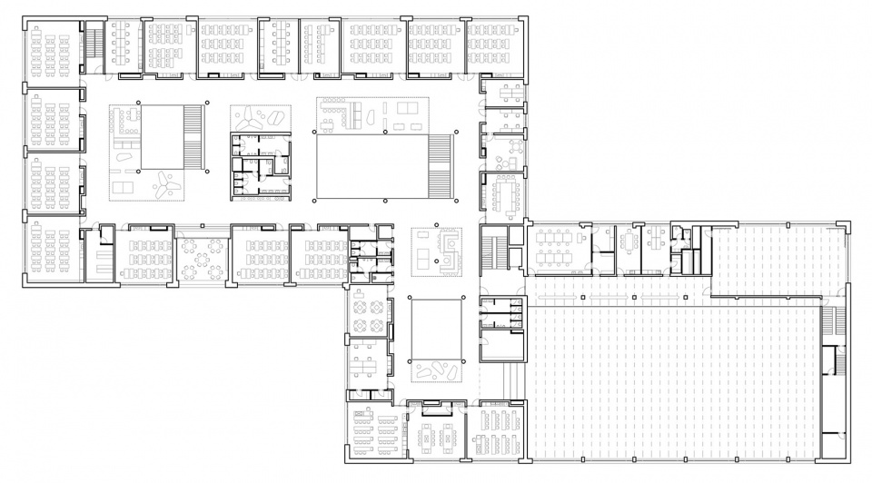
两个庭院——一个公共、一个私密——的概念定义了建筑的基本布局。北侧部分包含教室和主要公共空间,而南侧部分容纳体育设施、礼堂以及必要的辅助区域。学校共有三层,其高度构成呼应了地形的坡度。从地面层(从城镇中心抵达时)不仅可以直接进入场地,也可以从连接体育综合体的一层进入。三层设有一个户外教室,确保每一层都能直接通往室外。屋顶包括户外露台、教室以及用于园艺活动的种植床。
The concept of two courtyards — one public and one private — defines the building’s basic layout. The northern part contains classrooms and the main communal space, while the southern part accommodates sports facilities, an auditorium, and the necessary supporting areas. The school has three storeys, with its height composition responding to the slope of the terrain. Direct access to the site is possible not only from the ground floor — when arriving from the town center — but also from the first floor, which connects to the sports complex. On the third floor, an outdoor classroom is proposed, ensuring direct access to the exterior from each level. The roof includes an outdoor terrace, classrooms, and planting beds for gardening activities.
▼俯瞰总平,aerial view of the plan

▼户外庭院,outdoor courtyard

▼户外露台,outdoor terrace

建筑可以在两种主要模式下运行。在上午教学制度下,整个设施完全开放并投入使用。下午的精简运营模式则仅允许公众进入建筑的特定部分——俱乐部空间、图书馆、体育馆以及多功能厅,该多功能厅也可与食堂区域一起举办偶尔的文化活动。
The building can operate in two main modes. During the morning teaching regime, the entire facility is fully open and utilized. In the afternoon, a reduced operational mode allows public access only to selected parts of the building — spaces for clubs, the library, the gymnasium, and the multipurpose hall, which can also host occasional cultural events connected to the canteen area.
▼室内中庭,interior courtyard

▼交通走廊,transportation corridor


▼中庭楼梯,courtyard staircase


学校场地在倾斜的地形中被组织为两个主要的高度层级:第一层对应学校的主层及其两个庭院,第二层则形成高出一层的体育综合体。体育综合体包含多个场地:一条带有综合足球场的田径跑道,以及配套设施、田径隧道和位于东侧的补给区。观众区域既设置在跑道层的长凳上,也设置在配套建筑的屋顶上,屋顶形成一个看台。学校与跑道之间设有一个次级训练场,该场地在课间也可使用。
▼剖面图,Section

The school grounds are arranged on two primary height levels within the sloping terrain: the first corresponding to the school’s main floor with its two courtyards, and the second forming the sports complex one level higher. The sports complex includes several fields: an athletic track with an integrated football pitch, with support facilities, an athletic tunnel, and a refreshment area along its eastern side. Spectator areas are provided both on benches at track level and on the roof of the facilities building, which forms a grandstand. A secondary training field is located between the school and the track and is also accessible during school breaks.
▼室内体育馆,indoor gymnasium

▼屋顶体育空间,rooftop athletic space


▼更衣室,fitting room


入口庭院服务于学生、参加下午项目的访客以及公众。它包括供青少年使用的休憩平台和供年幼学生使用的运动铺装区域。第二个庭院设置了户外餐桌,用于扩展食堂容量,同时也为课间游戏或下午活动之间的休息提供空间。本区域融合了游戏设施、适合跳跃和奔跑的软性地面、绳索金字塔以及其他设备。进入内庭院可以通过学校大厅、食堂和实训厨房。
The entrance courtyard serves pupils, visitors to afternoon programs, and the general public. It includes lounging platforms for teenagers and sports surfaces for younger pupils. The second courtyard features outdoor dining tables extending the canteen’s capacity. It also provides space for play during recesses and leisure between afternoon activities. Play structures, soft surfaces for jumping and running, a rope pyramid, and other equipment are integrated into this area. Access to the inner courtyard is possible from the school hall, the canteen, and the practice kitchen.
▼入口庭院,the entrance courtyard

▼教室,classroom

▼室内材质细节,interior material details

学校的设计目标是达到能源性能A级。供暖由热泵提供,所有空间均配备可控的机械通风系统,同时每个使用空间也可通过可开启窗户实现自然通风。整体能源平衡通过设置在主教学楼与体育楼屋顶的光伏板、外部遮阳以及高品质的隔热材料得到提升。建筑结构由钢筋混凝土与砌体填充构成,有助于提升建筑的热容量和稳定性。外立面覆以陶瓷构件。沿立面的屋檐和种植的“树巢”有助于防止热岛效应的形成。
The school is designed to meet the energy performance class A. Heating is provided by heat pumps, and all spaces are equipped with controlled mechanical ventilation, while each occupied space can also be naturally ventilated through operable windows. The overall energy balance is enhanced by photovoltaic panels on the roofs of both the main school and the sports building, as well as by external shading, and high-quality thermal insulation. The building’s structure is reinforced concrete with masonry infill, contributing to the thermal mass and stability of the building. The exterior façade is clad in ceramic elements. Roof canopies along the façade and planted “tree nests” help to prevent the formation of heat islands.
▼首层平面图,Ground floor Plan

▼一层平面图,First floor Plan

▼二层平面图,Second floor Plan

▼三层平面图,Third floor Plan

Studio: OVA
Author: Jiří Opočenský, Štěpán Valouch, Ondřej Králík
Contact: klara.bartova@ova.cz
Website: www.ova.cz
Social media: www.linkedin.com/company/ov-architekti
www.instagram.com/ova_architekti
www.facebook.com/pages/category/Organization/ov-architekti-256852777659153
Studio address: Lotyšská 646/10, 160 00 Prague, Czech Republic
Design team: Norbert Lichý, Michaela Křižáková, Barbora Juríčková, Romana Bedrunková, Jakub Masný, Jan Hájek
Project location: Pražská 1111, 253 03 Chýně
Project country: Czech Republic
Project year: 2021–2023
Completion year: 2025
Built-up area: 5175 m²
Gross floor area: 13170 m²
Plot size: 61670 m²
Client: Association of Chýně and Hostivice Municipalities
Photographer Alex Shoots Buildings, www.alexshootsbuildings.com, alex@alexshootsbuildings.com
Collaborators and suppliers Civil engineer: OMEGA project [Jan Škopek, Vítězslav Lacina], www.omegaproject.cz
Landscape architecture: TERRA FLORIDA [Lucie Vogelová], www.terraflorida.cz
General contractor: PKS stavby + Metrostav, www.pksstavby.cz, www.metrostav.cz
Interior furniture supplier: Santal, www.santal.cz














