运动康复科诊疗中心,西班牙 / NAN Arquitectos
项目通过一系列精确的室内体量展开,营造出沉静且收敛的空间序列。设计以形式的纯粹、比例的拿捏以及“光”作为一种建构性材料为核心,通过剔除一切多余元素,塑造出一种平和而有序的氛围。
The project is articulated through precise interior volumes that generate a serene and contained spatial sequence. The intervention focuses on formal purity, proportion, and light as a constructive material, eliminating the superfluous to achieve an atmosphere of calm and order.
▼入口接待处,reception at the entrance


▼入口接待处,reception at the entrance


▼候诊处,Waiting area

▼诊疗室,Consultation room


材质与光
Materiality and Light
灰色表面与自然木饰面板的组合定义了沉稳而均衡的审美。深色天花强化了空间的纵深感,同时作为背景,使线性嵌入式光带更加突出。线性的精准光源组织了行进路径,并强化了体量的几何特征;与之形成对比的圆形光点,则提供了更亲近、更具人性尺度的光线。模块底部的漫射光营造出轻盈感,使构件仿佛轻浮于地面之上。
The combination of gray surfaces and natural wood panels defines a sober and balanced aesthetic. The dark ceiling emphasizes the depth of the space and acts as a backdrop that enhances the integrated lines of light. The lighting—linear and precise—organizes the path and accentuates the geometry of the volumes. In contrast, circular light points provide a closer and more human scale. The diffuse light at the base of the modules generates a sense of lightness, making the elements appear to float above the floor.
▼灰色表面与自然木饰面板的组合,
The combination of gray surfaces and natural wood panels


▼强化空间的几何特征,accentuates the geometry of the volumes


▼圆形光点创造更令人亲近的光线,
accentuates the geometry of the volumes


▼沉稳而均衡的审美氛围,a sober and balanced aesthetic


▼深色天花强化了空间的纵深感,
The dark ceiling emphasizes the depth of the space


▼线性嵌入式光带,the integrated lines of light


空间与感知
Space and Sensation
最终呈现的是一种“无声的建筑”——比例被严谨控制,氛围柔和包覆。材料的连续性与精心布置的光线共同构建出一个具有永恒感的空间,使使用者的体验由光、质感与形式之间的和谐所定义。
The result is a silent architecture, with controlled proportions and an enveloping atmosphere. The material continuity and careful lighting build a timeless space, where the user’s experience is defined by the harmony between light, texture, and form.
▼具有永恒感的空间,build a timeless space


▼“无声的建筑”氛围,a silent architecture atmosphere


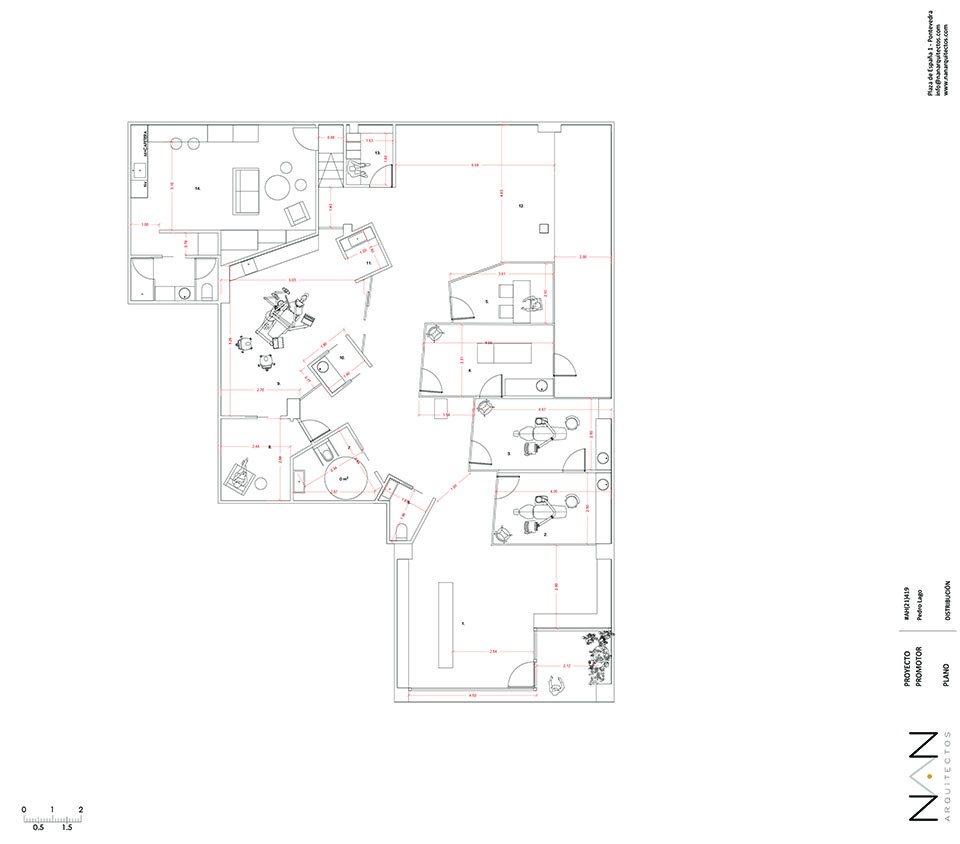
▼平面图,plan

Project: Sports podiatry center
Location: Vilagarcía – Pontevedra (Spain)
Year: 2025
Design: NAN Arquitectos (http://www.nanarquitectos.com)
Team: Alberto F. Reiriz, Vicente Pillado.
Surface: 260 m2
Photography: Iván Casal Nieto ( http://www.ivancasalnieto.com )














