J. Fitness模块化预制智能健身房,河北 / 十域建筑
这个健身房是一座模块化集成建筑(MiC),也是量产前的一个实验版本。整个建筑被拆分成结构完全独立的模块,在附近的工厂中预制完成,由卡车运输到场地后组装,现场施工时间仅有一周。适合放置于城市的各种公园、绿地或边角空闲地块。健身房本身无人值守,健身器械也实现了联网智能化服务,健身者可以在任一网点的任一机器上读取自己的运动记录,实现极致的高效、环保、智能。
This gym is a modular integrated construction (MiC) and serves as an experimental version before mass production. The entire building was divided into structurally independent modules, prefabricated in a nearby factory, transported to the site by truck, and assembled on-site in just one week. It is suitable for placement in various urban spaces such as parks, green areas, or vacant lots. The gym itself operates unattended, and the fitness equipment is equipped with networked smart services, achieving high efficiency, sustainability, and intelligence. Exercisers can access their workout records on any machine at any branch.
▼公园与建筑鸟瞰,Aerial-view of the site

模块化预制的生产和运输方式,为建筑的形态、材质和设计都带来了极为严苛的限制。尽管如此,我们还是希望项目可以为健身者和不健身的市民都带来更好的体验,成为社区中一个充满活力的驿站。
The production and transportation methods of modular prefabrication impose extremely stringent constraints on the building’s form, materials, and design. Nevertheless, we hope that this project can provide a better experience for both fitness enthusiasts and non-exercising local residents, becoming a vibrant mini hub within the community.
▼立面概览,Facade detail


▼在公园中看向健身房,View of the gym from the park

整个建筑在视觉上形成了三个部分:一层的主体部分白天反射周围环境,夜晚则以高度的透明性将内部三角形的楼梯体量展露无遗,一层的黄色小体块和银色穿孔板包裹的二层则具有纯净的实体感。简约、纯粹的体量对比令整个二层仿佛悬浮在两个黄色的体块之上。
Visually, the building consists of three distinct parts: During the day, the full-height glass envelope of the first floor reflects its surroundings, while at night, its transparency fully reveals the triangular staircase volume within. The small yellow mass on the first floor and the second floor, wrapped in perforated panels, create a pure and solid presence. The minimalist and stark contrast of volumes gives the impression that the entire second floor is suspended above the two yellow blocks.
▼建筑概览,Aerial-view of the building

▼主入口,Main entrance

外部的黄色体块既是健身房的入口和配套设施,同时也是服务附近社区居民的一个公共驿站,向包括非健身人士在内的所有公众开放,内部包含洗手间、桌椅、售货机、微波炉、充电站、图书角、医疗箱等服务设施。
The external yellow structure is open to the public and includes facilities such as restroom, tables and chairs, vending machines, microwave, charger, book shelves, and first aid kit. It serves not only as the entrance and supporting facilities for the gym but also as a service center for the surrounding community.
▼体块穿插,Interlocking volumes

一层主体空间以有氧运动和器械运动为主,被通透的玻璃围合,健身器材基本环绕落地窗布置,健身者可以沉浸式地感受外部的城市或绿地环境,外部的路人也可以对内部的功能一目了然,感受到运动者为街区带来的活力。三角形的楼梯体量,则同时集成了更衣室、储物柜和设备间。
The main space on the ground floor is primarily dedicated to cardio and strength training. Enclosed by transparent glass, the fitness equipment is arranged mostly around the floor-to-ceiling windows, allowing exercisers to immerse themselves in the surrounding urban or green environment. Meanwhile, passersby outside can clearly see the activities inside, experiencing the vitality that fitness enthusiasts bring to the neighborhood. The triangular staircase volume ingeniously integrates the changing room, storage lockers, and the equipment room.
▼室内健身区域,Interior fitness area

二层空间被穿孔铝板围合,经过滤后的光线另室内氛围更加柔和,挑出的铝板也为一层提供了遮阳。此外,穿孔铝板使得内部空间对外不再一览无余,作为操课、私教功能为主的空间,也有助于帮助初学者和i人健身者减轻被围观的心理压力。
The second floor is wrapped in perforated aluminum panels, which filter incoming light to create a softer indoor atmosphere, while the overhanging panels also provide shade for the ground floor. Additionally, the perforated panels ensure the interior is no longer fully exposed to the outside. As a space primarily designed for group classes and personal training, the mesh helps alleviate the psychological pressure of being observed for beginners and introverted exercisers.
▼楼梯体量,Stairs

建筑屋顶带有太阳能发电设施,同时也接入市政电源作为辅助。建筑的给排水则完全不需要接入市政管网。作为第一个原型成品,产品还将进一步优化迭代,以利于批量化生产,并实现更加快捷的现场组装和离网运行。
The roof is equipped with solar panels, while also being connected to the power grid as a backup. The water supply and drainage system is not connected to municipal pipelines. As the first prototype, the product will undergo further optimization and improvements to facilitate mass production, achieve faster on-site assembly, and enable off-grid operation.
▼夜景,Nightview


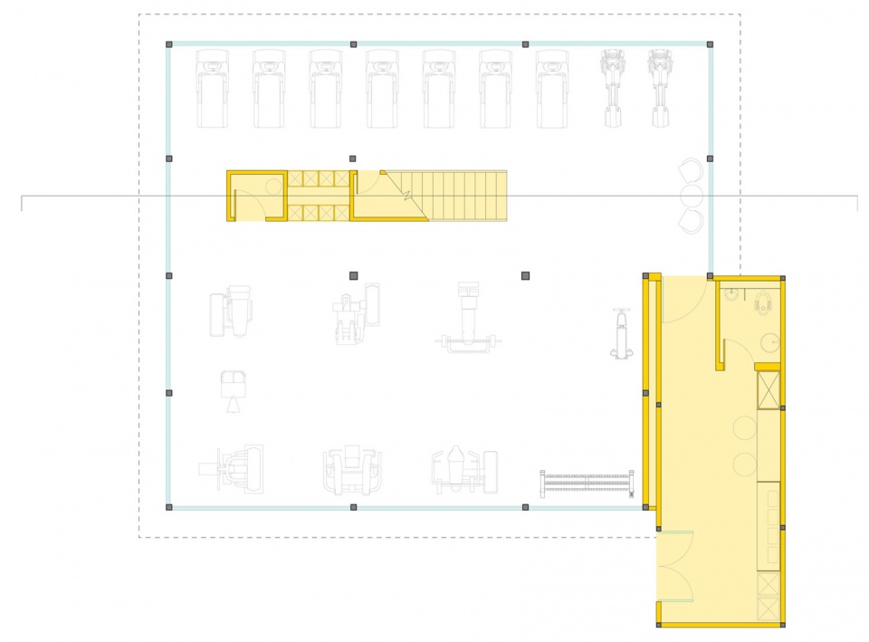
▼首层平面图,First floor plan

▼二层平面图,Second floor plan

▼立面图,Elevation

NAME: J. Fitness MiC Smart Gym
LOCATION: Hebei, China
TYPE: Commercial, Sports
STATUS: Completed
TOTAL BUILT AREA: 357㎡
TIME OF DESIGN: 2024
TIME OF CONSTRUCTION: 2025
ARCHITECTURE DESIGN: Domain Architects
PROJECT LEADER: XU Zhan
INTERIOR: SUN Yiming
PHOTOGRAPHER: ZHANG Chao














