Lighthouse高层公寓,荷兰 / De Zwarte Hond
Strijp-S 片区开发The Strijp-S area development
Strijp-S片区的城市开发总体规划由West8 设计。这里是一处相对较新的城市街区,直到20世纪中叶仍是Philips工厂所在地。Lighthouse是该总体规划中的最后一个重要节点,位于Philitelaan起点,介于Klokgebouw与Machinekamer(发动机房)之间,并正对 Gloeilampplantsoen(灯泡公园)。De Zwarte Hond的设计以一座竖向展开的砖砌雕塑为核心,通过不同高度的体量变化回应周边一系列标志性建筑。建筑顶部的“灯塔”意象以及夜间立面的灯光设计,向这一场所的工业历史致敬。
West8 designed the urban development plan for Strijp-S, a relatively new neighbourhood that housed Philips factories until the mid-20th century. Lighthouse is the final element of this plan, located at the start of Philitelaan between the Klokgebouw and the Machinekamer (Engine Room), and opposite the Gloeilampplantsoen (Light Bulb Park). De Zwarte Hond’s design features a vertical brick sculpture with varying height levels that relate to the iconic buildings in the immediate vicinity. The lantern at the top and the evening lighting on the façades are an ode to the history of this place.
▼项目鸟瞰,Aerial-view of the project

质朴而精致的立面,细节延伸至顶部A rugged façade with details right up to the top
Lighthouse的建筑语言充分体现了精湛的工艺精神。从基座到屋冠,材料运用与构造细节均被精心推敲,延续了Dirk Roosenburg——多座早期飞利浦建筑设计师——所代表的建筑传统。建筑主要采用四种材料:砖、混凝土、铝材与玻璃。在体量逐渐收分的位置,水平线条被清晰地强调,同时为公共屋顶花园创造出空间。建筑的对角线轮廓通过富有表现力的锯齿形立面得以强化,并与毗邻Machinekamer广场的纪念性柱廊形成呼应。住宅入口大厅及配套设施的醒目主入口也设置于此。
The architecture of Lighthouse exemplifies craftsmanship. From the plinth to the crown, attention has been paid to the materialization and detailing, in the tradition of Dirk Roosenburg, the architect of many of the early Philips buildings. Lighthouse is constructed from four materials: brick, concrete, aluminium, and glass. Where the building tapers, horizontal lines and space for communal roof gardens emerge. The diagonal line of the building is emphasized by an impressive serration, which connects to the monumental colonnade on the square adjacent to the Machinekamer. This is also where the striking entrance to the residential building’s lobby and amenities is located.
▼塔楼远景,Distant view

每一套公寓都在建筑体量之中整合了专属的室外空间。南侧设置为尺度宽敞的室内阳台,而北侧塔楼中的凹廊式阳台则有效缓解了邻近铁路带来的噪声影响。
Each apartment has a private outdoor space integrated into the building’s volume. On the south side, these are spacious indoor balconies, while on the north side, loggias in the tower mitigate noise pollution from the adjacent railway line.
▼塔楼与城市的关系,Tower in dialogue with the industrial heritage


宜居的高层建筑A liveable high-rise
建筑地下层用于自行车停放、储藏空间及各类技术设备的布置,使首层基座得以保持通透与开放。公共配套功能在此分布于两层空间之中,为 Machinekamerplein 广场注入更多活力。Lighthouse 步行即可抵达Eindhoven Strijp-S station,机动车则集中停放于周边的共享停车枢纽。分布在不同高度的共享屋顶花园为居民提供交流与停留的场所,而每一户住宅均配备法式阳台或冬季花园,进一步提升居住品质。
The building’s basement provides bicycle parking and storage space, as well as housing the technical installations, which allows the plinth to remain transparent and open. Public amenities are spread over two floors here, adding to the vibrancy of the square (the Machinekamerplein). Lighthouse is within walking distance of Eindhoven Strijp-S station, and cars will be parked in the nearby shared parking hub. Shared roof gardens at various heights provide meeting places, while each individual apartment has a French balcony or a winter garden.
▼首层通透界面,Transparent ground floor

可行性与建筑品质Feasibility and architectural quality
Lighthouse项目的推进经历了漫长而复杂的过程,期间完成了多轮可行性研究。2019 年,De Zwarte Hond与SDK组建了一支高度整合的项目团队,各合作方均以同等身份参与其中。De Zwarte Hond负责整体设计统筹,在设计过程中,空间方案、城市规划要求与财务可行性被同步推进、协同发展。
The development of Lighthouse has a long history, encompassing several feasibility studies. In 2019, De Zwarte Hond and SDK established an integrated project team together with equal representation from all partners. De Zwarte Hond oversaw the design process, during which the spatial design, urban planning requirements, and financial feasibility were developed in parallel.
▼立面细节,Details


最终方案在不牺牲建筑品质的前提下,实现了可出租面积的最大化。每户住宅内设置的大尺度落地窗正是这一策略的体现。De Zwarte Hond表示:“这些窗户不仅为住户带来充足的自然采光与开阔的视野,同时也形成了尺度可观的窗龛空间,在提升居住体验的同时,实现了收益与生活品质的双重优化。”
The final design maximizes rentable floor space without compromising architectural quality. The large floor-to-ceiling windows in each home are an example of this. According to De Zwarte Hond: “In addition to providing residents with ample daylight and great views, these windows create large alcoves. This optimizes both revenue and the quality of life for residents.”
▼场地总图,Site plan

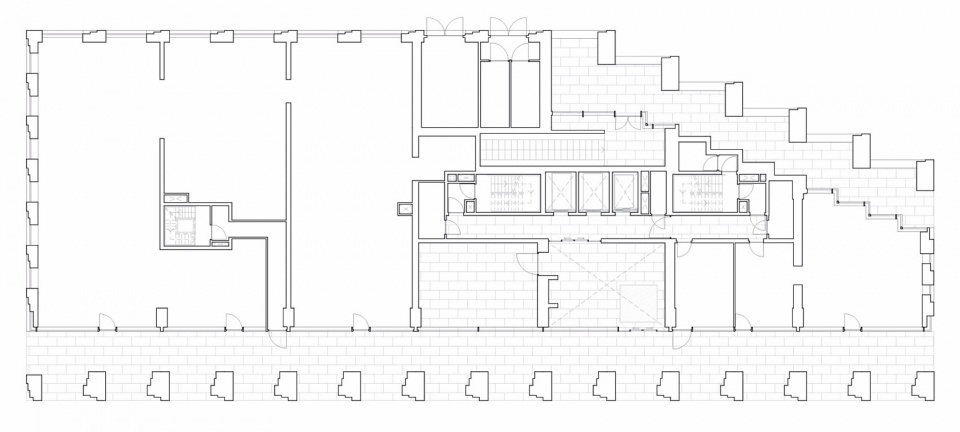
▼首层平面图,Ground floor plan

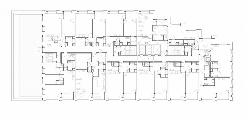
▼四层平面图,Fourth floor plan

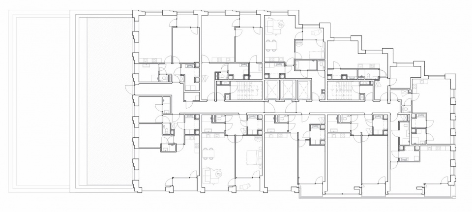
▼十一层平面图,Eleventh floor plan

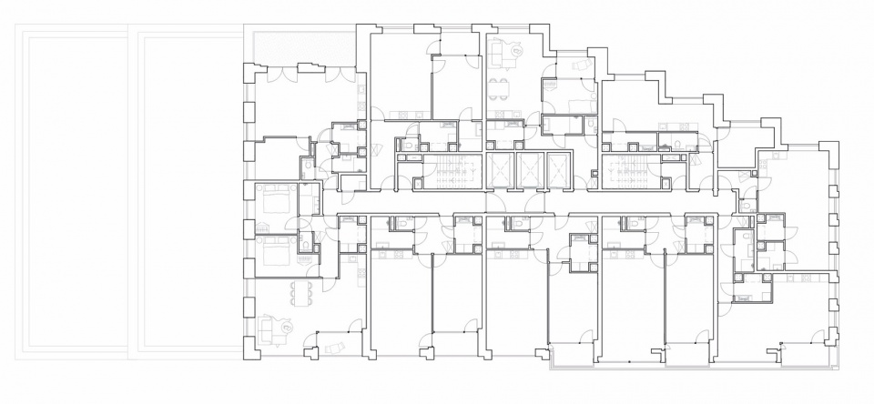
▼十九层平面图,Nineth floor plan

▼三十二层平面图,Thirty-second floor plan

▼剖面图,Sectio

Technical sheet
Client: Spoorzone B.V
Location: Eindhoven
Architect: De Zwarte Hond
Developer: SDK Vastgoed B.V.
Contractor: Stam + De Koning Bouw, Visser & Smit Bouw
Consultant: Snijders Ingenieursgroep
Size: 33.905 m²
Completion date: 02/10/2025
Program: 333 high-quality rental apartments, 9 penthouses, commercial and social facilities














