南京师范大学附属中学晓庄校区图书馆,江苏南京 / 非常建筑
打造立体高密度校园 Creating a Vertical High-Density Campus
南京师范大学附属中学晓庄校区面积约6.67万平方米,总建筑面积约为9.5万平方米,另有不计容的架空区面积约1.7万平方米,配置42个班级。总体属于用地不足的高密度、紧凑型校园。基地中心现存一处市级文保建筑——民国空军第二通讯台旧址,同时还保留了一栋年代较新的高层学生宿舍楼需改造。
The Xiaozhuang Campus of the High School Affiliated to Nanjing Normal University (NSFZ) occupies a 66,700 sq.m site, with a total building area of approximately 95,000 sq.m. A further 17,000 sq.m of semi-outdoor space is not counted toward the floor area ratio. The campus is designed to accommodate 42 classes, forming a high-density, compact campus due to the limited land availability. At the center of the site, a heritage structure—the former Second Communication Station of the Republic of China Air Force is preserved, along with a high-rise dormitory built in recent years that awaits renovation.
▼校园鸟瞰,Aerial view of the campus

基于此现状,总平面规划以文保建筑及周边保留的大树作为核心景观,其南侧为教学办公区,北侧为生活运动区。北区西侧400米操场架空抬高,下方空间得以高效利用:临路一侧做家长可进入校园接送的停车区,减少对校门口道路的交通压力;中部为半下沉的游泳馆、训练馆、篮球馆以及风雨运动跑道,东侧为礼堂和食堂。架空操场之上,新旧两栋高层宿舍楼并置,与周边的高层住宅共同形成东高西低的城市肌理。师生课间登上操场,可获得在高密度环境中的远眺视野和放松的出口。
▼功能分析,Program diagram

Based on the existing conditions, the master plan is organized around the heritage building and adjacent reserved mature trees as the core landscape. The area south of this core is designated for teaching and administration, while the north side accommodates living and sports functions. A 400m running-track sports field on the western side is structurally elevated, making efficient use of the space below: the section near the road serves as a parent drop-off/pick-up parking zone to ease traffic pressure at the main entrance; the central section features a semi-sunken natatorium, training hall, indoor basketball court, and an all-weather running track. An auditorium and cafeteria are located to the east. Above the elevated sports field, the new and existing high-rise dormitories stand side by side, forming an urban fabric that transitions from higher buildings in the east to lower ones in the west. During breaks between classes, students and teachers can ascend to the elevated field to enjoy expansive views within the dense urban setting and find a place for physical and mental refreshment.
▼南区鸟瞰,Aerial view of the southern zone

南区教学组团布局围绕文保建筑展开,建筑体量通过Z字弯折,形成五个半围合庭院。校园首层大量架空,庭院间可自由穿行,各建筑入口间也形成了彼此互动的视线关系。景观绿地伸入架空层,与多处下沉的半室外活动空间互动,为户外教学提供了场所。建筑间在不同标高上用开放平台或大跨连廊连通,把公共性延伸到上层教学空间。
To the south, the academic buildings adopt a zigzag layout centered on the heritage structure, forming five semi-enclosed courtyards. The ground floor of the campus is extensively elevated, allowing free movement between courtyards and creating interactive sightlines among the entrances of different buildings. Green landscapes extend into the elevated spaces, interacting with multiple sunken semi-outdoor activity areas to provide venues for outdoor learning. Meanwhile, open platforms and large-span bridges connect the buildings at various levels, extending the public realm into the upper-floor academic spaces.
▼清水混凝土、GRC镂空花格、玻璃砖和质感涂料的搭配,给立面带来微妙的光影变化,
The combination of fair-faced concrete, GRC lattice panels, glass bricks,
and textured coatings creates subtle light and shadow

▼架空穿行的校园环境,Campus environment with overhead bridge-passageways

建筑体量转折处设置的中庭、开敞楼梯与休息区,连廊内的开放阶梯教室,3.6米的宽走廊,都为学生课间自主学习、就近活动提供了多元化的场所。
Features such as atriums at building corners, open staircases with resting areas, terrace classrooms within bridges, and 3.6m wide corridors collectively offer diverse spaces where students can engage in self-learning and nearby activities between classes.
▼大跨连廊内的开放阶梯教室,Open tiered terrace classroom within a long-span bridge-passageway

▼操场下方的风雨跑道,All weather running track underneath the sports field

重构开放藏阅空间 Reimagining an Open Reading Space
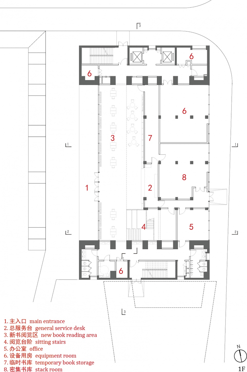
图书馆位于校园中心的文保建筑广场东侧,规模约3800平方米,是“开放式学校”设计理念的具体体现。
Located on the east of the heritage building plaza at the campus heart, the 3,800 sq.m library embodies the “open school” design concept.
▼图书馆外立面,Library exterior

▼图书馆入口,Library entrance

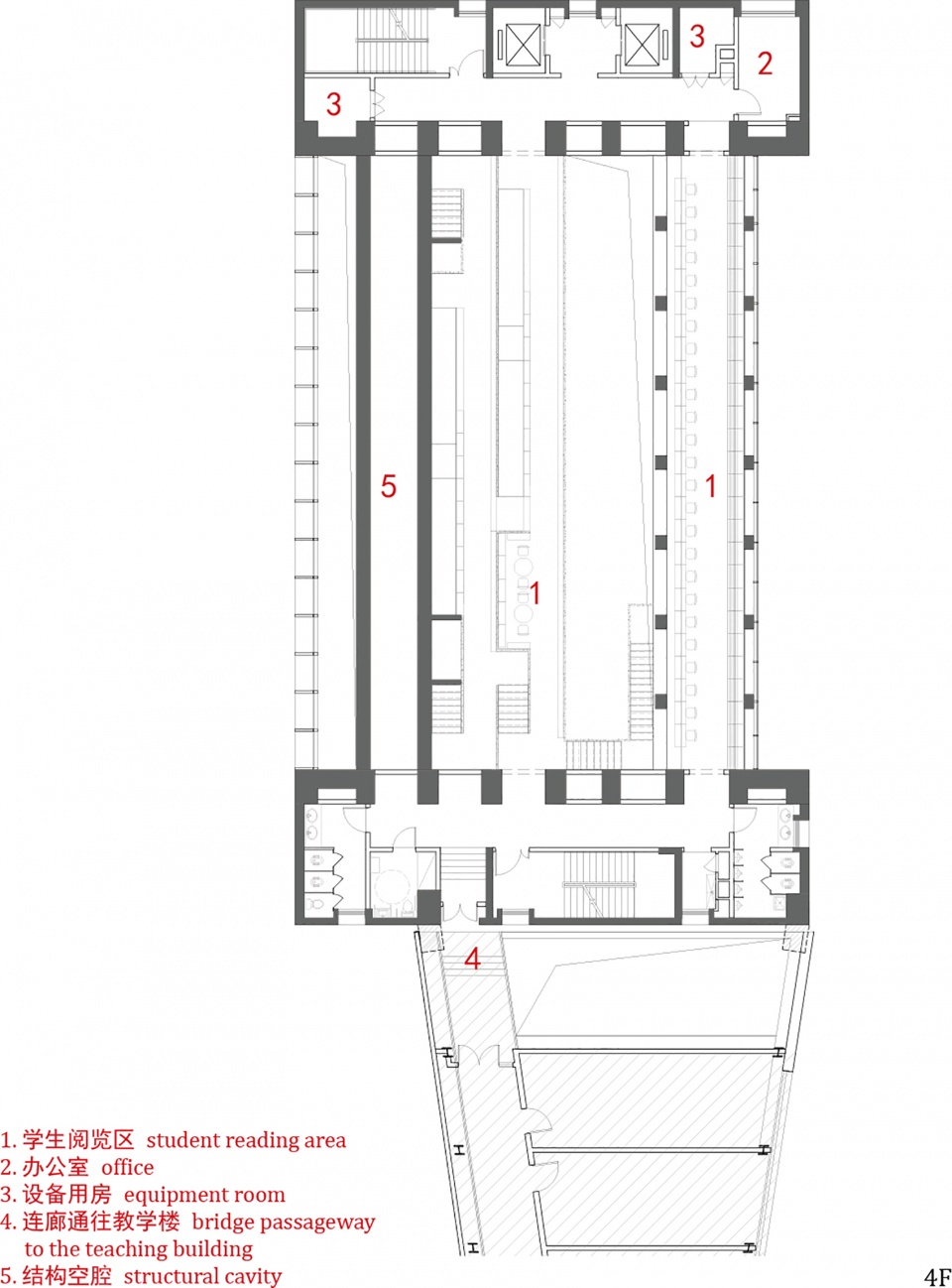
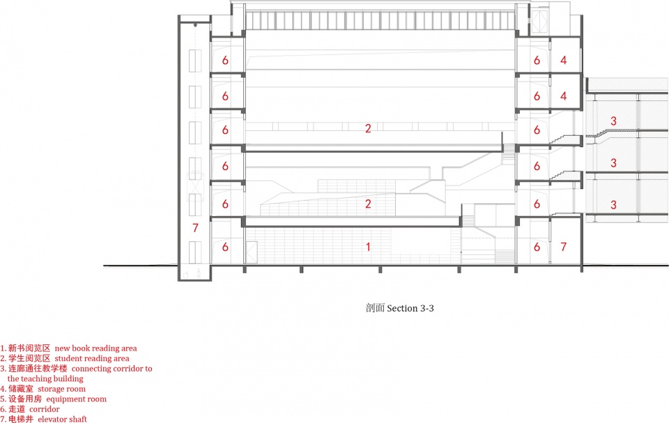
设计打破楼层的常规做法,将五处大跨度的管状或阶梯状藏阅空间交错穿插在共享中庭内,两类空间分别对应半封闭阅览和开放阅览两种阅览模式。顶部天窗为中庭引入自然光线,经多次反射渐次照亮中庭,营造出富有层次的光影体验。开放的阶梯阅览区通过一条连续的“漫游路径”串联,从首层门厅依次连接新书阅览区、服务台、阅读看台及多个标高的学生阅览阶梯平台,最终延伸至顶层电子阅览室。路径上均有坡道,可实现平台间的无障碍连通。半封闭的管状阅览空间则主要容纳教师阅览室与藏书区,其标高与楼层相对应。
▼张永和手绘草图,Sketch by Yung Ho Chang

The design departs from conventional floor plates, interweaving five large-span, tubular or terraced reading volumes within a shared atrium. These built forms generate two distinct reading environments: semi-enclosed spaces and open terraces. A central skylight introduces natural light into the atrium, which is then diffused through multiple reflections to create a layered, luminous atmosphere. A continuous “wandering path” connects the terraced reading areas. Beginning at the ground-floor lobby, it links the new book area, service desk, reading bleachers, and multi-level student reading platforms, ultimately extending to the top-floor digital reading room. Gently sloped ramps ensure accessible circulation between all platforms. The semi-enclosed tubular reading spaces primarily house faculty reading rooms and book stacks. The semi-enclosed tubular spaces align with the main floor levels in elevation.
▼一层新书阅览区,1st floor new book area

▼中庭南侧的开放楼梯,Open staircase on the south end of the atrium

▼从南侧楼梯仰望天窗,
Looking upward at the skylight from the south staircase

▼从管状藏阅空间的长条窗口看向中庭,
View of the atrium through the elongated opening from the tubular reading space

▼二层的管状阅览空间,Tubular reading space on the 2nd floor

▼从管状藏阅空间看向中庭,View towards the atrium from the tubular reading space

阶梯及管状阅览空间采用大跨度斜向箱型与矩形截面梁结构,均架设于中庭两端的核心筒上。由此,中庭得以实现大面积的斜高窗,将室外大树的绿意映入室内。同时,管状阅览室利用通长条窗,建立与中庭的视觉联系。
The large-span terraces and tubes, employing inclined box-section and rectangular beams, are supported by the core walls at both ends end of the atrium. Such structural system enables tall, slanted windows that frame views of the surrounding trees, drawing the greenery inward. Continuous strip windows maintain visual connection between the tubular reading rooms and the atrium.
▼二层学生阅览区,可以看见东侧窗外的浓密绿荫,
2nd floor student reading area, with a view of greenery outside the east windows

▼二层开放式阶梯阅览空间,2nd floor open terrace reading space

▼送风管藏在结构空腔内,风口与家具整合,
Air supply ducts are concealed within structural cavities,
with air outlets integrated into the furniture

▼开放式阶梯阅览空间,通过阶梯及坡道实现不同平台的连接,
Open terrace reading space with connections
between different levels via steps and ramps

▼三层东侧阶梯阅览空间顶部,Top section of the east terrace reading space on the 3rd floor

结构设备一体化 Integrating Structure and Building Services
图书馆内外大量使用了光面竹胶板的清水混凝土,结构既是材料,也定义了空间。光滑的清水混凝土与实木地板、栏板及书架相结合,平衡了室内空间的雕塑感与亲切感。
As the main features that are extensively used both in the interior and exterior of the library, fair-faced concrete poured in ply-bamboo-formwork is not only considered as the building structure but also the finishing material that defines the spatial character. The smooth concrete is balanced with solid wood flooring, handrails, and bookshelves, giving the interior’s sculptural quality with a sense of warmth and intimacy.
▼从中庭南侧开放楼梯上看中庭,
View of the atrium from the south end open staircase

▼从五层核心筒内观景窗看向中庭,
View of the atrium from the viewing window in the 5th floor core

设备管道从中庭两侧的核心筒内接出,排布于大跨结构间的梁腔里。地面为架空做法,容纳喷淋管或风管,以保证清水混凝土表面的整体性。空调出风末端整合在固定书架、桌面、栏板等设施内,实现建筑、结构、设备、装修的一体化设计。
Building service runs from the core walls on both side of the atrium, with pipes and ducts routed through the voids within the long-span structure. An elevated floor system accommodates sprinkler lines and air ducts while preserving the integrity of the exposed concrete surfaces. Air supply outlets are integrated into built-in bookshelves, desks, and railing, achieving a unified design of architecture, structure, services, and finishes.
▼从开放楼梯顶部看向中庭:书架与空调风口整合,
View of the atrium from the top of the open staircase:
The bookshelves are integrated with the AC vents

▼六层的管状藏阅空间,Tubular reading space on the 6th floor

本项目主要采用剖面推敲整合空间形式、结构与设备需求,并通过Revit模型复核与施工阶段的全专业BIM协调,确保了复杂空间与清水混凝土结构的高完成度。
The project’s development relied heavily on sectional design to resolve spatial composition, structural needs, and service coordination and was validated through Revit modeling and full-scale BIM coordination during construction, ensuring high-quality execution of the complex spaces and fair-faced concrete structure.
▼校区总平面图,Campus site plan

▼一层平面图,1st floor plan

▼二层平面图,2nd floor plan

▼三层平面图,3rd floor plan

▼四层平面图,4th floor plan

▼五层平面图,5th floor plan

▼六层平面图,6th floor plan

▼屋顶设备层平面图,Roof equipment floor plan

▼屋顶平面图,Roof plan

▼剖面图 1-1、2-2,Sections 1-1, 2-2

▼剖面图 3-3,Section 3-3

▼西立面图,West elevation

▼南北立面图,North and south elevations

▼东立面图,East elevation

项目信息/ Project Info
业主/Client: 南京师范大学附属中学/High School Affiliated to Nanjing Normal University
地点/Location: 南京市栖霞区/Qixia District, Nanjing, Jiangsu Province, China
主持建筑师/Principal Architects: 张永和、鲁力佳/Yung Ho Chang, Lijia LU
项目团队/Project Team:
规划/Planning:梁小宁、黄舒怡、王玥/LIANG Xiaoning, HUANG Shuyi, WANG Yue
建筑/Architecture:黄舒怡、王文志、王玉山、柳超、张鹤、何泽林、焦慧敏、汤艳妮 等/HUANG Shuyi, WANG Wenzhi, WANG Yushan, LIU Chao, ZHANG He, HE Zelin, JIAO Huimin, TANG Yanni etc.
室内/Interior:王文志、黄舒怡/WANG Wenzhi, HUANG Shuyi
景观/Landscape:师琦/SHI QI
施工图设计/Construction Documents Design: 江苏省建筑设计研究院股份有限公司/Jiangsu Province Architectural D&R Institute CO., LTD.
施工单位/Construction Firm:江苏南通二建集团(北区),通州建总集团(南区)/Jiangsu Nantong No.2 Construction Engineering Group,Tongzhou Construction Group
基地面积/Site Area: 67189.57 ㎡
建筑面积/Building Area: 80581㎡(新建部分/newly built)、14142㎡(改造部分/renovated)
建筑高度/Building Height: 23.9 m(多层部分/multi-story)49.6m(高层部分/high-rise)
设计周期/Design Period: 2019 – 2022
建造周期/Construction Period: 2022 – 2025
竣工时间/Completion Time: 2025














