Backyard社区俱乐部,加纳 / DeRoche Projects
在阿克拉,公共休闲空间的投资十分有限,绿地也日益稀缺。Backyard Community Club提出了一个关于共享市民生活的新模式:一个以网球场为中心的社区体育设施,展示设计如何能够创造包容、可持续并具有社会转变意义的环境。该项目由 DeRoche Projects 设计,是加纳首个采用预制夯土系统的项目——这是一种由该工作室开创的创新方法,将一种具有历史传统的材料重新构想用于当代、可拓展的建造方式。作为同时具备本地地标性与可复制性的原型,Backyard展示了设计如何回应当下关于城市品质、环境管理与文化认同的关键议题。
In Accra, where public investment in recreational space is limited and green areas increasingly scarce, the Backyard Community Club proposes a new model for shared civic life: a community sports facility centered on a tennis court, demonstrating how design can deliver inclusive, sustainable, and socially transformative environments. Designed by DeRoche Projects, it is Ghana’s first project using a precast rammed earth system – an innovative method pioneered by the studio that reimagines an ancestral material for contemporary, scalable use. At once a local landmark and a replicable prototype, Backyard exemplifies how design can respond to urgent questions of civic quality, environmental stewardship, and cultural identity.
▼项目鸟瞰,Aerialview of the project

扎根社区的框架A Grounded Framework for Community
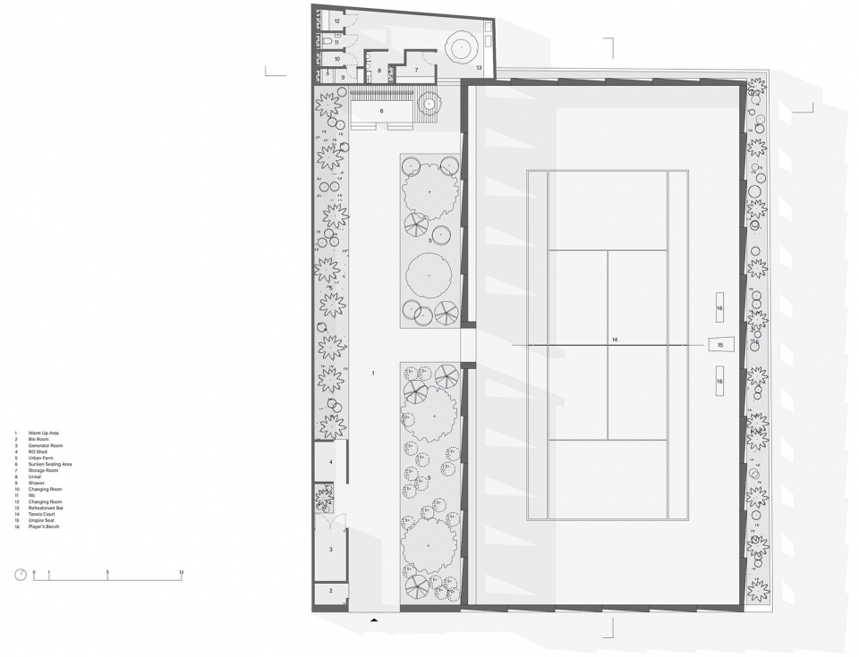
项目位于奥苏这一密集街区的一块紧凑用地内,它不仅仅是一座体育设施,而是一个让训练、培养、聚集与学习并行发生的青年社区空间。通过将运动与生态实践连接在一起,Backyard Community Club提出了一个公共空间的模型,以支持社会交流、环境责任与资源的可持续利用。按照国际标准建造的红土网球场被设计用于专业级别的双打训练,为 18 岁以下的运动员提供高质量的训练环境,同时通过为社区儿童提供免费的课程促进这项运动的普及。一条带遮荫的内置悬浮长凳使球员与观众得以观察、休息或复盘训练动作。辅助空间——包括更衣室、遮荫座位、户外准备台以及烧烤区——被安静而自然地融入场地之中。淋浴间采用自然采光,细节简洁,并设有种植槽,使景观延伸进休憩与日常活动的时刻。
Set within a compact plot in the dense neighbourhood of Osu, the project is more than a sports facility. It establishes a youth community space where training, cultivation, gathering and learning take place side by side. By connecting sport with ecological practice, the Backyard Community Club sets out a model of public space that supports social exchange, environmental responsibility and the sustainable use of resources. Built to international standards, the clay tennis court is designed for professional-level doubles play, providing athletes under 18 with a high-quality training environment while fostering access to the sport through free lessons for children in the community. A shaded, built-in floating bench allows players and spectators alike to observe, rest, or review drills. Ancillary spaces, including changing rooms, shaded seating, outdoor prep counters, and a barbecue area, are quietly integrated into the site. Showers are naturally lit, simply detailed, and feature a planted niche that brings the landscape into moments of rest and daily routine.
▼项目总平鸟瞰,Aerialview of plan

球场被一圈节奏性的 4 米高预制夯土板围合,其既能提供庇护,又保持开放。这个本地制作的围护系统带来私密性却不造成隔离,实现通风性与视觉上的联通。其细腻的节奏与雕塑般的造型能够减弱侧风,并在场地上投下移动的光影图案。这种构成方式让建筑具有存在感,同时保持雕塑性的优雅。
▼土板围护系统,Enclosure rammed earth panels system

Wrapped by a rhythmic enclosure of 4-meter-high precast rammed earth panels, the court is both sheltering and open. This locally fabricated envelope provides privacy without isolation, offering porosity and visual connectivity. Its subtle rhythm and sculptural form reduce crosswinds and cast a pattern of shadows that moves across the site. This composition gives the structure presence while maintaining a sculptural elegance.
▼街道视角,Street view

▼夯土墙细部,Detail of rammed-earth wall

环绕球场的是一片230平方米的供给花园:这里栽种了20多种可食用与药用植物,关注的不是视觉效果,而是功能表现。番石榴、香蕉、香茅、薄荷、刺果番荔枝、椰子与蝶豆花因其健康与恢复功效而被挑选,用以滋养在此训练的年轻运动员。花园的作用不仅限于装饰——青年在训练的同时学习耕作,从中采集食材制作鲜榨果汁、训练后的补给或社区餐食。种植的行为成为运动节奏的一部分,将自立、自我负责与生态意识的价值嵌入日常行为之中。除训练之外,球场还作为社区锻炼、园艺、农作物交换与夜间聚会的场所。它也可转换为户外放映空间,让人们能够观看职业赛事和体育教育内容,而这些内容在当地因基础设施受限而难以获得。
Surrounding the court is a 230 m2 sustenance garden: over 20 species of edible and medicinal plants cultivated not for appearance, but for performance. Guava, banana, lemongrass, peppermint, soursop, coconut, and blue pea flower were selected for their health and recovery properties, nourishing the young athletes who train here. The garden serves a purpose beyond decoration. Youth learn to tend the land as they train on it, harvesting ingredients for fresh juices, post-practice snacks, and community meals. The act of growing becomes part of the rhythm of play, embedding values of self-reliance, responsibility, and ecological awareness into daily routines. Outside training, the court serves the community as a place for exercise, gardening, produce exchanges, and evening gatherings. It also adapts as an outdoor screening space, offering access to professional tournaments and sports education otherwise constrained by infrastructure.
▼红土球场,The clay surface playground

Backyard Community Club为体育设施设计提供了一个不同于传统的新路径,提出了一种根植于材料真实、地方知识与社会使命的建造模式。从项目之初,我们的团队便优先与本地建造者、运动员与教育者展开深度互动——从罗马大师赛的专业意见到夯土技术顾问,共同定义一个既具包容性又具示范性的设计流程。
Backyard Community Club offers an alternative to conventional approaches to designing sports facilities, proposing a model of building rooted in material honesty, local knowledge, and social purpose. From the outset, our team prioritized deep engagement with local builders, athletes, and educators – from the Rome Masters to rammed earth technical advisors to define a design process that is both inclusive and exemplary.
▼夯土墙洞口框景,Framed view through rammed-earth

可持续性Sustainability
Backyard Community Club在整个项目中整合了一系列可持续策略。项目倡导本地的低碳建材与系统,并使用夯土围护结构包覆红土球场。由于红土球场需要大量用水来保持其良好的比赛状态,项目通过地下水井系统以及重新引导的暴雨径流来为球场与景观区域提供灌溉,从而减少对市政供水的依赖,并支持耐旱、适应性强的种植。土浆饰面取代传统的水泥砂浆,使围护结构更加透气、低影响,并进一步减少体积碳排放。辅助建筑被设计为无需空调或机械排风,而是依赖烟囱效应实现自然通风,并利用充足的自然光,从而降低能耗并减少对主电网的依赖。
The Backyard Community Club integrates a range of sustainable strategies throughout. The project champions local, low-carbon building materials and systems, with rammed earth construction to enclose the clay court. As clay courts require a lot of water to keep its performance for play, a borehole system and redirected stormwater runoff provide irrigation for the clay court and landscaped areas, reducing reliance on municipal water and supporting resilient, drought-tolerant planting. An earth slurry finish replaces traditional cementitious renders, offering a breathable, low-impact alternative that further reduces embodied carbon. The ancillary structures are designed to function without air conditioning or mechanical extraction, instead relying on the stack effect for passive ventilation and abundant natural light, minimizing energy demand and reducing dependence on the main grid.
▼维护红土球场,Court maintenance

加纳首个预制夯土系统的开创性实践Pioneering Ghana’s First Precast Rammed Earth System
源自对可持续建造方式的更广泛研究,这项研究突破了加纳传统建造方法的局限。首次应用的预制夯土板与为本地运输与劳动力量身定制的模块化系统一起,为可拓展、可持续的建造方式建立了模型。
▼预制夯土板,Precast rammed earth panels

Emerging from a broader investigation into sustainable building practices, the research departs from conventional building practices in Ghana. Applying for the first time the precast rammed earth panels, alongside a modular system tailored to local transport and labor, the project establishes a model for scalable, sustainable construction.
▼球场上的训练场景,Training session

传统的夯土建造方式缓慢、劳动密集、且依赖天气,这也长期限制了其在商业或社区规模项目中的使用。我们的系统通过场外预制来突破这些限制,使更高等级的质量控制、更严格的结构精度以及工地准备与板材生产之间的并行工作成为可能。最终形成的系统是一个模块化、适应气候并可复制的体系,专为加纳的运输、劳动力与气候条件量身打造。它可以更快速地交付,产生更少的浪费,并拥有远低于混凝土的体积碳排放。这不仅是一种建造方法,更是一套从土地出发、利用土地本身的全新建造框架。通过在这一规模上应用预制夯土模块,项目为未来发展提供了一种原型,展示了创新、以材料为驱动的设计如何推动可持续的城市生活,同时保护文化身份与环境价值
Traditional rammed earth construction is slow, labor-intensive, and weather-dependent, which has long limited its use in commercial or community-scale projects. Our system bypasses these constraints through off-site fabrication, allowing for advanced quality control, tighter structural tolerances, and parallel workstreams between site preparation and panel production. The result is a modular, climate-responsive, and replicable system tailored to the realities of Ghanaian transport, labor, and climate. It is delivered more quickly, with less waste, and with a fraction of the embodied carbon of concrete. More than a construction method, it is a new framework for building from the ground up, using the ground itself. By applying precast rammed earth modules at this scale, the project pioneers a model for future development, showing how innovative, material-driven design can advance sustainable urban life while safeguarding cultural identity and environmental values.
▼辅助空间内景,Interior auxiliary space

▼总平面图,Master plan

▼首层平面图,Ground floor plan

▼剖面图,Section

Client: Private
Location: Accra, Ghana
Year: 2025
Typology: Sports, Civic
Architecture: DeRoche Projects
Photography: Julien Lanoo














