大辛庄遗址博物馆,山东 / 同圆设计集团股份有限公司
项目背景 Project Background
大辛庄遗址位于山东省济南市历城区王舍人街道办事处大辛庄村东南,是目前山东省已知面积最大的一处以商文化为主体堆积的古聚落文化遗址,是商王朝经略东方的统治中心,为我国东方地区规格最高的一处遗址,在商代考古与历史研究中具有极其重要的价值。大辛庄考古遗址公园是国家级遗址公园项目,项目占地677亩,其中大辛庄遗址博物馆总建筑面积约2.2万平方米,是公园入口的核心建筑,其内部集遗址保护、学术研究、文化展示与公众教育等功能于一体,将成为解码商代东方文明的重要窗口。
The Daxinzhuang Site is located in the southeast of Daxinzhuang Village, Wangshe Ren Sub-district Office, Licheng District, Jinan City, Shandong Province. It is currently the largest known ancient settlement cultural site in Shandong Province with Shang culture as the main body. It was the ruling center of the Shang Dynasty in the East and is the highest-level site in the eastern region of China. It holds extremely important value in the archaeological and historical research of the Shang Dynasty.
The Daxinzhuang Archaeological Site Park is a national-level site park project, covering an area of 677 mu. Among them, the Daxinzhuang Site Museum has a total construction area of approximately 22,000 square meters and is the core building at the park entrance. Its interior integrates functions such as site protection, academic research, cultural display and public education, and will become an important window for decoding the Eastern civilization of the Shang Dynasty.
▼项目鸟瞰,Aerial-view of the Project

▼项目概览,Overview of the Project

从历史原型,到现代转译 From historical prototypes to modern translation
大辛庄遗址的核心价值体现在其作为商代东方中心的历史地位,其中重要的考古发现——F61大型宫殿基址,以及甲骨卜辞、青铜重器等出土文物,共同构成了设计的文化基石。其中F61大型宫殿基址的地位极其重要,其属殷墟二期的可能性极大,与大辛庄甲骨卜辞同属殷墟早期。设计将其平面比例与回廊形态抽象为基本模数,通过变换与重组,形成了博物馆三大功能体量——展厅、研究中心与游客中心。
▼原型提取,Prototype extraction

The core value of the Daxinzhuang site lies in its historical status as the eastern center of the Shang Dynasty. Among them, the significant archaeological discovery – the F61 large palace foundation site, as well as the unearthed artifacts such as oracle bone inscriptions and bronze vessels, jointly form the cultural cornerstone of the design. Among them, the foundation site of the F61 large palace holds an extremely important position. It is highly likely to belong to the second phase of the Yinxu Ruins, sharing the same early Yinxu period as the oracle bone inscriptions of Daxinzhuang. The design abstracts its planar proportion and corridor form into basic modules. Through transformation and recombination, it forms the three major functional volumes of the museum – exhibition halls, research centers and visitor centers.
▼博物馆三大功能体量,Three major functional volumes

通过抽象商代宫殿的“茅茨土阶”构造——下层夯土筑基、中层柱廊支撑、上层茅草覆盖,将其提取为建筑立面的三段式构图,结合使用层高需求形成三个体量高度比例大致相同的关系,并收分叠加并错落延伸形成建筑的基本形态。底层以厚重的台基意象呼应“筑台成殿”的历史记忆;中层通过竖向构件与玻璃幕墙的组合,模拟柱廊的虚实关系;顶层则以出檐深远的屋面处理,隐喻茅草的轻盈感。
▼形态生产,Form generation

By abstractly adopting the “thatched earth steps” structure of the Shang Dynasty palace – the lower layer is rammed earth foundation, the middle layer is supported by colonnades, and the upper layer is covered with thatched grass – it is extracted into a three-part composition of the building facade. Combined with the requirements of the floor height, a relationship of approximately the same height ratio among the three volumes is formed, and the basic form of the building is formed by the superposition and staggered extension of the components. The ground floor echoes the historical memory of “building a platform and a hall” with the image of a heavy platform base. The middle layer simulates the virtual-solid relationship of the colonnade through the combination of vertical components and glass curtain walls. The top floor features a roof with a deep eave, symbolizing the lightness of thatch.
▼立面的意象,The echo of exterior

空间叙事脉络与场所营造 Spatial narrative context and place creation
建筑布局在轴线上串联了各个重要的空间节点,从“庭”—室外广场、“门”—主入口区域、“厅”—博物馆前厅、到“堂”—族徽大厅、“廊”—庭院回廊、“院”—室外庭院,设计将这些象征商代城邦文化的礼制空间与博物馆建筑观展流线上起承转合的各个节点完美的嵌套在一起,以空间叙事的手法给予观展者互动体验。
▼线索一,Clue one

▼空间分析,Space diagram

The architectural layout connects various important spatial nodes along the axis, from “courtyard” – outdoor square, “gate” – main entrance area, “hall” – museum foyer, to “hall” – ancestral emblem hall, “corridor” – courtyard corridor, and “courtyard” – outdoor courtyard. The design perfectly integrates these ritual Spaces symbolizing the culture of the Shang Dynasty city-states with the various nodes of the museum building’s exhibition flow line, providing visitors with an interactive experience through spatial narrative techniques.
▼户外广场,Outdoor plaza

▼主入口,Main entrance

▼博物馆前厅,Museum foyer

▼族徽大厅,Ancestral emblem hall


▼庭院回廊,Courtyard corridor


古今时空对话 Ancient and modern time and space dialogue
F61大型宫殿建筑基址位于遗址公园的东南部,方向为北偏东25°,建筑屋顶形态进行了旋转,旋转角度朝向东南的遗址方向,与商朝城址及主要建筑的朝向北偏东的走向一致。建筑在二层与一层扶梯衔接的空间节点上设计了一处互动平台,从互动平台上可以俯瞰整个探源大厅,同时其旋转角度朝向东南遗址方向并一直延伸至室外,形成了一个古今时空对话的窗口。
▼线索二,Clue one

▼动线分析,Circulation diagram

The foundation site of the F61 large palace building is located in the southeast of the heritage park, facing 25° northeast. The roof shape of the building has been rotated, with the rotation Angle pointing towards the southeast of the heritage site, which is consistent with the northeast orientation of the Shang Dynasty city site and the main buildings. An interactive platform is designed at the spatial node where the escalators on the second floor and the first floor connect. From this interactive platform, one can overlook the entire origin exploration hall. Meanwhile, its rotation Angle faces the southeast of the site and extends all the way to the outside, forming a window for dialogue between the past and the present.
▼室内坡道,Interior Ramp


▼互动平台,Interactive platform

▼公共走廊,Corridor

建筑外部动线 The external circulation of the building
博物馆设计之初就从各个维度考虑了公众开放性——游客既可从博物馆首层架空区域穿过到达遗址公园,也可通过室外楼梯到达建筑二层及三层的室外平台,这些空间既可作为室外展陈的延伸空间,也可作为周边居民的观景休憩场地,实现博物馆兼容城市客厅的目标。
▼线索三,Clue three

From the very beginning of the museum’s design, public openness was taken into account from all dimensions. Visitors can either pass through the elevated area on the first floor of the museum to reach the heritage park or use the outdoor stairs to reach the outdoor platforms on the second and third floors of the building. These Spaces cannot only serve as extension Spaces for outdoor exhibitions but also as viewing and resting areas for the surrounding residents, achieving the goal of the museum being compatible with the urban living room.
▼公共开放平台,Public open platform

▼通向遗址公园的室外通道,Outdoor pathway to park


绿色建筑做法与可持续策略 Green building practices and sustainable strategies
功能叠合与运营增效 Functional integration and operational efficiency enhancement
项目超越单一功能,基于“遗址保护+公众服务+学术研究”的复合需求,通过动线串联与场景适配,实现空间深度复用。如核心的族徽大厅兼具活动举办功能,探源平台复合了沙盘展示、休憩与导览,最大化提升空间使用效率与经济效益,减少闲置浪费。
The project goes beyond a single function. Based on the composite demands of “site protection + public services + academic research”, it achieves deep spatial reuse through the connection of circulation lines and scene adaptation. For instance, the core ancestral emblem hall also serves the function of event hosting, while the origin exploration platform integrates sand table display, rest and guided Tours, maximizing the efficiency of space utilization and economic benefits, and reducing idle waste.
▼展厅前厅空间,Exhibition hall foyer

适宜体量与被动式优先 Appropriate volume and passive priority
秉承“遗址保护优先、生态干扰最小”原则,摒弃传统“大单体”模式,将建筑分解为展厅、研究中心、游客中心三个组团,以庭院和连廊形成“分散式集群”,消隐于环境,从源头降低能耗。建筑主体高度控制在18米内,减少热损失;将高耗能的藏品库房等置于地下,利用设备用房遮盖族徽大厅顶部,均是被动式节能的有效举措。
▼风速分析,Wind velocity analysis

Adhering to the principle of “prioritizing site protection and minimizing ecological disturbance”, the traditional “large single” model is abandoned. The building is decomposed into three groups: exhibition halls, research centers, and tourist centers. A “decentralized cluster” is formed by courtyards and corridors, blending into the environment and reducing energy consumption from the source. The height of the main building is controlled within 18 meters to reduce heat loss. Placing high-energy-consuming storage rooms for collections underground and covering the top of the ancestral emblem hall with equipment rooms are both effective passive energy-saving measures.
▼被动式节能,Passive energy-saving measures

虚实有度与自然整合设计 The balance between the real and the illusory and the natural should be maintained
将采光、通风、遮阳等被动式节能措施与文化叙事深度融合。采光:通过庭院和中庭组织,使公共空间自然采光覆盖率超85%,减少人工照明依赖,光影变化本身也增强了展览氛围。 通风:组团布局自然形成气流走廊,辅以庭院枢纽,使自然通风覆盖率超70,夏季引风入室,冬季有效御寒。
▼自然采光分析,Daylighting analysis

The design deeply integrates passive energy-saving measures such as lighting, ventilation and shading with cultural narratives. Lighting: Through the organization of courtyards and atriums, the natural lighting coverage rate of public Spaces exceeds 85%, reducing the reliance on artificial lighting. The changes in light and shadow themselves also enhance the exhibition atmosphere. Ventilation: The layout of the group naturally forms air flow corridors, supplemented by courtyard hubs, making the natural ventilation coverage rate exceed 70%. In summer, it draws air into the room, and in winter, it effectively protects against the cold.
▼充足的室内采光,Ample interior daylighting

遮阳:立面采用以东夷土坯砖为灵感的镂空遮阳构件;屋顶通过抽象青铜器形态形成挑檐,既满足遮阳功能,又强化了文化表达,并拓展了室外活动空间。
Sunshade: The facade adopts hollowed-out sunshade components inspired by Dongyi adobe bricks. The roof forms overhanging eaves in the shape of abstract bronze wares, which not only serves the function of shading but also enhances cultural expression and expands the outdoor activity space.
▼立面细部,Facade details

结语 Conclusion
大辛庄遗址博物馆方案是一次从历史深处走向当代语境的建筑实践。它通过对商文化元素的抽象转译,在形态与空间上实现了与历史文脉的对话,并通过布局优化、材料选择与技术整合,达成了与自然环境的和谐共生。未来,它不仅是展示商夷文明的核心窗口,更将作为一座具有示范意义的绿色文化建筑,为同类项目提供宝贵借鉴。
The design of the Daxinzhuang Site Museum is an architectural practice that moves from the depths of history to the contemporary context. Through the abstract translation of commercial culture elements, it has achieved a dialogue with historical context in terms of form and space, and through layout optimization, material selection and technological integration, it has achieved a harmonious coexistence with the natural environment. In the future, it will not only be a core window showcasing the civilization of the Shang and Barbarians, but also serve as a green cultural building with exemplary significance, providing valuable references for similar projects.
▼总平面图,Master plan

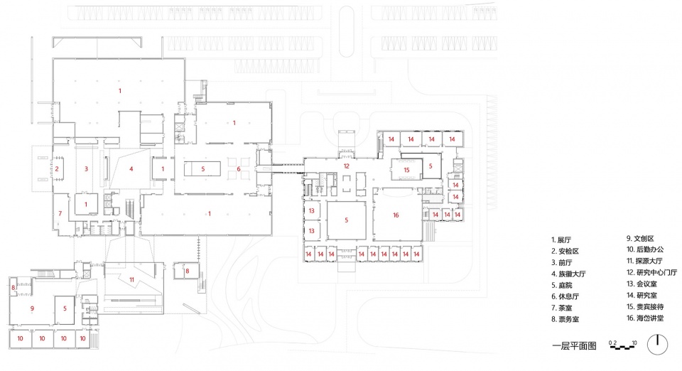
▼首层平面图,First floor plan

▼二层平面图,Second floor plan

▼三层平面图,Third floor plan

▼剖面图,Section



▼细部节点图,Details drawing



Project Name: Daxinzhuang Site Museum
Owner: Jinan Development State-owned Industrial Assets Management Co., LTD
Construction location: Licheng District, Jinan City
Architectural design: Tongyuan Design Group Co., LTD
Land area: 114,751 square meters
Building area: 22,673 square meters
Design time: 2022
Completion time: 2025
Structural form: Steel structure building
Number of floors: 3 floors
Project General Manager: Guo Liqiang
Solution team: Guo Liqiang, Si Hongbin, Xu Jingdong, Zhang Guomeng, Bian Wengan, Zhu Xiaochen
Construction drawing design team
Architecture: Zhou Shanshan, Zhang Guomeng, Hao Wenjuan, Tian Yuhao, Wang Hongzhe, Wang Hailiang
Structure: Wang Jinxiang, Li Guanqun, Zi Xiaozhong
Water Supply and Drainage: Ye Xuesong, Li Yuanpeng, Wang Minxiang, Zhou Yan
Hvac: Chen Junhua, Zhang Lin, Wei Zhaopeng, Han Xiaodong
Electrical: Wang Xiangtao, Sun Min, Zhou Xin, Zhang Hongli
Intelligentization: Li Peng, Zhong Bin, Zhang Peiyuan
Civil defense: An Shuo, Gu Jinghong, Li Junjun, Liu Fengying
Hardcover design team: Bian Wengan, Zhang Guanghai, Li Mingxin
Curtain wall consultant: Qingke Ruichuang Engineering Consulting (Beijing) Co., LTD
Architectural photography: Time Difference Photography, Meng Chen
Copyright of the drawings: Tongyuan Design Group Co., LTD














