卓邸康钦温泉酒店,四川理县 / 万谦集
草原、峡谷、雪山
色达、德格、昌都、丁青
五明佛学院、德格印经院、孜珠寺
大大小小的传统藏式村落
随遇而安的游牧聚居点
……
沿317一路往西
也许,我们最需要的是敬畏与虔诚
Grasslands, gorges, snow-capped mountains
Sertar, Dege, Changdu, Dingqing
Wuming Buddhist College, Dege Printing House, Zizhu Monastery
Traditional Tibetan villages, large and small
Nomadic settlements, wherever they roam
…
Westward along Highway 317
Perhaps what we need most is reverence and devotion
▼半开放的灰度空间,Semi-open area

项目是一座保留了传统内核的现代藏式民居酒店,位于川西理县古尔沟,门外便是以“藏地人文走廊”著称的川藏北线317国道,一条名副其实的藏地朝圣之路。以317和藏文化为锚点,虔诚的藏地信仰、古老的自然崇拜、质朴的民族性符号,自然而然成为了本项目向内凝聚空间力量的源泉。在这里,空间的神圣性,不再只是一个氤氲模糊的场所氛围,而是藏民具体真实的日常与精神诉求。
The project is a modern Tibetan-style residential hotel that preserves its traditional core, located in Guergou, Li County, Sichuan. Just outside its gates lies the Sichuan-Tibet Northern Route National Highway 317, renowned as the “Tibetan Cultural Corridor”—a veritable pilgrimage route through Tibetan lands. Anchored by National Highway 317 and Tibetan culture, the project draws its spatial energy from the devout Tibetan faith, ancient reverence for nature, and authentic ethnic symbols. Here, the sacredness of space transcends mere atmospheric ambiance, embodying the tangible daily lives and spiritual aspirations of the Tibetan people.
▼主公共空间,Main public space

01
空间的仪式:神圣与静默
Rituals of Space: Sacredness and Silence
从喧嚣的317国道进入神圣静默的室内,需要经过一个相对窄仄且幽暗的L型甬道。作为过渡空间,因为光线骤然暗下,身体在经验直觉的召唤下,立刻进入一种全然沉浸的状态。注意力开始收束,内在的平静开始主导,多重感知开始积极地从环境中获得精神性的启示。
Entering the sacred interior from the bustling National Highway 317 requires passing through a relatively narrow and dim L-shaped passageway. As a transitional space, the abrupt dimming of light prompts the body, responding to experiential intuition, to immediately enter a state of complete immersion. Attention begins to focus inward, inner tranquility takes hold, and multiple senses actively seek spiritual enlightenment from the surroundings.
▼过渡甬道,Transitional corridor

空间的核心区域是一个传统寺庙的廊柱式开放空间。柱体厚重而粗犷,杂糅了西方古典建筑的对称性与比例感以及藏式夯土建筑高墙立柱的神性。在几何形态的极简与弧形柱脚的柔和之间,达到力与美的和谐。
The core area of the space is a colonnaded hall reminiscent of a traditional temple. The columns are substantial and rugged, blending the symmetry and proportion of Western classical architecture with the sacred aura of Tibetan-style architecture’s high walls and pillars. A harmony of strength and beauty is achieved between the minimalist geometric forms and the gentle curves of the column bases.
▼廊柱式空间秩序,Colonnaded space

弧形拱顶与弧形柱脚相呼应。从空间入口粗砺的砖石片墙,延伸到另一端由多重弧形构筑的层层神龛般存在的墙面,空间的神圣被推及至视觉最末端,成为空间仪式感最有力量的汇集。在此,无论是柱体垂直向上的延伸,还是空间视觉纵深上的指引,都提供了一种神圣静默的空间张力。
The curved vaulted ceiling echoes the arched column bases. From the rugged brick and stone wall at the entrance, extending to the layered, shrine-like wall constructed with multiple arcs at the opposite end, the sacredness of the space is pushed to its visual limit, becoming the most powerful convergence of ritualistic atmosphere. Here, whether through the vertical extension of the columns or the visual guidance along the spatial depth, a sacred and silent spatial tension is provided.
▼弧形穹顶下的公共区域,Public space beneath vaulted ceiling

▼柱体近景,Columns close view

02
自由的平面:秩序与层次
Free Plane: Order and Layer
以弧形穹顶中线为中轴,空间形态与平面布局依次向两侧展开。空间对称性集中于神圣的廊柱区域范围内。秩序井然,肃穆高旷。空间的均衡化与比例的和谐感,传达着克制之美与理性之精神。柱式结构的排列,既是空间结构的支撑系统,也是视觉节奏的主要来源,它不仅仅参与空间秩序的构建,更象征着人与神之间的契约。在静默里滋生信仰。这里埋藏着从仪式空间到世俗空间跃迁的线索,暗示着神圣肃穆向松弛自由过渡的空间性转移。当空间越过序列式的立柱,非对称性向两端弥散,自由而开放的现代性平面便开始发挥作用,并在视觉游戏的层层递进当中,激励着移动与漫步的空间意愿。
Centered on the mid-line of the arched dome, the spatial form and plan layout unfold sequentially toward both sides. Spatial symmetry is concentrated within the sacred colonnade zone. Orderly and solemn, the space conveys a sense of restraint and rational spirit through its balanced proportions and harmonious scale. The arrangement of the columnar structure serves not only as the spatial support system but also as the primary source of visual rhythm. It participates in constructing spatial order while symbolizing the covenant between humanity and the divine. Faith blossoms in the silence. Here lies the key to transitioning from ritual space to secular space, hinting at a spatial shift from solemn reverence to relaxed freedom. As the space moves beyond the sequential columns, asymmetry disperses toward both ends, allowing the free and open modern plane to take effect. Through the layered progression of visual interplay, it inspires a spatial desire for movement and strolling.
▼空间序列,Spatial sequence




空间层次,一方面离不开平面的合理布局与分割,一方面也取决于视觉感受上层层推演递进的现场互动。在这里,立柱与立柱之间的间隙,正好创造了一个模糊的边界,视觉的穿透力与层层抵达被鼓舞着。而整个空间的交互体验,则在聚拢与扩散之间达到了平衡。
Spatial hierarchy relies not only on the rational layout and division of planes but also on the visual progression of layered interactions within the space. Here, the gaps between columns create a blurred boundary, encouraging visual penetration and layered access. The overall interactive experience achieves a balance between convergence and dispersion.
▼空间层次,Spatial hierarchy

03
人文的向度:明暗与温度
Humanistic Dimension: Dimness and Warmth
人文是神圣性之所以能进入日常的重要原因。如果说,廊柱式核心区域是空间神圣性的集中展现,那么与之处在空间对角线上隐蔽于隔墙内侧的火塘区域,则是人文的中心。前者提供与神灵相通的可能性,获得超越性的精神庇佑;后者则允诺我们进入日常,进入自我照拂与集体偎依的场景当中。在此过程中,神圣性并未消失,只是经由物质化转换,成为传统人文的一部分。
Humanity is the crucial reason why sacredness can enter the everyday.If the colonnaded area represents the concentrated manifestation of spatial sacredness, then the hearth area—concealed within the inner side of the partition wall along the spatial diagonal—serves as the center of humanity. The former offers the possibility of communicating with the divine, granting transcendent spiritual protection; the latter promises our entry into the everyday, into scenes of self-care and collective belonging. In this process, sacredness does not vanish but undergoes a material transformation, becoming an integral part of traditional humanistic culture.
▼火塘区域概览,Hearth area overview



火塘,最初被认为是太阳的微观缩影。在其他古老文明里,圣焰最初总是被安置在某个特定的区域,后来才被家庭的居住空间所环绕。在藏区,人们的日常生活也同样围绕火塘展开。对于藏民来说,火既是物质的,也是精神的,提供温暖,也提供光亮。在这里,火塘以下沉的方式被空间强调,营造着一种温暖的偎依感。周围略显昏暗的光线,炉膛内跳跃的火光,以及柴火毕毕剥剥的声响,都旨在提供一种非宗教却仍然引发精神共鸣的人文向度。
Fire was originally regarded as a microcosm of the sun. In other ancient civilizations, the sacred flame was always initially placed in a specific area before gradually being embraced by the living spaces of households. In Tibetan regions, daily life similarly revolves around the hearth. For Tibetans, fire is both material and spiritual—providing warmth and light. Here, the sunken hearth is emphasized by the space, creating a sense of cozy intimacy. The slightly dimmed surrounding light, the dancing flames within the hearth, and the crackling sound of burning wood all aim to offer a humanistic dimension that, while non-religious, still evokes spiritual resonance.
▼火塘区域近景,Hearth area close view


从细节里拾取人文的吉光片羽。餐饮座区的转经筒,由铜皮、铁片、藏红棉线等构成,是宗教仪式向艺术与装置形式的转译。火塘墙面上的挂画,以铜皮做川字形构成,缀以藏式铃铛,在火光跳跃下形成明暗的光斑,是人文日常的回应。而厚墙上,以小孔引入光线,光在其周围逐渐衰变,形成一种缓缓浸润的灰度状态,则是人文润物无声的写照。就这样,圣神性与日常性交互着相互补充。
Gathering fleeting glimpses of humanistic essence from the details. The prayer wheel in the dining area, crafted from copper sheets, iron plates, and Tibetan red cotton thread, transforms religious ritual into an artistic installation. The wall hanging above the hearth features a copper-sheet composition resembling ravines, adorned with Tibetan bells. As the firelight dances across it, it casts shifting patches of light and shadow—a response to the rhythms of daily life. Meanwhile, small apertures in the thick walls allow light to seep through, gradually fading into a state of soft, permeating grayscale—a silent yet profound reflection of human culture’s subtle influence. Thus, sacredness and everyday life intertwine, each enriching the other.
▼转经筒,Prayer wheel

▼厚墙小孔,Small apertures in the thick walls

▼孔洞引光细节,Light apertures detail

04
顶层的回应:网格与孔隙
Top-level Response: Grid and Pore
顶层的绝对优势是视角,是对景观与天空的全然拥抱。高海拔纯净如洗的碧空,远处斑斓起伏的彩林,纷纷以远景、框景的姿态进入空间。
The absolute advantage of the top floor lies in its perspective—a complete embrace of the landscape and sky. The pristine, high-altitude sky and the distant, vibrantly undulating forests enter the space as distant vistas and framed views.
▼顶层概览,Top floor overview

▼拥抱景观与天空,Embrace of the landscape and sky

将酒吧设置在顶层,一方面是作为一楼公共区域的补充,丰富公共空间在视觉体验与空间感受上的多样性;另一方面也旨在将空间的精神性与纯粹性在垂直方向上进行延伸,将其转化为一种建筑的意志。比如,顶部的网格状结构,以及透光孔洞,正是一楼公共空间里柱式秩序与小孔光影的集中呼应。
Positioning the bar on the top floor serves a dual purpose: first, to complement the ground-floor communal area, enriching the diversity of the public space in terms of visual experience and spatial perception; second, to extend the spiritual and pure essence of the space vertically, transforming it into an architectural will. For instance, the grid-like structure at the top and the translucent openings directly echo the columnar order and the play of light through perforations found in the ground-floor communal space.
▼酒吧空间,Bar area



05
自然的延伸:山野与光影
Natural Extension: Mountains and Light
在建筑和空间中提出神性,实际上是在象征的维度上,提出一个关键的精神性索引。这个索引既是符号化的,可以感知的,又是延续的,可以溯源的。顶层空间的另一侧,一个层叠错落、半开放的灰度空间中,因其建筑光影的极度深邃与自然视野的无尽绵延,精神性与圣神性被提高到了另一个至臻纯粹的抽象状态。木质墙面与石墙体相互碰撞,枯景与天井上下呼应,五根藏式立柱如废墟一般,成为神圣景观的远古符号,显露出时间的尺度。而自然风景则在视野开放的尽头,成为连绵而亘古的存在。空间塑造灵性,灵性反过来塑造着空间。在地理、建筑与神性的持续对话中,存在着超越时间的启示。
Introducing the divine into architecture and space essentially proposes a pivotal spiritual index within the symbolic dimension. This index is both symbolic and perceptible, as well as enduring and traceable. On the opposite side of the top-floor space, within a layered, semi-open area, the profound interplay of architectural light and shadow combined with the boundless expanse of natural vistas elevates spirituality and sacredness to a state of supreme, pure abstraction. Wooden walls collide with stone structures, while dry landscapes echo the courtyard above and below. Five Tibetan-style columns, resembling ruins, become ancient symbols of sacred landscapes, revealing the scale of time. At the open end of the vista, the natural scenery unfolds as an endless, timeless presence. Space shapes spirituality, and spirituality, in turn, shapes space. Within the ongoing dialogue between geography, architecture, and the divine, lies an epiphany that transcends time.
▼天井引入自然光,Skylight bringing natural light

▼石材与木构交界,Junction of stone and wood


▼视野尽头的自然风景,Natural scenery at the end of the vista

▼墙面细部,Wall texture detail

从虔诚的洗礼中回转身,回向静谧的客房与日常栖居的场景,身心彻底松懈下来。公共空间的神圣性与客房空间的舒适感形成一张一弛的对照,身体感知在两种情境中被一一充分的体认。如果崇高与静默是一种有强度的力量的话,松弛与柔和便是其最恰如其分的补偿。
Turning away from the solemn baptism, returns to the tranquil guest rooms and the scenes of daily dwelling, where body and mind fully unwind. The sacredness of public spaces contrasts with the comfort of private quarters, creating a rhythm of tension and release. The body fully perceives and embraces each of these contrasting environments. If sublimity and silence represent a force of intensity, then relaxation and softness are their most fitting counterbalance.
▼静谧的客房, Tranquil guest room

▼松弛与柔和的补偿, Relaxed and soft counterbalance

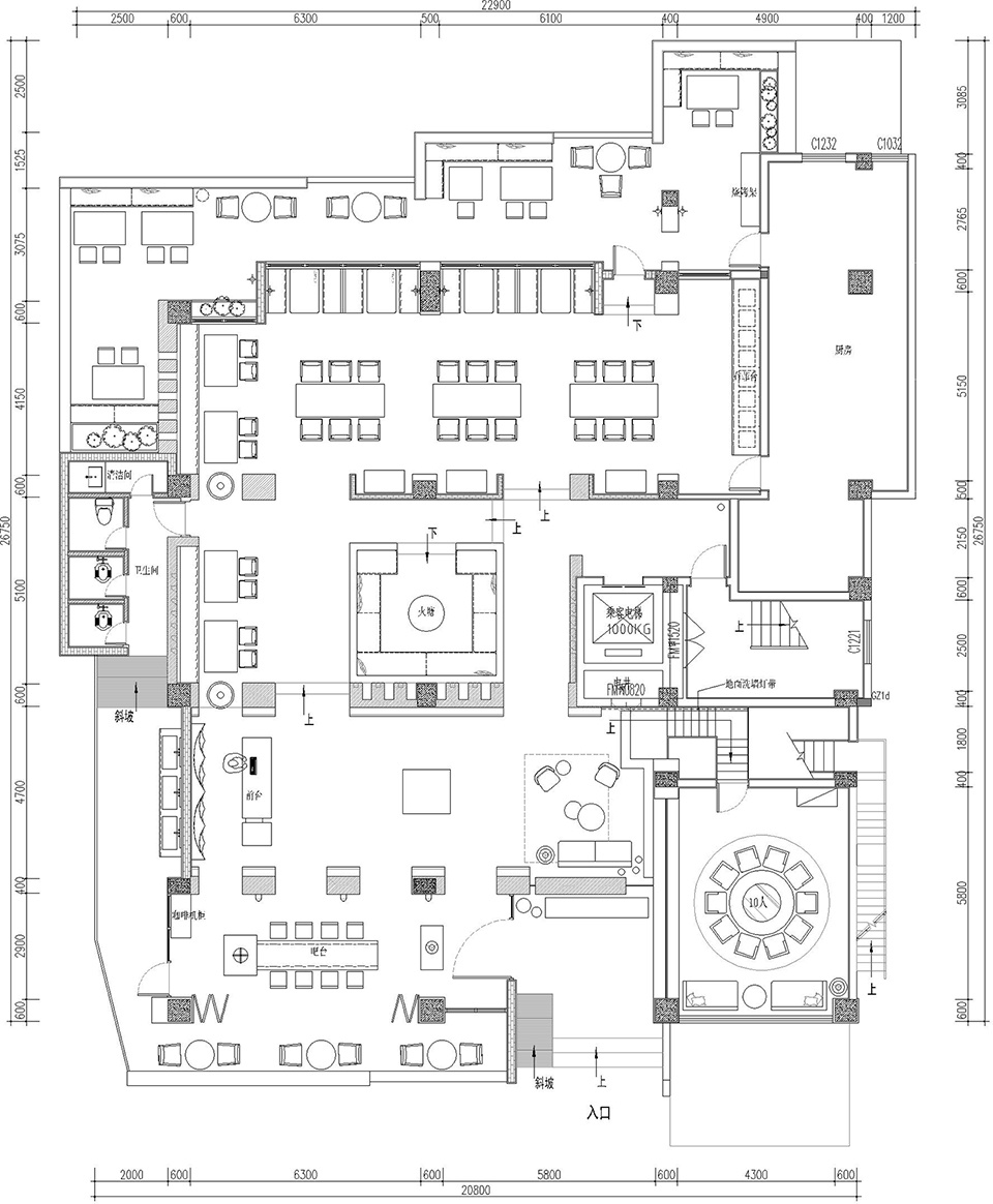
▼一层公共空间平面图,1F public space plan

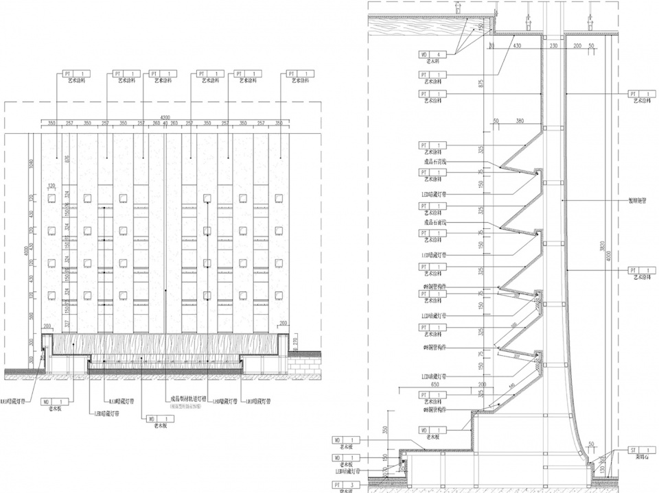
▼一层公共空间立面图,1F public space elevation

▼一层公共空间剖面图,1F public space section

Project:Zhuodikangqin Springs Hotel
Address:Guergou,County Li,Sichuan Province
Design Team:Much Modest Collect
Designer Director:Wang Hong
Project Director:Xie Xiaoyu
Architectural Designer:Yu Fan
Space Designer:Liu Yin,He Pei
Furnishing Designer:Liu Yuanyuan
Lighting Designer:Shu Guang Lighting
Project Area:3000㎡
Design Duration:September to December,2024
Completion Time:October,2025
Photographer:Li Heng
Video:Dong Wu Vision














