岚域·峨眉山,四川 / Studio J. Bridgland
岚域·峨眉山度假酒店由Studio J. Bridgland(SJB)设计,坐落在峨眉山麓。设计根植于建筑的静谧哲学,将一片废弃的建筑群更新为隐入山林的栖居之所——让人回到自然,也回归内心。
ZOLAND·Emei Resort is a boutique mountain retreat in Emeishan, designed by Studio J. Bridgland(SJB). Rooted in the philosophy of architectural quietude, the project transforms a series of dilapidated structures into a sanctuary that dissolves seamlessly into the forested landscape—inviting guests to reconnect with nature and with themselves.
▼群山环境,Mountain landscape

▼行走于山间,Walking through the landscape

建筑设计从场地地形与传统文化中汲取灵感。整体布局以错落有致的村落式形态展开,呼应依山而建的石屋聚落。传统坡屋顶与深挑檐被重新演绎,以当代语汇连接过去与现在。通过“景观优先”的设计策略、克制的材料选择,以及对传统与现代的诗意融合,让岚域·峨眉山度假酒店不仅是一家酒店,更是一处让人感知“静谧”的场域——在这里,人们得以沉思、放缓节奏,并与土地重启对话。
The architecture draws inspiration from the site’s terrain and cultural heritage. Buildings are arranged in a staggered, village-like composition, recalling stone dwellings nestled into the hillside. Traditional pitched roofs and deep eaves are reinterpreted with a contemporary sensibility, bridging past and present. With its landscape-first approach, restrained material palette, and poetic integration of tradition and modernity, ZOLAND·Emei Resort is conceived not merely as a hotel but as a secluded haven—an environment that encourages reflection, slowness, and a renewed dialogue between people and the land.
▼建筑概览,Architecture overview



入口·石之序曲 Appearance · A Sculpted Arrival
入口接待空间手工凿刻的混凝土立面,粗粝而真实的触感赋予建筑一种恒久质感。凿刻出的肌理表面,在光影下显露层次,从抵达的第一刻便传递出空间的真实与永恒。
At the entrance, the façade is formed in hand-chiseled textured concrete, its raw tactility grounding the architecture in permanence. This crafted surface establishes an immediate sense of material authenticity and timelessness.
▼入口,Entrance


▼接待空间,Reception area


庭院 · 山谷之心 The Courtyard · Heart of the Mountain
中央庭院是酒店的社交核心,一个向外延展的空间,在群山背景下让自然与建筑交汇。庭院中央矗立着一株古老的桢楠树,四周水池环绕。作为山谷中最古老、最高大的树木,它宛如无声的守护者,将体验锚定于历史与现代的延续之中。
The central courtyard serves as the social core of the resort, an outward-looking space where nature and architecture converge against the majestic mountain backdrop. At its centre stands an ancient Zhennan tree, encircled by a reflecting pool. As the valley’s oldest and tallest tree, it becomes a silent guardian—anchoring the experience in history and continuity.
▼庭院顶视,Courtyard top view

▼鸟瞰庭院,Courtyard aerial view


▼庭院概览,Courtyard overview


精神空间 · 无界之境 Spiritual Space · Boundless Connection
精神空间的大面积落地窗消融了室内外边界,将自然景观引入室内。人与森林在此展开沉浸式对话,在静谧与开阔的氛围中,感受周遭自然的律动。
Defined by expansive floor-to-ceiling glazing, the spiritual space dissolves the boundary between interior and exterior. The result is an immersive dialogue with the forest, fostering stillness and openness to the surrounding environment.
▼精神空间室内,Spiritual space interior

餐厅 · 工艺之味 Dining Room · A Taste of Craft
餐厅将传统建造技艺与严谨的结构逻辑相融合。屋顶采用了乐山夹江传统青瓦,室内天花由雪松木梁横跨支撑,营造出温润且有节奏的空间氛围。墙面选用采自峨眉山的片岩,凸显建筑的在地性,使室内与周边的山林景观相呼应。
The dining hall expresses a union of local craftsmanship and refined structure. Externally, the roof is clad in traditional Leshan grey tiles; internally, a cedar framework spans the ceiling with warmth and rhythm. Walls of schist stone sourced from Emei Mountain root the space in its geological context.
▼餐厅外观,Dining hall exterior

▼餐厅室内概览,Dining hall interior overview

▼餐厅看向室外,Dining hall towards landscape

▼餐厅局部,Dining hall partial view


客房 · 框景于山 Bedrooms · Framing the Mountains
位于场地最高点的客房,立面覆以质朴的水洗石,树木掩映下,远观几乎隐于山林;推门而入,整面落地窗将宁静山峦尽收眼底,框景于山,如同一幅展开的山水画,营造出沉浸的观景体验。
Perched at the highest point of the site, a washed stone-clad structure houses guest suites discreetly integrated beneath a lifted green landscape. From the exterior, the building is nearly invisible; from within, floor-to-ceiling windows frame tranquil mountain vistas.
▼鸟瞰套房,Guest suite aerial view

▼套房室内概览,Guest suite interior overview

▼套房沙发区域,Guest suite sofa area

▼套房局部近景,Guest suite partial view


浴室 · 石之静谧 Bathrooms · Stone and Serenity
浴室采用当地红砂岩,厚重而质朴的质感延续着土地的气息。天然的肌理与克制的色调,又将空间转化为山中一隅宁静的栖居之所。
Bathrooms feature deep red local stone, fostering a tactile and timeless connection to the land. The natural textures and muted tones transform the space into a serene retreat within the mountain.
▼浴室,Bathroom


户外泡池 · 沉浸山林 Outdoor Pool · Immersed in Nature
沐浴体验延展至室外,在一方与山体地形相融的石池中继续展开。池壁以水洗石与绿花岗岩铺陈,虚实交织间模糊了空间与自然的界限,让人仿佛沉入了山林的怀抱。
The bathing experience extends outdoors, where a stone pool merges with the mountain terrain. Finished in washed stone and green granite, it blurs the threshold between built form and landscape, enveloping guests in nature’s embrace.
▼户外泡池,Outdoor pool

拥抱慢时光 Embracing Slow Time
岚域·峨眉山度假酒店以“慢时光”作为对“静谧”的实践与诠释,倡导有意识地远离喧嚣。酒店以“景观优先”的策略为引导,辅以宁静克制的建筑语言,希望让人们放慢脚步,感受环境的细微之美,重新拾回与内心的对话。
At ZOLAND·Emei Resort, the design philosophy is guided by the idea of slow time—a conscious retreat from distraction. Through its landscape-led planning and calm, understated architectural language, the resort invites guests to slow down, notice their surroundings, and reconnect with their inner selves.
▼山林之间的慢时光,Slow time among the forest




▼酒店融入山林的夜景,
Architecture embedded in forest night view

▼庭院夜景,Courtyard night view


▼接待空间夜览,Reception area night view

▼图书馆夜览,Library night view

▼套房与餐厅间夜景,
Night view between guest suite and dining hall

▼套房夜览,Guest suite night view



▼总平面图,Site plan

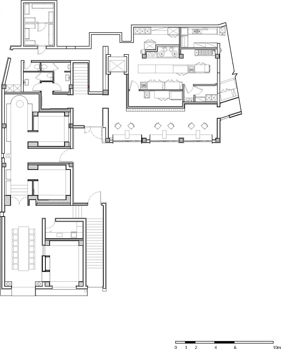
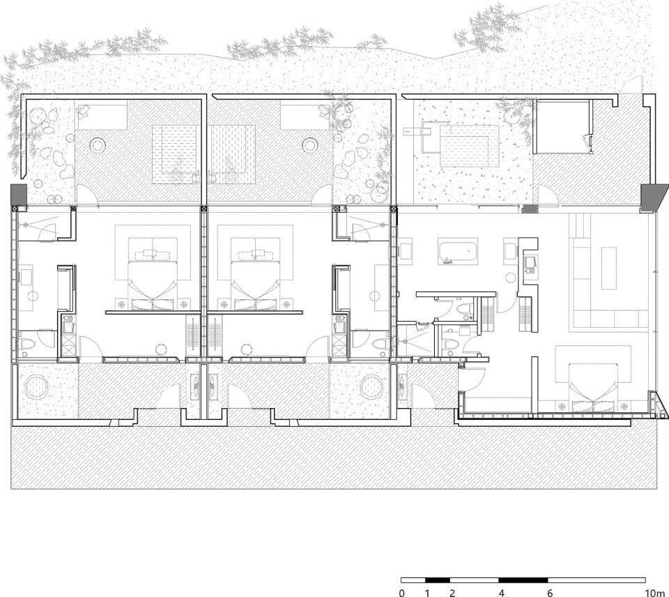
▼客房和酒吧一层平面图,Rooms and bar ground floor plan

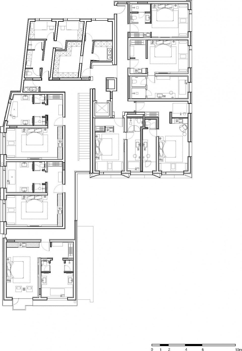
▼客房和酒吧二层平面图,Rooms and bar ground floor plan

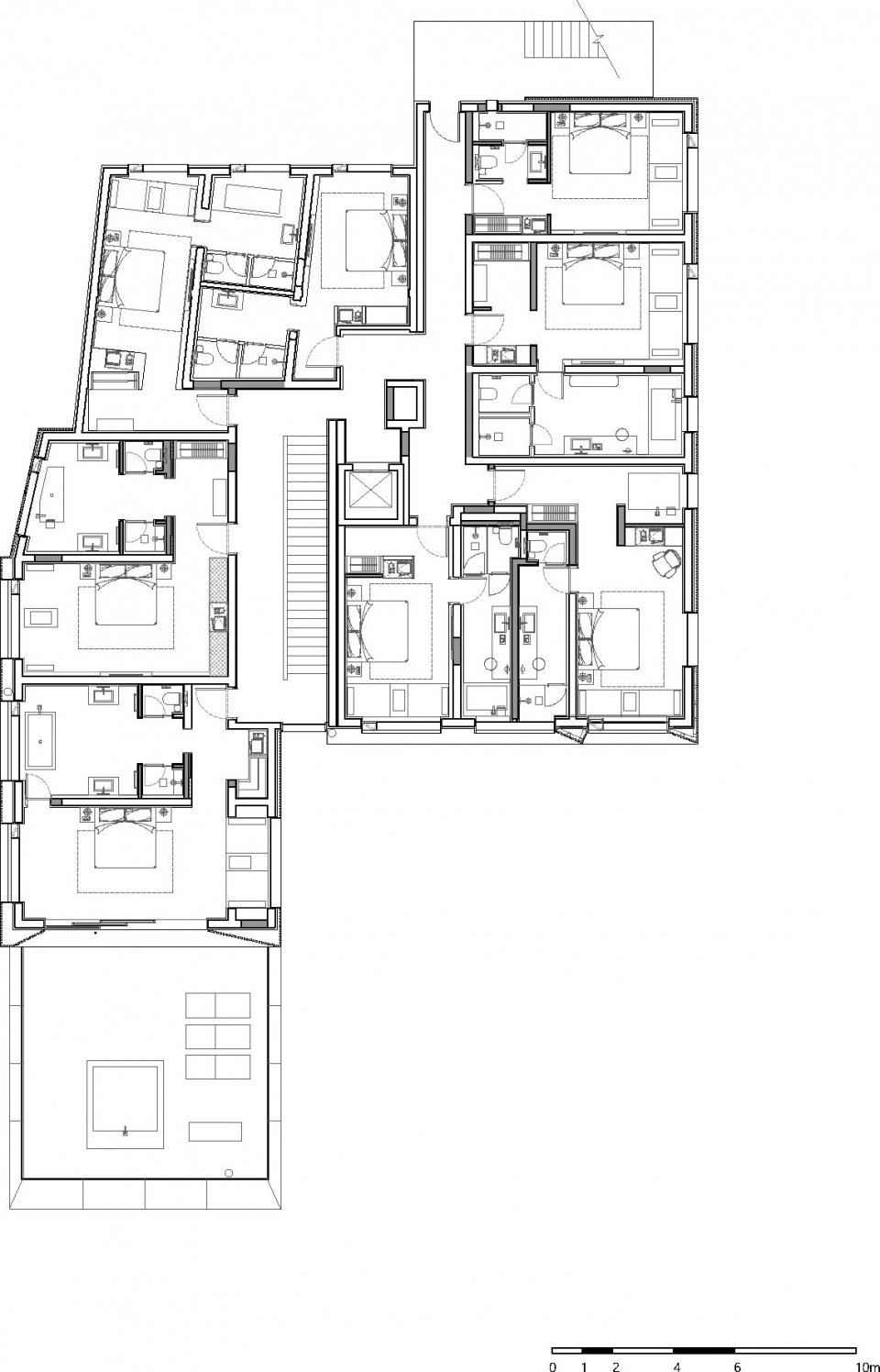
▼客房和酒吧三层平面图,Rooms and bar ground floor plan

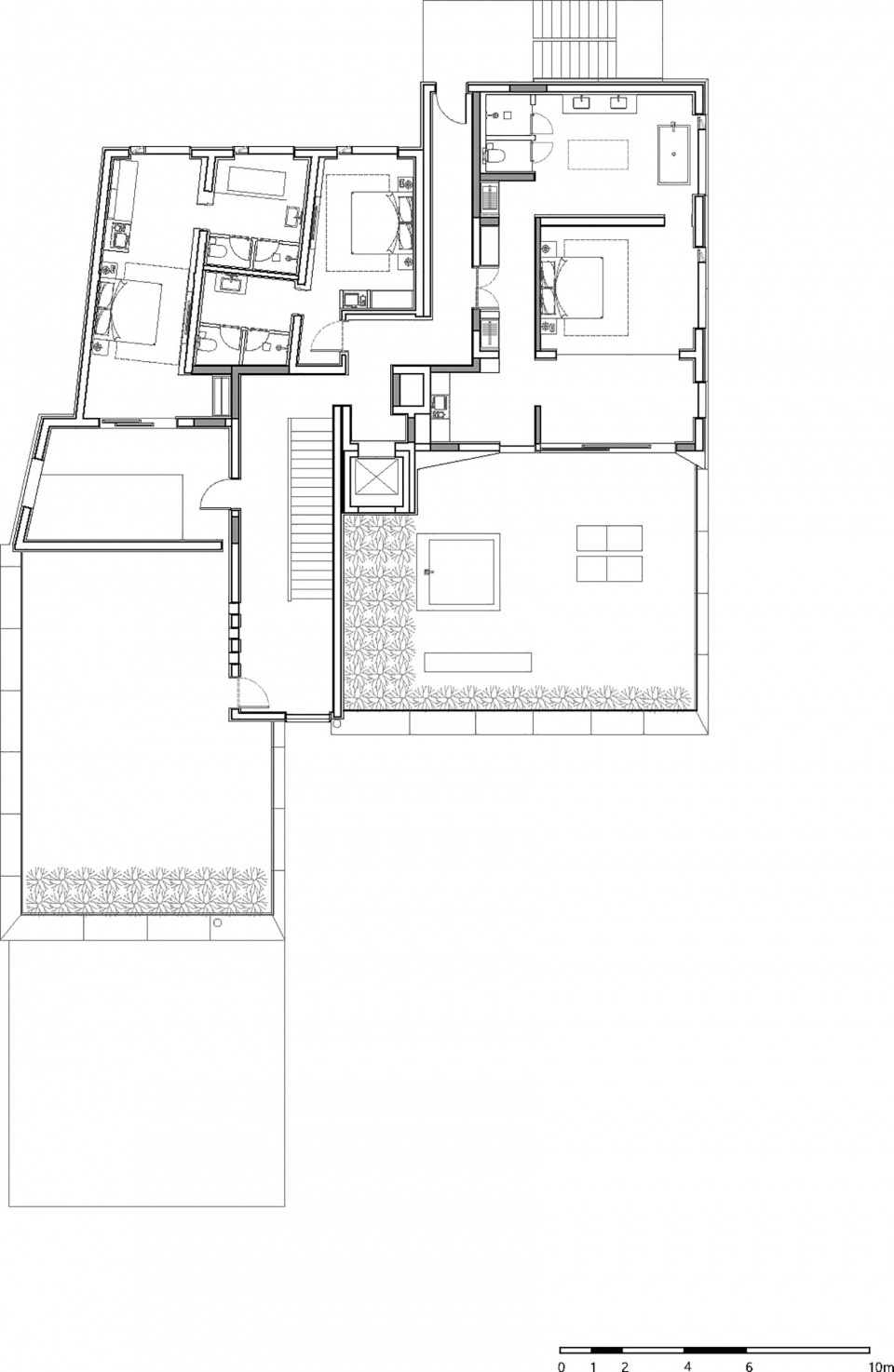
▼客房和酒吧四层平面图,Rooms and bar ground floor plan

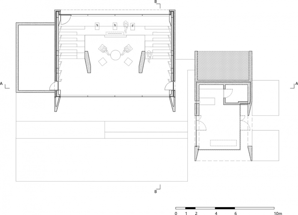
▼图书馆和接待处一层平面图,Library and reception ground floor plan

▼图书馆和接待处屋顶层平面图,Library and reception roof plan

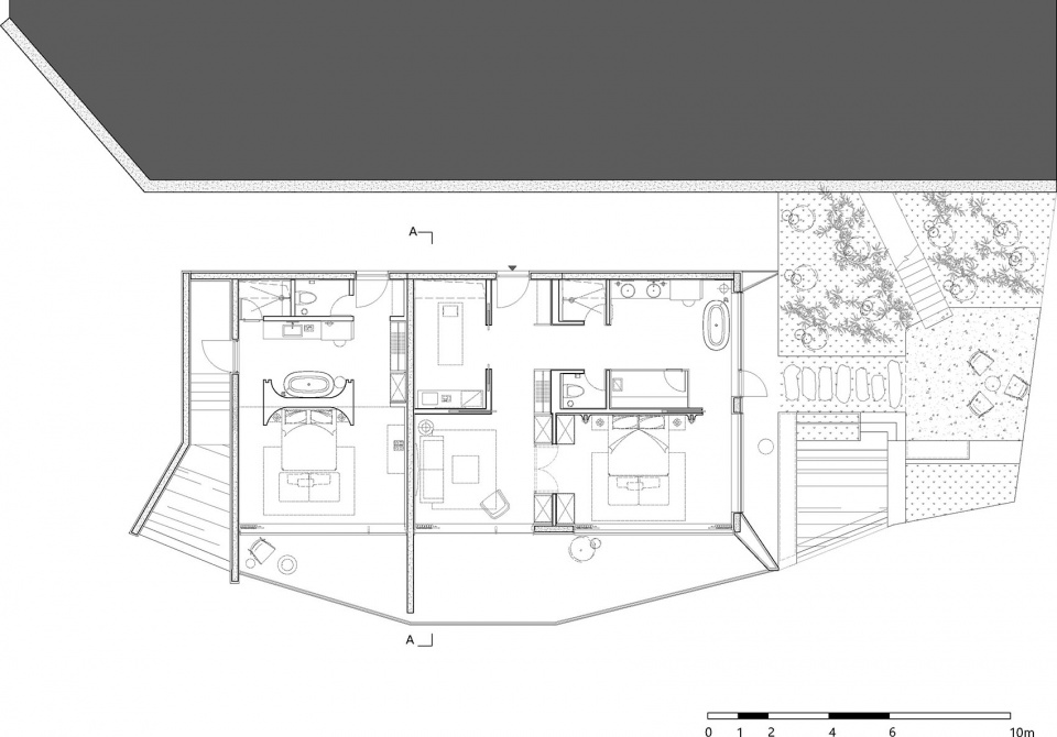
▼客房和套房平面图,Rooms and suites floor plans


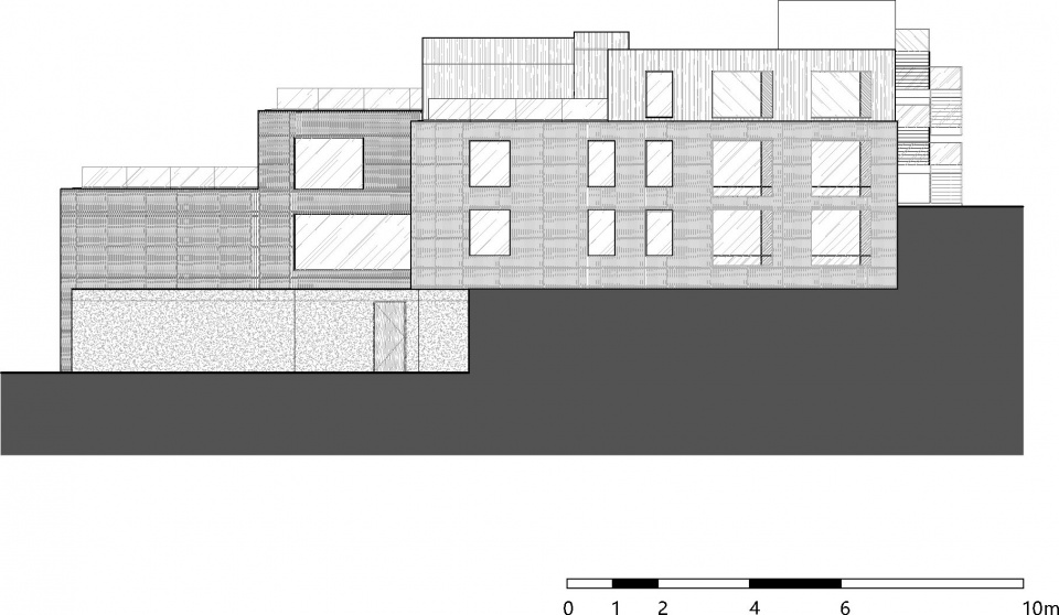
▼立面图,Elevations


▼剖面图,Sections



Name: ZOLAND · Emei
Address: No. 33, Group 3, Qingyin Village, Huangwan Town, Emeishan City
Area: 2,900 sqm
Indoor area: 2,516 sqm
Total number of villas in complex: Seven
Partners in charge: Justin Bridgland, Jaycee Chui
Architecture design: Studio J. Bridgland
Interior design: Studio J. Bridgland
FF&E design: Studio J. Bridgland
Photography: Jonathan Leijonhufvud at AGENT PAY
Completion Time: April 2025














