Châteaufort多功能厅,法国 / Berellini Architecte
在广阔自然保护区腹地、Domaine d’Ors 城堡原有的服务用房区域内,建筑师 Leo Berellini 为 Châteaufort 小镇完成了一座新的多功能厅建筑。
In the former service quarters of the château of the Domaine d’Ors, in the heart of a vast natural reserve, the architect Leo Berellini has completed the construction of a new multi-purpose hall for the town of Châteaufort.
▼项目概览,overview of the project

▼项目鸟瞰,aerial view of the project

这座新的多功能厅隶属于一处重要的历史遗产场地,其中包括一座磨坊、一座教堂、一座橘园,以及分布在公园周边的其他建筑。项目位于小镇之外,占地约 5 公顷,坐落于自然环境之中,紧邻受保护的 Merantaise 山谷自然保护区。
The new multi-purpose hall is associated with an important heritage site including a mill, a chapel, an orangery, and other edifices positioned around the park. Situated just outside the town, the site extends over an area of 5 hectares, in the middle of nature, next to the protected natural reserve of the Merantaise Valley.
▼立面,facade



▼教堂,chapel

▼多功能厅,multi-purpose hall


城堡的服务用房由三栋建筑组成,围绕一处朝南的庭院呈“U”形布局,庭院面积约为 600 平方米。场地周围被受保护的林地环绕。新建的扩建体量位于北侧,坐落在原有建筑之后的一片林中空地内。
The service quarters of the château are comprised of three buildings arranged in a “U” shape around a 600m² grand courtyard, oriented south. A protected wooded area surrounds the site. The new extension stands to the north, in a clearing behind the building.
▼在林中“U”形布局,“U” shape in the forest

▼雪景,snow scene


项目的设计目标在于克制。建筑与周围的绿色环境完美融合,并与城堡服务用房并置共存,各自保持其独特魅力。新建大厅顺应地形嵌入坡地之中,屋顶覆以绿色植被,与林中空地形成连续的自然景观。建筑沿原有建筑轴线布置,尊重并延续其对称关系。
The project aim is discretion. It blends perfectly into the green surroundings. It exists in harmony alongside the service quarters of the château, which have their own charms. The new hall nestles into the slope of the terrain, discreetly covered by a green roof in continuity with the clearing. It is positioned on the axis of the building, respecting its symmetry.
▼屋顶覆以绿色植被,green roof


▼坡地,the slope



纵向墙体采用夯土结构进行设计与建造,仿佛将山体侧面切割开来,裸露出其内部结构,同时呈现出地质层理的剖面。还有什么材料能比取自场地自身的土壤更好地融入环境?这些土壤被层层夯筑,却未改变其原有的质感与色彩。承重的夯土墙体在室内一侧覆以一层厚度为 20 厘米的浇筑式麻混凝土内衬,该内衬保持外露状态,并通过嵌入其厚度之中的木制连接件固定在夯土墙体之上。
The longitudinal walls are designed and built with rammed earth, as if the side of the hill had been cut away, exposing its entrails, and thereby the stratigraphy of its geological layers as well. What material could have better integrated into the site than its own soil, worked into strata, without altering its texture or colour? The supporting rammed earth walls are lined on the inside with a 20cm-thick layer of poured hempcrete, left exposed and affixed to the rammed earth walls with wooden studs embedded in the thickness of this lining.
▼纵向墙体采用夯土结构,The longitudinal walls with rammed earth



▼材料细部,material details


▼夜景,night view

在设计阶段,所有建筑构件均经过细致评估,以最大限度地发挥其热工性能。
During the design phase, all the architectural elements were carefully evaluated in order to push their thermal characteristics to their maximum capacities.
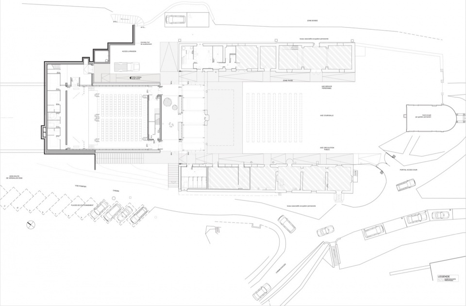
▼平面,master plan

▼首层平面,ground floor plan

▼剖面,section



▼细部,details


Programme
Construction of a multipurpose hall in Châteaufort
Domaine d’Ors, in the Yvelines department(78)
Client
City of Châteaufort
Lead architect
Leo Berellini architecte
Associate architects
Antonio Belvedere architecte (competition phase)
Roger Elbaz architecte (construction management)
Structural engineering
DVVD
Electrical engineering
SYLETIS
Fluids Engineering
Gilles Vanesson
Acoustics engineering
AGP
Photographer
Michel Denance


![[荒野之家#137]-美悦达个个世界-红磨坊,湖北 / 个个世界+先进建筑实验室](https://www.iecwww.com/uploads/images/20251225007/20251225007001.jpg)











